I. 서 론
1. 연구의 배경 및 목적
우리는 ‘인구고령화’, ‘1인가구의 증가’, ‘잦은 주거이동’ 등의 사회적 현상에 직면하고 있다. 고령 인구비율은 매년 급격히 증가하고 있으며, 고령자로만 이루어진 가구와 고령자 1인가구의 비율도 지속적으로 증가하고 있다.1)
과거의 혈연 및 지역 기반의 대가족을 중심으로 하는 주거유형은, 사회·문화적 변화와 더불어 거주공간의 양적·질적 변화를 동반하고 있다. 더욱이 결혼이 인생의 선택사항으로 변화하면서 더욱 세분되었다. 이와 같은 사회적 요구에 따라 이전의 가구형태는 다양한 유형으로 분화되었다. 특히 1인가구의 증가2) 현상이 두드러지게 나타나고 있다. 과거 1인가구는 고령자 계층의 비율이 높았으나 사회적 환경 변화와 더불어 점차 청소년기 이후 생애주기 전반에서 나타나고 있다. 앞서 기술한 바와 같이 사회·문화적 현상을 바탕으로 하는 인구의 구조적 변화, 거주자 그룹 및 거주유형의 변화 등을 고려한 주거환경에 대한 새로운 대책이 시급히 요구되고 있다.
이러한 최근의 변화 등과 함께 ‘주거지 이동’3) 현상이 빈번하게 발생하고 있다. 주거지 이동은 거주자를 중심으로한 사회적 관점에서의 ‘커뮤니티’ 형성 부재 및 환경적 관점에서의 ‘장소성’ 상실이라는 부정적인 요인을 내포하고 있다. 또한 잦은 주거지 이동은 거주자 개인 또는 집단의 ‘삶의 질’ 향상에 걸림돌이 되고 있다. 이로 인하여 거주자 유형별 주거행위 및 주거방식 등에 대한 요구도 분석을 바탕으로 생애주기 전반을 고려한 거주환경 계획에 대한 대안이 요구되고 있다.
이에 이 연구는 고령화 및 1인가구의 지속적 증가와 빈번한 주거지 이동 현상을 배경으로, 가치 있는 삶의 영위를 위한 거주환경의 질적 향상을 목표로 하였다. 이를 위해서 최소주거단위의 적정한 거주면적 확보를 우선 고려사항으로 인식하고, 신체적 변화를 수용할 수 있는 거주공간에 대한 필요성을 파악하였다. 생애주기별 신체적 변화를 수용할 수 있는 거주면적 확보는 주거이동의 감소에 긍정적 영향을 미치고, 나아가 삶의 질 향상에 기여할 수 있을 것이다. 그러기 위해서는 주거공간에서의 유니버설디자인(Universal Design)의 적극적인 수용이 절대적으로 요구된다. 이는 신체적 변이를 모두 수용하는 개념으로써 협소함 등으로 인한 활동의 제약을 미연에 방지하여 생애주기별 주거만족도 향상에 기여할 것이다. 특히 1인가구와 같이 가구원 수의 증감 없이 신체적 변화가 동반되는 가구유형의 경우, 지속적으로 거주할 수 있는 환경 제공을 위해 유니버설디자인의 적용이 더욱 강조된다.
이 연구는 공공임대주택을 대상으로 하였다. 공공임대주택은 주택 구매에 어려움이 있는 저소득층이나 사회초년생 등에게 저렴한 임대료로 거주할 수 있는 공간을 제공하는 주거복지정책을 바탕으로 한다. 이러한 정책 차원의 공공임대주택의 양적 지원은 주거안정을 실현시키기 위한 매우 중요한 방안이다.4) 주거복지정책의 주요 실현책인 공공임대주택에 대한 만족도 결과는 높다. 그러나 높은 만족도는 실상 ‘주택가격’에 의한 것으로 거주환경과 직접적인 관련이 있는 ‘주택규모’ 항목에 대한 만족도는 매우 낮게 나타났다.5) 이같은 결과는 해당 주거유형에 대한 부정적 인식 형성의 주요 요인이라 할 수 있다. 공공임대주택의 양적 지원과 더불어 거주자들이 오랫동안 주거공간의 이동 없이 동일한 주거지에서 쾌적한 삶을 영위할 수 있는 거주환경을 제공하기 위해서는 기본조건인 주거면적에 대한 재고가 필요하다.
앞서 기술한 바와 같이 이 연구는 도시공공임대주택을 대상으로 가구유형별 최소주거단위를 분석하고, 생애주기별 신체적 변화를 수용할 수 있는 유니버설디자인을 적용한 ‘적정 주거공간 면적(Appropriate Dwelling Area)’의 도출 및 제안을 목적으로 수행하였다.
2. 연구의 방법 및 범위
이 연구는 세 가지의 문헌분석을 바탕으로 수행되었다. 첫째, 각국의 ‘주거기준’에 대한 문헌자료를 분석하였다. 이는 현재 우리나라 현행 법규상의 위치를 재확인하는 과정으로, 이 연구의 주제인 ‘적정 주거공간 면적(이하 주거면적)’의 필요성을 뒷받침해준다. 둘째, ‘공공임대주택 평면계획’이 주거면적 산출을 위해 사용되었다. 현재까지의 공급현황 및 공급대상을 바탕으로 가구유형별로 비중있게 공급된 주택유형을 도출하고, 이와함께 ‘2019공공임대주택 평면계획’을 바탕으로 주택유형별 주거면적을 산출하였다. 마지막으로, ‘생애주기’, ‘주거행태’, ‘유니버설 디자인’ 관련 문헌자료를 분석하였다. 문헌자료는 ‘3050클럽’에 속한 국가의 자료 중 수집이 가능한 자료를 바탕으로 진행하였다.
주거면적은 고려사항 및 기준 등에 의해 다르게 산출될 수 있다. 이 연구에서는 그 기준을 유니버설디자인에 두었다. 유니버설디자인의 대상은 신체장애나 연령대의 차이를 모두 포괄하는 것으로, 연구의 방향성과 일치한다. 이 연구에서의 ‘적정 주거공간 면적’은 유니버설디자인을 적용한 소요면적을 의미하는 것으로, 최적화된 면적을 가리키는 것은 아니다.
이 연구는 아래의 구성으로 진행하였다.
제2장에서는 국내외 주거기준 및 주거면적에 대해 살펴보고, 우리나라 최소주거면적의 현황을 판단하였다.
제3장에서는 공공임대주택의 공급현황, 공간별 특징, 공간별 면적 등을 조사분석하였다. 이를 통하여 우리나라 공공임대주택의 현위치 및 특성을 파악하였다.
제4장에서는 주거면적 도출시 고려할 사항들을 조사·분석하였다. 도출된 결과는 공공임대주택 주거면적 산출에 반영하였다.
제5장에서는 이 연구의 목적에 따라 공공임대주택의 평면을 대상으로 유니버설디자인을 적용한 가구유형별 거주면적을 산출하였다.
II. 주거환경과 주거기준
1. 주거환경의 질
주거환경이란 삶이 이루어지는 크고 작은 사회적·물리적 환경을 가리킨다. 일상생활을 담는 주택에서부터 공동체를 기반으로 하는 지역사회, 각 지역사회들이 모인 도시까지 인간의 삶이 이루어지는 공간이다. 주거환경은 건강한 삶을 위한 기본 전제이며, 건강한 주거환경이란 신체적 건강과 더 나아가 정신적 건강까지를 고려한 환경을 가리킨다.
건강한 주거환경은 주거만족도와 인과관계를 갖는다. 즉 잦은 주거이동은 주거만족도에 부정적 요인으로 작용하는데, 주거이동은 주거불만족에 의해 발생하기 때문이다. 다시 말해 현 주거환경에 만족하지 못하기 때문에, 만족할만한 주거환경을 찾아 이동하는 것이다. 따라서 건강한 주거환경이라면 높은 주거만족도를 형성하게 되어, 주거이동 욕구의 발생을 낮출 수 있을 것이다.
주거이동이 발생하는 원인은 크게 세 가지로 구분된다.6) 첫째, 거주환경 등의 물리적환경 개선과 관련한 주거이동이다. 둘째, 생애주기 변화 등에 의한 주택규모와 관련한 주거이동이다. 마지막으로, 경제적인 이유에 의한 주거이동이다. 주거이동이 경제적 이유에 의해 발생하는 경우는 차치하더라도, 물리적환경에 대한 불만족7)이나 생애주기 변화8)가 원인이 되는 주거이동은 건축적 노력으로 개선될 수 있다. 물리적환경에 대한 만족감을 향상 시키는 방법 즉, 적정한 공간이 계획된 거주환경의 구축을 통해 주거이동 감소의 가능성을 높일 수 있다는 뜻이다. 건강한 주거환경은 좁게는 자신의 집, 넓게는 지역사회에 정착하여 지속적인 삶을 이어가는 환경이라 할 수 있다. 협소한 거주공간에 의한 공간확장이라는 주거욕구 실현을 목표로한 주거이동은, 거주환경 개선을 통해 감소시킬 수 있다. 적정한 면적으로 계획된 거주공간은 심리적 안정감을 높여 주거만족도 및 삶의 질 향상에 긍정적인 역할을 할 수 있다.
2. 국내외 주거기준 및 주거면적 분석
우리나라의 주거기준의 위치를 확인하기 위하여, 경제수준과 인구 규모를 기준으로 한 ‘3050클럽’에 속해있는 영국과 이탈리아, 일본의 주거정책에 의한 주거기준을 확인하였다.9) 영국은 주택정책의 선도자라고 불리우며 다양한 주택정책을 적극적으로 실행하고 있다. 영국에서의 주거기준「Parker Morris Standards (Greater London Authority, 2016, March)」는 주택내부에 공급되는 상하수 등의 ‘건강과 관련된 시설’을 중요하게 고려한다. 또한 시설과 관련한 ‘주거기준’과 면적과 관련한 ‘공간기준’을 별도로 규정하고 있다. 총바닥면적(The minimum gross internal floor area, GIA)을 바탕으로 ‘최저공간기준’을 규정하고 있으며, 수용 가능한 침대의 수를 기준으로 삼고 있다. 이는 거주자별 개인공간 확보를 우선으로 고려한 기준이라 할 수 있다.
이탈리아는 우리나라의 1인당 국민소득이 유사하다. 또한 사회주택(공공임대주택)의 공급량도 5% 수준으로 유사하다. 공공임대주택의 열악한 주거의 질에 대한 문제 제기에서부터 시작한 이탈리아의 주거기준은 현재 모든 주택에 적용되는 규정으로 정착되었다. 이탈리아의 주거기준(Modificazioni)은 ‘방의 크기(room area)’를 포함하며 ‘천장고(ceiling heights)’, ‘실내 온도(heating and condensation)’, ‘조도 확보를 위한 창문의 크기(light capture)’, ‘욕실의 개수’, ‘공용공간에 대한 피난로 확보’ 등 내부공간 관련 사항을 규정하고 있다.10)
일본의 경우, 최저주거기준과 유도수준 개념을 사용하고 있는데, 우리나라와는 달리 법으로 규정되어 있지는 않다. 1인부터 6인까지의 최저주거기준의 실구성과 면적, 도시형 유도수준과 일반형 유도수준의 실구성과 면적을 제시하고 있다. 특징적인 것은 최저주거기준의 중고령 1인의 경우 성인 1인의 면적인 16 m2에 9 m2의 면적이 추가된다는 것이다.11)
우리나라는 주택법 제5조의 2 및 동법 시행령 제7조12)에 ‘최저주거기준(Minimum Standards for Residential Accommodation, MSRA)’13)을 규정하고 있다<Table 1>. 최저주거기준은 ‘최소주거면적’, ‘필수적인 설비의 기준’, ‘구조·성능 및 환경기준’으로 구성되어 있다. 세부적으로 최소주거면적은 ‘가구구성별 최소주거면적’ 및 ‘용도별 방의 개수’, ‘침실분리원칙’, ‘가구별 자녀 수 및 성별 구분’ 등을 기준으로 삼고 있다. 주거면적에 성별이나 가족구성원에 따른 침실사용이 반영되어 ‘규정화’되어 있다.
Table 1.
Criterion for The Housing Size and The Number of Room in the Minimum Standards for Residential Accommodation
국내외 ‘주거면적 기준’으로 이탈리아, 영국, 일본의 최저주거기준, 대한민국 주택법 최저주거기준을 비교하였다. 더하여 국토교통부 2018주거실태현황의 1인당 평균주거면적을 비교하여 현행 최저주거기준의 주거면적 수준을 파악하였다<Table 2>.
Table 2.
The Minimum Standards for Residential Area of Domestic, Foreign and Housing Survey
| Household size | Standards for residential area | 2018 Housing survey | ||||
|---|---|---|---|---|---|---|
| UK | Italy | Japan | South Korea | Youth | Newly-married | |
| 1 | 29.7 | - | 16(25) | 14 | 27.3 | 24.1 |
| 2 | 44.6 | 38 | 29 | 26 | 43.7 | 65.6 |
| 3 | 56.6 | 52 | 39 | 36 | - | - |
| 4 | 66.9 | 66 | 50 | 43 | - | - |
우리나라의 주거면적은 다른 국가에 비해 가장 소규모이고, 가장 큰 면적을 제시하고 있는 영국에 비해 약 50% 수준이다. 일본과 가장 유사한 면적을 규정하고 있으나, 일본의 1인 고령자가구의 주거면적과 비교해보면 50% 이하의 면적이다. 가구원 수의 증가에 따른 면적 증가폭 역시 적다. 이탈리아의 경우, 1인이 증가할 때마다 동일하게 14 m2가 증가한다. 영국과 한국은 가구원 수가 많아질수록 면적 증가폭이 줄어든다는 점은 동일하지만, 한국의 증가율이 더 낮다. 일본의 가구원 수 증가에 따른 면적 증가폭은 13, 10, 11 m2이고, 한국의 면적 증가폭은 12, 10, 7 m2으로, 대체적으로 한국의 면적 증가폭이 적다.
또한 주거실태조사에서의 청년이나 신혼이 실제 거주하고 있는 주택의 평균 주거면적 역시 주택법의 최소주거면적을 크게 상회하는 것으로 조사되었다. 1·2인가구 청년의 경우 가장 규모가 큰 영국의 주거면적에 근접한 규모의 주거에 거주하는 것으로 조사되었다. 즉 우리나라 주택법상의 최저주거기준에 따른 최소주거면적은 다른 나라의 주거기준 및 주거면적과도 차이가 뚜렷해 보인다. 그러나 그보다 더 중요한 것은 법규상 규정되어 있는 최소주거면적이 국내 주거현실과 큰 차이를 나타내고 있다는 것이다. 이러한 지금의 주거환경은 최저주거기준 및 최소주거면적에 대한 재고의 필요성을 뒷받침한다.
이와 같은 현행 최소주거면적의 문제점은 선행연구를 통해서도 확인할 수 있다. 최소주거면적과 관련하여 Kim(2015)은 우리나라 최저주거기준 적용의 문제점으로 ‘방수’ 및 ‘면적 기준의 자의성’을 언급했다. Kim and Yoon(2009)은 우리나라 최저주거기준에 대한 개선방안으로 ‘가구원 수에 따른 소요 침실유형’을 구분하고, ‘유형별 전용면적’(거주면적과 기타면적 구분)을 제시하였다.
더하여 각국 주거기준의 지침이 된 국제주택계획연합(IFHP: The International Federation for Housing and Planning)의 ‘쾰른(Köln) 주거기준’은 가족 구성원 수에 따른 주거공간의 실별 면적을 세분화하여 설정하고, 합산한 주거면 적을 설정하였다(Kim & Yoon, 2009). ‘OECD Your Better Life Index’14)의 주택지표는 ‘1인당 방 수’, ‘기본시설이 결여된 주택’ 등을 측정하도록 되어있다.
우리나라 최소주거면적은 가구구성형태의 표준화를 선행하고, 그것에 맞추어 주거면적을 규정했다. 이는 우리의 주거기준이 삶을 위해 갖추어야 할 가장 낮은 기준으로 설정되어 있다는 것을 의미한다.15) 다시말해 현행 주택법의 최저주거기준은 최소한의 물리적환경을 추구한 주거기준으로서 질적인 차원의 고려는 미흡한 주거기준으로 볼 수 있다. 삶의 형태를 관련 법으로 결정하고, 이를 규정하는 것은 매우 어려운 일이며, 개인과 삶의 다양성에 가치를 두는 지금의 주거패러다임을 반영하기에도 용이하지 않다.
III. 공공임대주택의 특징 및 현황
우리나라의 공공임대주택은 영구임대주택, 국민임대주택, 행복주택, 장기전세주택, 매입임대주택 등 여러 가지 유형으로 공급되고 있다. 이중 ‘행복주택(Haeng-bok Public Rental Housing)’은 생애주기별로 공급대상16)이 나뉘어 있고, 따라서 1인가구에서부터 4인가구까지의 공공임대주택에서의 거주공간계획 현황을 살펴보기에 적합하다.
이 장에서는 행복주택 출현 초기 단계의 주택유형별 공간구성의 방향성을 확인하고, 현재까지 공급된 주택 중 가구유형별로 가장 많이 공급된 주택유형을 대상으로 공간별 면적을 도출하였다. 더하여 주택유형별 단위공간 면적 분석을 통해 주거단위 공간의 특성을 파악하였다.
1. 주택유형별 공간구성 특성
국토교통부는 행복주택의 1인가구를 위한 ‘주택유형16’, 2~3인가구를 위한 ‘주택유형36’, 3~4인가구를 위한 ‘주택유형46’을 ‘대표모델’로 발표하였다17)<Figure 1>. 모든 주택유형의 공간구성은 현관, 욕실, 주방 및 식당, 침실 및 거실, 발코니로 이루어져 있으며, 가구원 수에 따라 침실의 수는 증감한다. 주택유형별 내용은 아래와 같다.
① 1인가구를 위한 주택유형16
주택형 중 가장 소규모로써, 욕실과 현관을 제외하고는 벽체로 구획된 공간이 없다. 복도는 주방의 작업공간과 중첩되어 있고, 침실과 거실은 일체화되어 있다. 이는 사실상 거실이 부재한 형태로, 하나의 주생활공간에 다수의 영역이 중첩되어 있는 구성이다. 주생활공간(1K)+생활지원공간(현관, 욕실, 발코니)의 구성을 갖는다.
2. 주택 공급현황 및 주거단위공간별 면적
현재까지(2019. 6) 분양공고된 수도권에 입지하는 LH행복주택을 대상으로 공급현황 및 주거단위 공간별 면적을 분석하였다.18) 총 16개 단지로서, 서울특별시 4개 단지(서울삼전, 서울가좌, 서울오류, 서울공릉), 경기도 10개 단지(고양삼송, 수원호매실, 오산세교, 용인김량장, 의정부녹양, 의정부민락, 의정부호원, 파주운정, 파주출판, 화성동탄), 인천광역시 2개 단지(인천주안, 인천서창)이다<Table 3>.
Table 3.
Supplied Housing Types
공급대상은 1인가구(대학생, 사회초년생, 고령자), 2인가구(신혼부부, 고령자), 3인(이상)가구(신혼부부, 고령자)로 구분할 수 있다. 분양공고상의 주택형은 전용면적에 의해 분류된 것인데, 이 중 대학생이 공급 대상인 주택은 전용면적 16, 17, 19, 20, 21, 26, 29 m2로 최소 전용면적 16 m2, 최대 전용면적 29 m2이다. 고령자를 공급 대상으로 하는 주택은 전용면적 16, 17, 19, 21, 26, 29, 31, 36, 40, 44 m2로, 1인가구에서 2인가구, 2인(이상) 가구를 대상으로 공급되었다. 2인가구 및 2인(이상) 가구인 신혼부부를 대상으로 한 주택은 전용면적 36, 40, 44 m2의 규모로 공급되었다.
현재까지 가장 많이 공급된 1인가구를 위한 주택형16, 2인가구를 위한 주택형26, 3인가구를 위한 주택형36, 4인가구를 위한 주택형44를 대상으로 거주면적을 살펴보았다.19) 주거단위공간 면적은 ‘주생활공간(Dwelling Spaces)’과 ‘생활지원공간(Other Spaces)’으로 구분하였다. 주생활공간은 거실, 침실, 주방, 식당 등을 포함한 공간, 생활지원공간은 이를 제외한 공간들을 가리킨다.
공간별 개소 수를 살펴보면, 주택형16은 주생활공간이 1개소, 생활지원공간이 2개소이다. 주택형26은 주생활공간이 2개소, 생활지원공간이 2개소이다. 주택형36은 주생활공간이 3개소, 생활지원공간이 2개소이다. 주택형44는 주생활공간이 4개소, 생활지원공간이 2개소이다. 이같이 행복주택에서의 주생활공간은 주택의 규모가 커질수록 세분되고 있다. 반면, 생활지원공간은 주택의 규모 즉 전용면적의 크기와 관계없이 현관, 화장실 및 욕실 그리고 발코니로 계획되어 있으며, 각 1개소씩 제공되고 있다.
각 공간별 내용은 다음과 같다.
① 거실 및 침실
전용면적이 증가하면서 주택형36 이상 규모의 주택형에서는 거실과 침실이 명확히 분리되고, 주택형44는 거실과 독립되어있는 침실 2개로 구성되어 있다. 전용면적이 커지면서 침실이 독립되고, 그 개수가 늘어난다는 것은 생애주기에 의한 가구원 수의 증가를 고려한 것으로 볼 수 있다.
② 주방 및 식당
주택형16의 경우 주방·식당이 거실·침실과 명확히 분리되지 않아서 그 면적의 증감을 이해하기 어렵다. 그러나 나머지 주택형의 거실·침실 면적은 불규칙적으로 면적이 증감하고 있는 것을 볼 수 있다. 주택형26과 36의 주방·식당 면적의 차이가 미비하다는 사실은, 주거공간의 전체면적과 주방·식당 면적의 비율에 대한 면밀한 고려가 필요한 상황임을 나타내는 것이다.
③ 현관, 욕실
주택형26과 36의 현관면적이 유사하다. 현관의 경우 어느 정도 면적이 확보되면 더 이상의 면적 증가는 발생하지 않는 것으로 보이며, 욕실면적 역시 주택형26과 36의 면적이 비슷하다. 이와 같이 전용면적의 증가와 현관, 욕실의 면적증가가 반비례하는 결과는, 공간의 면적과 가구원 수와의 관계를 보여주는 것이다. 즉 전용면적의 증감과 관계없이 적정한 거주면적의 확보가 필요한 공간이 고려되어야 한다는 것이다. 지금까지 살펴본 주택형별 단위공간의 면적은 <Table 4>와 같다.
Table 4.
Average of Residential Area and Dwelling Unit Spaces
주생활공간과 생활지원공간의 면적을 비교분석한 결과, 전용면적이 커질수록 주생활공간의 면적은 함께 커지는 반면, 생활지원공간의 면적은 줄어드는 것을 확인할 수 있었다. 앞서 언급한 바와 같이 생활지원공간은 가구원수 및 전용면적 증가와 관계없이 유니버설디자인을 적용한 실별 면적을 도출할 수 있는 공간임을 확인하였다.
분석결과 현재까지 분양공고된 주택유형 중 가장 많이 제공된 주택형은 주택형16(1인가구), 26(2~3인가구), 36(2~3인가구)이고, 3~4인가구를 대상으로는 주택형44만 공급되었다. 이 중 주택형16은 오로지 대학생(사회초년생)과 고령자(주거약자) 대상이었다. 주택형26은 대부분 대학생과 고령자 위주로 공급되었다. 주택형36은 신혼부부와 고령자(주거약자)를 대상으로 공급되었다.
지금까지 비중있게 공급된 주택형16, 26, 36, 44의 주거면적과 법규상 최소주거면적을 비교하면, 2, 3인가구의 경우는 동일면적, 1인가구는 2 m2 초과, 4인가구는 1 m2 초과한 면적으로 제공되었다. 다시말해 공공임대주택의 가구원 수에 따른 주택형별 전용면적은 주택법의 최소주거면적에 대체로 순응하고 있음을 확인하였다.
또한 공공임대주택에서의 전용면적 증감은 주생활공간에는 영향을 미치지만, 생활지원공간에는 별다른 영향을 미치지 않았다. 이러한 의미에서 미래의 공공임대주택에서는 첫째, 가구원 수에 따른 개인공간의 확보를 강조하고, 둘째, 생활지원공간의 실별 적정한 면적을 확보하는 것이 중요하다고 판단하였다.
IV. 주거공간 면적 산출을 위한 고려사항
공공임대주택의 거주면적 산출을 위해 다음과 같은 사항을 고려하였다. 첫째, 생애주기유형을 도출하였다. 1인가구 비율의 증가 경향을 반영하여 ‘결혼 여부를 기준으로’ 가족 구성원 수를 구분하였으며, 이와 관련하여 생애주기유형에 따른 요구 거주환경을 고려하였다. 둘째, 국내외 유니버설디자인 관련 법규 및 가이드라인 분석을 통해 ‘면적산출과 관련한 치수’를 도출하였다. 셋째, 주거행태와 주거단위공간별 ‘가구와 제품’을 조사분석하였다.
1. 생애주기유형별 거주환경
생애주기와 관련한 연구는 가족학(Family Science)에서의 가족생활주기(Family Life Cycle)20)와 건축학에서의 주거생활주기(Housing Life Cycle)21)를 꼽을 수 있다. 생애주기의 단계를 구분하는 기준은 학계 및 연구자별로 상이하다. 그러나 생애의 주요한 변화를 중심으로 단계를 나누는 방법에는 차이가 없다.
이 연구에서는 생애주기의 구분을 ‘혼인 여부’를 기준으로 하였다. 언급한 바와 같이 지금의 낮은 혼인률, 1인가구 연령층의 확대 등은 앞으로의 거주환경이 ‘가족’ 중심이 아닌 ‘개인’ 중심으로의 방향전환을 요구하는 것이라 할 수 있다. 따라서 거주환경은 ‘가구원 수’를 기준으로 계획될 필요가 있다. 이 연구의 생애주기 유형은 ‘혼인 여부’에 의한 가구원 수의 증감을 기준으로 하였다. 청년에서부터 노년까지 1인가구를 지속하는 경우와, 혼인을 통해 가족원 수가 증가 및 감소하는 경우에 따른 생애주기 유형 및 거주환경은 <Table 5>와 같다.
Table 5.
Life Cycle and Required Dwelling Environments
① 유형A: 결혼을 통한 가족형성, 자녀출산 등 일반적인 생애주기 즉, 가족생활주기의 모든 단계를 거치는 유형이다. 1인, 2인, 3인(이상)의 거주환경이 요구된다.
② 유형A-1: 결혼은 했으나, 자녀 없이 노년을 맞이하는 경우로, 가족확대기는 거치지 않는다. 1인, 2인 거주환경이 요구된다.
③ 유형B: 가족생활주기의 가족확대나 축소가 존재하지 않는 유형이다. 청년, 중장년, 노년까지 계속 단독가구 즉 1인가구를 위한 거주환경이 요구된다.
위의 세 가지의 생애주기 유형에 따른 가구형태는 ① 1인가구형(청년, 노인), ② 2인가구형(신혼부부, 중년부부, 노년부부), ③ 3인가구형(자녀 1인 포함 부부), ④ 3인 이상 가구형(자녀 2인 이상 포함 부부)이다.
생애주기 유형별 가구원 수의 차이에 의해 거주환경은 변화한다. 침실과 같은 개인공간의 경우 가구원 수 증감과 관련된 공간으로, 주거이동에도 영향을 미치는 공간이다. 이 연구에서는 ‘공공임대주택의 주택평면계획 기준’을 토대로 가구유형별 공간의 개수를 산정하였다. 또한 가구원 수 및 관계에 따라 부부를 제외한 모든 가구원은 개별 침실 제공, 나머지 모든 공동사용공간은 각 영역별로 한 개의 공간 제공을 기준으로 하였다.22) 이러한 기준에 따른 생애주기유형별 거주환경은 <Table 6>과 같다.
2. 유니버설디자인 가이드라인
유니버설디자인(Universal Design)23)은 장애나 연령 등의 ‘차이’에 상관없이 모든 사람들을 포용하는 디자인이다. 이 중 ‘원칙7’은 사용자의 신체치수, 자세, 이동능력에 관계없이 접근, 도달, 조작, 사용할 수 있는 ‘적정 크기와 공간’을 제공하는 것이다. 따라서 원칙7의 적정 크기와 공간은 주택에 있어서 주거단위공간의 ‘면적’과 밀접한 관련이 있는 항목이라 할 수 있다.
우리나라의 유니버설디자인은 장애인·노인·임산부 등의 편의증진 보장에 관한 법률(이하 장애인법), 장애물 없는 생활환경인증에 관한 규칙(Barrier Free 인증, 이하 인증규칙), 고령자 배려주거시설 설계치수원칙 및 기준(KSP 1509), 그리고 서울시유니버설디자인 통합가이드라인 등을 토대로 진행되고 있다.
‘공동주택’은 장애인법 제7조의 ‘편의시설24) 설치 대상 건축물’에 속하며 ① 매개시설(주출입구 접근로, 장애인전용 주차구역, 주출입구 높이 차이 제거), ② 내부시설(출입구(문), 복도, 계단 또는 승강기)은 편의시설 ‘설치의무사항’이다. 반면 ③ 위생시설(화장실, 욕실 등)과 ④ 기타시설(침실 등)은 ‘설치 권장 사항’으로 규정되어 있다.
또한 인증규칙에서의 인증의무대상은 평가항목에 대해 최우수·우수·일반 등으로 평가받는다. 인증규칙에서의 면적과 관련한 평가범주 및 항목은 ‘통과유효폭’, ‘활동공간확보’, ‘유효바닥면적’이다.25) 공동주택은 법에서의 규정과 달리 인증의무대상에서는 제외된다.26)
이와같이 장애인법과 인증규칙에서는 공공건축물, 보행로, 주출입구, 주차장 등 주로 공적인 물리적 환경의 편의시설 확보를 규정하고 있다. 또한 장애인법에서의 편의시설 설치대상인 공동주택의 경우 단위세대 밖의 공용복도까지는 ‘의무사항’으로 규정되어 있다. 그러나 세대 내부는 ‘권장사항’으로 규정되어 있다. 가장 사적인 시간, 심리적 안정감을 누려야 하는 주택은 원활한 활동을 지원하는 편안한 환경이어야 한다. 그런 의미에서 앞으로는 주택계획에 있어서 유니버설디자인이 적극적으로 적용될 필요가 있다.
주택에서의 유니버설디자인 적용 방법의 예로, 아일랜드의 가이드라인(Universal Design Guidelines For Homes in Ireland, 2015)27)이 좋은 참고자료가 된다. 아일랜드의 가이드라인은 주택에서의 원활한 접근 및 활동을 위해 각 공간별 확보 치수와 규모 등을 매우 구체적으로 설명하고 있다. 주택 외부에서부터 내부까지를 디자인 적용 범위로 하고 있으며, 그 내용은 ① 주거의 위치 및 접근(home location and approach), ② 주거의 진입 및 이동(entering and moving about the home), ③ 거주를 위한 공간(spaces for living), ④ 요소 및 시스템(elements and systems), ⑤ 주택유형별 예시(universal design home types-floor plan examples)로 구성되어 있다.
국내외 유니버설디자인가이드라인으로 앞서 언급한 국내의 법규 및 지침, 3050클럽에 속한 미국(Fair Housing Act Design Manual, 1998), 영국(Lifetime Homes Standard, 2010), 일본(高者等配慮策等級)의 유니버설디자인가이드라인을 분석하였다<Table 7>.
Table 7.
Required Dimension in Dwelling Spaces
국내외 유니버설디자인 관련 지침에서 언급하는 면적과 관련된 공통사항은 ‘두 가지의 항목’으로, ① 통과 폭의 확보(Accessibility)와 ② 활동공간의 확보(Usability)이다. 통과 폭의 확보는 진입, 이동에 대해 고려하도록 요구하며, 활동공간의 확보는 불편함 없이 각 공간에서 활동 및 회전할 수 있는 공간을 두도록 하고 있다. 이 연구에서의 거주면적 산출에 적용할 두 항목과 관련한 치수는 국내자료를 기준으로 하였으며, 국외 자료의 분석결과를 참조하였다.28) 공공임대주택의 거주면적 산출에 적용한 치수는 <Table 8>과 같다.
3. 생애주기별 거주행위 및 필요 가구
거주면적 도출을 위해서 각 가구유형별 거주행태와 소요 공간에 대한 이해가 필요하다. 각 공간은 행태와 관련이 깊다. 주거행태 유형은 연령에 관계없이 대체로 유사하다.
실내활동 유형은 크게 ① 씻기와 관련한 활동 유형, ② 먹기와 관련한 활동 유형, ③ 여가와 관련한 활동 유형, ④ 잠자기와 관련한 활동 유형, ⑤ 외출과 관련한 활동 유형 등으로 구분할 수 있다. 나아가 연령대에 따라 육아 관련 활동, 학습 관련 활동, 취미 관련 활동, 친목 관련 활동 등 다양한 행태가 발생한다. 연령대나 가족구성 형태, 거주자의 라이프 스타일 등에 의해 실내활동 유형은 확장·축소된다.
면적과 관련한 가구유형별 요구사항은 ① 육아세대: 유모차, 자전거 등 대형사물 수납공간, 아이의 성장에 따른 공간분할 가능한 가변형 공간, 아이 성장에 따른 규모 및 방 개수 부족 문제점, ② 고령자세대: 비상호출기, 동작감지센서, 현관 및 욕실 보조 의자, 보조 손잡이 설치, 세대 축소 혹은 생활패턴 변경에 따른 공간 변경이 가능한 계획, 가능한 계속 거주 희망, ③ 1·2인가구 세대: 생활패턴 변경에 따른 공간 변경이 가능한 계획, 좁은 공간을 활용할 수 있는 수납공간 확보, SOHO형, 스튜디오형 평면제공, 가능한 계속 거주 희망 등으로 조사되었다(Cheong, Lee & Han, 2010). 모든 가구유형의 공통된 요구사항을 종합해보면, ‘지속적인 거주를 희망’하고, 이를 위해 ‘삶의 변화에 유연하게 대처할 수 있는’ 주거환경을 선호하는 것으로 보인다.
생애주기 변화에 대응하는 하나의 방안으로서, 단위공간에 담을 수 있는 행태의 범주를 넓히는 방안을 들 수 있다. 행태가 고려된 내부공간은 다양한 삶을 담을 수 있는 유연한 공간이라 할 수 있다. 공공임대주택의 공급 측면에서는, 생애주기별로 주거단위공간별 필수 구성요소 등을 고려하여 주거공간을 계획하여야 한다. 나아가 일상적 활동에 제약을 받지 않을 수 있는 공간을 확보하여야 한다. 이러한 과정을 거쳐 계획된 주거공간은 공공임대주택에서의 삶의 질 개선을 위한 최선의 노력일 것이다. 따라서 주택에서의 위의 다섯 가지 행태 유형과 관련된 공간은 현관, 화장실, 주방, 거실, 침실 등이다. 각 주거단위공간에서 일어나는 행위와 공간, 각 공간에 기본적으로 사용되는 가구 및 전자제품은 <Table 9>와 같다.
Table 9.
Furniture and Items in Dwelling Spaces by Living Behavior
V. 가구유형별 주거공간 면적
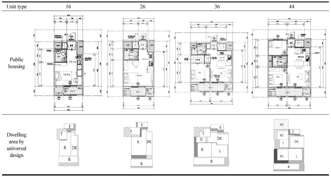
가구유형별 주거공간 면적은 ‘2019 행복주택 단위세대 평면도’를 대상으로, 지금까지 가장 많이 공급된 가구유형별 주택유형인 주택형16, 26, 36, 44의 거주면적을 산출하였다. 면적산출은 제4장의 거주환경별확보요구단위공간<Table 6>, 단위공간별확보요구치수<Table 8>과 실별필요가구및제품<Table 9>를 반영하여 진행하였다.30) 가구유형별 주거공간 면적 산출은 안목치수를 기준으로 하였다<Figure 2>.

Figure 2.
Public Housing Units and Increased Area
Note. E (Entrance), T (Toilet&bath), R (Bed room), DK (Dining & kitchen), L (Living room), B (Balcony) All hatch: increased area of each space
단위공간별 유니버설디자인의 확보 요구 치수, 필요 가구 및 제품을 반영한 결과, 네 개의 주택형 모두 아래와 같은 변경사항이 발생하였다.
① 현관: 현관홀의 폭, 깊이 확장
② 욕실: 바닥의 폭, 깊이 확장
③ 주방: 조리대 작업공간 및 회전공간 확보
④ 침실: 가구원 수별 침실확보, 가구 전면공간 및 회전공간 확보
⑤ 발코니: 활동공간 확보에 의한 폭, 깊이 확장
거주면적 산출과정을 통해 변경 및 확인된 내용은 다음과 같다<Table 10>.
Table 10.
Comparison of Residential Area by Housing Types
(m2)
첫째, 거주면적 증가
행복주택의 주택형16은 전용면적 23 m2으로, 주택형26은 37 m2로, 주택형36은 50 m2으로, 주택형44는 78 m2로 규모가 확대되었고, 전체 36~76%의 증가율을 보였다.31) 행복주택의 주택형별 전용면적(16, 26, 36, 44 m2)은 법규상 최소주거면적의 가구원 수별 면적(14, 26, 36, 43 m2)과 대체로 유사하다. 그러나 유니버설디자인을 적용하여 산출한 거주면적은 법규상의 최소주거면적과 큰 차이를 보였다. 행복주택의 전용면적 16, 26, 36, 44 m2는 유니버설디자인을 적용한 전용면적 23, 37, 50, 78 m2로, 각 6, 10, 13, 34 m2가 증가하였다. 행복주택 단위세대 평면계획에서의 발코니 면적은 전부 서비스면적으로 계획되었으나, 유니버설디자인 적용 후에는 전용면적에 산입할 면적이 발생하였다. 이러한 서비스면적 초과분에 의한 전용면적 산입분을 고려하지 않고 전용면적의 증가분만 비교해보면, 각 주택형은 5, 9, 11, 31 m2의 면적증가를 보였다.32)
둘째, 주생활공간과 생활지원공간의 비율 변화
주생활공간과 생활지원공간의 비율 차이이다. 모든 주택형에서 생활지원공간의 비율 ‘증가폭’이 큰 반면, 주생활 공간은 ‘감소폭’이 크게 나타났다.33) 면적비의 변화가 가장 큰 주택형26의 경우 기존의 78:22에서 70:30으로 변화하였다. 가장 큰 규모의 주택형44의 경우 침실이 두 개에서 세 개로 늘어나면서 주생활공간의 비율의 감소가 거의 드러나지 않는다. 그러나 기존 대비 욕실면적 88% 증가, 현관면적 45%의 증가가 요구된 점은 주목할 필요가 있다. 다시말해 대부분의 주택형에서 주생활공간의 면적비가 감소하고, 생활지원공간의 면적비는 증가하였는데, 이같은 결과는 생활지원공간 계획이 접근성 및 원활한 사용 가능성을 고려한 공간계획으로 개선되어야 할 필요가 있음을 의미하는 것이다.
셋째, 단위공간에 따른 규모 및 치수
주거공간 계획시 참고할 수 있는 단위공간별 기준 치수를 확인하였다. 각 주택형의 공간구성방식에 따라 주요 치수가 변화할지라도, 일부 공간은 유니버설디자인을 적용한 설계기준치수의 산정이 가능하다고 판단되었다.
2019행복주택평면을 토대로 산출한 치수를 보면, 현관의 경우 수납공간을 제외한 현관홀의 치수는 1,500×1,500mm의 규모로 최소 2.79 m2, 최대 4.30 m2의 면적이 요구되었다. 욕실·화장실의 경우 샤워부스 미 설치시 1,900×2,000 mm의 4.08m2, 설치시 3,420×2,000mm의 규모로 최대 8.27m2가 요구되었다. 또한 부부침실 및 자녀침실 등 침실에서 기본적으로 사용하는 가구를 바탕으로 설계기준치수 산정이 가능하다고 판단되었다. 드레스룸이 있는 부부침실은 11.31 m2 (3,650×2,940 mm), 드레스룸이 없고 옷장이 설치되는 부부침실은 13.88 m2(3,650×3,700 mm)가 요구되었다. 자녀침실은 옷장 1개와 1인용 침대 배치를 기준으로 9.97 m2 (3,650×2,590 mm)가 요구되었다. 발코니의 최소 깊이는 1,845mm가 요구되었다. 지금까지의 생애주기유형별 가구원 수 및 공간구성 기준과 공공임대주택에서의 유니버설디자인을 고려한 적정 주거공간 면적은 <Table 11>과 같다.
Table 11.
Appropriate Dwelling Area & Spaces by Housing Types
| Type | Room composition | Housing size (m2) | Residential area | Service area | |||
|---|---|---|---|---|---|---|---|
| Life cycle | Dwelling environments | Sum (m2) | Dwelling area (m2) | Others (m2) | Balcony (m2) | ||
| A, A-1, B | for 1 person | 1K | 29 | 23 | 15 | 7 | 7(1)* |
| A, A-1 | for 2 persons | 1DK | 44 | 37 | 25 | 11 | 9(2)* |
| A | for 3 persons | 2LDK | 61 | 50 | 36 | 12 | 14(3)* |
| A | for 4 persons | 3LDK | 90 | 78 | 63 | 13 | 15(3)* |
VI. 결 론
이 연구는 지속적 삶을 가능하게 하는 건강한 주거환경 구축을 목표로, 지역사회를 구성하고 있는 물리적 환경의 가장 사적 단위인 주택의 적정 주거공간 면적(이하 거주면적) 제시를 목적으로 진행하였다. 연구는 공공임대주택의 여러 가지 유형 중 생애주기를 바탕으로 주택유형이 나뉘어 있는 행복주택을 대상으로 하였다. 논문 구성은 제2장의 현재 주택법의 최소주거면적에 대한 재고, 제3장의 우리나라 공공임대주택의 현황분석, 제4장의 유니버설디자인 등 거주면적 산출시 고려사항, 제5장의 생애주기에 따른 가구유형별 거주면적 산출로 구성하였다.
거주면적 산출은 2019공공임대주택평면을 대상으로, 연구에서의 ① 생애주기유형에 따른 거주환경별 요구 단위공간, ② 유니버설디자인의 주거단위공간별 확보 요구 치수, ③ 주거단위공간별 필수 구성요소 등을 반영하였다.34) 거주면적 산출 결과는 다음과 같다.
첫째, 모든 주택 유형의 주거면적이 증가하였다. 우리나라 주택법상 최소주거면적의 가구유형별 총주거면적은 1인가구 14 m2, 2인가구 26 m2, 3인가구 36 m2, 4인가구 43 m2이다. 2019행복주택의 주택형은 1인가구 16 m2, 2인가구 26 m2, 3인가구 36 m2, 4인가구 44 m2로 계획되었다. 최소주거면적과 행복주택면적의 유사성은 현재의 공공임대주택 면적이 ‘최소’ 면적으로 공급되고 있음을 확인할 수 있게 해준다. 유니버설디자인을 고려한 주거공간의 전용면적은 1인가구 23 m2, 2인가구 37 m2, 3인가구 50 m2, 4인가구 78 m2로 증가하였다.35) 주택법의 최소주거면적과 유니버설디자인을 적용하여 산출한 거주면적은, 1인가구는 9 m2, 2인가구는 11 m2, 3인가구는 14 m2, 4인가구는 35 m2의 차이를 보인다. 이와 같은 결과는 주거공간에 대한 질적인 요구를 뒷받침하는 것으로, 주거면적의 ‘적정성’에 대한 고려 및 개선 요구를 나타내는 것이다.
둘째, 주생활공간과 생활지원공간 면적의 비율이 변화하였다. 기존 대비 생활지원공간의 면적이 크게 상승하면서, 전용면적에서 많은 비중을 차지하고 있었던 주생활공간의 비율이 축소되었다. 이는 지금의 생활지원공간 계획이 모든 사람의 원활한 접근 및 사용에 어려움이 있다는 것을 의미한다. 주거공간계획에 있어서 연령층 및 장애유무를 떠나 모든 유형의 가구원들이 사용상 어려움을 느끼지 않는 공간계획을 고려할 필요가 있다. 주거만족도를 높이기 위해서는 주택에서의 유니버설디자인 적용을 통해 접근성과 활동성을 보장하는 거주환경계획이 필요하다. 이는 앞으로의 거주면적 계획에 최우선 고려사항이 되어야 할 것이다.
셋째, 단위공간별로 최소한으로 확보되어야 할 치수 및 면적 설정이 가능하였다. 현관홀의 크기, 샤워부스 설치형 및 미설치형 욕실의 크기, 주방조리대 유형별 크기, 부부침실 및 자녀침실의 기본 가구를 적용한 최소치수, 발코니의 깊이 등 공간별 ‘최소 확보 치수’의 수립이 가능하다고 판단되었다. 나아가 라이프 스타일에 따른 사용 가구 및 제품을 바탕으로 가구유형 도출 및 공간별 기준수립이 가능할 것으로 보인다. 이러한 노력은 공공임대주택의 주거환경 개선 및 선도 역할을 위한 하나의 방안이 될 수 있다.
지금까지 공공임대주택에서의 유니버설디자인을 고려한 거주면적 산출을 통하여 몇 가지의 시사점을 도출하였다.
첫째, 주거정책 방향의 변화
인간은 누구나 적정한 삶을 누릴 권리를 갖는다. 2015년 제정된 주거기본법 제2조 주거권에서는 ‘국민은 쾌적하고 안정적인 주거환경에서 인간다운 주거생활을 할 권리를 갖는다’고 명시되어 있다. 공공임대주택은 주거복지 정책을 대표한다. 정책은 주거안정을 위해 인간이 생활하는데 가장 기본이 되는 사회적물리적 환경을 목표로 하여야 한다. 지금의 공공임대주택이 질적 향상을 목표로 전환하고 있다면, 좀 더 본질적 가치에 집중해야 할 것이다. 특히 ‘질적 가치를 지닌 공간’으로 이루어진 주택을 통한 ‘장소성 구축’, 안정된 삶을 통한 ‘커뮤니티 구축 및 활성화’는 여전히 ‘삶의 질’ 향상을 위해 중요하다. 다시말해 쾌적한 거주환경과 건강한 주거환경이 앞으로의 주거정책의 핵심 주제가 되어야 할 것이다.
둘째, 최저주거기준 법규의 개정
우리나라의 ‘최저주거기준’ 및 ‘최소주거면적’은 이미 많은 선행연구를 통해 그 문제점 및 한계가 활발히 논의되고 있다. ‘적정주거기준’과 그에 따른 ‘적정거주면적’이 요구되고 있지만, 아직까지 이해 타당한 기준은 제시되고 있지 못한 실정이다. 또한 거주면적과 관련하여 고려할 사항에 대한 합의도 이루어지지 못하였다. 언급했듯이 주거기준 및 주거면적은 ‘삶의 질 향상 및 유지를 위한 기본 방안’을 목표로 할 필요가 있다. 현행 주거기준이 공공임대주택의 공급량을 늘리는데 기여했다면, 이제는 삶의 가치를 높이는 주거기준을 통하여 쾌적한 주거환경을 만들어가야 한다.
이를 위하여 ① 앞으로의 주거기준은 ‘개인’에 대한 적극적인 고려가 요구된다. 현재 우리사회는 1인가구 연령층의 폭이 늘어나고 그 수가 급격히 증가하고 있는 상황이다. 따라서 주거 안정성을 높이는 지속적 삶을 지원하는 주거기준으로의 변화는 더욱 절실하다. ② 지속적인 삶이 가능한 거주환경을 위하여 유니버설디자인의 고려가 중요하다. 유니버설디자인을 적용한 가구원 수에 따른 주거면적을 규정하고, 가구원 수별 침실 확보를 규정하는 방안 등의 논의가 필요하다. ③ 생활지원공간별 쾌적한 사용을 위하여 최소 요구 치수 설정을 통한 적정면적 기준이 요구된다. 연구를 통하여 생활지원공간의 경우 가구원 수의 증감에 영향을 받지 않는 공간별 치수 설정이 가능하다고 판단되었다. ④ 장애인·노인·임산부등의편의 증진보장에관한법률에서의 ‘편의시설설치권장사항’으로 규정되어 있는 공동주택에서의 화장실, 욕실, 침실에 대한 재고가 필요하다. 위의 법규상 주거기준과 연계된 ‘편의 시설설치의무사항’으로의 변경이 요구된다. 이에 맞추어 장애물없는생활환경인증에관한규칙의 평가 대상이 ‘주택내부’까지 확대되어야 할 필요가 있다. 나아가 ‘인증의무대상’으로의 조정까지도 고려해 보아야 한다.
셋째, 공공임대주택공급 기준의 변화
이 연구의 대상인 공공임대주택 유형의 하나인 행복주택은 청년부터 노년까지 생애주기별 주택형을 구분하고, 각 주택형별 입주 가능 연령 및 가족구성 형태를 제한하여 공급하고 있다. 이러한 주택 공급 시스템은, 생애주기변화 대응 및 주택의 지속가능성 측면에서 자체적 한계점을 갖고 있다. 따라서 공공임대주택의 공급대상 기준을 생애주기에 의한 가구유형에 두는 것이 아닌, ‘가구원 수를 기준’으로 하는 방식으로의 변경을 고려하여야 한다. 이러한 공공임대주택 공급 대상 기준의 수정을 통하여 지금의 1인가구의 연령층 확대 현상 및 생애주기 변화에 대한 포용력 있는 주거환경을 이루어 나갈 수 있을 것이다.
이 연구의 분석대상은 우리나라 공공임대주택 중 생애주기에 기반한 LH행복주택으로 한정하였다. 계획된 단위 세대평면을 대상으로 유니버설디자인 관점을 적용한 것이다. 이 논문에서의 유니버설디자인을 고려한 거주공간의 면적에 대한 논의는 현행 최저주거기준 및 최소주거면적의 개선을 위한 선택적 방안이라 할 수 있다. 앞으로 주거복지 향상을 위한 거주면적의 보다 다각적인 접근을 기대한다.




