I. 서 론
1. 연구의 배경 및 목적
조선시대 상류주택에서 별당은 일반적으로 사랑채의 연장으로 이해되고 있다. 주지하는 바와 같이 사랑채는 사림(士林)들에 의해 성리학이 전반적인 사회이념으로 자리 잡게 되는 16-17세기를 거치며, 안채의 일부를 구성하던 사랑의 규모가 커지고, 이후 사랑채의 영역이 확장되어 사랑의 전면에 별당이 건립되는 것으로 알려져 있다. 사랑채의 앞쪽에 건축된 별당이 씨족마을의 회합 또는 사회교류의 공간으로 그 지역사회에서 공공대화의 처소로 또는 사회적·경제적·문화적 중심으로서의 모든 구실을 담당하였다1)는 것은 현존하는 반가의 평면을 유형 분류하여 분석한 것으로, 조선후기 별당의 기능이라 할 수 있다. 따라서 임진왜란 이전에 건립된 별당은 조선전기의 특별한 사례로 평가되며, 개별 건물의 특성 및 구조형식이 주목되어 왔다. 그러나 성리학적 이념의 의례, 남녀구별의 공간구성 등이 주거문화로 정착하기 이전에 건립된 상류주택의 별당은 소수임에도 불구하고 시대성을 나타내는 건축형식 및 구조적 특징뿐 만 아니라, 공간구성의 측면에서도 조선후기 별당과 구분되는 차이점을 볼 수 있다.
한국건축사를 고대 중세 근대라는 개념으로 정리2)할 때 조선전기는 고려시대와 함께 중세로 구분된다. 조선전기는 새로운 왕조가 탄생하였음에도 사회의 저변에는 여전히 고려시대의 종교, 문화, 사회제도가 혼재하던 시기였다. 본 연구는 문헌연구로 분석된 고려시대 주택에 관한 연구 성과로부터, 현존하는 조선전기 주택의 별당과 고려시대 주택 남성공간의 연속성에 착안하여 시작되었다. 비록 현존하는 유구가 전무하지만, 여러 문헌사료에서 확인되는 고려시대 상류주택의 남성공간이 새로운 이념의 사회 즉, 조선시대에서도 일정기간 유지되었을 것이며, 이후 조선의 남성공간인 사랑채와 어떠한 관련성을 갖고 변화하게 되는지에 관한 시작점을 찾는데 본 연구의 목적이 있다.
II. 연구의 범위 및 방법
조선전기 중에서도 전반기가 사회문화적인 측면에서 고려시대의 영향에서 벗어나는 양상을 보이는 시기라고 한다면, 후반기는 성리학이 조선의 것으로 정착되어 가면서 모든 분야의 건축이 성리학이 추구하는 가치관과 세계관에 바탕을 둔 조선의 건축으로 전환되는 시기였다고 할 수 있다.3) 16세기에 들어와 소위 사림파로 지칭되는 신진사류(新進士類)들은 성리학을 심화시키고, 주자가례(朱子家禮)가 폭넓게 확산되어 갔다. 그러나 예학이 더욱 심화되는 시기는 임진왜란과 병자호란 후 정계가 대립되는 과정에서 정치적인 핵심으로 등장한 예론, 예제와 관련된 문제들이 제기되는 17세기 초·중엽으로 보고 있다(Lee, 2002). 본 연구에서는 임진왜란 이전에 건립된 것으로 알려져 있는 국가지정문화재(보물)의 별당을 연구의 대상으로 배치 및 평면의 특징을 고찰하고, 문헌사료에 기록된 남성공간과 비교 분석함으로 조선전기 상류주택에서 별당의 의미를 해석하고자 한다. 기초자료는 문화재청에서 발간된 실측조사보고서를 활용하였으며, 임청각과 독락당은 건축의 원형과 변화과정에 관한 선행연구(Kim, 2014; Lee, 2016)를 참고하였다.
Table 1.
List of Byeoldang in the Early Chosun Dynasty
II. 문헌에 나타난 조선전기 상류주택의 남성공간
조선전기에 반포된 가사제한에는 루(樓), 서청(西廳), 유차양사랑(有遮陽斜廊) 등 남성공간으로 짐작되는 건물에 관한 규제를 볼 수 있다. 주지하는 바와 같이 세종13년(1431) 최초의 가사제한은 신분별로 칸수에 관한 규제만 있던 것이, 9년 후인 세종22년에는 이전과 동일한 규모에서 특히, 루(樓)의 규모를 제한하며, 정침, 익랑과 기타건물들은 부재의 치수를 제한하고 있다. 여기에서 주목되는 것은 연회용 건물로 알려져 있는 루(樓)에 관한 규제가 서인(庶人)신분까지 미치고 있다는 것과 당시 주택을 구성하는 대표 건축물이 루와 정침, 익랑이라는 것이다. 특히, 이후의 가사제한에서 정침과 익랑에 대한 규제는 변함없이 지속되고 있으나, 성종대에 이르면 루4)의 규모에 관한 규제가 사라지고, 신분에 따라 규제하는 건물의 명칭이 달라지는데, 대군, 군·공주의 주택에서만 서청, 별실에 관한 규제가 있으며, 옹주·종친 2품 이상에서는 정방, 익랑, 기타건물만을 규제하며, 서청 및 별실에 관한 규제가 사라진다. 또한 서청에 관한 기록은 주로 왕조실록에서 찾을 수 있다. 려말 선초의 무신 우인열(禹仁烈: 1337-1403)은 태조가 즉위하기 전 사저의 서청5)에 마주앉았다고 하며, 태종도 즉위하기 전 사저의 서청에 남재(南在: 1351-1419)가 방문했던 기록이 있다. 특히 남재는 당시 정안공(靖安公)이던 태종의 집에 방문하여 서청에 앉는 것을 허락받았다6)고 기록하므로, 서청에 오르는 것을 영광스럽게 표현하고 있다. 뿐만 아니라 단종은 재위시절 숙부인 수양대군 저택에서 연회7)하였는데, 양녕대군 수양대군 등 여러 군 및 부원군 등은 서청에서 연회하였으며, 공주 및 옹주들은 익랑(翼廊)에서 연회한 것으로 기록되어 있다. 즉. 같은 날 같은 집에서 행해진 연회에서 남녀는 각각 다른 장소를 사용하였으며, 익랑은 연회가 가능한 건물이지만 서청보다는 위계가 낮은 건물임을 알 수 있다.
Table 2.
Buildings in the Early Chosun Housing Regulation
『성종실록(1492)』에는 군, 옹주의 집 침실객청(寢室客廳)에만 좋은 나무를 써야한다는 기록이 있는데, 1478년 가사제한에서는 옹주 및 2품 이상의 주택에는 정방 및 익랑의 규모만 규제하지만, 실제적으로는 침실과 객청이 주택의 중심건물임을 확인할 수 있는 사료이다. 임진왜란 이후에도 남별궁의 서청8) 및 시어소의 서청9) 등과 같이 별궁으로 사용하던 공주 및 대군 저택의 서청에 관한 기록이 있으나,『인조실록』에서는 능원대군의 객청10)이 사치스럽다는 기록이 두 차례나 등장하므로 서청과 객청의 관계를 생각해 볼 필요가 있다.
실록을 제외한 문헌사료에서 서청에 관한 기록을 거의 볼 수 없는 반면, 조선전기의 문헌에는 객청에 관한 다수의 기록이 등장한다. 명종16(1561)년 식년문과에 장원급제하여 관직생활을 시작한 최립(崔笠: 1539-1612)의 간이집(簡易集)에는 선대(先代)로부터 교우해 온 지인이 임진왜란 이후에 새로운 집터를 잡으며, 예전을 회상하는 기록이 있다. 예전에 각자의 집에서 부자간에 하나의 객청(客廳)과 서실(書室)을 사용하며, 이웃 간에 형제처럼 지내고 잔치를 열어 서로를 손님으로 초정하며 지냈으니, 새로 집이 완성되면 예전처럼 지내자11)는 내용으로 조선전기 상류주택에는 객청과 서실이라는 남성공간이 존재하였음을 알 수 있다. 임진왜란 이전 상류주택에서 객청의 의미는 유희춘(柳希春: 1513-1577)의『미암일기초(眉巖日記草)』에 상세히 기록되어 있으며, 선학들에 의해 복원적 연구(Lee, 1992; Jeong, 2003)가 진행되었다. 유희춘의 객청 평면형식은 연구자들 간에 약간의 이견이 있으나, 기본적으로는 4칸의 판당(板堂)과 2칸의 방12)으로 손님을 맞이하기 위한 대청과 책을 읽고 보관하는 서실로 쓰이며 살림채와는 별도의 영역에 구성되어 있음에는 이견이 없다. 이 외에도 중종실록에는 김안로의 객청규모를 정전과 비교한 사례13)가 있으며, 남명선생문집에는 정사현(鄭思玄)의 객청14)에 관한 시가 수록되어 있다. 또한 김덕함(1562-1636)의 시문집 성옹유고(醒翁遺稿)15)에는 접객과 연회를 위한 8, 9칸 규모의 객청을 조영하였으며, 홍서봉(1572~1645)의 학곡집(鶴谷集)에도 7, 8칸의 객청을 조영하였다16)는 기록이 있는 것으로 보아, 대략 객청은 6-9칸 규모 내외로 조영하는 것이 일반적이었던 것으로 보인다. 이러한 문헌사료를 통하여 조선 전기 상류주택에서 접객의 주거문화 및 객청의 조영이 중요하게 인식되었음을 확인할 수 있다. 또한 객청은 판당 즉, 당(堂)과 방(室)으로 구성되는데, 당은 연회와 접객을 위한 공간으로 마루가 시설되어 있으며, 방은 학문과 휴식을 위한 온돌방이었을 것으로 짐작된다.
최근 문헌에 기록된 접빈객(接賓客) 및 연회의 주거문화에 주목하여 유구가 없는 고려시대의 주택을 고찰한 일련의 연구에서, 일상의 접빈객과 시주연(詩酒宴) 그리고 가절(佳節)의 연회 및 수양과 참선을 위해 남성공간의 양상을 분석한 연구성과17)가 발표되었다. 특히, 고려후기 상류주택의 당(堂)은 가장의 사적공간이자 사회적 공간으로 청(廳) 혹은 청사(廳事)로 기록되기도 하는데, 내부를 구획하여 접빈객을 위한 2칸의 청사와 참선을 위한 1칸의 불실로 구성하였다는 유가당18)은 조선전기 유희춘의 객청과 공간구성 및 쓰임이 유사하다. 이규보(李奎報: 1168-1241)의『동국이상국집』에는 유가당에 관한 몇몇 기록이 있으며, 어느 시기에 남성을 위한 별동의 건축물이 건립되기 시작했는지는 알 수 없으나, 이규보의 생몰연대로 보면 적어도 13세기의 일부 상류주택에는 학문과 접객을 위한 남성공간을 갖추었던 것으로 판단된다. 이와 같은 고려시대의 주거문화는 새로운 왕조인 조선전기까지 지속되었음을 문헌사료를 통하여 확인할 수 있다.
III. 조선전기 상류주택 별당 사례
1. 조선전기 상류주택 별당의 배치
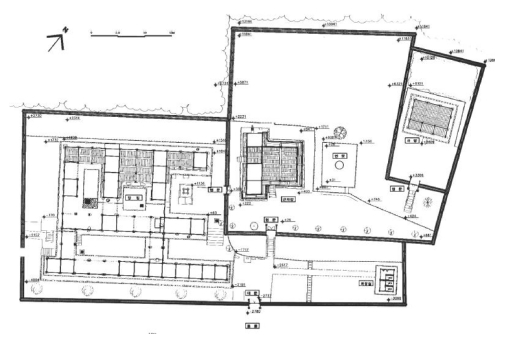
조선전기 상류주택 별당 가운데 비교적 살림채가 온전하게 보존되어 있는 사례는 군자정과 독락당이 있다. 몇 차례의 중수 기록이 있으나, 살림채와 별당의 위치는 크게 변화하지 않았을 것으로 판단되므로 본 장에서는 먼저 군자정과 독락당의 배치에 관하여 살펴보고자 한다.
1) 군자정(1519, 경북 안동)
임청각은 고성 이씨의 법흥종택(法興宗宅)으로 원래는 현재의 군자정을 가리키는 명칭이었으나, 지금은 주택의 전체 건물군을 포괄하는 의미로 사용되고 있다.19) 1767년 이종악(李宗岳: 1726-1773)이 작성한 임청각중수기(臨淸閣重修記)에 따르면 고성 이씨 안동 입향조 이증(李增: 1419-1480)의 셋째아들 이명(李洺)은 안동부 동쪽 법흥사의 서쪽 비탈에 별업(別業)으로 처음 군자정을 지었다.
군자정은 1519년에 창건되었으며, 군자정을 일상의 거처로 삼은 것은 이명의 6째 아들 이굉(李肱)에서 부터였다. 중수기에는 임진왜란 때에 임청각에 머물던 명군의 실화로 살림채(內舍)가 다 탔으나, 군자정은 타지 않았다는 구전을 기록함과 더블어, 살림채(內舍)는 1626년에 다시 지었으며, 이때 군자정도 수리가 있었던 것으로 기록하였다. 그러나 최근 이종서는 임청각의 건축이력과 원형가구(架構) 추정에 관한 연구(Lee, 2016)에서 여러 문헌사료를 근거로 안채는 임진왜란 때의 화재로 동쪽 익랑의 일부가 소실되었을 가능성이 크며, 이후의 몇몇 화재에도 부분적인 수리와 개조가 있었을 뿐 배치와 평면규모의 변화는 없었던 것으로 분석하였다. 군자정은 1767년 중수기에서도 가구(架構)와 벽체, 창호, 기단 등의 훼손 부분만을 수리하고, 서측 실의 구성만 약간 바꾸었으며, 이후 안채와 동선을 연결하기 위한 마루가 시설된 것 외에 평면의 변화가 거의 없이 현재에 이르고 있다.
낙동강과 문필봉, 낙타산 등 넓고 수려한 조망을 확보한 별업으로 창건된 군자정은 좌측에 살림채가 건립되고, 살림채와는 병렬배치로 별원의 남성공간으로 변화되었으며, 초기의 영역을 현재까지 유지하고 있는 것으로 판단된다.
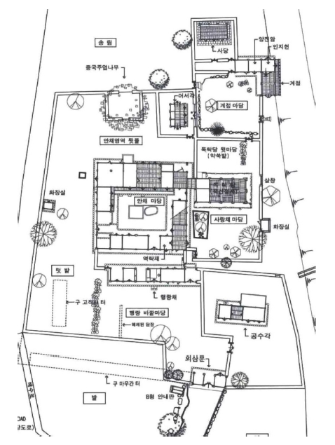
2) 독락당(1532, 경북 경주)
독락당은 회재(晦齋) 이언적(李彦迪: 1491-1553)이 김안로(金安老)의 등용을 반대하다가 파직(1531년)된 후 고향으로 돌아가 은거하며 지은 별당이다. 회재는 좌천 후 본가인 양동마을의 무첨당으로 돌아가지 않고 둘째부인인 석씨의 살림채가 있는 옥산동에서 생활하였으며, 1532년 독락당과 계정을 창건하였다. 독락당의 살림채는 1515년 석씨의 재력으로 만들어졌다고 전해지고 있으므로, 독락당과 계정이 건립되었던 1532년 회재가 석씨부인과 함께 생활하던 주택은 살림채 영역과 독락당 영역, 계정 영역으로 적어도 3개 이상의 영역으로 구성되었음을 알 수 있다.『회재집(晦齋集)』부록에는 퇴계 이황의「회재이선생행장(晦齋李先生行狀)」이 선집되어 있는데, 독락당의 건립 배경을 살펴 볼 수 있다. 회재는 파직되어 돌아온 후 경주의 서북쪽 자옥산에 터를 잡고 봉우리와 골짜기가 수려하며, 계곡과 연못이 맑고 깨끗한 것을 사랑하여 집(室)을 지어 거처하면서 그 당을 독락당(獨樂堂)이라고 이름을 붙였다. 그리고 소나무와 대나무, 화초를 심고 매일 시를 읊고 낚시하며 세상일을 사절하고, 방(室) 안에 단정히 앉아 좌우의 도서를 정밀히 연구하고 깊이 사색하니, 고요한 가운데서 이룬 공부가 이전에 비해서 더욱 깊고 전일하게 되었다20)고 한다.『회재집』의「문원공회재선생 연보 11년 임진 선생42세(文元公晦齋先生年譜 十一年壬辰先生四十二歲)」에도 유사한 내용의 기록이 있으며, 회재가 젊은 시절부터 자옥산의 봉우리와 골짜기를 사랑하여, 오랜 시간이 걸려 독락당을 완성하였다고 한다. 즉, 독락당의 주요기능은 참선과 독서 등을 통한 학문의 수양인데, 고려 말의 허정당(虛靜堂)21), 송월당(松月堂)22), 청심당(淸心堂)23) 등의 기문에 기록된 남성공간과 유사하다. 전술한 바와 같이 고려시대 주택에 관한 선행연구(Lee, 2007)에서는 거처(居 혹은 第)에 실(室)을 두고 연못과 화초를 심어 외부공간을 조성한 송월당, 청심당 등을 살림채와 별도로 구성된 별원으로 추정하고 있는데, 독락당의 건립 배경과 공간구성은 문헌에 기록된 고려시대 주택의 남성 공간(堂)과 거의 일치하는 것으로 판단된다.
2. 조선전기 상류주택 별당의 평면유형
1) 루(樓)+청(廳)+실(室)의 유형
(1) 무첨당(1540, 경북 경주)
무첨당은 회재(晦齋) 이언적(李彦迪: 1491-1553)의 살림채 일곽에 건립된 별당이다. 무첨당 살림채는 선친인 이번(李藩: 1463-1500)이 작고하기 전, 1490년 경에 건립되었을 것으로 추정되기도 하며, 1508년 이언적이 부인 박씨를 맞이하고, 1510년에는 어머니 손씨가 친정으로부터 물려받았으므로, 1508-1510년 사이에 건립되었을 것24)으로 보기도 한다. 별당인 무첨당은 살림집보다 훨씬 후대인 경상감사 시절 1540년경에 건립된 것25)으로 알려져 있으나, 건립 및 중수에 관한 기록을 찾을 수 없다. 무첨당은 정면3칸 측면2칸의 대청을 중심으로 좌우에 정면1칸 측면2칸의 온돌방이 있으며, 좌측 온돌방의 남측으로 2칸의 누마루가 있다. 대청 및 누마루와 인접한 온돌방의 창호는 모두 들어열개가 설치되어 있다.
(2) 소호헌(1520, 경북 안동)
소호헌은 중종조의 학자 함재(涵齋) 서해선생이 명종(1545-1567) 때 지은 것으로 알려져 있다. 평면은 一자형의 본 건물이 좌측 3칸은 대청, 우측1칸은 루마루 형식이며, 앞쪽으로 2칸의 온돌방이 덧붙여진 丁자형 평면이다.
6칸 대청은 사면에 모두 창호가 설치되어 폐쇄적인 공간으로 구성되었는데, 대청과 누마루가 연결되는 곳은 중앙에 세살분합문을 두어 출입할 수 있게 하였으며, 그 외의 삼면은 설주가 있는 영쌍창으로 모두 판문이 설치되어 있다. 2칸 온돌방은 진입마당을 향하는 쪽에는 누마루와 연결되는 툇마루를 설치하고, 머름이 있는 창문과 외여닫이 세 살문을 두어 대청을 거치지 않고 직접 출입할 수 있도록 계획되었으며, 후면에는 쪽마루가 설치되어 있다.
2) 청(廳)+실(室)의 유형
(1) 숭렬당(1433, 경북 영천)
숭렬당은 세종조의 명장 위양공(威襄公) 이순몽 장군이 연회하고 휴식하던 기거처(燕息起居之廳)이다. 현재는 숭렬당만 남아 있으나, 기문에 ‘정침을 만들고 행랑을 만드니 내외의 제도가 분별되었으며(爲寢爲廊而內外之制辨矣) 방을 만들고 마루를 만드니 따뜻하고 서늘한 기온이 맞았다(爲室爲堂而喧凉之候)’고 기록되어26), 숭렬당(廳)과 함께 정침(寢)과 익랑(廊)이 동시에 건립되었음을 알 수 있다.
정면5칸 측면3칸의 숭렬당은 정면3칸의 대청을 중심으로 좌우에 정면1칸 측면2칸의 온돌방이 좌우에 배치되어, 공간구성은 전퇴형 평면으로 볼 수 있으나, 측면3칸의 규모가 거의 비슷하므로. 칸의 구성은 전후퇴칸으로 보기 어렵다. 좌우의 온돌방 전면은 두 짝 여닫이문이 설치되어 있으며, 대청에 면한 벽체에는 한 칸에는 창이 설치되어 있으며, 다른 칸에는 두짝 여닫이 출입문이 설치되어 있다. 즉, 방에서 대청 쪽으로 창문이 설치되어 있는 구조이다.
(2) 군자정(1519, 경북 안동)
전술한 바와 같이 군자정은 창건이후 구조적으로 큰 변화 없이 현재까지 유지 되었으며, 중수기에는 1519년 별업으로 창건된 후 주택으로 정착되었음을 적시하고 있다. 군자정의 평면은 대청에 접한 두 칸이 실(室)이며, 남북으로 확장된 익랑이 각각 협실과 수장공간27)으로, 현재의 평면형태가 초창에서부터 유지되어 왔다. 다만 어느 시기엔가 익랑에 구성된 실(室)이 남측에 두칸의 온돌방과 북측에 한 칸의 온돌방이 구성되고, 온돌방 사이에 마루방이 있는 현재의 평면으로 변화되었으며, 이때 각 실을 구성하는 창호도 변화가 있었을 것으로 추정된다. 현재 대청에 접한 서측의 익랑은 모두 분합문이 설치되어 들어 열수 있는 구조로 되어 있다. 1767년 수리에서도 대청에 면한 두칸이 온돌방으로 기록되어 있으므로, 현재와 같은 실의 구성과 창호는 적어도 18세기 후반에 수리된 형식이다. 반면 정면2칸 측면2칸의 대청은 익랑에 면한 부분을 제외하면 모두 심벽으로 출입문만 세살청판문으로 되어 있고, 그 외에는 모두 영쌍창에 판문이 설치되어 있는 폐쇄적인 공간이다. 이러한 벽면구성과 창호형식은 별업으로 창건된 이래 현재까지 유지된 것으로 판단된다.
(3) 오죽헌(1520, 강원 강릉)
오죽헌은 1996년 복원된 안채와 곳간채 등의 살림채 영역 우측에 배치되어 있다. 남서향의 살림채와는 직교축으로 배치되어 있으며, 평면은 정면2칸, 측면 2칸의 대청과 정면1칸 측면1칸 반의 온돌방으로 구성되어 있다. 온돌방의 후면에 반 칸의 툇마루가 구성되어 있으나, 툇기둥을 사용하지 않고 공간을 구획하였다. 4칸의 대청은 전면만 세 살청판문이 설치되어 있으며, 좌측면과 후면은 심벽에 머름이 있는 판문이 설치되어 폐쇄적인 공간이다. 온돌방은 대청마루에 면하여 두 개의 외여닫이문이 설치되어 있는데, 문의 높이가 현저하게 차이가 나므로, 하나는 출입문으로 하나는 창문으로 보는 것이 타당할 것으로 생각된다. 창문으로 보이는 높이가 낮은 문은 현재와 같이 수리되기 전에는 바닥으로부터 심벽이 있고 그 위에 문이 설치되어 본래 외짝 창이었음을 알 수 있다.
(4) 해운정(1530, 강원 강릉)
해운정은 어촌 심언광이 강원도 관찰사 재임 중(1530년)에 처음 지어졌으며, 그 후손에 의하여 영조37(1761)년에 중수되었다. 이후로 여러 차례 보수가 이루어진 흔적들이 보이지만 정확한 시기는 확인하기 어렵다. 창건시의 살림채는 유구와 기록이 남아있지 않지만, 해운정 뒤편 언덕 너머에 있었다고 한다28). 현재 해운정의 좌측으로 17세기에 창건된 것으로 알려져 있는 심상진 가옥(강원도 유형문화재 79호)이 있으며, 가옥이 건립된 후 해운정은 심상진 가옥의 별당으로 사용되었다.
해운정은 정면3칸 측면2칸으로 사면에 쪽마루가 설치되어 있다. 4칸의 대청은 정면에만 사분합세살청판문이 설치되어 있으며, 우측면과 배면은 심벽의 중앙에 판문이 달린 영쌍창을 설치된 폐쇄적인 공간이다. 대청에 접한 온돌방의 벽체에는 외짝 여닫이 문과 영쌍창이 있다. 또한 온돌방의 전면은 두짝 여닫이 세살문이 설치되어 쪽마루에서 대청을 거치지 않고, 온돌방으로 출입할 수 있다.
(5) 독락당(1532, 경북 경주)
현재 독락당의 평면은 정면4칸 측면2칸이며, 좌측에 2칸의 온돌방이 있고, 우측에 6칸의 대청이 있다. 6칸 대청의 우측 2칸도 방으로 사용한 흔적이 있으므로, 원래는 가운데 2칸이 대청이었으며, 좌우로 1칸의 방이 있는 평면이었다는 것이 중론이었다. 그러나 최근 김도경(Kim, 2014)은 권우(權宇, 1552-1590)의 문집인『송소집(松巢集』 등의 문헌사료와 기둥의 배열, 기둥 상부의 짜임, 마루 구조 등을 통해 창건당시 독락당은 정면3칸 측면2칸 규모로 서쪽 2×2칸이 대청이었으며, 동측 1×2칸은 온돌방이었을 것으로 추정하였다. 이 경우 살림채와 독락당은 충분한 거리가 확보되므로 지붕도 완전한 팔작지붕이 될 수 있다. 또한, 실측조사보고서29)에서 안채와 독락당 사이에 있는 한 칸 규모의 마루방의 상량문에는 숭정기원후(崇禎紀元後) 3년 즉 1630년 입주와 상량의 기록이 있는데, 이때 마루방 뿐 만 아니라 서쪽의 1×2칸의 온돌방이 중수되어 현재와 같은 평면이 완성된 것으로 보았다. 문헌사료 및 칸의 구성방식 등으로 보아 합리적인 추정으로 판단된다.
현재 정면3칸의 대청은 배면과 우측면에 모두 머름이 있는 영쌍창에 세살창이 설치되어 있으며, 정면에도 우측 칸을 제외한 두 칸에는 문설주가 남아 있으므로 본래는 폐쇄적인 공간이었음을 알 수 있다. 1630년 중수되었을 것으로 추정되는 좌측의 온돌방은 전면에는 대청마루와 동일한 형식의 영쌍창이 설치되어 있으며, 대청마루에 접한 벽체에는 출입문과 영쌍창이 설치되어 있다.
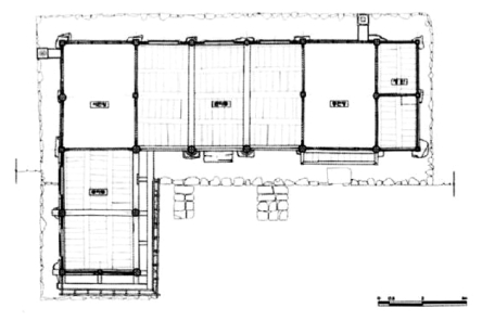
(6) 만취당(1584, 경북 의성)
만취당은 퇴계 이황의 제자 김사원(金士元, 1539-1601)이 1582년에 짓기 시작하여 1584년에 완공되었다. 이상정(李象靖: 1710-1781)의『대산집(大山集)』에 편집된 「만취당 김공행장(晩翠堂金公行狀)」에는 김사원이 집의 서쪽 소나무 아래 작은 당(堂)을 짓고 만취라는 편액을 걸었다30)는 기록이 있는데, 현재 만취당은 안동김씨 도평의공파 종택의 서측에 위치하고 있으며, 종택의 연혁도 비교적 명확하게 전해지고 있으므로, 종택의 별당으로 창건된 것으로 보아 무리가 없을 것으로 판단된다31).「만취당 중수기」32)에 따르면 만취당은 연회(遊燕)와 학업(講敦肄)을 위한 공간으로, 임란이후 쇠락하여, 1727년에는 예전의 규모에 따라 휴식을 위한 침실33)을 세웠으며, 1764년 서쪽으로 작은 실을 만들었다고 한다. 복재라는 현재의 침실을 구제(舊制)에 따라 세웠다는 기록을 증축으로 보면, 창건당시 만취당은 동편 마루를 포함하여 정면4칸 측면2칸의 ‘一’자형 평면이었으며, 현재 마루부분이 실(室)이었을 가능성이 크다. 현재 복재는 대청측으로 창문이 설치되어 있다.
IV. 조선전기 상류주택 별당의 건축적 특징
조선전기 상류주택의 별당은 시대가 변화함에 따라 기능 및 주변경관이 변경되기도 하였지만, 건축형식은 대부분 원형을 유지하며 현재에 이르고 있다. 앞에서 살펴본 바와 같이 군자정을 제외하면 당(堂), 정(亭), 헌(軒) 등 창건시의 당호가 현재까지 사용되며, 만취당, 무첨당, 소호헌, 군자정 등은 전체 혹은 일부가 루의 형식임에도 당, 헌 등의 당호를 가지고 있다. 이는 조선전기의 가사제한에서 루의 규제가 사라진 이후에도 여전히 루의 기둥길이(樓柱長)를 규제하는 것과 밀접한 관계가 있는 것으로 보이며, 앞으로 연구되어야 할 과제이다. 한편, 고려시대 주택에 관한 선행연구(Lee, 2008)에서는 당, 정 등 중심 건물의 건축형식에 따라 외부공간의 구성에도 일정한 규범이 있는 것으로 분석되었으나, 현존하는 조선전기 별당은 사례의 부족과 경관의 변화로 외부공간의 유형분류에는 어려움이 있다.
1. 별원(別院)의 공간구성
지금까지 살펴본 바와 같이 문헌에 기록된 조선전기 별당의 기능은 주로 독서와 참선, 회합(朋集)과 연회이다. 주요 기능은 서로 대비되는 측면이 있음에도 공간계획에서 가장 중요한 요구사항은 프라이버시의 확보와 적정한 외부공간일 것이다. 본 연구의 대상인 조선전기의 별당 가운데 창건당시 살림채와 위치관계를 확인할 수 있는 사례는 임청각과 독락당 그리고 무첨당과 만취당이다. 전술한 바와 같이 만취당 종택은 1576년 창건되고 한국전쟁 후 재건되었으나, 연혁이 비교적 명확하게 전하므로 현재의 위치는 변함이 없는 것으로 짐작된다. 다만 최근까지 만취당의 외곽담장은 변화가 있었으므로, 창건시 만취당과 종택의 외부공간을 파악하기는 어렵지만 문헌기록에 비추어 보면 두 영역 위치는 변화가 없었던 것으로 보인다. <Figure 11>에서 보는바와 같이 만취당과 종택은 가로로 장방형의 대지를 병렬로 구획하고 있다. 앞장에서 살펴 본 군자정과 독락당 역시 살림채와 별당을 병렬로 배치하고, 담장으로 각각의 영역을 구획하고 있으며, 담장이 설치되지 않은 무첨당 또한 살림채와 병렬로 배치되어 있다. 따라서 안채와 별당은 각각의 동선으로 영역의 독립성을 확보한다. 이러한 공간계획은 조선전기 별당이 살림채와의 연계보다 남성의 개인 및 사회적 공간으로서의 기능을 중요하게 인식한 결과로 볼 수 있다.
2. 실내공간의 전용성(專用性)
조선전기 상류주택 별당은 <Table 3>에서 보는바와 같이 대부분 두 칸의 온돌방과 네 칸 혹은 여섯 칸의 마루로 구성되어 있다. 숭렬당과 무첨당의 경우 정면 3칸 측면 2칸의 개방된 대청을 중심으로 좌우에 정면 1칸 측면 2칸의 온돌방이 구성되어 있다. 숭렬당과 무첨당을 제외하면 그 외의 모든 사례는 대청에 모두 벽체와 창호가 설치되어 있는데, 현재 전면이 개방되어 있는 독락당과 만취당에도 문선이 남아 있으므로 본래는 폐쇄적인 공간이었음을 알 수 있다. 지역적·시대적 차이는 있으나, 한국 전통주택에서 대청마루는 대체로 전면을 개방하는 것이 보편적이라 한다면, 조선 전기 별당의 경우 모든 벽체가 폐쇄적으로 구성되며 특히 심벽구조의 벽체에 판문이 설치되어 있는 것은 시대적 특징으로 볼 수 있다.
Table 3.
Space Composition of Byeoldang
| No | Name | Floor | Room | Remark |
|---|---|---|---|---|
| 1 | Sungiyeoldang | 3×2 | (1×2)×2 | Jeontoe |
| 2 | Ojukheon | 2×2 | 1×2 | |
| 3 | Imcheonggak | 2×2 | 1×2 | |
| 4 | Haeunjeong | 2×2 | 1×2 | |
| 5 | Dokrakdang | 2×2(3×2) | 1×2 | |
| 6 | Mucheomdag | 3×2 | (1×2)×2 | Ru 1×2 |
| 7 | Manchuidang | 3×2 | 1×2 | |
| 8 | Sohoheon | 3×2 | 1×2 | Heon 2×1 |
또한 대청마루와 연접한 온돌방의 창호를 들어열개로 설치하는 가변형의 공간구성은 한국전통주택의 대표적인 특징 가운데 하나이지만, 본 연구의 대상에서는 건축의 변화과정을 전혀 알 수 없는 무첨당과 18세기 중수과정에 창호가 변경된 것으로 알려진 군자정만 가변형의 맹장지문이 설치되어 있다. 그 외의 모든 사례는 대청마루에 면한 두 칸 온돌방의 벽체에 한 칸에는 창이 설치되어 있으며, 다른 한 칸에는 출입문이 설치되어 있다. 또한 마당 쪽으로도 출입문이 설치되어, 대청마루를 거치지 않고도 외부에서 직접 온돌방의 출입이 가능한 사례도 볼 수 있다.
이러한 창호의 형식은 대청과 온돌방이 필요에 따라 분할과 확장이 가능한 공간이 아니라, 각각의 기능에 맞게 계획된 전용공간이었음을 확인시켜주는 요소라 할 수 있다. 접객을 위한 대청과 학문을 위한 온돌방을 하나의 평면으로 구성하면서, 외벽은 물론 실을 구획하는 내벽을 모두 심벽구조로 하여 출입문과 창문을 설치하므로 각 공간의 전용성을 확보하는 건축형식은 조선전기 별당의 기능에 따른 계획요소라 할 수 있다.
V. 결 론
현존하는 조선전기 별당의 중수기 등 관련 문헌사료를 보면 학문수양과 접객을 위해 주택에 마련된 남성의 개인적 공간이자 사회적 공간으로 기록되어 있다. 이들은 대부분 4-6칸의 대청과 2칸의 온돌방으로 구성되어 있는데, 당(堂)·정(亭)·헌(軒) 등의 당호를 가지고 있음에도 특정한 건축유형과 무관하게 모두 유사한 평면형식이다. 특히 대청과 온돌방을 분할하는 실내벽체에 출입문과 창이 설치되어, 방과 대청은 가변성이 없는 공간의 전용성을 갖는다. 또한 대청에도 모두 심벽의 벽체가 설치된 사례가 많아 사계절 사용을 위한 폐쇄적인 공간으로 계획되었음을 알 수 있다. 살림채가 현존하는 경우 별당은 살림채와 별원(別院)을 구성하며 좌우로 병렬 배치되어 별도의 동선을 구성하므로 각 영역의 프라이버시가 확보된다.
주지하는 바와 같이 한국 전통주택의 대표적인 남성공간은 사랑채이며, 사랑채의 확장은 남녀구별의 성리학적 가치관의 정착과정으로 해석되어 왔다. 그러나 현존하는 조선전기의 별당은 성리학적 남녀구별의 공간이라기보다, 학문수양 및 접객과 같은 특정한 기능을 위해 살림채와 별도의 영역으로 계획되어 일부 상류주택에서 고려시대부터 유지되어 온 남성공간으로 사료된다. 즉, 조선전기 상류주택은 남성공간의 측면에서 보면 이전시기 상류층의 전통이 계승된 기능 중심의 별당형 주택과 새로운 가치관이 수용된 남녀구별의 사랑채형 주택이 공존하던 시기라 할 수 있다. 이후 현존하는 임진왜란 이전의 상류주택 사랑채와 조선후기 사랑채 및 별당의 기능과 건축형식의 비교연구를 통하여 한국 전통주택에서 남성공간의 통사적 연구를 진행하고자 한다.













