I. 서 론
1. 연구의 배경 및 목적
2. 연구의 내용과 방법
II. 선행 연구
III. 조선후기의 사회적 변동과 주택 변화
IV. 전통주택 평면 유형과 공간구성 특성
1. 주택의 안채 평면 개요와 특성
2. 一자형 주택 안채 특성
2. ㄱ자형 주택 안채 특성
3. 충북지역 안채의 지역성
4. ㅁ자형 주택의 안채와 사랑채 영역 특성
5. 서민주택의 사랑공간 규모 특성
V. 결 론
I. 서 론
1. 연구의 배경 및 목적
전통주택은 자연적 환경과 함께 지역성은 물론 거주자의 사회적 의식이 주택 규모나 실의 연결 방법 등으로 계층성이 드러난다. 이러한 맥락에서 보면, 조선 후기 이후의 변동이 많았던 사회적 상황에서 사대부가 아닌 중농층 주택 규모 이하의 경우 많은 변형이 진행되었으나, 이와 관련된 연구는 상대적으로 많지 않은 상황이다.
조선 후기 신분 변동으로 거주자의 사회적 입지가 달라졌다. 이러한 변화는 당시 서민의 신분 변화나 경제적 능력이 개선됨에 따라 주택도 자연스럽게 변화가 나타났다고 짐작해 볼 수 있다. 이러한 전통주택의 변화는 사회적 공간인 사랑방이나 사랑채를 포함해 표면화될 것이라 예상되며 특정 지역성과는 다른 차원의 변화가 광범위하게 나타났을 것이다. 이는 일반화된 사실이지만, 학계에서는 구체적인 연구 결과는 부족한 상황이다. 이는 전통주택의 미세한 공간 변화에 관한 구체적인 연구가 부족한 이유는 거시적 단위의 지역 민가연구나 미시적인 마을 단위의 연구가 주류를 이루고 있었기 때문이라 판단된다. 또한 서민이 살았던 과거의 전통주택의 원형이 흔적들이 급속하게 사라져가고 있어 다수의 실측 주택을 대상으로 심층적인 연구를 진행하는데 다소 한계가 있기 때문이라고 판단된다.
이러한 배경에서 본 연구는 김홍식 교수가 1970년부터 2000년대까지 전국의 1,600여 건의 현장실측조사 자료1)를 활용하였다.
이를 캐드(CAD) 도면으로 재작성해서 전통주택 평면유형 계통별 상호간의 관계와 조선시대에서 안채에 사랑방이 있는 주택과 사랑채가 있는 주택 그리고 사랑공간이 없는 주택에 대한 평면구성 특성과 생활상에 대해 종합적인 해석을 하고자 하였다<Figure 1>.
본 연구를 통해 조선 후기에 나타난 다양한 주택의 변화상에 대해 객관적인 학술적 자료를 구축하고, 이를 기반으로 향후 다른 지역에서 존재하고 있는 전통주택 변화상 비교 연구나 전통주택의 현대적 계승을 위한 후속 연구를 위한 자료를 구축하는데 다소나마 도움이 되고자 한다.
2. 연구의 내용과 방법
본 연구의 방법은 선행 연구 도면 자료 중에서 반가와 민가가 유사한 숫자로 적절히 조사되어 있고, 비교적 자료가 많이 채집된 충청북도 지역을 대상으로 중농층 이하의 서민 주택 총 76채(一자형집 51채, ㄱ자형집 27채)와 지배계층이 주로 살았던 ㅁ자형집 20채 등, 총 96채를 연구 대상 한정해서 평면 유형과 전면 칸수, 홑집과 겹집 유형으로 분류<Table 1>하기 위하여 스케치 도면을 모두 전자도면으로 작성3)해서 시각적인 계열도로 작성해 상호간 특성을 분석하였다<Table 2><Table 3><Table 4>.
Table 1.
List and Location Map of Traditional Houses in Chungcheongbuk-Do
연구 내용은 첫째, 안채에 사랑방이 없는 전통주택의 평면 지역 분포를 통해 전통주택 지역성을 도출하였다.
둘째, 안채에 사랑방이 있는 전통주택의 평면 구성을 일(一)자형과 ㄱ자형4) 및 홑집과 겹집계열로 안채를 중심으로 공간 구성을 시각적으로 계열화해서 주택 평면 간의 변화 질서와 실 구성간의 차이를 도출하였다. 이때, 사랑방이 있는 안채와 사랑채가 있거나 사랑 공간이 없는 전통주택 평면을 계열적 비교를 통해 안채에 사랑방 공간을 부가하게 되며 나타나는 여러 변형적인 주택 형태를 도출하였다.
셋째, 조선 후기의 농경사회에서 형성된 전체 주택 중에서 안채, 사랑채, 부속채로 구성된 주택 규모와 안채와 사랑공간 규모를 분석해서, 서민들이 기거하고 있었던 생활상을 지역과 주택 규모별로 유추하였다.
넷째, 사랑방이 있는 중농층 이하 서민주택의 안채와 지배계층의 사랑공간을 비교하기 위해 조사된 충청북도 지역의 반가(班家)라 볼 수 있는 튼ㅁ자나 ㅁ자형 주택의 안채와 사랑채 영역의 특성을 분석해서 서민주택과의 차이를 비교하였다.
II. 선행 연구
전통주택의 사랑채 공간에 대한 연구는 전통 주거에 있어서 안채와 사랑채의 분화 과정에 대한 연구(Kim & Joo, 1996)가 있고, 조선시대 상류 주택의 별동형 사랑채 연구(Ryu & Kang, 2001)나 사랑채의 지역성에 관한 연구(Youn & Cho, 1998)가 수행되었다. 안동 문화권의 뜰집을 대상으로 안채와 사랑채 간의 경계구조와 영역성, 분리된 영역과 출입 동선, 안마당의 폐쇄성을 분석한 연구(Kim & Kim, 2002)와 경남지역의 ㄱ자형 사랑채만을 대상으로 공간구성을 분석한 연구(Park, 2009) 등 공간 구조상의 물리적 특성과 관련된 연구가 많이 수행되었다. 반면 영주 적서동 건물지 유적을 통해 건축 과정이나 사랑채와 관련된 생활상 연구(Kim, 2006)가 있고, 임청각(臨淸閣) 등 문화재급의 단일 건축물 내의 사랑채 공간에 대한 연구(Lee, 2016)도 진행되었다.
이 외에도 16세기 영남 사림의 건축관의 시각에서 풍류 공간으로서의 사랑채를 포함한 정신세계로서의 공간을 비교한 연구(Youn, 2004)과 유교(儒敎) 수용과정에서의 남성공간으로서의 사랑채를 대상으로 한 연구(Youn, 2005) 등 유교나 문화적 바탕에서 사랑공간을 분석한 연구 결과가 있다.
이상의 선행 연구는 반가에서 발달된 사랑채에 대한 연구에 집중되어 있으나, 본 연구에서는 서민주택의 안채에 부가되어 있는 사랑방으로 인한 안채 구성의 변형이나 특수성을 연구하는데 차별성을 둘 수 있다.
III. 조선후기의 사회적 변동과 주택 변화
조선 사회에서는 성리학이 사회적 규범으로 자리 잡으며,조선의 주택은 유교(儒敎)의 가르침을 실천하는 공간으로 정착되기 시작하였다. 주택은 유교적 사회인 남녀유별, 장유유서, 상하 위계 등의 생활 질서가 가능한 공간으로 자리 잡게 되었다. 이를 위해 전국적으로 사당(祠堂) 설치와 사랑(舍廊)공간의 확대로 조상을 위한 가례가 일상화되었고, 이 외에도 대청이나 온돌식 아궁이가 정착되며 안채와 사랑채의 분화와 함께 조선 후기의 주택은 조선 초기의 주택 모습과 달리 변화가 나타났다고 볼 수 있다.
조선을 이끄는 선비나 과거에 급제한 지배계층인 사대부(士大夫)의 등장으로 600년간 조선왕조가 지속되었는데, 지배 계층인 사대부는 양반 계층에 속한다. 이들 지배계층은 조선을 개국한 태조가 고려 말기에 권문세족들이 소유하고 있던 토지를 몰수하여 국가가 관리하던 토지를 양반들에게 지급하였고, 노비 소유와 관직 진출은 물론 세금 면제와 상업 활동까지 허락하며 사회적, 경제적으로 안정된 지배계층으로 활동하였다. 조선 초기의 양반 계층은 당시의 전체 인구의 약 1~2%에 불가하였다.
하지만 임진왜란(1592~1598)과 병자호란(1636~1637)을 거치며 지배계층에 대한 위계가 느슨해졌고 영·정조시대(1724~1800) 등 상공업이 발달과 저수지와 수로 개발로 이모작(二毛作) 시행이 가능해져 부농층의 증가와 상공업이 발달하며 경제력을 가진 서민과 양반 사이에 신흥계층이 나타나기 시작하였다. 백성 중에서 경제력을 가진 계층은 상공업이나 농사 등 경제활동에 대해 경쟁력이 취약한 몰락한 양반 계층이 아니라 경제력을 배경으로 새로 득세를 한 중인, 상인이나 부농 계층이 나타나게 되었다. 이들 일부는 매관매직, 족보매매 등으로 양반 신분에 대한 사회적 관념이 해체되는 과정에서 대구부 호적조사에 의하면 1760년에 9.2%의 양반호가 1858년에는 70.3%로 급격히 증가했다 5).
이러한 상황에서 서민의 계층 변동과 함께 주택 규모의 증대나 지배계층으로의 상층지향적인 주거 욕구 등 주택 형태나 공간구성의 변화도 예측된다. 이에 본 연구에서는 마을 사람이나 손님과 먼 친척 등 접대를 하는 사회적 공간인 사랑방을 중심으로 안채의 구성을 살펴보고자 한다.
IV. 전통주택 평면 유형과 공간구성 특성
1. 주택의 안채 평면 개요와 특성
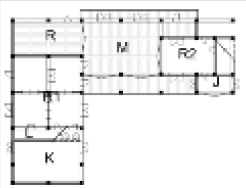
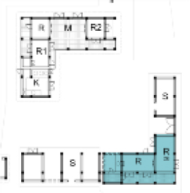
충청북도 지역에서 전체 조사된 안채 98채 중에서, 평면 유형이 일(一)자형이 51채, ㄱ자형이 27채, ㅁ자형 주택(이하 튼ㅁ자집과 ㅁ자집 포함) 20채로 분류되었다. 이 중에 ㄷ자형과 특수형(T자형)은 각각 1채가 포함된다. 연구 대상 전통 주택의 평면 유형별 지역 분포는 다음 <Figure 2>와 같다.
전통주택 평면을 사랑 공간을 분석하기 위해 사랑공간 유무와 구성 방법에 따라 다음과 같이 3가지 패턴으로 구분하였다. 첫째, 사랑채와 안방에 사랑방이 없는 패턴(A Pattern), 둘째, 사랑채가 없어서 안채에 사랑방이 있는 패턴(B Pattern), 셋째, 사랑채가 있는 패턴(C Pattern), 안채와 사랑채가 안마당을 중심으로 배치되거나 용마루로 연결 ㅁ자형 주택 등 4가지 유형(D-Pattern)으로 구분해서 세부적인 분석을 진행하고자 하였다<Figure 3>.
이러한 기준으로 분포를 ㅁ자형 주택을 제외하고 분석하면, 안채가 남부형(영남형, 남동해안형, 호남형 등) 일(一)자형인 사례가 35채이고 이중 민가 유형의 가장 기본이 되는 전면 3칸 민가(K-R1-R)형 15채를 제외하면 20/47(43%)채를 차지하고 있다. 반면 중부형 민가 유형인 ㄱ자형 주택은 27/47(57%)채를 차지하고 있어, 충청북도 지역의 경우 중부형과 남부형 민가가 혼재되어 있는 지역이라 볼 수 있다.
일자형 안채는 전체로는, 홑집이 24채, 겹집이 8채 총 32채가 조사되었다. 안채의 전면 칸수(Bay) 구성은 3칸의 경우 홑집이 14채, 겹집이 5채 등 총 19채이고, 전면 4칸은 홑집이 12채, 겹집이 1채 등 총 13채이고, 전면이 5칸의 경우 홑집이 10채, 겹집이 5채 등 총 15채이고, 전면이 6칸의 경우 홑집이 3채, 겹집이 3채로 총 4채이다. 일자형 안채의 규모가 큰 경우, 좌우 방향으로 공간이 증식되다가 이후 6칸 이상으로 확장되지 않고 후면부에 칸 수를 증식시켜 용마루를 그대로 두고 주택의 전면이나 후면으로 확장시킨 겹집으로 발전되는 경향이 있다고 볼 수 있다.
다음은 ㄱ자형 안채를 가진 주택은 홑집이 20채, 겹집이 7채로 총 27채로 나타났다. 안채의 전면부의 칸수(Bay) 구성은 3칸의 경우 홑집만 5채이고, 전면 4칸은 홑집이 5채, 겹집이 2채 등 총 8채이고, 전면이 5칸의 경우 홑집만 1채, 전면이 6칸의 경우 홑집이 6채, 겹집이 3채로 총 9채이다. ㄱ자형의 경우 겹집보다는 홑집 형태가 발달된다. 이는 ㄱ자형 주택의 경우 일(一)자형 보다 지붕의 목구조 특성상 바닥면적이 넓을 경우 일자형 주택 경우보다 상대적으로 상부 지붕의 결구나 부재의 치목이 어렵기 때문이라고 볼 수 있을 것이다.
종합한다면, 채집된 충청북도 지역의 조사한 안채를 대상으로 본다면 첫째, 일자형 안채를 가진 주택이 ㄱ자형 안채를 가진 주택보다 보편적인 유형이다.
둘째, 일자형 주택 안채의 전면 칸 수와 관련된 실 구성 특성으로서는 3칸이 14채, 4칸이 12채, 전면 5칸은 11채, 전면 6칸은 3채로 구성되어 있다. ㄱ자형의 주택 안채의 경우는 5칸이 11채, 전면 4칸이 7채, 6칸이 5채, 3칸이 5채 로 구성되어, 일자형은 전면이 3~5칸 규모이고 ㄱ자형은 4~6칸 규모가 가장 보편적이라 볼 수 있다.
조선시대의 대부분의 소작농이나 하층민은 해가 뜨기 전부터 종일 농사일을 하고 저녁에 귀가하면 고단한 심신을 재충전하기 위해 먹고 자는 기능을 갖춘 생존을 위한 수준의 주택에서 생활하였다. 이러한 전형적인 주택이 2칸 오막살이집(부엌-안방)이나 3칸 오막살이집(부엌-안방-건넌방)이 전국적으로 분포되어 있었고 과거 우리 민족의 정서가 담긴 주택 이미지로 남아 있었다.
하지만 조선 후기에 이르자 경제나 살림 규모가 늘어나며 공통적인 3칸집에서 추가의 방이나 고팡, 마루 등을 추가되며 다양한 지역 주택 유형들이 형성되어 왔다. 조선 후기 들어와 신분 변화로 주택 내에 사랑방 한 칸이나 두 칸이나 또는 별동 사랑채를 확보하게 되며 주택에 다양한 변화 원인을 제공하게 되었을 것이라 짐작할 수 있다.
서민의 경우 사랑공간이 없는 주택에서 툇마루나 마당 등에서 이웃과 교류를 하거나 경제적인 여유가 생길 경우 주택 안채에 간단하게 한 두 칸을 부가해서 사회적인 제례나 교류를 영위하는 사례가 나타나기 시작하였다. 살림 규모가 큰 반가의 경우 별동의 사랑채를 만들거나 안채, 사랑채, 부속채를 이루는 칸들을 잇는 용마루 통해 ㅁ자형 주택6) 유형으로 발전되기도 한다. 사랑 공간 유무에 따른 일자집 안채의 평면 계열도를 시각화하면 다음 <Table 2>과 같다.
Table 2.
A floor plan of the main house(An-chae) of 一-Shaped house according to the presence or absence of Sarang space
2. 一자형 주택 안채 특성
1) 사랑 공간이 없는 一자집 안채(一 - A Pattern) 특성
사랑공간이 없는 주택의 안채 공간 특성을 전면 칸수 구성별로 구분해 분석하면 다음과 같다<Figure 4>.
첫째, 3칸집의 경우 K-R1-R2 형태로 구성되어 있는데, 여기에 툇마루를 돌출시켜 활용이 가능한 형태가 4채(A-2, D-17, A-20, H-1, D-17)가 있다.
둘째, 전면이 4칸이 되는 경우 R1-R-R 유형DP 사랑방보다는 방을 1개 더 확보한 사례가 2채(D-12, C-1)와 마루를 확보하거나(C-2)나 안방(F-13)을 확대한 사례가 나타났다.
셋째, 전면 5칸인 경우 안방이 2칸 규모의 K-R1(2)-M-R2의 남부형 민가의 보편적인 구성(D-13, D-15, D-19)이 있고, 사랑방이 없는 상황에서 대청을 사회적 공간으로 활용이 가능한 평면구성이다.
넷째, 겹집 계열의 주택 중에서 사랑공간이 없는 여칸형 주택(F-12)과 안채의 규모가 큰 전면 5칸 겹집(K-R1(2)- M-R2) 전열과 후열로 배치한 형태)이면서도 사랑방이 없는 사례도 1채(D-10) 나타났다.
2) 사랑채가 없어, 一자집 안채에 사랑방이 있는 평면 유형(一 - B Pattern) 특성
안채에 남녀공간을 분리시키고 안정적인 사랑방을 확보하기 위해서는 건축 계획적으로 고려할 요구 사항이 많았을 것이다. 이는 일자집이나 ㄱ자집 또는 홑집과 겹집의 평면 유형에 따라 대응 방식을 다르게 하였을 것으로, 주택 평면형의 분화 특성을 분석하였다.
안채에 사랑방이 있는 一자형 홑집 안채를 분석하면 다음과 같다<Figure 5>.
첫째, 일자형 안채의 경우 전면의 칸 이 2칸집(K-R1)에서 통상 자녀를 위한 추가의 온돌방 확보하는 3칸집(K-R1-R2) 구성보다 사랑방을 추가(K-R1-Rs)하는 구성을 채택한 사례가 2채 있는데, 이 중 툇마루가 아예 없는 사례 2채(A-13), 안방 크기를 반 칸 정도 줄이고 툇마루를 낸 사례가 1채(A-31) 등으로 다양화된다. 이는 서민주택에서 사랑공간을 확보하려는 의지에서 나타난 사례에 해당된다. 특히 안채에 사랑방(A-24)이나 사랑채(D-21: 제실이라는 특수한 상황)을 ㄱ자 형태로 연결한 특수한 변형도 사랑공간 확보를 위해 나타난 사례이다.
둘째, 전면 4칸의 경우 보편적인 K-R1-M(m)-R2 구성보다 온돌방 3개를 이어서 구성하고 부엌과 가장 먼 가장자리 방을 사랑방으로 할애하는 K-R1-R2-Rs 방식을 채택한 사례(J-3, A-35, A-36)가 있고, 안방(R1) 앞에 작은 툇마루를 낸 사례가 1채(A-16) 있다.
셋째, 전면 5칸 안채는 이를 기본으로 한 대청을 확보한 K-R1-R-M-Rs (A-12, D-2) 사례나 부엌 공간 내에 광(S)을 확보한 사례(A-11, A-18, A-30)나 안방을 2칸으로 확대한 사례(A-25)로 발전된다.
반면 겹집의 사례로는 첫째, 가장 기본형인 일자형집 3칸 전면부에 사랑방과 봉당과 부가한 여칸집과 유사한 형태로 변형된 사례(A-23, A-27)가 나타났다. 특히 경북의 두렁집의 건넌방을 확보한 사례(A-9)가 특수한 형태로 변형된 사례가 조사되었다<Figure 6>.
3) 사랑채가 있어, 一자집 안채에 사랑방이 없는 평면 유형(一 - C Pattern) 특성
이러한 부류는 일반적인 안채의 공간구성을 유지하고 있는데, 그 특성은 다음과 같다.
첫째, 전형적인 3칸 일자형 사례(A-5, A-7)과 전면부에 툇마루나 작은방을 달아낸 사례(A-31. A-33, D-20)가 있다.
둘째, 전면 4칸의 경우는 3칸 일자형에 광을 부가하거나(F-13), 안방을 2칸으로 늘이거나(A-32), 온돌방을 추가하거나(D-7), 전형적인 남부형 안채(K-R1-M-R) 사례로 분화 발전된 형태이다.
셋째, 전면 5칸은 전면 4칸형에 마루(D-6), 방을 추가(D-8, A-37)을 한 형태로 발전된다. 전면 6칸은 전면 5칸집에서 대청 2칸(K-1, D-1)이나 안방 2칸(C-3)으로 확장된 사례이다.
반면 겹집은 첫째, 전면 4칸인 경우 3칸 일자형(K-R1-R) 구성을 기본으로 부엌 쪽에 광(S)을 일렬로 연결하고 그 전면부에 K-B(봉당, 토방)-m를 복렬로 구성한 사례(A-28)로 규모가 확장 발전된다.
둘째, 전면 5칸 역시 K-R1-R-S형을 기본으로 그 전면부에 마루와 광을 부가한 사례(F-10, F-11)가 있다.
셋째, 전면 6칸은 K-R-R1-M-R을 복렬로 구성하고, 건넌방 바깥쪽으로 R2를 추가한 사례(C-4)가 있다.
2. ㄱ자형 주택 안채 특성
안채의 사랑방이나 별동으로 분리된 사랑채의 유무에 따른 ㄱ자집 안채의 평면 계열도를 시각화하면 다음 <Table 3>과 같다.
Table 3.
A floor plan of the main house(anchae) of ㄱ-shaped house according to the presence or absence of Sarang space
1) 사랑 공간이 없는 ㄱ자집 안채(ㄱ-A Pattern) 특성
충청북도 지역의 ㄱ자집 안채는 첫째, 전면 3칸형으로 그 원형인 K-R1를 기본형으로 안방 전면에 방이 돌출된 사례(F-8)가 있다.
둘째, 전면 4칸의 경우 중부형 민가의 전면 3칸 기본형인 R1-m-R2의 안방 전면에 부엌(K)이 ㄱ자 형태로 돌출된 사례(F-9)가 있다
셋째, 전면 5칸은 R1-m(2칸)-R2의 안방 앞에 부엌이 돌출된 사례(F-3, I-1) 또는 남부형인 K-R1-m-R2의 부엌 앞에 방을 돌출시켜 ㄱ자형으로 변형된 특이한 사례(D-14)가 있다.
안채가 겹집 ㄱ자 사례는 안방 영역을 전(田)형으로 특수하게 발달된 사례(I-2, D-16)가 있다.
2) 사랑채가 없어, ㄱ자집 안채에 사랑방이 있는 평면 유형(ㄱ-B Pattern) 특성
ㄱ자집 안채에 사랑공간을 확보하기 위해 특수하게 변형된 사례가 나타나고 있다<Figure 7>.
첫째, 전면 4칸 안채 중 중부형 ㄱ자집인 유형에서 건넌방을 사랑방으로 활용한 사례(A-15)와 3칸 일자형 건넌방 전면부에 사랑방을 추가해 ㄱ자형으로 변형된 사례(A-22)가 있다. 서민의 경제적 사정으로 협소한 환경에서도 사랑방 확보에 대한 의지로 나타난 사례라 볼 수 있다.
전면 4칸은 오막살이집 여성공간이 부엌에 사랑방과 사랑대청을 추가해 ㄱ자로 만든 특수한 사례(D-3)와 전면 5칸집의 경우 기본적으로 남부형 안채(S-K-R1-R-M-R2)에 R2전면부에 사랑방과 사랑정지를 추가해 ㄱ자형으로 변형된 사례(A-10)가 있다.
전면 3칸 겹집의 경우 건넌방 영역에 사랑방을 추가한 특수한 사례(A-24, A-29)가 있는데, 사랑방을 확보하기 위한 의지로 안채를 변용한 사례로 볼 수 있다.
전면 4칸의 경우 중부형 부엌의 여성 영역에 남성 영역인 사랑방을 추가한 특수한 사례(A-26)가 나타나고 있고, 전면 5칸의 건넌방 영역에 사랑채를 부가한 사례(A-14가 나타나고 있다.
전면 6칸의 사례(D-9)는 A-14에 건넌방을 보존시키고, 건넌방 전면부로 사랑채를 부가한 형태로 발전된 경우이다. 이들 주택 규모가 큰 전면 6칸집이지만 사랑공간을 확보하기 위해 제한된 마당 내에 별동의 사랑채를 확보하는 방법보다 기존의 안채에 사랑채를 ㄱ자 형태로 결합시킨 결과, 남부형인 일자형 안채가 중부형의 ㄱ자 안채와 외관이 유사하게 변형된 사례라 볼 수 있다.
3) 사랑채가 있어, ㄱ자집 안채에 사랑방이 없는 평면 유형(ㄱ-C Pattern) 특성
첫째, 홑집형 안채에 사랑방이 있는 ㄱ자집 안채는 첫째, 전면 4칸의 경우 전형적인 중부형 안채(J-4)에 해당하고, 여기에 대청과 건넌방을 부가해 T자 형으로 발전된 특수한 사례(E-2)로도 발달되어 있다.
둘째, 겹집형 안채 전면 4칸집의 경우 전형적인 중부형(A-4, A-6)이고, 전면 5칸도 전형적인 중부형 ㄱ자형의 일부를 겹집으로 규모를 확대한 사례(E-4, J-1)가 있다.
셋째, 반면에 전면 6칸 주택 중에서 남부형 일자형 안채에 부지의 제약으로 인해 3개의 온돌방을 부가해 안채를 ㄷ자형으로 변형시킨 특수한 사례(D-4)도 나타났다.
3. 충북지역 안채의 지역성
충청북도 조사 자료에는 전국 민가 유형인 오막살이형 주택은 괴산군 8채, 영동군 2채, 중원군 1채 등 총 11채가 채집되어 있다. 한반도의 만가 유형을 일자형 남부형과 ㄱ자형 중부형 안채로 구분하고 있다. 조사된 샘플 수가 적어 일반화할 수는 없으나, 전국에 분포되어 있는 오막살이형 주택을 제외하고, 충북지역의 안채 유형의 분포도를 통해 지역적 특성을 살펴보았다<Table 3>.
첫째, 충북에서 조사된 4칸 이상 규모의 주택 수가 많은 시군 중에서 제원군 등 충북의 경기도와 충남의 인접지역인 충북의 북측과 서측 지역에는 ㄱ자 안채의 수가 더 많이 분포하고 있어, 역시 주변 지역의 연향을 받아 나타난 결과라 판단된다.
둘째, 영동군은 경북 김천 지역과 추풍령 고개로 물류의 통행이 빈번하였던 인근 영동지역에서 일자형 안채는 8채, ㄱ자형은 5채로 분포되어 있다. 반면 괴산군은 문경세제로 경북 문경군과 예천군과 소통되었던 괴산군 지역에서 나타난 일자형 안채는 7채, ㄱ자형은 10채로 분포되어 있다. 따라서 이 지역은 중부형과 남부형 안채가 공존하고 있다. 보은군과 보령군, 음성군 등에는 겹집형이 분포하고 있다. 특히 경북과 인접지인 괴산군 지역의 안채의 경우 경북 안동지역 등에서 나타나고 있는 겹집 중에서 여칸형과 두렁집 계통의 안채 유형이 나타나고 있다.
이러한 충북지역 안채 분포도를 통해 주문화권 중첩 현상과 중첩지역과 연관성을 파악할 수 있다.
4. ㅁ자형 주택의 안채와 사랑채 영역 특성
충청북도에서 조사된 반가의 경우 대부분 사랑채나 사랑방 공간이 있는데, 구체적인 특성을 ㅁ자형 주택의 안채와 사랑채 영역에 대한 평면 계열도로 시각화<Table 4>해서 전체 특성을 살펴보았다.
Table 4.
A floor plan of ㅁ-shaped house according to Sarang space
첫째, ㅁ자형 주택의 형태와 공간구성을 살펴본다면, 조사된 18개의 ㅁ자형 주택에서 튼ㅁ자집은 16채이고, 완전 ㅁ자집은 2개 사례(A-3, J-2)로 나타났다. 튼ㅁ자집이 많은 이유는 산지가 많은 영남지역과 달리 평지가 많은 영향으로 나타난 지역성으로 보인다.
튼ㅁ자집 16채 안채 유형 중 일자집은 1개 사례(A-1 : 5.6%)이고 남부형 일자집 기본형에 대지 형상에 배치하기 위해 방을 ㄱ자 형태로 부가한 사례가 2채(A-38, F-4)로 분석된다. 전체적으로 남부형 일자 안채 3채인 반면에 중부형 ㄱ자집 사례는 15/18개로 전체의 83.3%를 차지한다.
둘째, 튼ㅁ자형 안채 중에서 별동 사랑채가 있는 사례가 15채로 대부분이 해당된다. 별동 사랑채가 없는 안채에 사랑방이 있는 사례(A-29)와 별동이 있어도 사랑공간이 없는 사례(F-5), ㅁ자형 안채와 별도의 사랑채를 가진 사례(A-3), 지붕이 결합된 ㅁ자형의 안채와 사랑채 영역을 가진 사례(J-2) 등으로 분화되며, 가계의 규모나 부지의 공간 규모 등을 고려해 다양한 방법이 적용되고 있다.
ㅁ자형 주택의 경우 사랑방과 사랑방 정지, 사랑대청 등을 포함해 사랑방의 칸수가 0칸(F-5), 1칸(A-29, A-19, F-7), 2칸(F-1), 3칸(B-1, H-3, I-3, G-3, F-4), 4칸(E-3, G-2, G-4), 5칸(H-2), 6칸(A-3, F-6), 7칸(A-38), 12칸(A-1) 등 68칸으로 나타나, 평균 3.8칸(68칸/18채)을 보유하고 있다.
반면 사랑채가 없는 사례(A-29)는 주택의 규모가 작아 안채나 부속채에 한 칸 정도의 사랑공간이 있거나, ㄷ자형 주택에 ㅡ자형 부속채가 붙은 경우(I-3)로 안채에 사랑공간이 포함된 것으로 보인다.
셋째, 주택 규모가 상대적으로 대규모인 완전 ㅁ자집 중 사랑공간이 있는 사례(J-2, A-29)와 완전 ㅁ자집이지만 사랑채가 별도로 있는 사례(A-3)가 있다.
넷째, 튼ㅁ자형 중에서 안채가 일자형 사례가 1채(A-1), 안채가 ㄷ자인 사례가 2채(A-38, I-3)가 있는데, 이는 남부형에 해당된다. 튼 ㅁ자형 주택의 대부분 ㄱ자형 안채와 ㄱ자형 사랑채 및 부속채 형태로 배치한 사례가 13채로 안마당을 공간적 위요감을 높이고, 중심성을 유지시키고 있다. 이 외에도 안채 주변을 일자형 사랑채에 별동의 일자형 부속채나 담장을 둘러 안마당의 영역성을 확보한 사례(A-3, A-38 등)가 있다. 이는 유교적 사회 환경에서 일자형 사랑채나 부속채로 인한 안마당의 개방감을 줄이기 위해, 담장이나 부속채를 추가해 안채와 안마당의 폐쇄성을 확보하기 위한 보완적인 배치 방법이 적용되어 있음을 알 수 있다.
5. 서민주택의 사랑공간 규모 특성
사랑 공간과 조선 후기의 서민이 주로 기거하는 전통주택에서의 비중을 분석하면 다음과 같다.
첫째, 사랑 공간이 없는 사례 중, 일자집의 경우 중산층이 거주하는 민가 51채 중에서 16/51채(31.4%, A-2, A-20, D-17, H-1, F-13, C-1, D-19, D-13, C-2, D-12, A-16, D-15, 이하 겹집 F-12, D-10)이고, ㄱ자집의 경우는 27채 중에서 8/51채(29.6%, F-8, F-9, F-3, I-1, E-5, D-14, I-2, D-16)로 23/51채(45.0%)가 사랑공간이 없다. 일자와 ㄱ자집 전체 78채 중에서는 23/78채(29.5%)가 사랑공간이 없는 것으로 분석되었고, 이 경우 주택 형태나 외부공간과의 접근 동선 등을 고려해 대부분 마당의 평상이나 툇마루 등을 활용하였을 것이다.
둘째, 안채에 사랑방을 보유하고 있는 주택은 일자집에서 18/51채(35.3%, A-8, A-13, A-21, J-3, A-23, A-36, A-11, A-18, A-30, D-2, A-12, A-25 외 D-21, A-34, 이하 겹집 A-27, A-24, A-9, A-17)이고 사랑 공간이 차지하는 칸수는 22칸으로 평균 1.2칸이다.
반면 ㄱ자집에서 사랑공간이 있는 사례는 11/27채(40.7%, A-15, A-22, D-3, A-10, A-24, A-29, A-26, A-14, D-9)이고 사랑공간이 차지하고 있는 칸수는 총 13칸에 평균 1.2칸을 확보하고 있는 것으로 분석되었다.
따라서 서민주택 78채 중에서 안채에 사랑공간이 있는 주택은 29채이고, 사랑 공간의 칸수는 총 35칸이므로 1채 평균 1.2칸을 보유하고 있어, 주택 마다 사랑방 1칸 정도를 확보하고 있는 것으로 분석되었다.
셋째, 조선 후기 서민의 신분 변화와 주택 규모의 증가로 사랑공간에 대한 수요로 조사된 충북지역의 주택 전체 중 약 절반(50.5%, 49/97채)이 사랑공간을 보유하고 있다. 충북 지역 97채(ㅁ자형을 포함)의 전통주택 내의 사랑공간은 전체 평균 1.8칸(172칸/97채)으로 분석되었다.
종합하면, 앞서 분석한 지배계층인 반가의 경우 사랑공간을 보유한 규모는 평균 3.8칸인데 반해, 피지배계층인 민가의 경우도 평균 1.2칸을 보유하고 있어, 반가와 민가간의 주택 규모에 비해 사랑공간의 규모에서도 월등한 차이 확인 되었다. 이는 조선 후기에 모든 주택에서 사랑공간 확보에 대한 주거요구가 강해 평균 1.8칸 규모를 보유하게 된 결과라 볼 수 있다.
V. 결 론
본 연구는 충청북도로 한정시켜 연구를 진행하였지만, 조선 후기에 나타난 주택의 정형성과 함께 다양성을 도출하고 그 의미를 살펴보고자 하였다. 연구 결론을 종합하면 다음과 같다.
안채에 사랑방이 있는 주택 유형을 주요 연구 대상으로 해서 주택 내에 사랑공간에 대한 욕구로 인한 안채의 변용이나 분화 등 공간 구조적 변화 특성 등을 분석한 결과, 첫째, 당시의 전통주택은 대부분 제한적인 규모에 홑집에도 불구하고 온돌방이나 대청, 광 등의 공간보다 사랑방을 확보한 유형이 일자집이나 ㄱ자집의 전면 3칸 규모부터 6칸 규모의 안채에서 공통적으로 나타났다<Table 2><Table 3><Figure 7>.
둘째, 충북의 괴시면 등에서 안동주거권역의 여칸집이나 두렁집과 유사한 겹집형 안채 전면부에 사랑방을 확보하는 사례가 나타났는데, 이는 안동 등 다른 지역의 안채에서는 통상 마구나 정지에 해당하는 공간을 사랑방으로 변용한 사례라 볼 수 있다<Figure 5>.
셋째, 초가삼간형의 오막살집이나 남부형의 일자집 안채의 경우 전면부에 사랑방을 돌출시켜 중부형의 ㄱ자집 안채 형태로 변형된 사례가 나타났는데, 이는 한정된 규모 내의 마당에 제실 설치나 사랑공간을 확보하기 위한 의지로 성립된 사례라 볼 수 있다<Figure 6>.
셋째, 유교사회에서 남성공간인 사랑방을 여성공간인 부엌 내 도장방을 사랑방으로 변용하거나 사랑방을 부가한 안채가 있는 사례와 건넌방 대신에 사랑방으로 활용하는 특별한 사례가 나타났다. 이는 사회적 신분 상승 등으로 사랑공간에 대한 욕구가 강하였기 때문에 나타난 결과라 판단된다<Figure 7>.
넷째, 겹집이나 반겹집의 경우 4칸 이하인 소규모 안채의 경우는 채의 전면부에 마루와 사랑방을 확보하거나, 전면 5칸 이상 규모가 큰 건넌방이나 대청 바깥쪽으로 사랑방과 툇마루나 대청을 부가해 지배계층의 사랑채와 유사한 분위기를 확보한 사례라 볼 수 있다<Figure 7>.
다섯째, 충북지역의 서민이 기거하던 전통주택 60채에 대해 주택마다 보유하고 있는 사랑공간 규모를 분석한 결과, 사랑방을 보유하고 있는 주택 수는 약 75% 정도이고, 평균 1.8칸으로 분석되었다. 민가의 사랑공간은 평균 1,2칸 규모이고, 사랑채를 보유한 반가에서의 사랑공간 칸수는 평균 3.8칸 규모로 분석되었다. 이는 당시 가례를 모시는 가문의 신분 상향 지향성을 표현하거나 사회적 공간인 사랑채(방)에 대한 주거 욕구를 반영한 현상이라 볼 수 있다.
마지막으로 연구 결과를 종합해 주거사적 의미를 부여하면 다음과 같다.
첫째, 한반도의 중부이며 남한의 중심에 해당되는 충북지역의 전통주택을 분석한 결과, 첫째, 충북 지역의 피지배계층의 안채는 일자형 남부형과 ㄱ자형 중부형의 2가지 유형의 중첩적인 지역적 특성이 나타나고 있다. 한반도의 중부권의 ㄱ자집 영향을 큰 충북 북부와 서부와 남부형 일자집 영향을 받은 충북 동부와 중부의 안채 유형 빈도가 다르게 분포하고 있다<Figure 2>.
특히 추풍령 고개와 문경세제가 있어 충북의 인접 지역간에 교류가 빈번하였던 괴산군과 영동군에는 안동 주변 지역의 특수한 민가인 여칸집이나 두렁집 사례가 나타나고 있어, 이는 중부형과 남부형 주택형 안채가 공존하고 있는 주거문화의 중첩지역이라고 추론할 수 있다.
이는 지금까지 중부형 전통주택 유형에 해당된다고 알려진 충북지역에서 ㄱ자형 중부형과 일자형인 남부형 안채 평면유형이 공존하고 있다는 사실을 실증적으로 도출하였고, 특히 서민주택은 몰론 지배계층의 주거공간인 튼 ㅁ자형 주택에서도 남부형 안채(3/17채)가 존재하고 있었다는 사실은 주변 지역간의 주거문화 교류 현상에 따른 특성이라는 것을 도출하였다.
둘째, 민가의 안채에 사랑방을 부가됨으로써 지역성과 함께 상층 지향적인 계층성도 동시에 표현되며, 민가형 주택에서도 제한된 규모 내에서 다양한 형태로 분화되거나 규모가 발전되었다고 결론지을 수 있다<Figure 3>.
또한 주로 반가에 해당하는 ㅁ자형 주택의 경우는 지역성과 함께 다양한 주택 규모나 형태로 내외부 공간이 분화되거나 확장되는 사례가 나타나 가문의 세도에 따른 사회성이 표출되는 행태를 찾아볼 수 있었다.
본 연구는 전통민가가 거의 사라진 현 상황에서 직접적인 현장조사 과정은 생략된 한계가 있지만, 김홍식 현장조사 자료를 기반으로 각 평면 유형별 안채의 사랑공간을 중심으로 연구를 진행할 수 있었다.
후속 연구에는 안채 공간 중심적이었던 기존의 연구와 달리 마당과 사랑과 부속 공간, 담장과 대문의 위치 등의 요소와 함께 당시의 생활과 사회상과 주변 지역과의 교류 등 종합적인 맥락에서 전통주택 공간을 분석하고자 한다.
이러한 일련의 연구를 통해 전통주택의 지역별, 계층별 주택의 다양성을 포함해 지역 범위를 광역화하고 조사 전통주택 수 확대해서 각 지역성 연구의 확대와 기술적인 분석방법을 통해 심층적인 연구를 진행할 필요가 있을 것이다.












`




























































































