I. 서 론
1. 연구의 배경 및 목적
2. 연구의 내용, 방법 및 범위
II. 이론적 배경
1. 신건축과 국제주의 건축의 파급
2. 근대 중산층 주거의 이상과 주거 해방 논의
III. 체코 근대건축 운동의 역사적 배경
1. 유럽 내 체코 근대건축의 위상과 체코 기능주의
2. 체코 공작연맹의 활동과 주택전시회
IV. BaBa 주택전시회 사례 고찰
1. 바바 주택전시회의 건축 개요
2. 평면 유형 및 공간구성 특성
3. 외관 및 건축디자인
V. 요약 및 결론
I. 서 론
1. 연구의 배경 및 목적
1차 세계대전 종전 후부터 2차 세계대전 발발 직전까지의 시기, 즉 소위 ‘양차 세계대전 사이 시기(1919~1939)’는 유럽 근대건축 운동의 전성기라 할 수 있다. 이 시기에는 근대건축의 개념이 정립되면서 주거건축을 대상으로 다양한 실험적 시도들이 전개되었다. 새로이 등장한 주거유형 안에서 구현된 공간구성 방식들은 오늘날까지 그 영향을 미치고 있다. 이때는 근대건축 운동 중 중요한 위치를 차지하는 공작연맹(Werkbund)의 활동 역시 절정기에 이른 시기다. 1907년 무테시우스에 의해 독일에서 최초로 결성된 공작연맹은 예술·산업·공업·상업 등 각계의 여러 노력들을 결집하여 건축을 포함한 제품의 질과 그 생산능력을 향상하는 것을 목표로 하였다.1) 이를 시작으로 1912년에는 오스트리아에서, 1913년에는 스위스와 체코슬로바키아2)에서도 공작연맹이 결성되었다. 공작연맹은 산업화 시대의 생산물로서의 건축이 기술과 양식, 그리고 그 내용에 있어서 근대적 가치에 부응하는 것을 목표로 했고, 유럽 각지에서 실물 건축을 직접 건설하여 대중들에게 선보임으로써 그 어떤 활동보다 적극적으로 시대적 변화를 이끌었다.
이러한 사례 중 하나인 체코 공작연맹(Czechoslovak Werkbund)의 활동, 그리고 체코의 기능주의 운동 및 국제주의 건축 역시 유럽의 근대건축운동에 있어서 매우 중요한 위치를 차지한다. 그럼에도 불구하고 체코의 건축은 그리 주목받지 못해왔다(Frampton, 1982). 또한 국내의 연구 사례 역시 매우 드물다. 따라서 본 연구에서는 체코 공작연맹에 의해 주도된 프라하의 바바(Baba) 주택전시회의 사례를 중심으로 그 역사적 위상을 고찰하고, 근대 주거건축의 하나의 흐름을 살펴보고자 한다. 본 연구의 구체적 목적은 바바 주택전시회에 등장한 계획개념을 파악하고, 이 사례가 근대 중산층 주거모델로서 어떠한 혁신을 제시하였는지를 규명하는 것이다.
2. 연구의 내용, 방법 및 범위
연구는 첫째, 신건축과 근대 중산층 주거에 대한 이론적 고찰, 둘째, 체코 근대 주거건축에 대한 역사적 고찰, 셋째, 대상 주거단지에 대한 사례 분석으로 이루어졌다.
분석 대상인 바바 주택전시회는 1932년 체코슬로바키아의 프라하 서북쪽 바바 언덕(Baba hill)에 총 33호의 단독주택 단지로 계획되었다. 이중 한 호를 제외하고 32호가 실제로 건설되었다. 바바 주택전시회는 공작연맹 단지 중 건축주의 사적 자금으로 지어진 유일한 단지이며, 동시대 주택전시회 중 단독주택만으로 이루어진 유일한 단지이기도 하다. 공간 프로그램은 개별 건축주의 요구에 따라 부부를 위한 소형주택, 대가족형 빌라, 공동주거 개념이 접목된 다가구주택, 아틀리에 주택 등으로 다양하게 제공되었다. 본 연구의 대상은 바바 주택단지의 주택 중 가장 다수를 차지하는 주거유형으로, 공적·사적 영역이 상·하층으로 분리된 한 가족용 주택 총 25호가 이에 해당한다. 사례주택 개요는 <Table 1>과 같다. 조사 및 분석은 2016년의 현지답사, 그리고 2016년 6월 폴란드 브로츠와프의 폴란드 건축센터에서 열린 ‘근대로의 여정: 1929년-1932년의 공작연맹 주거단지(A way to modernity: The Werkbund Estates 1927~ 1932)’ 전시에서 확보한 자료들을 바탕으로 수행하였다. 또한 바바 백서3)에 수록된 평면도를 자료로 활용하였다.
Table 1.
List of Case Houses
II. 이론적 배경
1. 신건축과 국제주의 건축의 파급
양차 세계대전 사이의 시기는 새로운 건축에 대한 이데올로기가 급부상한 시기였고, 이는 건축의 새로운 양식과 미학에 대한 요구로 이어졌다. 이 시기를 특정하는 양식을 ‘신건축(New architecture; Neues Bauen)’이라 통칭하게 된다. 신건축의 원칙은 근대적 가치인 합리주의를 따르며, 기술과 인간 노동의 합리적 조직을 추구한다. 즉 경제성과 합리적 구조, 그리고 재료의 합목적성을 중요하게 여긴다. 신건축을 주거 부문으로 좁혀보면 ‘신주거(New housing; Neue Wohnung)’로서, 주거의 새로운 내용과 유형을 모색하는 건축운동이다. 1927년 개최된 최초의 주택전시회인 독일공작연맹의 바이센호프 주택전시회의 대표적 목표 역시 신건축과 신주거였다. 바이센호프 주택전시회는 CIAM이 결성되는 계기가 되었고, 나아가 1928년에 열린 CIAM 1차 회의의 의제로 ‘신건축’이 채택되었다. 바이센호프 주택전시회는 유럽의 주택전시회의 기폭제가 되었으며, 이후 1933년 나치의 등장으로 분위기가 침체되기까지 유럽 전역에서 총 13번의 주택전시회가 개최되었다.
바이센호프 주택전시회의 총감독이었던 미스 반 데어 로에의 ‘새로운 주거공간’의 이념은 사회 전반에 걸쳐 진행되는 합리화와 유형화 자체가 목표가 아니라, 사람들의 정신적 해방을 이루어 새로운 삶의 형태를 달성하는 것을 목표로 하는 것이었다.4) 건축가는 생활을 이해하고, 새로운 요구 및 시대문화를 이해하는 것이 필요하였다. 공간구성에 있어서는 과학적 원칙에 근거한 접근이 요구되었다. 또한 위생과 건강, 의학적 요구를 수용하기 위해서 난방 및 조명 등 산업사회의 혁신적 테크닉을 주거공간에 적극적으로 끌어들이는 노력도 동반되었다.
Rowe(1993) 역시 근대성을 논할 때 산업사회의 테크닉을 중요시하였다. 그리고 인간과 환경의 관계에 대한 기술적인 해석을 전제로 한 사물의 기술적인 생산을 강조하였다. 즉 근대사회에서는 기술이 그 목적성을 가져야 한다는 것으로서, 거주환경에 있어서도 기술적 해법을 적극적으로 도입해야 함을 시사하였다.5) 환경을 기계적으로 제어할 수 있는 점 역시 근대주거의 속성인 것이다. 이는 궁극적으로는 전통에 대한 거부, 그리고 국제적으로 통용되는 가치를 우선시하는 방향으로 흐르게 되었다.6)
2. 근대 중산층 주거의 이상과 주거 해방 논의
근대 기능주의 논의의 연장선상에서 Gidion(1929)은 1929년 진보적 건축가 연합에서 발행한 잡지의 표제로 ‘해방된 주거’라는 표제를 사용하면서 ‘빛, 공기, 분위기, 개방성’을 신건축의 핵심 요소로 꼽았다.7) 나아가 Vetter(2000)는 자신의 저서8)에서 신건축을 ‘주거해방(Liberation of housing)’의 개념에 포함시키기에 이르렀으며, 전래의 주거로부터의 탈피를 주장하였다. 여기서 구체적인 주거 해방의 5가지 전제는 다음과 같다.
① 박스로부터의 탈피: 개구부 및 벽, 천장, 지붕 등을 개방하여 공간의 개방성을 높이고 내, 외부 사이의 자연스러운 연결을 유도.
② 구조 원칙으로부터의 탈피: 기술 설비를 도입하고 현대적인 발전된 구조 수단을 적극 활용하여 공간의 융통성 추구.
③ ‘집’라는 고정적 타입으로부터의 탈피: ‘4개의 벽과 지붕’이라는 고정관념으로부터 탈피하여 자유로운 형태를 추구. 건축적 이상 자체로서의 자유형태를 창조하고, 추상적인, 혹은 서사적인 대범한 형태로 미학적 개념을 표현.
④ 미숙하게 건축을 다루는 것으로부터 탈피: 의식없는, 표면적인, 진부한 건물들의 특징으로부터 탈피. 구조 및 컨셉이 세심하게 연계되어 진정한 건축적 목적에 도달. 이로써 사용자는 결국 ‘집’이 흥미롭고 매력적이라는 점을 인식하고 이해하게 됨. 이는 결과적으로 모던의 새롭고 매력적인 세계를 창출.
⑤ 가부장적인 고리타분한 건축으로부터 탈피: 중앙난방, 위생설비 등 안락한 근대적 혜택을 누림. 이로써 거주자는 내부에서 자유로운 활동이 가능하고, 빛, 공기, 태양과의 접촉으로 건강함을 누리고, 에너지를 얻음.
1930년대 유행했던 근대주택의 전시는 건축이 새로운 라이프스타일에 어떻게 부응해야하는 가에 대한 고민이 동반되었다. 그리고 이는 <Figure 1>과 같이 근대적 생활, 근대적 가족의 이데올로기를 이미지화하는 것으로 나타났으며, 체코의 경우 바바 주택전시회를 통해 극명하게 보여주고자 했다.
III. 체코 근대건축 운동의 역사적 배경
1. 유럽 내 체코 근대건축의 위상과 체코 기능주의
체코는 건축과 예술에 있어서 높은 수준의 전통을 갖고 있었으며, 근대건축 시기, 복고주의에 반하여 새로운 양식을 적극적으로 받아들인 나라 중 하나다. 특히 프라하는 한때 모더니즘 건축 사상들이 집결하는 만남의 장이 되기도 하였다. 체코의 근대건축은 동(東)으로는 (구)소련, 서(西)로는 독일에 면한 동·서양의 접점으로서의 중간적 지정학적 위치, 그리고 정치적 여건에 의해 큰 영향을 받으면서 진행되었다. 또한 오스트리아 지배의 영향으로 건축 역시 그 영향이 컸다. 체코 근대건축의 선구자인 코테라(J. Kotera)가 1890년대 빈의 오토 바그너 스쿨을 졸업하고 이후 고향으로 돌아와 체코 산업예술대학의 교수로 재직하면서 빈 근대건축을 체코에 전파한 것도 큰 역할을 했다.
체코 근대건축 운동의 시작은 1913년 1차 세계대전 직전 체코 공작연맹의 결성이 계기가 되었다고 볼 수 있다. 이후 체코는 1914년의 쾰른 국제 공작연맹 전시회에 오스트리아 파빌리온 내 4개 영역을 할당받아 참가함으로써 국제 근대건축의 무대에 데뷔하였다.9)
1920년대 후반에는 세계 경제 대공황의 여파로 체코의 건설경기도 내리막길을 걸었으며, 이러한 상황에서 많은 젊은 건축가들이 파리 등으로 건너가 여러 스튜디오에서 일하기 시작했다. 이는 서유럽의 근대 건축문화를 적극적으로 받아들이는 큰 계기가 되었다. 특히 1924년 르 코르뷔지에, 그로피우스, 아우트 등 건축가들이 체코에서 “새건축을 위하여”라는 강연 시리즈를 진행했는데, 이 역시 체코에 기능주의 근대건축을 전파하는 데 큰 영향을 미쳤다.10) 이를 계기로 체코 건축은 지역주의, 즉 아카데미즘 성향이 강한 체코 큐비즘과 결별하고 코스모폴리탄적 사고방식을 갖게 되었으며, 결국 국제주의 양식을 수용하기에 이르렀다. 이는 특히 당시 부상한 체코 인텔리 및 부르주아 계층에게 크게 어필하였다. 또한 ‘새로운 양식(New style)’은 새롭게 출발한 체코 제1공화국 시대 (1918년~1938년)의 이미지와도 부합했다.11) 이때부터는 빈의 영향을 벗어나서 다양한 사조들이 발달하였다.
1930년 미스 반 데어 로에가 체코 브르노(Brno)12)에 건설한 투겐다트 저택은 국제 아방가르드 건축이 체코에 이식된 대표적 표상이라 할 수 있으며, 체코 근대건축 및 근대주거의 이상을 대변한다고 평가된다. 이 주택은 섬유공장을 운영하는 기업가인 투겐다트(Fritz & Grete Weiss Tugendhat) 부부가 미스에게 의뢰하여 지은 주택으로 체코 최초의 현대적 건물이다. 이로써 투겐다트 부부는 체코 모더니즘 건축을 가능케 한 인물로 평가받는다. 전면으로 개방된 거실에는 겨울에 깊숙한 채광을, 여름에는 어닝을 사용한 그늘을 제공한다. 창의 조절로 건강을 고려한 건물이 되도록 한 것이다. 테라스 역시 안락한 주거생활을 영위하기 위한 요소로 계획되었다. 한편, 이 건물의 특징은 ‘가벼움(Lightness), 경쾌함(Airiness), 명쾌함(Clarity)’으로 요약할 수 있으며, 이러한 이미지는 기계 미학 시대를 찬미하는 것이라 할 수 있다.13) 이와 같은 투겐다트 주택의 여러 특성들은 바바 주택전시회에서 많이 재현되었다.
1930년대 이후 체코 건축은 독일의 기능주의를 적극 받아들였다. 합목적성과 신즉물주의로 대변되는 기능주의는 인간에 대한 과학적 해석을 바탕으로 하며, 기술세계의 뒷받침을 바탕으로 한다. 이때 규범화된 주거기준은 인간행동에 대한 과학적 어프로치로 작동하는 것이다.14) 이러한 개념을 적극적으로 수용한 1930년대는 체코 기능주의의 절정의 시기라 할 수 있다. 당시 체코의 건축평론가 Teig(1987)는 “건축은 과학의 한 부분이다”라고 함으로서 국제주의 건축 및 기능주의 건축의 이론적 근거를 마련하였다.15)
2. 체코 공작연맹의 활동과 주택전시회
체코 공작연맹은 1928년 모라비아의 주도인 브루노에서 ‘현대 문화(Contemporary culture)’를 주제로 산업디자인 제품, 연립주택 프로젝트 등을 선보인 전시를 개최하였다. 이 전시는 체코 공화국 건국 10주년을 기념한 것으로, 다분히 진취적이고 아방가르드적 성격이 강하였다. 하지만 좌파 정치인들에게는 부르주아 건축으로 평가되면서 그 파급력이 강하지 못하였다. 이후 공작연맹은 1930년대 바바 주택전시회를 통해 그 전성기를 맞이하였으나, 이 역시 정치적인 영향으로 부르주아 건축으로 평가절하되었다. 대중의 주거문제를 해결하는 역할을 하지 못한다는 비판을 받게 된 것이다.16) 당시 대부분의 나라에서 1차 세계대전 이후의 심각한 주택 부족을 겪었기 때문에 다른 나라의 주택전시회는 대중을 위한 주거에 초점을 맞추었다. 예를 들어 빈 공작연맹의 주택전시회는 ‘최소한의 주거’가 주제였다. 그러나 체코 공작연맹의 주택전시회는 이를 중산층 주거에 어떻게 적용하는 가의 문제에 보다 주안점을 두었기 때문이다.
바바 주택전시회 설계에 참여한 야낙(P. Janák)과 고차(J. Gočár)는 체코 근대건축의 스승인 코테라의 첫 제자였는데, 이들은 처음에는 독일의 아방가르드적 합리주의에 동조하지 않는 편이었고 오히려 러시아로부터 영향을 받은 체코 큐비즘을 보다 더 따르는 경향을 보였다. 하지만 바바 주택전시회를 계기로 신건축을 받아들였다고 볼 수 있다. 체코 공작연맹이 독일 및 오스트리아의 공작연맹 주택전시회에서 큰 자극을 받았기에, 두 나라의 주택전시회에 견줄만한 체코의 주거환경 모델을 제시하는 것을 주요 목적으로 삼았고, 이것이 방향 전환의 동기가 된 것이다. 즉 영감에 의존했던 그동안의 작업 태도를 지양하고 이를 정량화된 표준 모델로 대체하려는 기본 인식을 갖게 된 것이다. 또한 산업생산은 경제적 요구에 따르되, 미학적 관점을 유지하면서 취향을 존중하고 적절한 양식을 취함으로써 완벽한 제품을 탄생시킨다는 목표를 가졌다. 체코 공작연맹의 경우 대량생산 시대의 생산품들을 가치있게 만드는 것과 동시에 고유한 예술적 정체성과 독창성을 추구하는 것이 건축예술의 과제이자 기본 이념이 되었다.17) 실질적이면서도 새로운 리얼리즘을 상징하는 기능주의는 새로운 미학적 질서로도 표현되었다.18)
바바 주택전시회의 총감독인 야낙19)은 체코 모더니즘을 대표하고 다양성을 확보하기 위해 당시 활동하는 건축가 중 3세대, 즉 시니어, 중견, 신진 건축가20)들을 골고루 초빙하였다. 이로써 바바 주택전시회에서는 ‘신건축’으로 대표되는 독일 근대건축 및 르 코르뷔지에의 순수주의(Purism) 등에서 영향을 받은 체코 기능주의의 성향이 복합적으로 드러난다.21) 근대주거의 속성을 이해함과 동시에 중산층 주거 설계의 실험적 무대가 되었던 바바 주택전시회는 체코 모더니즘의 마지막 사례이며, 이를 두고 Tempel(1999)은 “체코 문화사의 한 조각이다”라고 평하였다.22) 바바 주택전시회 이후 체코 공작연맹은 ‘체코 건축과 공예’ 전시를 제네바, 부카레스트, 스트라스부르 등에서 순회 전시함으로써 그 활동 영역을 확장하였으나, 이후 좌파에 의해 큰 비판을 받으면서 더 이상 발전하지 못하였고 1933년 나치에 의해 활동이 중단되었다. 1948년까지는 그 이름만이 유지되었는데, 1948년 체코슬로바키아에 공산주의 정부가 들어선 이후, ‘민중예술센터’로 전환, 운영됨으로써 그 막을 내렸다.23)
IV. BaBa 주택전시회 사례 고찰
1. 바바 주택전시회의 건축 개요
체코 공작연맹은 1928년 브르노에서의 전시가 끝난 직후 ‘중산층을 위한 주거모델’24) 개발을 진행하였다. 바바 주택전시회라는 명칭은 그 지리적 명칭인 바바 언덕(Baba hill)으로부터 만들어진 것이다. 프라하 시의 결정으로 20% 경사의 언덕 위의 3헥타르의 부지가 선정되었으며, 여기에 바둑판 모양의 필지가 구획되었다. 각각의 필지는 프라하 도시계획위원회의 지침에 따라 장방형 및 정방형으로 분할되어 지그재그식으로 엇갈려 배치되어 마치 테라스하우스와 같이 계획되었다. 개별 필지 모두 가장 이상적인 위치가 되도록 한 의도였는데,25) <Figure 2>와 같이 모든 주택은 언덕 위에서 남향을 바라보며 경사가 있는 대지 위에 여유롭게 배치되었다. 가로에 면한 상황에 따라 진입은 북측 또는 남측에서 이루어진다. 예를 들어 가장 북쪽 열인 1-8번지는 가로 쪽이 전면이며, 그 아래에 면한 10-15번지는 가로 쪽이 후면이 된다.26) 또한 층수 제한을 두어 지하 및 경사에 묻힌 반지하를 제외하고 모두 지상 2층으로 지어졌다.
1932년 9월 전시 오픈까지 총 20호의 주택이 건설되었으며, 나머지 주택들은 1938~40년 사이에 추가로 건축되었다. 건축주는 모두 체코 공작연맹 소속의 건축가, 공예가, 산업디자이너, 화가 등으로, 공작연맹 회원 자신이 건축주가 되는 실험으로 진행된 것이었다. 따라서 진보적인 성격을 많이 내포하고 있어서, 그동안의 전형적인 서민주택과는 내용적, 외형적 측면에서 상당한 차별성을 보였다. 건축 재원도 사적으로 부담하는 것이었다. 따라서 평면을 경제적으로 구성하는 것 역시 중요하였다.27) 바바 주택전시회는 다른 주택전시회에서 건축가에 의해 주거유형이 일방적으로 제시되었던 방식 보다는 건축주와 건축가의 전통적 관계에 충실했다고 볼 수 있다.28) 즉 건축가의 소신을 드러내는 주관적 실험을 하기 어려운 상황이었으며, 선언적 의미도 희박하였다. 따라서 다른 주택전시회에서 연립주택, 아파트 등 새로운 집합주택의 유형이 계획된 것과 달리, 당시의 보편적 주거형태인 단독주택만으로 지어졌다. 또한 건축주의 요구에 따라 단독주택의 여러 프로그램이 수용되어, 아이 없는 젊은 부부를 위한 주택, 집사의 독립공간을 포함하는 대저택, 아틀리에 주택, 공유주택 등도 일부 소수 지어졌다.29) 주거단지의 전경은 <Figure 3>과 같다.
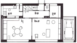
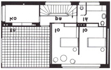
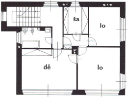
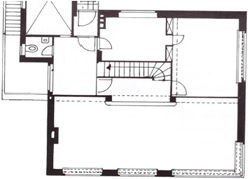
2. 평면 유형 및 공간구성 특성
바바 주택전시회의 평면들은 기본적으로 기능주의적 원칙에 충실하게 계획되었다. 각 주택들의 평면 구성은 공통적인 특성을 지니고 있다. 보통 상, 하층으로 공용 공간과 사적 공간을 분리하였다. 하부층에는 넓은 거실을 두며, 식사공간과의 연계가 수월하도록 구성하였다. 부엌 등 가사노동공간 영역에는 설비를 집중 배치하였다. 17호와 18호를 제외하고 모든 주택에는 테라스, 옥상정원, 발코니 등 외부공간과 소통할 수 있는 장소를 계획하였다. 1인용 침실은 보통 7-10m2 정도의 크기에 옷장 등 필요 가구를 충분히 배치하여 호텔과 같은, 개인생활이 충분히 보장되는 공간30)으로 계획하였다. 욕실에도 상당히 많은 면적이 할당되었다. 넓은 욕실은 통풍, 채광, 위생에 대한 중요성을 부각시키는 상징적 의미도 갖고 있다. 또한 건축과 일체화된 가구, 슬라이딩 도어, 파티션 등을 도입하였다.
총감독인 야낙은 이 주거단지에서 근대적 삶을 평면에 구현하는 것을 가장 중요한 목표로 삼았다. 공간의 규모, 조명, 난방, 인테리어, 개인공간의 구성에 이르기까지 건축주의 요구를 철저히 조사, 분석하고, 이러한 공간의 모델을 제시하는 것을 이 시대의 가장 중요한 과제로 인식하였다.31) 평면 분석의 결과, 규범화된 원칙 하에서도 개별 주택들은 다음과 같은 범주 내에서 다양한 유형의 변화가 있었다.
① 1층 공용공간의 구성 : 거실(L), 식사공간(D), 부엌(K)의 구성에 따라 거실 및 식사공간의 개방형(LD), 거실 및 식사공간, 부엌의 개방형(LDK), 거실 및 식사공간, 부엌의 분리형 등으로 분류되었다. 그 다음 단차가 있는 스킵플로어형, 갤러리와의 연계형, 라움플란형 등의 특별한 구성도 보였으며 이들의 조합형도 존재하였다. 또한 동선을 길게 하여 공간을 경험하도록 한다거나, 단차를 두어 공간에 흥미를 불어넣는 등의 새로운 시도가 있었다.
② 2층 개인공간의 구성 : 복도에 면하여 열차 객실과 같이 침실을 배치하는 캐빈형, 홀을 중심으로 침실이 둘러싸는 클러스터형 두 종류가 대부분이었고, 이에 속하지 않는 기타 형식이 일부 존재하였다. 또한 베이는 2베이부터 4베이까지 있었다.
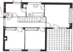
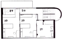
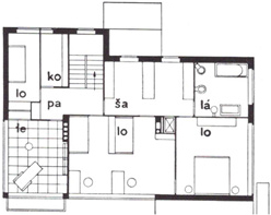
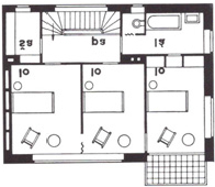
대상 주택별로 상세히 분석한 내용은 <Table 2>와 같다.
Table 2.
Floor Plan and Spatial Arrangement
Source: Templ, S. (1999). BaBa; Die Werkbundsiedlung Prag, Basel: Birkhaeuser.
3. 외관 및 건축디자인
2~3층의 단독주택은 대부분 단순한 매스와 외관이 특징이었다. 이때 입방체의 볼륨을 다양하게 절개하거나, 여기에 매스를 추가하거나 하는 등의 변화가 있었다. 즉, ‘3차원 표면의 형상’을 극적으로 구성함으로써 생성되는 ‘파사드의 조형성’을 중요시 했다.32) 공통적으로 명쾌한 기하학적 미학이 적용되었으며, 정형화된 매스를 유지하되, 내, 외부 중간적인 성격의 공간을 만들면서 매스를 파내어 깊은 음영감을 부여하는 사례를 다수 볼 수 있었다. 이는 큰 규모의 볼륨감을 상쇄하는 효과를 의도한 것이다. 또한 의장적 조형 요소로서 다양한 건축적 어휘를 채택하여 극적 효과를 부여하기도 하였다. 많은 경우 수평성을 강조하였고, 매스에 연결된 과감한 조형 요소를 적극적으로 적용하기도 하였다.33) 창은 수평성을 강조했는데, 예를 들어 ‘가로로 긴 창(Ribbon window)’은 르 코르뷔지에식의 근대건축 5원칙에 따라 채광 면적을 극대화하고 투명성과 전망을 고려하여 개방성을 확보하고자 한 의도다. 개구부에는 반복성과 강한 질서가 드러났다. 외관의 분석의 결과, 개별 주택들은 다음과 같은 범주 내에서 다양한 조형적 특성을 지니고 있었다.
① 매스 계획 : 입방체와 정방체의 두 형식을 기본으로 하며, 여기에 변화를 주었다. 이러한 형태는 대부분 발코니나 옥상정원의 계획과 함께 이루어졌다.
② 파사드와 입면 : 입면을 가로로 분절하고 대비되는 긴 가로창을 배열한 사례, 수평으로 창과 프레임을 라인 업(line up)한 사례, 엄격한 기하학적 정형성을 보인 사례, 반복적인 펀치 창을 배치한 사례 등 다양하게 나타났고, 그중 ‘가로로 긴 창’과 ‘반복적인 창’이 대다수였다.
③ 부가적인 의장 요소 : 건물 최상부의 캐노피, 돌출된 발코니, 외부계단, 옥상 정원의 박스 프레임 등이 다양하게 활용되었다.
대상 주택별로 상세히 분석한 내용은 <Table 3>과 같다.
Table 3.
Exterior and Architectural Design
Source: Author and Faculty of Architecture Czech Technical University (Ed.) (2000). Baba housing estate; Plans and models, Prague: Czech Technical University Press.
V. 요약 및 결론
본 연구에서는 유럽의 근대건축 운동의 전성기라 할 수 있는 시기에 등장한 여러 주택전시회 중 체코의 바바 주택전시회를 대상으로, 근대 중산층 주거에 대한 이상이 어떻게 구현되었는지를 고찰하였다. 평면 및 외관 디자인을 분석한 결과, 전통적으로 내려오던 주거로부터 탈피하여 ‘신건축’ 및 소위 ‘주거 해방’을 추구하였음을 확인할 수 있었다. 구체적으로는 근대주거의 속성을 반영한 다음과 같은 혁신적 계획들을 파악할 수 있었다.
첫째, 평면구성에 있어서 공적 공간과 사적 공간을 명확히 구분한 사례가 대다수였으며, 이때 개인공간에서의 사생활이 충분히 보장되는 방향으로 계획이 이루어졌다. 또한 정확한 가구 배치를 고려하고 각 공간의 규모를 적절히 산정한 합리적, 경제적, 기능적인 계획을 볼 수 있었다. 거실 및 식사 공간을 중심으로 한 공동생활공간은 다양한 구성을 보이면서 생활 공간에 다채로움을 부여하였고 개방적 특성이 많이 나타났다. 다만 부엌 공간은 대부분 독립적으로 계획하여 보수적인 개념을 유지하였다.
둘째, 테라스, 옥상정원, 발코니 등 내, 외부의 중간적 성격의 공간을 많이 제공함으로써, 활동공간을 넓혀주고 여기에서의 다양한 생활이 가능하도록 하였다. 특히 외부공간의 건강한 공기와 햇빛을 충분히 향유할 수 있도록 하였으며, 흥미롭고 매력적인 주거를 제공하였다. 건축과 주변 환경을 매개하는 이러한 공간들은 건물에 시각적·조형적 변화를 주는 요소로 작용하였다. 또한 여기에 파라펫, 박스 프레임, 난간 등이 추가되어 보다 풍부한 조형을 완성하였다.
셋째, 건물의 형태는 장방형 및 정방형의 박스형을 기본으로 하여 즉물적이고 단순한 형태를 추구하는 국제주의 건축의 대세를 따르되, 매스를 도려내거나 추가함으로서 풍부한 변화를 부여하였다. 이는 다른 지역의 근대 주거 건축과 가장 차별화된 특성이라 할 수 있다. 평면, 3차원의 공간, 그리고 외부의 조형이 서로 연동하는 이러한 특성은 수준 높은 건축적 미학과 공간의 질을 담보하였다. 표준화 및 공업화 건축 등 근대의 구조적 합리주의와는 거리를 두고 철근콘트리트의 기둥식, 재래식 벽식 및 조적식 구조를 적절히 적용한 결과다.
넷째, 파사드의 디자인에 있어서는 미스의 투겐타트 저택과 유사한, 가볍고 명쾌한 이미지의 근대 주거건축의 미학적 특성이 적극 표현되었다. 벽체를 대신하는 독립적인 커다란 창들이 계획되었고, 대부분 가로로 긴 수평성을 강조하면서 중력을 극복하는 기술적 진보를 표현하였다. 이는 내부에서 외부를 관조하고 향유하는 시야를 넓혀주고 밝고 경쾌한 내부의 분위기를 조성해주는 역할을 한다. 과거의 폐쇄적인 내부공간으로부터 탈피한 근대 주거공간의 혁신성을 보여주었다.
체코 기능주의의 독자성에 충실한 바바 주택전시회는 당시 대부분의 주택전시회에서 표방했던 ‘최소한의 주거’ 개념을 넘은 다른 노선을 취했으며, 국제주의 건축의 정량화된, 획일적인 대량생산의 원칙보다는 대상들에 대한 개별적 접근을 중요시하여 각각의 목적에 따라 공간을 결정한 사례였다. 실제 사용하는 생활 공간의 계획에 있어서 개인을 강조하였고, 후일의 주거수준 향상을 예견하여 보다 미래지향적이고 선구적인 높은 수준의 주거모델을 제시한 것이다. 이후 100여 년이 지난 오늘날까지도 많은 단독주택 디자인에서 바바 주택전시회에서 적용되었던 공간적 요소 및 건축적 어휘들을 흔히 찾아볼 수 있음을 상기해보면, 이 주거단지가 근대 주거건축의 미학과 이상을 잘 제시하였음을 알 수 있다. 즉 바바 주택전시회는 이상적 중산층 주거 모델로서 현재까지 지속적으로 영향을 미치고 있다는 점에서 유일하고 특별한 의미를 지니고 있는 사례로 평가할 수 있다.









































































































