I. 서 론
1. 연구의 배경 및 목적
최근 1-2인 세대의 폭발적 증가로 인해 소형 주택의 양적부족과 주거취약계층의 수용 다양화를 위한 주거환경 개선 요구가 높아지고 있다. 이에 저출산 고령화 시대의 젊은 신혼부부, 대학생 등 주거취약계층 대상으로 소형주거 모델을 개발하기 위하여 관련 다수의 국가 R&D가 수행되었고, 그 일환으로 모듈러 공동주택이 2017년 12월 서울시 가양동에 30세대, 2019년 4월 천안두정동에 40세대 총 70세대가 공급된 바 있다.
그러나 모듈러 전용 내/외장재의 부재 등으로 기존의 공동주택에 적용되는 일반 건축 부자재를 그대로 사용하고 있는 실정이며, 성능/코스트/공기 등에서 향후 개선의 여지가 많다. 따라서 공업화주택에 사용가능한 모듈러 전용부품(내/외장재) 개발이 우선적으로 검토되어야 하는데, 특히 현장설치 후 재사용을 위한 분리해체 기술 등에 대한 연구도 필요하다.
한편 2018년에는 평창에서 동계올림픽이 개최되었는데, 올림픽 개최도시는 임시시설 및 해체가능한 베뉴(경기장)를 사용하라는 IOC의 Olympic Agenda 2020 권고안에 따라 평창 동계올림픽 관련시설물 중 일부에 해체가능한 시설물을 건설하였다.
이러한 시도는 폐회 이후 지방자치단체의 시설물 운영비용 문제를 해소시킬 수 있는 장점이 있는 반면에, 해체된 대량의 프리패브 자재의 재고발생은 업체의 재사용처 확보라는 숙제를 안고 있다.
이에 평창 올림픽 운전자숙소 건축물(이하 사례A)의 내외장 프리패브 자재(패널)를 해체해서 천안 두정동 모듈러 실증단지(이하 사례B) 및 이와 유사한 규모의 모듈러 건축물에 적용시 신속하고 정확한 재사용 비율의 산출방안이 필요하다.
결국 이는 향후 국가적인 행사나 전염병 등 사회적 재난이 발생할 경우 공급되는 주택이나 건축물의 건식패널류 등을 사회주거로서의 모듈러주택으로의 재사용을 촉진시키는데 기본적인 시범사례로서 활용되는 것을 목적으로 한다.
2. 연구방법 및 범위
IOC 권고안이 적용되어 바닥, 벽 등을 프리패브 건식패널로 건설된 올림픽 시설물 사례A (패널 시공처)와 주택법 기반의 국내 두 번째 모듈러 공동주택인 사례B (패널 재사용처) 간의 연구대상패널의 재사용 가능성을 기본적인 물량산출을 기반으로 한정하고자 한다.
연구대상패널(이하 P패널)이 이미 운송이 가능한 크기로 제작되며, 설치 및 접합부는 업체의 자체시공방식을 활용하였기에 연구범위에서 제외하였다.
P패널만으로 주요구조부(바닥, 벽 등)가 시공된 사례A와 P패널이 해체되어 재활용되었으면 하는 타켓 건축물인 사례B를 유닛 및 주동 단위로 AutoCAD사의 Revit 프로그램을 활용하여 시각화하였다.
사례B의 모듈유닛박스의 벽과 바닥을 사례A의 패널 라이브러리로 대체하는 BIM 기반의 시뮬레이션을 통해 패널의 재사용 현황과 재사용 비율을 예측하고자 한다.
II. 관련 기술현황
1. 외장패널 및 재사용 관련 연구현황
중고패널의 BIM 기반 재사용 비율 및 향후 모듈러주택 시공규모 예측과 관련된 문헌고찰을 위해 국내문헌으로 한정한 후 AURIC 홈페이지에서 키워드 검색을 하였다.
‘외장패널’을 키워드로 한 문헌수는 총 20건으로 유효한 것은 18건으로, 비정형건축 패널상태평가 1건, 비정형 건축 패널최적화 1건, 패널개발 2건(모듈러 재사용/재사용 가능 1건, 모듈러 전용 외장패널 1건), 비정형건축 외장패널 설계/시공사례 3건, 비정형건축 설계지원기법 2건, 비정형건축 해석방법론 1건, 비정형건축 제작비용절감 1건, 패널지지 프레임의 구조해석 1, 비정형건축 외장패널 공사비산정기준 1건, 비정형건축의 공사비 절감방안 1건, 인발내력의 실험평가 1건, 비정형건축 외장공사비 개산견적 1건, 성능관련 2건이 있다.
이중 이재성 외1의 유닛모듈러주택의 전용 외장패널 개발에 관한 연구는 모듈러 건축 외장 디자인 현황조사, 설계/시공 문제점 도출, 전용 외장패널 개발 방법 및 활용방안을 다루고 있어 본 연구내용과는 중복되지 않았다.
‘재사용’을 키워드로 한 문헌수는 총 235건으로 대부분 여러 용도의 건축물, 건축부재, 건축재료의 재사용 방안 등을 다루고 있다.
이중 ‘외장패널+재사용’을 키워드로 한 유효문헌수는 1건으로 박준원 외2의 ‘재사용/재사용이 가능한 모듈러 건축용 외장패널 개발’학술발표대회 논문이 있다. 재사용/재사용이 가능한 모듈러 외장패널에 대한 상세설계와 시제품 제작을 다루고 있어, 본 연구내용과는 내용이 중복되지는 않는다.
2. 연구대상 패널(이하 P패널)의 기술적 특성
사례A에 적용된 P패널은 CAM-LOCK 체결방식을 활용하여 수평방향으로 간편하게 시공하고 자재 훼손없이 해체할 수 있어, 재사용이 가능한 구조용 단열패널로 구조용 합성목재 OSB를 표면재로 양면에 두고 그 사이에 단열재를 일체화시켜, 내력벽으로 제작한 건축자재이다<Figure 3>.
폭 치수가 3M의 증분치수인 패널 당 총 4개의 체결부위를 갖는 CAM-Lock 구조를 채택하여 체결공구 하나만으로 설치해체가 간편하다는 것이 큰 장점으로 고정력은 340 kg/ea이다.
BIM을 활용하여 P패널을 라이브러리화하였다.
3. 외장재 규격화를 위한 모듈정합 설계기준 및 적용
국가 R&D를 통하여 모듈러 주택의 2개 실증사업이 완료되면서 정책제안된 모듈러 주택 설계도서 작성기준(안)이 채택되면 모듈러 유닛박스와 내장재 뿐만 아니라 외장재의 표준화도 가능할 수 있는 기본 구축 단계를 앞두고 있다. 이에 본 연구에서는 법령고시 준비 중인 모듈정합 설계기준을 바탕으로 모듈러 주택의 외장재 규격화를 위한 방안을 제안한 후, 사례A의 외장재를 천안두정 모듈러 주택의 적층식 공법이 적용된 부분의 외장재에 재사용하는 방안을 제안하고자 한다.
현재 외장재에 대한 모듈호칭치수가 KS기준에 없고, 지금까지 건설된 모듈러의 외장재의 현장설치분(적층되는 유닛박스의 좌우, 상하부 접합부)이 있다. 그러나 외장재의 규격화 기준이 없어 제작업체들은 프로젝트마다 상이한 치수를 사용해왔다. 이로 인해 현장실측을 통하여 제작되기 때문에 공사기간이 연장되는 원인이 될 수 있으며, 사전 제작을 하더라도 오차 발생시 공사기간 지연의 소지가 될 수 있다.
1) 모듈정합 설계기준
외장재의 규격화 및 표준화에 대한 고민이 없었던 이유는 모듈러가 일련의 조립기준면 기반의 설계기준을 따르지 않아왔기 때문이다. 따라서 외장재의 규격화를 위해서는 우선 모듈기준면과 계획모듈의 설정이 선행되어야 한다.
모듈러건축의 평입면계획에서 300 mm (3M)의 증분치수로 내부 공간을 설계한다면 300 mm (3M)의 증분치수로 생산되는 규격패널과 기술적 치수로 생산되는 조인트 패널(1 M의 증분치수 가능)과 코너부 패널로 패널의 유형을 3가지로 분류하고 분류된 패널의 각 치수체계를 정리할 수 있다. 한편 입단면계획의 관점에서는 상하부 유닛박스간의 마감패널 격인 층간대 패널 등이 치수체계로 정리할 수 있다. 결과적으로 모든 모듈러의 외장재를 4종의 패널(규격패널, 코너부패널, 조인트패널, 층간대패널)을 활용하여 규격화를 유도시킬 수 있다.
모듈러 외장재의 규격화를 통한 표준화 및 부품화는 성능을 발전시키는데 매우 중요한데, 이를 위해서 다음과 같은 모듈정합 설계기준이라는 치수체계가 있어야 한다.
모듈유닛의 내측 크기는 가로 및 세로방향으로 300 mm (3 M)의 증분치수로 하며, 조립기준면으로 표시한다. 단, 모듈유닛의 운송 및 양중 등의 문제로 크기의 축소가 불가피한 경우 100 mm의 증분치수도 치수를 축소할 수 있다.
<Figure 4>와 같이 모듈유닛의 단변 안목치수는 2,400 mm에서 3M (300 mm)의 증분치수로 증가하는 것을 원칙으로 하며, 장변 안목치수도 2,700 mm에서 3 M (300mm)의 증분치수로 증가하는 것을 원칙으로 한다. 이때 도로교통법에서 규정하는 관련 기준을 초과해서는 안 된다.
2) 외장재의 규격화
모듈러건축의 외장재는 모듈러공법의 특성(유닛모듈의 적층)으로 인해 크게 규격패널과 비규격패널로 나뉜다. 외측으로 확장된 내측의 양끝단의 조립기준면은 규격패널과 비규격패널의 나누는 기점이 된다. 규격패널은 300 mm의 증분치수의 패널을, 비규격패널은 모듈유닛박스 간 좌우/상하간 접합부 등에 사용되는 기술적 치수패널을 의미한다.
(1) 규격패널
모듈유닛의 내측 조립기준면을 외부로 확장시켜 설정한 외장재 기준면으로서, 개구부 등과도 연계하여 규격패널의 패널라이징을 쉽게 해준다. 전면부와 측면부에 설치되는 패널로서 900 mm의 폭(불가피한 경우 보조모듈증분치수 사용)으로 시공될 수 있다. 특히 본 설계기준 적용시 300 mm의 배수의 외장재를 규격화시켜 적용시킬 수 있다<Figure 5>.
(2) 코너부패널
한 동의 모듈러 최외곽부 모서리에 설정되는 “ㄱ”자 패널이며 프로젝트마다 상이하게 발생되어 현장실측에 의해 생산되어야 하는 기술적 치수패널이다. 이는 모듈러 주택의 에너지 성능향상에도 중요한 외단열 패널로도 중요한 의미가 있다<Figure 6>.
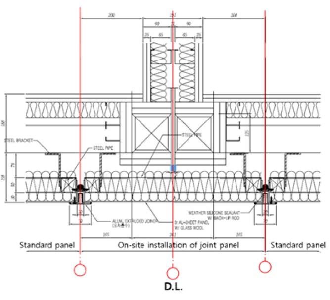
(3) 조인트패널
2개 모듈유닛의 수평간 접합부에 설정되는 기술적 치수패널이나, 향후 구조대(수평간 접합부)의 규격화에 따라 1M의 증분치수로 규격화할 수 있는 패널이다. 규격화될 경우 선 제작에 의한 패널생산이 가능하며 접합부 기술도 더불어 발전할 수 있는 토대가 마련될 것이다. 공장에서 제작되어 현장에서 설치되는 패널이다<Figure 7>.
(4) 층간대패널
모듈유닛간 상하부 접합부에 설치되는 규격화 패널이다. 최근 외단열의 화재확산 문제를 해결하기 위해 특화된 패널로 제작될 수 있다. 공장에서 제작된 유닛박스를 현장에서 상하좌우로 접합하는 공정이 있기 때문에 공장에서 모두 부착할 수 없고 조인트패널과 마찬가지로 공장에서 제작되어 현장에 설치되는 패널이다<Figure 8>.
결론적으로 모듈러 전용 외장재는 일반 건축물의 외장재의 패널라이징 수법과는 차별화되어야 한다. 외장재를 4가지 유형(규격패널, 조인트패널, 코너부패널, 층간대패널)과 추가부위 창호 주변패널로 나누어 규격화를 진행하였다. 내측에 적용된 안목기준면 잡기를 외부로 확장하여 외장재의 폭 치수를 3 M (300 mm의 증분치수)을 적용하였다. 나머지 비규격치수는 코너패널에서 흡수하는 것으로 기준을 설정하였다. 그리고 본 고에서는 규격패널과 1/2패널을 재사용가능한 패널로 인정하기로 한다.
4. 외장재 표준화를 위한 설계개선(안) 제안
모듈정합설계기준과 외장재 규격화가 전제된다면 규격패널과 코너부패널은 공장에서 설치하고 접합부패널과 층간대 패널은 현장에서는 스카이시스템으로 시공할 수 있을 될 것이다.
<Figure 9>는 최근 건설된 모듈러주택의 입면도를 대상으로 외장재의 규격화를 적용하여 개선한 사례이다.
외장재 설계기준이 미적용된 기존 입면도(좌측)에서는 개구부 크기를 기준으로 외장재 나누기를 하여 패널의 폭이 690 mm으로 100 mm의 증분치수가 아니다. 반면 외장재 설계기준이 적용된 입면도(우측)에서는 안목기준면 잡기가 외부로 확장되어 적용됨으로써 패널의 폭이 900 mm으로 1 M (100 mm)와 3 M (300 mm)의 증분치수로 가능하다. 또한 개구부의 폭도 100 mm의 증분치수가 가능하다.
외장재를 규격화한다는 것은 현장에서 정확하게 줄눈을 기준으로 적층되어야 하는 것이 전제된다. 물론 층간대패널과 조인트패널 등이 현장에서 제작 및 조립되는 것으로 활용한다면 여기에서 일정한 시공 및 제작 오차를 흡수할 수 있을 것으로 판단된다.
III. 대상시설의 BIM 모델링 및 패널 현황
1. 사례A의 BIM 모델링
사례A는 IOC의 Olympic Agenda 2020 권고안에 따라 올림픽 종료 이후 해체되는 시설물로서 본 원고에서는 P패널를 주요 구성재로 바닥, 벽 등을 이룬 시공사례로 해체시 재사용이 가능한 패널수를 예측할 필요성이 있는 건물이다.
1) 시설개요
강원도 평창군 대관령면에 지상 2층(층당 20개 객실) 규모로 건설된 사례A는 장변 길이 53,780 mm 단변 길이 11,780 mm인 판상형 18개 동으로 준공되었다.
개별 동은 중앙부에 계단실과 공용실(화장실, 샤워실, 세면실, 휴게실, 보일러/창고)이 있으며 좌우 각각 10개의 객실을 배치하였다. 객실면적은 동일하게 16.46 m2 (안목치수 기준, 가로 3,430 mm×세로 4,800 mm)이며, 34개실이 2인실용이며, 2층의 좌측날개 쪽에 6개실이 4인실용이다. 층고는 3,040 mm, 천장고는 2,400 mm이다. 업체에서는 18개동에 공급된 P패널 수를 약 2만 4천여 장으로 추정하였다.
2) 1개동 모델링
상기 시설개요를 기반으로 재사용할 수 있는 패널를 예측하기 위해서 라이브러리화된 P패널을 활용하여 LOD 300 수준으로 건축, 구조가 표현되도록 주동 1개동을 BIM 모델링하였다.
3) 패널유형 및 패널개수 파악
프리패브 적층타입의 모듈러 구조체와 P패널과의 기술융복합이 가능성을 검토하기 위하여 P패널을 라이브러리화하고 이를 활용하여 사례A를 아래와 같이 부위(바닥과 벽 등)별 패널 단위로 BIM 모델링하였다<Figure 14, 15>.
사례 A건물의 2D 도면을 BIM모델링 해본 결과, P패널을 다양한 치수로 사용됨을 알았다. 그것을 정리한 것이 <Table 1>이다. BIM모델링을 하면서 동일한 패널에 같은 속성값을 부여하여 각 패널의 수량을 산출하였다.
Table 1.
Size and Number of Wall/Floor Panels (Case A)
여기에서 규격패널(앞서 설명한 300 mm의 증분치수)치수는 1,200 mm×2,440 mm를 말하며, 1/2규격패널은 폭 1,200 mm의 1/2인 폭 600 mm 패널을 말한다. 한편 이형패널에는 개구부에 인접된 패널인 1,200 mm×2,440 mm_창호로, 지붕용 패널, 규격패널을 필요에 따라 재단하여 사용된 다양한 크기의 패널들을 포함하였다. 벽 패널의 경우, 규격패널 개수는 1개동 기준 685개(온장 479개, 1/2온장 206개), 단지 기준 12,330개(온장 8,622개, 1/2온장 3,708개)가 사용되는 것으로 나타났다. 이형패널은 1,200 mm×2,440 mm_창호, 다양한 치수패널, 지붕용이 해당되는데, 이러한 이형패널 개수는 1개동 기준 153개(1,200 mm×2,440 mm_창호 129개, 치수다양 4개, 지붕용 20개), 단지기준 2,574개(1,200 mm×2,440 mm_창호 2,322개, 치수다양 72개, 지붕용 360개)가 사용되었음이 확인된다. 한편 바닥패널의 경우, 규격패널 개수는 1개동 기준 354개(온장 179개, 1,200 mm×2,440 mm_기둥 175개), 단지기준 6,372개(온장 3,222개, 1,200 mm×2,440 mm_기둥 3150개)가 사용된다. 1,200 mm×2,440 mm_기둥은 온장에서 수직기둥부분이 짤려나간 패널을 의미한다.
결국 BIM을 활용함으로써 모듈러 실증주택에 재사용이 가능한 규격패널의 유형(온장, 1/2온장)과 패널수(18,702장)를 도출할 수 있었다.
2. 사례B의 BIM 모델링
모듈정합설계기준을 고려하여 설계된 주택법 기반 실증주택 2개 중 하나인 사례B는 안목치수 3,000 mm×6,000 mm의 모듈유닛박스 20개가 적층공법으로 건설된 레퍼런스 빌딩으로서의 가치를 가진다. 본 원고에서는 해체된 P패널을 재사용할 수요처이다.
1) 시설개요
지상 6층 40세대 규모로 2019년 4월에 준공된 사례 B는 중앙의 계단실을 중심으로 적층식과 인필식 공법이 적용된 판상형의 모듈러 주택으로 장변 26,660 mm, 단변 12,860 mm 1개동으로 건설되었다. 중앙부에 코어(엘리베이터, 계단실)가 있고 좌우로 4세대씩 편복도로 연결되어 있다.
세대면적은 16 m2 A 20세대, 16 m2 B 4세대, 26 m2 A 14세대, 26 m2 B 2세대이다. 층고는 3,250 mm, 천장고는 2,300 mm이다. 특히 본 조사대상인 적층공법이 적용된 단위세대의 안목치수는 3,000 mm×6,000 mm가 되도록 모듈정합설계기준을 적용하였다. 인필공법이 적용된 세대는 본 원고에서 논외로 하였다.
2) 1개동 모델링
상기 시설개요를 기반으로 재사용할 수 있는 패널의 수요처로서 표1의 패널 중 재활용이 불가능한 것을 제외한 패널을 활용하여 LOD 300 수준으로 건축, 구조가 표현되도록 주동 1개동을 BIM모델링하였다. 특히 모듈러주택의 경우 모듈유닛의 적층에 의해 건설되기 때문에 BIM 모델링시 모듈유닛을 구성하는 구조, 내외장재 등을 각각 라이브러리화한 다음, 조합체인 모듈유닛박스 1개도 라이브러리화가 가능하도록 하였다.
3) 패널유형 및 패널개수 파악
규격패널(온장, 1/2온장)로서 P패널의 재사용비율을 검토하기 위하여 사례B를 다음의 <Figure 20, 21>과 같이 부위(바닥과 벽 등)별 패널 단위로 BIM 모델링하였다.
BIM 모델링을 통해 1개동 중 적층공법이 적용된 모듈 유닛박스 20개에 들어가는 벽과 바닥패널의 유형별 사이즈와 개수를 도출한 것이 <Table 2>이다.
Table 2.
Size and Number of Wall/Floor panels (Case B)
우선 벽 패널의 경우, 규격패널 개수는 적층식 1세대 1모듈유닛 기준으로 16개, 동 기준 320개가 사용되었음을 확인하였고 이형패널은 치수다양×2,440 mm, 치수다양×575 mm가 포함된다. 이형패널 개수는 적층식 1세대 기준 46개(치수다양×2,440 mm 15개, 치수다양×575 mm 31개), 동 기준 920개(치수다양×2,440 mm 300개, 치수다양×575 mm 620개)가 사용되는 것으로 파악된다. 한편 바닥패널의 경우, 규격패널 개수는 적층식 1세대 기준 8개(온장 8개), 동 기준 160개(온장 160개), 이형패널 개수는 패널의 치수가 각각 상이한 7개가 사용된 것을 확인할 수 있었다.
IV. P패널의 모듈러주택 재사용 비율 예측
1. 재사용 비율 예측
BIM 모델링을 통해서 동일한 패널에 같은 속성값(폭과 높이)을 부여하여 패널수량 산출했기 때문에 2D 도면 기반에서 산출하는 것보다 용이하였다.
그리고 패널의 폭 치수가 3M의 증분치수였기 때문에 모듈러주택 설계도서 작성기준(안)의 모듈정합과 일치하게 때문에 모듈러의 바닥/벽 구성재로 재사용 비율을 높일 수 있었다.
본 장에서는 BIM에서의 객체의 단순 수량산출을 활용하고 모듈정합으로 건설되는 모듈러의 장점을 접목하여 사례A에서 해체된 P패널의 사례B로의 재사용비율을 살펴보고자 한다.
1) 재사용 비율 도출을 위한 사례 간의 수치 비교
P패널은 벽 용도와 바닥 용도를 구별하지 않고 사용되나, 본 연구에서는 재사용율 도출하기 위한 사례A와 사례 B를 비교시, 벽 용도와 바닥 용도를 구분하여 분석하였다.
벽패널의 경우에는 아래의 <Figure 22>과 같이 규격패널과 1/2규격패널이 재사용이 가능한데 총 15,084장 가운데 12,330장으로 75% 가량이 재사용이 가능하다
바닥패널의 경우에는 아래의 <Figure 23>과 같이 규격패널이 재사용 가능한데 총 8,280장 가운데 6,372장으로 77% 가량 재사용이 가능하다.
2) 재사용 비율 예측
패널 재사용은 벽패널의 경우 규격패널과 1/2패널이 재사용될 수 있고, 바닥패널의 경우에는 규격패널 만이 재사용될 수 있다. 따라서 사례A에 사용된 전체 18개 동에 적용된 패널수는 총 23,364장이며, 이 가운데 규격패널과 1/2규격패널 18,702장을 사례B에 그대로 사용가능한 것으로 판단된다. 이를 세부적으로 살펴보면, 벽 규격패널의 개수가 8,622장, 바닥 규격패널의 개수가 6,372장, 벽 패널로 사용된 1/2 규격패널수의 개수가 3,708장이 재사용될 수 있다.
사례B에 사용가능한 패널수를 사례A의 사용된 전체패널수로 나눈 수식으로 재사용가능한 비율을 구하였으며, 그 값은 80.04%이었다. 이 수치는 사례A의 P패널의 80%가 사례B의 적층식 모듈러에 재사용이 가능하다는 것을 의미하면서 동시에 P패널 공법의 경우 모듈정합 설계된 모듈러 건축물에 재사용될 수 있는 최대 비율을 말한다.
<Figure 24>의 재사용비율 예측 수치는 BIM에서의 객체의 단순 수량산출을 활용하고 모듈정합으로 건설되는 모듈러의 장점이 접목되었기 예측가능할 수 있었다.
2. 규격화율 (B사례에서 P패널을 사용할 수 있는 비율)
사례B의 적층식 공법부분 20세대 제작에 소요될 것으로 예상되는 규격 및 1/2규격의 패널수는 480장이므로, 3장에서 도출된 재사용 가능한 패널수(규격+1/2규격) 18,702장을 480장으로 나누면 약 39개동에 적용할 수 있는 물량으로 산출된다.
사례A 18개동의 재사용가능패널(규격패널과 1/2규격패널)수로 사례B 적층식공법 규모 39개동의 모듈러 공동주택의 벽체와 바닥판에 적용할 수 있는 물량으로 분류할 수 있다. 단 여기에서 39개동을 모두 재사용 패널로 적용한다는 개념하고는 구분되어야 한다.
사례 B의 비규격패널은 벽패널의 경우 920장 그리고 바닥패널은 140장으로 파악되는데, 이는 비 규격화비율로 볼 수 있고 이는 68%에 달하는데, 반대개념으로 규격화율은 32%에 불과하다는 것이다.
이는 천안두정의 설계시 모듈정합 설계기준을 미흡하게 적용되었다는데서 기인한 것으로 파악되어, 향후 재사용율의 제고를 위해서는 사례 A, B와 같이 재사용에 관련된 건축물의 경우 동일한 모듈정합설계기준의 적용이 요구된다.
V. 결 론
본 연구에서는 사례A와 사례B를 대상으로 사례A에서 사용되었던 P패널을 사례B에서 재사용하는 가능성과 비율을 도출하고 재사용 패널의 규격으로 세분화시켜 향후 재사용 패널의 비율을 예측하고 이를 제고시키는데 기초적 자료로서 활용하는 것을 목적으로 한다. 그리고 BIM의 장점(객체 라이브러리화, 반복배치, 물량산출 등)을 활용하여 P패널의 재사용 비율을 사전에 신속하고 정확하게 예측하여 향후 모듈러 건축물의 자재와 부품을 재사용하는 방안으로서 시범적인 사례를 제시하였다.
사례A와 같은 일반건축물에 적용되는 패널이라도 일정한 모듈정합의 치수로 제작시공된다면 향후 모듈정합 기준에 맞추어 생산되는 사례B와 같은 모듈러 주택에서도 규격패널과 1/2패널에 해당하는 패널로서 최대 80% 정도의 패널이 재사용이 가능할 것으로 기대할 수 있다.
즉 조사대상 패널의 재사용 및 재사용성 가능성은 충분한 것으로 파악된다. 다만, 본 연구를 통하여 80%패널이 재사용 및 재사용성을 확보하고 있지만 재사용 패널이 적용되는 건축물에서는 전체 패널 가운데 재사용 패널의 30%적용율에 머물고 있다. 한편 P패널의 경우 다음과 같은 세부적이고 추가적인 개선책이 필요하다.
첫째, 모듈러 공법과의 접목을 위해서 P패널의 제작치수 일부 변경이 필요함을 알 수 있었다. 가변지그를 활용하여 장변방향은 길게, 단변방향은 짧게 조정이 가능한 가변 지그를 활용하여 패널규격의 획일성을 탈피하여야 한다. 둘째, 내부벽체로 사용시 패널상부를 절단 부위에 캠락이 위치하여, 상부 절단시 캠락사용이 곤란하므로, 모듈러 공법과의 접목을 위해서 캠락의 위치를 변경하는 것이 바람직하다. 이상의 조건은 특정 패널의 경우 전제되는 조건으로 타 업체의 건식외장 패널의 경우에도 일정한 치수조정과 접합부 조정을 전제로 할 경우에는 80% 정도의 재사용이 가능할 것으로 판단된다. 동시에 재사용 패널을 사용하는 건축물은 모듈정합설계기준을 준용하여 건축하는 것이 필요하며, 현재의 30% 수준을 제고시켜가야 한다.
향후 국가적인 행사나 재해 등이 발생할 경우 일시적인 주거 및 건축물의 공급시에 여기에 적용되는 외장재를 비롯한 건식자재 등이 재사용 될 수 있다. 즉 향후 전염병 발생시 일시 격리시설이나 사회인 주택이나 공공임대, 청년 주택 등 주거복지의 차원에서 필요한 주거모델 등에 적극적으로 재사용하는 시스템으로 검토될 수 있다.


























