I. 서 론
1. 연구의 배경 및 목적
최근에 사회구조의 변화로 1~2인 소형가구, 고령가구의 비중이 크게 증가하면서 도시 내 소형 임대주택에 대한 수요가 급증하고 있다. 필연적으로 수요자 맞춤형 주거모델 개발이 필요한 상황이다. 이에 따라 정부에서는 “주택건설기준 등에 관한 규칙(2012.04)” 개정을 통해 공업화 주택의 공동주택 적용을 가능하게 하였으며, “2012년도 주택종합계획(2012.06)”에서 다양한 주택 공급 및 시장창출을 위한 해결책으로 공업화주택에 기반한 저층 공동주택으로 방향을 추진하였다.
공업화 주택의 한 종류인 모듈러 건축공법은 현장축조의 기존방식과 차별화된 공법으로 공장에서 3D 박스형태의 정형화된 입방체로 구성되는 구조체 내부에 각종 내장재, 기계설비, 전기배선 등을 미리 시공하고 현장운반 후에는 이를 조립하여 완성하는 건축공법으로(Lee & Lim, 2011) 단기간 주거공급이 가능한 장점을 갖고 있다. 이러한 모듈러 공법을 활용하여 공공임대주택 대상 조립식 주택 실증단지 구축 및 관련기술 개발 등이 최근에 국토교통부 주도하에 적극적으로 추진되고 있다. 그러나 지금까지의 모듈러건축에 대한 설계는 일반 습식건축물과 동일한 설계방법을 사용하고 있어 건식자재에 대한 특성 및 공장제작을 전제로 하는 자재 및 부품의 표준설계가 이뤄지지 않고 있는 실정이다. 특히 모듈러 건축은 현재 기존의 RC 공법대비 130%의 공사비가 소요되는 것으로 나타나(Park, 2014) 건축비를 낮추기 위해서는 시공의 효율성을 높여 공사기간을 줄이고 규격화된 자재를 사용하는 표준설계가 필수적이라고 할 수 있다.
모듈러 건축의 경제성에 영향을 미치는 요인에는 ‘구조시스템, 건축물 용도의 적합성, 습식공사 및 내화 비용의 고려, 해체 및 재사용 고려, 효과적인 사업모델’(Kim & Cho, 2014) 등의 다양한 조건이 있으며 공장제작 비율을 높이고 RC대비 동일한 규모로 일정비율 이상 건축하면 경제성을 확보할 수 있는 규모의 경제 방법도 있다(Kim & Lee, 2011).1) 그러나 모듈러 건축 도입기인 국내의 상황은 모듈러 건축시장의 규모를 확대하기에는 미흡한 시장 도입기라는 점을 고려한다면 재료손실률을 최소화하고 규격화된 자재사용을 통해 제작 및 시공성을 높이며 경제성을 확보하기 위해서 최우선적으로 고려되어야할 부분은 Modular coordination(이하 MC 설계)이다. 따라서 본 연구에서는 국내 모듈러 건축 특성을 파악하고 설계 표준화 가능성을 모색하며 MC 설계의 적용을 통하여 주요 자재의 표준화 효과를 규명하고자 한다.
2. 연구의 범위 및 방법
모듈러 건축의 중요한 목적은 부품을 공장에서 대부분 생산하고 현장시공 기간을 최소화 하는데 있다. 공장생산을 최소화시키기 위해서는 공장에서 표준자재를 이용한 모듈러 제작이 이뤄져야 하기 때문에 표준설계가 전제되어야 한다. 그러나 현재 국내의 경우 모듈러 건축에 설계표준화가 적용되는 사례가 미비한 실정이다. 따라서 본 연구에서는 국내의 모듈러 건축사례를 분석하여 MC 설계 적용 가능성에 대하여 논하고자 한다.
국내의 모듈러 건축 제조사의 구축사례 중 4곳을 선정하고 모듈치수에 관한 내용은 설계 도서를 분석하였다. 도면에 표기되지 않았거나 도면만으로 분석이 어려운 재사용성 및 난방, 외장마감재 등에 관한 사항은 해당 모듈러 제작사의 실무자들과의 면담을 통해 분석이 이뤄졌다.
일반특성에서는 사용성 및 입면형태 등을 파악할 수 있는 요소로 설정하였고 일반적인 구조시스템을 파악하기 위해 구축방법, 재사용성에 대한 내용을 조사하였다. 설계특성 분석에서는 기존에 ‘철골조 유닛하우스의 오픈시스템을 위한 설계기준 설정연구(이하 모듈러 MC설계 기준)’에서 제안된 모듈러 건축 MC 설계 기준을 기준으로 분석하였다. 그리고 사례별로 설계표준화 적용 여부 및 가능성을 파악하기 위해 유닛사이즈 및 수평·수직계획모듈을 분석하고 필요성에 대하여 서술하였다.
II. 모듈러 건축의 이해
1. 모듈러 건축
모듈러 건축은 공장에서 구조재, 내장재, 각종 설비 등을 설치한 Unit Box를 완성하고 현장에서는 최소한의 조립공정으로 건축물을 완성하는 공법이다(Lee & Lim, 2011). 주택을 공장에서 제작하기 때문에 현장에서의 작업을 최소화 할 수 있어 인건비의 절감과 양질의 주거성능을 확보할 수 있다(Wang & Lim, 2014). 그리고 현장공사 최소화를 통해 현장 공사폐기물 감소를 기대할 수 있다. 유닛모듈러 건축은 레고블록처럼 조립 및 해체가 간단하고 부분적인 유지보수 및 노후화에 따른 교체 및 수리가 용이하여 용도변경에 따른 증축 리모델링이 간편한 특징을 갖고 있다(Lee et al., 2013). 특히 공업화 건축에 기반을 둔 공법으로 자재의 균등한 성능을 확보 할 수 있는 장점을 갖고 있다. 모듈러 건축은 크게 구조 및 구조시스템에 따라서 아래 <Table 1>과 같이 공법적 유형을 구분 할 수 있다.
2. Modular coordination 설계
모듈러 건축은 공장생산을 전제로 하는 공업화 건축시스템이기 때문에 제작의 효율성 및 경제성 확보를 위해서는 MC 설계가 필수적으로 이뤄져야 한다. MC 설계는 건축물의 주요 구조부(벽, 기둥, 바닥 등) 및 창 개구부의 위치 설정 등을 위한 규정으로(KS F1525:2002) 수평 및 수직계획모듈 그리고 주요구성부의 증분치수설정 등 의 설계기준 수립이 우선된다. 수직·수평모듈계획은 건축 공간, 건축구성재 상호간의 호환성을 바탕으로 수평·수직계획 모듈 격자 체계를 정하는 것을 의미한다(Park & Kim, 2014).
국내의 MC 설계 기준은 ‘International Organization for Standardization (이하 ISO) 2848 Building construction-Modular coordination-principle and rules’를 준용한 내용으로 기본적으로 수평모듈 계획은 300 mm (3 M), 수직모듈 계획은 100 mm (1 M) 원칙으로 증분치수를 적용하고 각 구성재마다 설정기준을 설정하고 있다.
국내뿐만 아니라 해외에서도 모듈정합치수에 대한 원칙을 갖고 있는데 대부분 ISO 기준을 준용하고 있는 실정이다.
국내의 모듈러 건축의 모듈정합 설계 기준은 ‘철골조 유닛하우스의 오픈시스템을 위한 설계기준 설정연구’에서 유닛하우스의 설계기준으로 제안되었다. 내용은 수평·수직계획모듈의 설정 및 벽체, 층간대, 창호 등 주요 부위의 기준면 설정에 관한 내용이다. 유닛하우스 설계 기준 제안 또한 ISO 기준을 적용한 것으로 벽식 공동주택설계도 작성기준, 철골조 및 라멘조 공동주택 설계도서 작성기준, 조립식주택의 설계도서 작성기준과 연계된 규정이라고 할 수 있다(Lim, 2004). 국내 모듈러 건축의 모듈정합 설계 기준 내용을 요약하면 <Table 2>와 같다.
Table 2.
Country-specific Module System
Source. Lee, Son, & Whang, 2002
Table 3.
Design Standards of the Unit Houses
Source. Lim, 2004
3. 국내외 모듈러 건축의 표준화 동향
1) 국내 모듈러 건축
국내 조립식 건축물은 도입 초기에는 단순 PC패널 조립의 개념이었으나 성능개선을 통하여 공업화 건축으로 활성화되면서 모듈러 건축시스템으로 발전해 가고 있다. 초기 국내 모듈러 건축은 학교 시설, 군부대 시설이었지만 점차 주거시설, 업무시설에 적용하면서 시장도입단계에 들어서고 있다. 최근 정부는 군 주거시설 개선 사업을 통해서 모듈러 건축시스템을 병영생활관 공사에 확대 적용하고 있다(Park, Kim, & Lee, 2014).
기존의 대규모 택지에 철골구조의 아파트 위주 임대주택 공급은 택지의 부족, 장기간에 걸친 공사기간 등의 한계가 있어 최근에는 모듈러 건축시스템을 활용한 임대주택 시장 규모가 점점 커지고 있다(Lee & Jang & Kim, 2014). 주거 취약계층을 위해 도심지 유휴부지(공용주차장 상부 등) 등에 모듈러 공법을 이용한 임대주택을 구축하려는 시도가 이뤄지고 있는데 대지의 효율성을 극대화 시킬 수 있으며 공사기간을 최소화하여 도시 교통에 미치는 영향을 최소화 할 수 있기 때문이다.
건설정책연구원의 발표에 따르면 국내 중앙정부 주택공급 계획에 의한 공공주택 공급량, 중·장기 시장 전망, 국내 모듈러 시장의 성장세 등을 ARIMA (Auto-Regressive Integrated Moving-Average)모형을 통한 시계열 분석 결과, 향후 국내 모듈러 시장 규모는 2015년에 2,000억 원, 2020년에는 약 9,400억 원으로 확대될 것으로 예상하고 있다.
2) 국외모듈러 건축
초기 모듈러 건축의 도입은 화재나 전쟁 이후 도시복구를 위한 수단으로 활용되었다. 그러나 최근에는 인건비 상승으로 인한 건축비 증가를 막기 위한 방법으로 모듈러 건축에 대한 개발이 지속적으로 진행되고 있다.
영국은 발달된 철강 산업을 기반으로 1950년대부터 모듈러 기술이 발전되어 왔고, 2000년대 들어서는 연평균 10% 이상의 높은 시장 성장률을 기록하며, 모듈러가 고층 건물에까지 적용되고 있다. 영국의 경우 모듈러를 포함한 강·건자재 시장이 활성화되어 있기 때문에 시장분석 자료가 비교적 풍부하고 건설시장 규모나 도시화가 한국과 유사하여 국내 모듈러 시장에 대한 벤치마킹 대상으로 적합하다는 평가를 받고 있다(대한건설정책연구원, 2011). 설계표준화 인치단위를 10 cm의 매트릭 모듈로 전환시키는 작업을 영국표준협회(BSI)와 모듈협회(Modular Society)의 주도하에 추진되었다(대한건축사협회, 2003).
미국의 조립식주택 시장은 2011년 기준 약 $5 billion(약 5.5조원) 규모의 모듈러 건축 시장이 형성되었고 Permanent market은 42%, Relocatable market은 58%의 시장을 점유하고 있는 실정이다. 미국의 모듈러 건축 시장은 의료시설, 대학기숙사, 제조시설, 저층건물, 공공건물 등에서 모듈러 건물 등 다양한 유형에 대한 시장이 형성되어있다. 현재 뉴욕 맨하탄 시내에 고층 32층 규모의 모듈러건축이(프로젝트명: B2-Atlantic Yards) 시공되고 있는 상황이다. 미국은 인치와 미터를 이원화하여 사용하고 있는 실정이어 설계 표준화가 추진되는데 많은 어려움을 겪고 있다.
일본의 대형 모듈러 업체들은 CAD/CAM 시스템 기반으로 프리컷 공장제작 체제를 갖추고 있으며 모듈러 주택의 평면형태 및 유형을 다양화하여 소비자들의 요구에 대응하고 있다. 일본의 모듈러 건축 시장은 단독주택 위주의 저층형으로 길이가 3.0 M 정도로 제작된다(Lee & Lim, 2012). 일본의 설계표준화는 각 업체마다 클로즈 시스템을 사용하고 있어 치수표준화보다는 성능표준화 위주로 전개되고 있는 실정이다(대한건축사협회, 2003).
4. 선행연구 분석
국내 모듈러 건축 연구의 초기단계에서 Lim(2004)은 철골조 유닛하우스의 모듈정합설계기준의 적용성을 검토하고 선진화된 일본의 공업화 주택 설계기준을 분석하였다. 수평계획모듈, 수직계획모듈 주요부위 등으로 나누어 국내 실정에 맞게 도출하여 향후에 계획되는 모듈러 건축을 위해 설계기준안을 제시하였다. Jung, Jung and Cho (2012)는 모듈러 시스템을 활용한 국내의 리모델링 적용사례를 조사하였고 국내시장에 도입 및 확산 가능성과 해결해야 할 문제 등을 고찰하였다. Lee and Lim(2011)은 도시형 생활주택에 유닛모듈러 공법을 적용하여 수직, 수평 계획모듈 기준과 벽체 기준면, 층간대 기준면 등을 설정하여 Prototype을 개발하였다. Kim and Lee(2011)는 유닛모듈러 기술로 시공 가능한 4층의 연립형 도시형생활주택을 대상으로 수직모형을 개발하고 평가에 필요한 표준분석 대상 및 가정을 설정하여 기존 RC조와 경제성을 비교 분석하였다. Song, Lim and Wang(2014)은 국내 임시주거시설의 거주민을 대상으로 주거환경에 대한 거주 후 평가 결과를 토대로 모듈러기반 임시주거시설의 계획안을 도출하였는데 단위유닛 설정에서 최저주거기준을 분석하고 유닛운반 관련 제한요인, 수평계획모듈을 고려한 임시주거 단위유닛을 설정하여 거주자의 다양한 요구를 반영하였다는데 의의가 있다. Moon, Kim and Park(2013)는 주거용 모듈러 건축의 국내외 사례를 중심으로 계획적 특성을 신속성, 융통성, 지속가능성, 경제성 분야로 나누어 분석하고 계획적 측면과 제도적 측면에서 국내시장 활성화 방안을 제시하였다.
Suh and Yun(2014)은 BIM을 기반으로 모듈의 벽체 제작시 소요되는 마감재인 석고보드, CPR (Cement Particle Board), 단열재 등의 시공시 자재 손실률을 최소화 시키는 방안에 대한 연구를 진행하였다.
현재까지의 모듈러 관련 연구는 설계기준, 현장적용 및 경제성평가 등 모듈러 건축 전반에 걸쳐 연구가 활발히 진행되었지만 국내에 건립된 모듈러 주택의 사례를 중심으로 건축특성을 파악하고 표준설계 방향을 모색하는 연구는 아직까지 미비한 실정이었다. 따라서 본 연구에서는 국내 모듈러 건축의 일반 및 설계특성을 파악하고 이를 기반으로 MC 설계의 적용 가능성 및 효과를 규명하고자하는 기초적인 연구로써 의의가 있다.
III. 국내 모듈러 주택의 특성
1. 분석방법
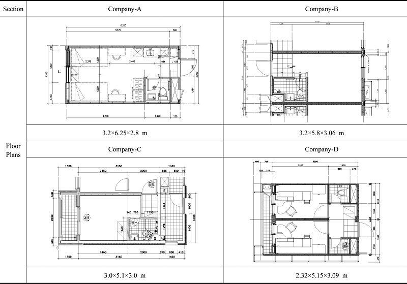
주거용도로 사용되고 있는 대학생 임대주택, 독신자숙소, 직원 합숙소, 공공기숙사 4개의 사례를 분석하였다. 분석기준은 모듈러 주택의 건축적 특성을 파악을 위해 일반사항과 설계특성 분석으로 나누어 조사하였는데 일반특성에서는 사용성을 파악할 수 있는 용도 및 입면 형태를 파악할 수 있는 외벽마감, 필로티 설치유무를 파악하였고 규모를 파악할 수 있는 층수, 건축면적을 조사하였으며 기타로 난방방식 등을 기준으로 설정하였고 일반적인 구조시스템을 파악할 수 있는 구축방법, 재사용성에 대한 내용을 기준으로 설정하였다.
MC 설계 특성에서는 모듈정합 설계(MC)에 따른 건축물별 증분치수 적용 여부를 분석하기위해 수평·수직계획모듈 등을 분석기준으로 설정하였다. 분석할 사례들은 전반적으로 원룸형 평면으로 구성되어 있어 벽체의 사용량이 적고 벽식구조가 아닌 라멘조로 얇은 건식벽체를 사용하고 있어 분석기준에서는 제외시켰다. 그리고 최근에 제작되고 있는 창호의 사이즈는 KS F 1515의 표준모듈 호칭치수로 제작되고 있는 실정이어서 분석에서 제외시켰다.
Table 5.
Analysis Criteria
2. 일반특성
A사 주택의 용도는 기숙사이며 입주대상은 대학생으로 총 48인이 입주가 가능하다. B사의 모듈러 주택은 독신 직원들의 숙소로 활용된다. C사의 건물은 직원용 합숙소로 사용하고 있으며 D사의 건축물은 공동주택으로써 대학생을 대상으로 하는 기숙사인데 근린생활시설 및 장애인실이 설치되어 있다. 사례들의 용도를 살펴보면 기숙사 및 1-2인 숙소로 사용되고 있는 것으로 나타났고 모듈러 주택의 외벽마감은 공장제작 효율성 및 운반성이 좋은 강판패널이나 외단열시스템을 사용하고 있었다. 특히 4개사 모두 제작비 및 공기를 단축하기 위해 동일한 유닛사이즈를 사용하였고 Enclosed된 입면기법을 사용하여 파사드가 단조롭게 보이는 문제점이 나타났다. 난방방식은 대부분 전기패널 방식을 사용하고 있었으나 A사가 온수난방 방식을 취하고 있었다. 모듈러 건축에서는 유닛의 조립을 위해서는 평활도의 확보가 중요하다. 따라서 공장에서 외장재까지 조립하여 현장에서 조립만하는 경우는 1층을 필로티로 구성하여 2층부터 유닛을 적재하는 것이 시공 효율성 및 대지의 경사를 극복할 수 있어 3층 이상의 라멘조에서는 1층에 필로티를 설치하였다.
현재까지 국내에 인필시스템을 제외하고 적층형 라멘조 모듈러 건축은 4층 이상을 구축한 사례는 전무하다. 이미 영국에서는 울버햄튼에 대학생 기술사를 25층 규모로 건축하였으며 최근 미국은 뉴욕에서 32층 모듈러 건축물(B2-Project)이 시공 중이다. 국내에서도 고층형을 구축할 수 있는 코어 및 구조시스템을 개발하여 중고층으로 확장하려는 시도들이 이뤄져야 할 것이다. 건축면적은 군시설인 B사를 제외하고는 대부분 다세대 및 도시형생활주택의 규모인 소규모 주거시설로 구축되었다.
C사의 구조시스템은 인필방식2)으로 유닛을 구조체에 서랍처럼 넣는 구축방법으로써 적층형 라멘조인 A, B, D사와 기술적 측면에서 차별성을 갖는다.
중고층화에 유리한 공법으로 선박의 캐빈에 이용되는 기술을 건축에 적용한 사례이다.
3. MC 설계 특성
1) 유닛사이즈
모듈러 건축의 유닛은 공장에서 제작된 후 운반되어 현장에서 조립된다. 따라서 유닛 사이즈가 운반 및 양중 장치의 용량을 고려하여 설정되어야 한다. 또한 표준자재를 적용하기 위해서는 초기 설계 단계부터 유닛 사이즈가 결정되는 것은 필수적이다. 모듈러 건축에서는 기초 및 구조체, 비모듈 부분(필로티, 경사지붕) 등의 설계는 일반적인 기준선인 중심선을 사용하고 유닛의 운반한계 치수3)를 파악하기 위해서는 외목치수로 기준선이 설정되어야 한다.
C사는 이미 지상 10층 건축물을 인필시스템으로 구축하여 중고층에 대한 기술을 보유하고 있다.
유닛을 분리해체 후 재사용할 수 있는 비율은 높지만 구조체에 대한 재사용성은 불리하다. 그리고 적층형인 A, B, D사의 사례 중에서도 군시설인 B사의 사례는 초기 설계단계부터 이축에 대한 고려를 통해 재사용성을 높였다.
Table 6.
A Case of Domestic Modular Construction
부재 및 수장재 사이즈를 표준화시키기 위해서는 안목치수 기준이 적용된다. 그러나 사례들의 유닛평면도를 분석한 결과 중심선 및 외목치수는 기입하고 있으나 안목치수는 기준선으로 설정하고 있지 않았다. 이는 모듈러에 사용되는 부재의 표준화 설계가 이뤄지지 않고 있다는 것을 단적으로 보여 주고 있다.
2) 수평계획모듈
모듈러 건축 MC 설계 기준에서는 수평모듈계획 주 증분치수를 300 mm (3 M)으로 설정하고 모듈러 건축에서 수평계획모듈을 적용한다. 그러나 공간의 사용성, 시공성, 기능성을 고려(대한건축사협회, 2003)하여 100 mm (1 M) 증분치수도 고려되어야 한다. 예를 들자면 화장실을 Unit Bathroom (F 2222:1996)로 시공할 경우 긴 변 방향과 짧은 변 방향의 모듈호칭 치수가 100 mm (1 M) 기준으로 설정되어 있기 때문이다.
유닛에 사용되는 자재를 규격화된 제품을 사용하여 시공 효율성을 높이고 공기를 단축 및 유지보수를 용이하게 할 수 있다. 또한 성능이 확보된 제품을 사용함에 따라 균등한 환경성능을 기대할 수 있다.
안목치수 기준으로 각 사례들의 수평계획모듈을 비교해보면 너비방향은 A사 및 B사 정도가 3M 증분치수에 일치한다고 할 수 있으나 길이방향은 전체가 3M 증분치수를 따르지 않는 것으로 나타났다. 이는 자재의 손실률을 높이고 자재의 과잉사용을 초래하여 건축단가를 높이는 문제점을 초래한다.
3) 수직계획모듈
수직계획모듈은 기본적으로 층고를 기준으로 하며 100 mm (1M)의 증분치수를 사용한다. 사례조사 결과 층고는 2,800 mm부터 3,090 mm까지 분포하였는데 A와 C사는 100 mm (1M) 증분치수를 사용하고 있었다. 층간대는 수평계획모듈과는 다르게 부재의 치수 및 구조시스템의 영향을 받는 부분이다. 적층형 모듈러 건축은 유닛이 레고처럼 쌓아지는 형태로 유닛 조립을 위해 층간대 부분의 외장재는 마감되지 않고 운반된 후 현장 시공된다. 시공의 효율성 및 정밀도를 위해서는 규격화된 증분치수로 계획되어야 한다. 업체별 설계 사례를 분석한 결과 B사, C사, D사의 제작 및 시공오차를 감안한다면 거의 100 mm (1M) 증분치수와 유사하게 나타났다. 이는 모듈러 제작사의 구조시스템이 상이하지만 수직계획모듈의 증분치수 기준을 표준화 시킬 수 있는 가능성을 보여준다고 할 수 있다.
IV. 모듈러 건축의 MC 설계 적용 효과
모듈러 건축의 유닛박스 사이즈를 3,000 mm(너비)×6000 mm(길이)×3000 mm(높이)로 한다면 천장고는 2400 mm 정도를 사용하는데 방화석고보드(KS F 3504:2012) 규격은 <Table 8>처럼 정해져 있기 때문에 수평은 300 mm(3 M), 수직 100 mm(1 M)의 기준으로 <Figure 6>과 같이 방화석고보드 규격을 사용하면 공장제작시 자재 손실률을 최소화할 수 있다.
Table 8.
KS F 3504:2012 Fireproof Plaster Board Standards
| Length | Width | ||
|---|---|---|---|
| 600 mm | 900 mm | 1200 mm | |
| 1800 mm | Ⓐ | Ⓑ | - |
| 2400 mm | Ⓒ | Ⓓ | Ⓔ |
| 2700 mm | Ⓕ | Ⓖ | - |
| 3000 mm | Ⓗ | Ⓘ | - |
즉 안목치수 기준으로 너비방향을 3,000 mm (3 M 증분치수)으로 길이방향은 6,000 mm (3 M 증분치수), 천장고를 2,400 mm로 선정했을 경우 모듈러의 너비방향은 D패널 2장과, C패널 2장으로 시공하고 길이방향은 1,200×3,000 규격의 E패널 5장을 사용하여 시공할 수 있다. 그리고 천장부분의 석고보드도 KS 방화석고보드 규격을 참고하여 시공하면 된다.
아래의 전개도는 방화석고보드(KS F 3504:2012) 규격을 기준으로 현황 조사한 업체 A, B, D4)사 그리고 수평계획모듈 3 M, 수직계획모듈 1 M 증분치수를 따른 MC 설계 표준안(Mock-up으로 실제 제작됨)을 비교한 것으로 공장제작시에 방화석고보드를 시공하는 것을 전개도로 표현하였다. MC 설계 표준안에서 석고보드 사용 유형이 가장 적어 시공성을 극대화 할 수 있었고 부재 부합률5)이 99.06%로 나타나 자투리 재료사용을 최소화하여 시공성을 확보하고 작업시간을 단축할 수 있다. 또한 자재의 폐기물을 파악할 수 있는 손실률6)에서 0%로 나타나 건설폐기물을 최소화하여 간접비 등에서 건축비를 낮출 수 있는 것으로 나타났다. 여기에서 석고보드뿐만 아니라 그 외의 재료들도 적용 가능하다.
건축부분에서 Open System을 구축하려는 주된 이유는 공업화를 이루는 것이 궁극적인 목적이기 때문이다. 따라서 원천적으로 설계 표준화가 이뤄지지 않으면 공업화를 기대할 수 없는 것이 현실이다. 따라서 건축설계, 재료, 구조, 시공 등의 각 분야에서 분야별 시스템에 맞으면서 공통적으로 적용할 수 있는 표준화 추진이 필요하다(Lee & Lim 2012). 국내에는 이미 공동주택 모듈정합에 대한 MC 설계 기준이 이미 마련되어 있다. 그러나 설계사무소 및 시공 현장에서는 표준설계 적용이 미비한 상황이다. 이는 제도적, 경제적, 기술적인 이유가 있겠지만 아직도 국내에서 건식시스템에 대한 이해가 부족하고 안목치수 기준의 설계 개념이 보급되지 않은 결과라고 할 수 있다.
안목치수 기준의 설계는 부품상호간의 호환을 목적으로 하는 오픈빌딩의 개념이다(대한건축사협회, 2003).
일본의 경우 모듈러건축 모듈정합설계 기준이 클로즈 시스템으로 각 업체마다 상이한 수직·수평모듈 증분치수 체계를 가지고 있다. 이는 각 업체에서 사용하는 자재들의 치수가 상이하다는 것이다. 따라서 동일한 회사의 자재를 사용하더라도 규격이 다를 수 있다. 한국은 이러한 전철을 밟지 않기 위해서는 국내 모듈러 제작사들이 업체마다의 설계기준을 주장하지 않고 통일된 모듈정합설계 기준을 갖는 것이 중요하다. 국내 모듈러 건축은 통일된 오픈시스템을 구축하여 수평 및 수직계획모듈과 연계되는 각종 자재와 부품은 주택법과 한국산업규격(KS)에서 규정하고 있는 치수체계를 준용하고 일반 공동주택에 적용하는 자재와 부품이 모듈러 건축에 적용할 수 있는 오픈시스템으로 구축되어야 한다(Lim, 2004).
안목치수를 사용하는 모듈러 건축은 일반 건축물과 차별되는 기준선 체계를 적용해야 할 것으로 판단된다.
<Table 13>과 같이 하부(지하)구조는 대부분 기존의 습식방식을 사용하기 때문에 구조체에서는 일반 습식 건축물과 동일한 중심선 치수를 사용하고 내장재 및 건축자재 사용이 많은 유닛박스 계획에서는 안목치수 기준으로 수평·수직계획모듈을 계획한다. 그리고 운반 및 양중을 위해서는 외목치수를 기준으로 하는 치수 기준선을 설정해야 한다. 즉 모듈러의 구조체, Unit plane, Unit sizes 등의 설계시 필요에 따라서 기준을 구분하며 도면의 기준선 표현도 유형에 따라 3가지로 나눠서 병기 표현해야 한다. 합리적 설계기준선 설정을 통해서 MC 설계 체계를 적용하고 설계사무소 및 제작사에서 이를 준용함으로써 오픈시스템기반의 모듈러 건축시장을 확대해 나갈 것으로 판단된다.
V. 결 론
본 연구에서는 국내 모듈러 주택의 건축 및 설계 특성을 파악하였고 MC 설계 적용 가능성과 효과를 분석하였다.
최근에 국내의 구축되고 모듈러 건축은 대부분 One 모듈형태로 공간을 구성하기 위해 소규모 유닛사이즈로 계획되고 저층위주의 소규모 주거시설에 기숙사 등의 한정된 용도로 사용되고 있는 것으로 나타났다. 그러나 미국처럼 다양한 용도의 모듈개발을 통해 모듈러 건축 시장을 확대할 필요가 있다. 그리고 지금까지 적용된 일률적인 입면형태는 지양하고 다양한 파사드를 표현할 수 있는 유닛 배치 설계가 이뤄져야 한다.
인필 시스템을 제외하고는 적층형 모듈러 건축은 국내에서 3층까지만 구축되었는데 중·고층형 모듈러 건축을 구축할 수 있는 코어 및 구조시스템이 개발되어야 할 것이다. 외장재 마감은 공장제작 및 운반 등을 고려하여 경량금속패널 및 드라이비트를 사용하였는데 건축의 입면디자인 및 도시경관과 연관된 재료선정이 이뤄져야 할 것으로 본다.
국내의 모듈러 건축은 보급 초기단계로 공장제작 경제성 확보 및 유지관리 효율성을 위해서는 MC 설계가 필수적으로 적용되어야 한다. 즉 오픈시스템을 통해 최소한의 기준을 선정하고 그 안에서 자재 및 부품을 효율적으로 사용할 수 있는 모듈러 건축시스템이 구축되어야 한다. 국내 모듈러 건축의 주요 4개사의 MC 설계 현황을 분석한 결과 수평계획모듈에서 대부분 증분치수를 적용하고 있지 않는 것으로 나타났는데 이는 자재 손실률을 높여 건축비를 상승시키는 문제점을 가져온다. 이러한 문제점들은 설계 진행시에 안목치수 기준으로 300 mm (3M) 증분치수를 적용하면 바로 해결될 수 있다. 그리고 각 업체마다 구조시스템이 상이함에도 불구하고 수직계획모듈에서는 100 mm (1 M)의 증분치수를 사용하고 있음을 분석하였다. 이는 구조시스템이 상이하더라도 충분히 모듈러 건축에서 오픈시스템을 적용할 수 있다는 가능성을 보여주고 있다. 이와 더불어 구조체, Unit plane, Unit sizes 등의 설계 대상에 따라서 합리적 설계기준선을 설정하고 한국산업규격(KS)에서 규정하고 있는 치수체계를 준용한다면 모듈러 건축의 프리패브율을 높여 획기적으로 공사기간을 단축하고 경제성을 확보할 수 있을 것으로 본다. 특히 MC 설계와 BIM을 연계하여 공장 제작 사전에 마감재 및 부재에 대한 최적 시공순서를 시뮬레이션 한다면 자재 절감 효과를 극대화 시킬 수 있을 것으로 판단된다.















