I. Introduction
As climate change and global warming advances, there is an increasing potential for gradually rising sea levels, along with more frequent and severe hurricanes & flooding, heavy rain, earthquakes & tsunami, and other natural disasters. Proper countermeasures against these natural disasters in terms of architecture are urgently needed.
New trends of living indicate people prefer to live in a peaceful and comfortable house while enjoying safe & natural atmosphere and keeping a strong sense of community.
Therefore new types of future-oriented housing needs to be provided in order to address both climate change and meet the psychosocial needs of a growing number of people who live in high risk low lying and coastal areas.
As the advantages of floating houses are becoming known to the public, people with an interest in waterside living have replaced the old and shabby floating homes with new and luxurious ones in Seattle <Figure 1>, USA where nowadays new construction is not permitted anymore and only remodeling is possible.
Meanwhile, in Portland, USA, a large number of modern and big floating houses have been actively built on the Columbia & Willamette Rivers including a near net zero energy floating home with solar PV system, solar water heating, hydronic heating, rainwater collection and reuse, and reclaimed and certified wood built in the North Portland’s Tomahawk Island Floating Home Community (Green Investment Fund, 2007).
After Hurricane Katrina, a floatable house <Figure 2> by the architecture firm Morphosis was built in New Orleans through the “Make It Right” project. The house uses low-cost & prefabricated parts and can be easily transported & adapted to a variety of flood-prone areas. Its base is made of polystyrene foam covered in glass fiber & concrete, and contains the plumbing and electrical systems. In case of flooding, the house will float up to 3.6 m above the ground, anchored by guideposts that prevent it from drifting (Axb, 2009).

Figure 2.
Floatable Houses in New Orleans, USA
Source. http://archinect.com/sajimatuk/project/float-house, 2015
In IJburg, Amsterdam, Netherlands, there are 75 floating homes consisting of detached and row houses. 19 detached floating residences with various facades are built on a small canal in Eilandenrijk, Terwijde, Utrecht, Netherlands <Figure 3>. Some amphibious houses also can be found along dykes of the river, and other floating houses have been built and are being built in many European cities.
Floating houses in North America are found on lakes and rivers in Pacific Northwest coastal regions such as Vancouver, Victoria, Seattle, Portland, and San Francisco. Most floating houses are of an eclectic style and include regular home structures built on wood rafts for a long time. Meanwhile, in Europe, various floating houses with new technology and modern construction are being built along the canals, rivers and lakes.
Floating housing is becoming popular and familiar with a growing number of ordinary people in the world and is receiving a lot of attention as a new style of house.
This paper aims to discuss the concept of resilience in floating housing, to investigate the resilient features of floating houses & to review the possibility of floating housing as a new form of resilient living, and suggest some reference ideas for new floating house projects.
Research methods included site-visits to several floating houses in Europe, Canada and USA, and an internet search of resiliency and floating houses concepts < Table 1>.
Table 1.
Research Method of Referred Floating Houses
II. Concept of Resilience and Floating House
1. Concept of resilience in architecture
In material science, resilience is the ability of a material to absorb energy when it is deformed elastically, and to release that energy upon unloading (Wikipedia, 2015).
Resilience in the built environment is the capacity to adapt to changing conditions and to maintain or regain functionality and vitality in the face of stress or disturbance. It is the capacity to bounce back after a disturbance or interruption of some sort. Resilient design is the intentional design of buildings, landscapes, communities, and regions in response to these vulnerabilities (The Resilient Design Institute, 2015).
Resiliency is especially important in the face of natural disasters such as hurricanes or tsunami. The ability for one to come back from a devastating event is crucial to one’s ability to thrive. Resilience after a natural disaster can be gauged in a number of different ways. It can be measured on an individual level, on a community level, and on a physical level. Natural disasters are hard to predict, so the ability to prepare for them is rather limited. Having a strong sense of community can be a key in psychological resiliency, it is crucial for this to be developed and cultivated within each community (Wikipedia, 2015).
As the resilient design principles of the Resilient Design Institute and ResilientCity.org are compared in Table 2, major factors of resiliency can be summarized as measures of response to natural disasters (feedback sensitivity, adaptability, durability, dynamic future, natural systems, implementation in stages), energy aspects (passive system, renewable resources), environmental aspects (diversity, redundancy, modularity, transcendence of scales, basic human needs, environmental responsiveness and integration), and social aspects (social equity and community).
Table 2.
Comparison of Resilient Design Principles
| Resilient Design Institute (The Resilient Design Institute, 2015) | ResilientCity.org (Resilient City.org, Resilient, 2015) |
|---|---|
| 1. Transcendence of scales [ED] 2. Provision for basic human needs [ED] 3. Diverse and redundant systems [ED] 4. Simple, passive, and flexible systems [ES] 5. Durability [ND] 6. Local, renewable, or reclaimed resources [ES] 7. Anticipation of interruptions and a dynamic future [ND] 8. Lessons from nature [ND] 9. Social equity and community [SP] 10. Implementation in stages [ND] | 1. Diversity [ED] 2. Redundancy [ED] 3. Modularity and independence of system components [ED] 4. Feedback sensitivity [ND] 5. Capacity for adaptation [ND] 6. Environmental responsiveness and integration [ED] |
Therefore, required resilient factors in architecture can be grouped into 4 categories: natural disaster [ND], energy shortage [ES], environmental damage [ED], and social problems [SP].
2. Concept of floating house
There can be three kinds of houses with buoyant systems such as floating houses, amphibious houses, and floatable houses according to the site condition.
1) Floating House
A floating house <Figure 4> can be defined as a house for living space that floats on the water with a floatation system, is moored in a permanent location, does not include a water craft intended for navigation, and has a utility services systems served through a connection to urban supply/return system between the floating building structure and a service station on land, or it has self-supporting service facilities for itself.
2) Amphibious House
An amphibious house lies on the ground or on a structure above the water line except during flood periods and is likely to float when the water level rises during flooding <Figure 5>. It does not therefore float permanently, unlike a floating house, which can be found in many countries in urban areas along lakes or slow-flowing rivers. This kind of house can be accessed from both the road by car and the water by boat.
The principle is to erect the building structure on a floating foundation in the same way as a floating house. When moving vertically with water level variations, an amphibious house is guided by vertical posts to avoid drifting. Flexible piping allows electricity/city gas/water feeding and waste utility systems are provided in the same manner as floating houses (Flood Resilience Technologies Portal, 2015).

Figure 5.
Amphibious Houses in Massbommel, Netherlands
Source. http://www.inspirationgreen.com/floating-homes.html, 2015
3) Floatable House
A floatable house has a buoyant foundation which allows an otherwise-ordinary structure on the ground to float on the surface of rising floodwater rather than succumb to inundation. A buoyant foundation retains a home’s connection to the ground by resting firmly on the earth under usual circumstances, but it allows a house to float as high as necessary when flooding occurs. A buoyancy system beneath the house pushes water to provide flotation as needed, and a vertical guidance system allows the rising and falling house to return to exactly the same place upon descent (Buoyant Foundation Project, 2015).
For example, Winston International has created the Landlocked Floatable House system <Figure 6>. Using a system composed of telescoping piers set in concrete anchors, the system supports a catamaran floatation base attached to one, two or three story buildings. The system means that the house is capable of rising above any recorded flood, and will float back to its original position as the flood recedes (Buczynski, 2015).

Figure 6.
Winston Land-locked Floatable Houses
Source. http://www.care2.com/causes/5-amphibious-houses-built-to-survivethe-coming-floods.html, 2015
III. Resilient Features of Floating House
Resilient features of floating houses can be slightly different from those of the usual house on land. The following resilient features are focused on the floating house in terms of natural disaster, energy shortage, environmental damage, and social problems.
1. Resilience to natural disaster
A floating house on water is basically buoyant up and down in some degree by itself at a moored place. Amphibious houses and floatable houses can also rise on the water when necessary. Therefore floating/amphibious/floatable houses are responsive to both a gradual rise in sea or river level due to climate change and to a sudden rise of water level due to flooding or hurricanes.
Fifty-four floating houses were located in Sea Village Marina, New Jersey, USA. This floating home community was damaged during Hurricane Sandy in 2012, which was one of the worst natural disasters in New Jersey history <Figure 7>. Sidewalk decks were more severely broken than the floating houses themselves. The builder didn’t consider the effects of wind and wave power to their full extent on the overall complex.
Earthquakes are high on the natural disaster list, but what many people don’t realize is that much of the damage from earthquakes occurs largely due to poorly constructed buildings and faulty infrastructure (Fehrenbacher, 2013). Of course, many new technologies allow the buildings to be able to withstand severe seismic activity, but the technology for the building on land is expensive and not easy. Floating houses are not directly fixed to the earth, so they are inherently more structurally stable for the duration of the quake.
A precondition for floating housing is securing a calm water space. So primary protective measures like the Thames Barrier are necessary. The Barrier was built after the flood in 1953, it still functions as a protective barrier for central London. Twice a day, the incoming tide from the North Sea rushes towards the ten 3,300 ton steel gates of the Barrier, where water levels can rise and fall by around 9m. The Barrier prevented catastrophic damage during the December 2013 storm surge-the largest in 60 years, however a rising sea level remains a serious threat (Smith, 2014).
Buoyant features of the floating houses can basically make them resilient to hydrological disasters and earthquakes. Important lessons from the Sea Village floating home community include the thorough design for wind and wave power even in the calm waters of a lake.
2. Resilience to energy shortage
Floating house is easy to get various renewable energy sources because there are not so many physical obstacles in the sea, river or lake. More solar and wind energies can be obtained by the house on water than on the urban land.
A representative floating house in terms of energy independence, Autark Home <Figure 8 & 9> is a nearly self-sufficient floating home with a European passive house certificate. A prototype house is currently anchored in the Maas River, Maastricht, Netherlands. The floating home has 2 stories and 109.4 square meters floor area, outer wall with 55 cm thick massive EPS, isolated windows and doors, triple glass and no thermal bridges. In terms of hot-water supply, there is an isolated water tank with capacity of 4,000 liters and 6 solar heat panels on the roof to keep the water at a temperature of 70 to 80 degree Celsius for 4 to 5 days (Autark Home, 2015) for a household.

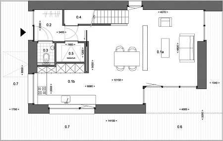
Figure 8.
1st Floor Plan, Autark Home in Maastricht, Netherlands
Source. http://www.autarkhome.com/, 2015
The electricity is supplied by 24 solar photovoltaic cells with a total output of 6,360 Wp (watt peak). The electrical energy is stored in 24 batteries, each with a capacity of 1,000 Ah, supplying enough electricity for 4 days for a normal family. The system can deliver 5,300 kWh a year. Solar production situation can be viewed on the display of the monitoring system in the living room. In adverse weather conditions, a bio-diesel generator supplies the home with additional electric power (Renewable Energy Magazine, 2012).
Even though there is no example of hydrothermal systems being employed in a floating house so far, there are some cases where hydrothermal systems have been used in a floating hotel and exhibition building like Salt and Sill hotel in Sweden and IBA Dock in Germany. The hydrothermal use of sea or river water beneath the floating house might be a great advantage because the temperature of water is usually lower than that of outdoor air in summer and the reverse in winter. Therefore hydrothermal energy can be used as cooling in tropical regions and heating in cold regions.
Wind power, tidal power and wave power can be considerable if a proper system could be integrated with floating home design and harmonized with the natural environment. Wind power will be widely used in floating housing because wind is frequently abundant in seaside or river locations and small wind power turbines with little noise are under development.
Hybrid systems composed of solar photovoltaic cells with wind turbines are generally complementary because the sun usually comes up when there is no wind during the day and the wind usually blows when there is no sun. So solar-wind hybrid renewable energy system will be popular if the design of a hybrid system is integrated with that of a floating house.
Features like easy implementation and the potential use of diverse renewable and nearly self-sufficient energy systems in floating house can make them resilient to energy shortages.
3. Resilience to environmental damage
Floating houses are movable by tugboat or trucking because they do not have their own propulsion power. So floating houses can be re-located to different places in need, can be used by different people for a long time. They can also be sent to less-developed countries as international aid.
As prefabrication and modular system in floating homes are usually employed <Figure 10>, new floating houses are usually produced in a factory and moved by water/road transportation <Figure 11>, and moored to a certain place. Construction waste can be minimized, and this type of off-site construction involving minimal site work does not disrupt the calm atmosphere of the floating home community.

Figure 11.
Trucking of Floating House in Netherlands
Source. http://www.hollandhouseboats.com/project-construction/overview/floating-homes-in-utrecht, 2015
In the Oregon Yacht Club which is a community with 38 floating homes on the Willamette River, there is a new floating house with 2 stories and 212 square meters of floor area <Figure 12>. It is an ultra-low energy house and the entire structure is made of glued laminated wood sections that allow for a swirling and curved design. This kind of construction not only allows the use of various forms but also greatly reduces the overall amount of material used, and so is very light and easy to produce.
The window wall is only for taking in amazing river views and the glass permits solar heat and light during the day while providing natural ventilation. With the materials prefabricated and transportation by boat, the home construction required minimal amounts of energy, and most importantly, did not disrupt the atmosphere of the floating home community. The house project integrates a beautiful, modern home into its surrounding natural environment (Cotter, 2011).
In case of the Autark Home, river water is converted to gray water through a filter. And high-quality drinking water is purified through reverse osmosis in combination with sand and a UV filter. Before the waste water returns to the river, the water is cleaned 90% by a built-in filtration system (Autark Home, 2015). Even though Autark Home is a small floating house, it has independent water cycle system.
Features of movability, the ability to relocate, long life usage, water cycle system, prefabrication and modular construction in floating homes can contribute to the conservation of the environment through resources saving, and can be regarded as resilient to the environmental impact.
4. Resilience to social problem
Through site-visits to several floating home communities, it was observed that residents enjoy the peaceful and comfortable atmosphere on the water within a good natural environment. They believe the best view is seeing only natural elements such as sky, mountains & trees, grain fields, docks, migratory birds, and water without any artificial structures.
A floating home community in Vancouver area, Canada has a marvelous view to the river or lake, a distant mountain, and migration habitats <Ladner Reach marina, Figure 13>. Connections to nature generate positive states of well-being and health for the residents.
When the residents were asked what the first reason to move there, they usually answered they liked the peaceful environment with nature and had good neighbors. They enjoyed sunrise and sunset with water and mountain background and good relationships with neighboring residents. There was a strong social and psychological sense of stability among the residents of the floating home community.
The residents in floating home communities usually have their own boat, canoe and other water leisure equipment to have fun in the water at any time. They are always ready to enjoy water sports and entertainment <Figure 14>. Sometimes they visit nearby restaurants for dinner and neighbors by boat. These experiences provide feelings of health and psychological well-being.
The residents of floating houses usually have great interest in conserving the natural environment like wild birds, native fish, and watershed vegetation; they have to cooperate in taking some countermeasures against natural disasters like flooding and typhoon, they have to ensure their safety for fire & evacuation, and sometimes they must negotiate legal regulation conflicts with the city officers and to get administrative/ financial support from the City government. A solid social spirit of strong unity is essential and easy to be found in a floating home community (Oregon Yacht Club, 2015).
Floating home communities are usually more secure against crime than housing on land because the residents know each other well with good feelings, the entrance is limited and controlled, and the community is surrounded by water, so unwanted guests do not have easy access <Figure 15>. This kind of housing condition can enhance a social sense of security.
Features of peaceful and comfortable atmosphere, good connections to the natural environment, good relationships with neighbors, a social and psychological sense of stability, a solid social spirit of strong unity, and a social sense of security in floating house can minimize social conflict, so these features can be regarded as resilient to social issues.
In summary, floating houses should be designed to maximize the application of resilient features <Table 3> against the natural disaster, energy shortage, environmental damage and social problems.
Table 3.
Summary of Resilient Features of Floating House
IV. Conclusions
This paper aimed to discuss the concept of resilience in floating housing, to investigate the resilient features of floating houses & to review the possibility of floating houses as a new form of resilient living, and to suggest some relevant ideas for the planning and design of floating house projects.
Some conclusions can be summarized as the followings;
1) In architecture, resilient factors can be grouped into 4 categories: natural disaster, energy shortage, environmental damage, and social problems. And there can be three kinds of houses with buoyant system such as a floating house, an amphibious house, and a floatable house.
2) Feature of buoyancy for floating houses makes them basically resilient to the natural disaster. A precondition for the location of a floating house is securing a calm water site yet it remains important to design for dynamic forces even in calm water.
3) Features of prefabrication and the potential use of diverse renewable energy sources and nearly self-sufficient energy system in floating houses make them resilient to energy shortage.
4) Features of movability, long term usage, water cycle system, prefabrication and modular construction in floating houses make them resilient to the environmental damage.
5) Features of peaceful and comfortable atmosphere due to direct connection to nature, good relationships with neighbors, a solid social spirit of strong unity, and sense of security in floating house communities can make them resilient to social problems.
Considering the resilient features of floating house at a time of serious climate change and require a new paradigm. Floating/amphibious/floatable houses can provide a possible new form of resilient living if proper resilient features are applied according to the circumstances.
Meanwhile, some disadvantages of floating houses such as a wet environment, shadows on the bottom of water space, water pollution from building & pontoon materials, and other negative effects to the ecosystem from both building & residents should be investigated in depth and countermeasures to solve these issues are suggested through further research.












