I. 서 론
1. 연구배경
최근 1인 가구의 수가 늘어나면서 홀로 죽음을 맞는 ‘고독사’의 건수는 점점 늘어나고 있으며, 그 중에서도 독거노인의 고독사 문제는 최근 사회이슈가 되고 있다. 보건복지부의 ‘최근 5년간 65세 이상 1인 가구 현황자료’에 따르면 2017년 기준 전체 독거노인 수는 134만 명으로 5년 전 2013년(111만 명)보다 23만 명 증가하였다. 같은 기간 동안 5년간 65세 이상 무연고 사망자는 2배 이상 증가하여, 한 해 평균 300여 명의 노인이 홀로 죽음을 맞이하고 있다. 노인중에서도 주로 독거노인이 고독사를 맞이하는 이유는 건강과 경제 문제 등 다양한 원인이 있지만, 사회적 관계의 단절을 가장 큰 원인으로 들 수 있다. 1990년대부터 일본에서는 고독사 제로 운동을 추진하고 있고, 이 운동에서는 배우자가 없거나 이웃이나 친구, 가족이 없는 자를 고독사 예방 관리 대상자로 선발하여 이들을 위한 공동체 소통 공간으로 살롱을 운영하면서 고독사 예방상담 전화 설치 등 다양한 관리 제공을 하고 있다. 이러한 살롱은 독거노인 고독사 예방을 넘어 점차 식사 및 여러 세대의 교류와 다양한 활동 공간으로 활용되고 있다.
향후 10년 이내에 초고령사회 진입을 앞두고 있는 우리나라도 독거노인들의 생활 서비스 지원공간이면서 고독사예방기능까지의 사회적 연결공간으로서 일본에서 운영하고 있는 살롱의 의미와 역할에 대해 주목해 볼 필요가 있다.
2. 연구의 목적
본 연구에서는 최근 초고령사회를 맞은 일본의 주거환경에서 급격히 증가하고 있는 살롱의 의미와 역할을 살펴보고 우리나라의 적용가능을 파악하고자 한다. 구체적으로 첫째, 노인을 위한 소통공간으로 왜 살롱이라는 용어가 도입되었는지의 배경을 파악한다. 둘째, 일본의 살롱운영사례 특성을 단독주택지역과 아파트 단지를 중심으로 파악한다. 셋째, 일본 살롱의 시사점을 통해 우리나라의 노인을 위한 살롱 방향성을 모색한다.
3. 연구방법
본 연구를 위한 자료는 문헌연구방법과 현장조사방법을 채택하였으며, 자료수집은 일본에서 살롱이 출발한 고독사 예방과 연관된 독거노인 비율이 높은 지역을 선행연구(Choi & Park, 2019a, b)와 전문가로부터 추천을 받아 실시하였다.
첫째, 단독주택지역의 살롱 자료는 도쿄도에서 독거노인비율이 높고 단독주택비율이 높은 세타가야구를 중심으로 구에서 발행한 살롱 책자 및 구 홈페이지에 소개된 전체 23사례의 살롱을 대상으로 하였다. 그리고 동경지역 자원봉사센터 관계자를 2017년 1월 31일 면담하여 살롱의 설치 운영을 파악하였고, 세타가야구에 관한 문헌자료를 직접 수집하였다. 수집자료의 분석내용은 이용대상, 운영방식, 주택 개조여부, 건물의 외관특성, 제공시설 및 공간, 활동내용이다.
둘째, 아파트 주거단지의 살롱 자료는 현장조사로 수집하였으며, 노인인구 비율이 40-50%이상이고 독거노인의 밀집도가 높은 지역의 도쿄도 살롱을 1차 접촉한 결과 3사례만이 방문 허락을 하여 선정하였다. 추가로 동경에서 1시간 거리의 아파트 단지 살롱을 접촉한 결과 치바현과 가나가와현의 살롱으로부터 방문 허락을 받아 모두 5사례를 선정하였다. 이에 사전 약속을 하고 2회 방문하여 살롱 관계자 면담을 하였고, 면담대상자는 동경자원봉사 단체 담당자, 동경도 사회복지협의회(샤쿄) 담당자, 아파트단지 자치회 회장, 살롱운영자였다. 그리고 면담조사에서는 문헌연구와 다르게 살롱의 기능과 역할, 살롱운영, 이용자가 생각하는 살롱의 방향성 등에 대해 파악하였다. 면담 조사시기는 1차 2016년 7월 14일-17일(4일간) 실시하였고, 자료의 보완을 위하여 2차 2017년 1월 30일-2월 3일(4일간) 조사가 진행되었다.
II. 고령사회와 살롱
1. 살롱의 의미
살롱(salon)의 사전적 의미를 살펴보면, 복수형(salons)는 사교계를 뜻하고, 대문자(Salon)로 시작되면 미술전람회나 자동차 전시회 등을 가리키며, 다과점이나 미장원을 지칭하는 데도 사용된다. 기원전 45세기 아테네에서는 젊은 귀족들이 클럽에서 스포츠 활동을 하고, 살롱에서 향연을 즐겼다. 클럽이 육체적 놀이의 공간이었다면, 살롱은 지적 놀이의 공간이었다. 고대 그리스는 무려 1,000개나 되는 폴리스로 이루어졌으며 직접 민주정치를 행하였으므로 집회와 토론이 많아 사람들이 모여 대화와 토론을 하는 사교 공간이 살롱이었다(Seo, 2003b). 문학사에서는 특히 17~18세기 프랑스 상류사회에서 성행했던 귀족과 문인들의 정기적인 사교모임을 살롱이라 하고, 미술계에서는 살아 있는 화가나 조각가들의 연례 전람회를 살롱이라 한다(Doopedia, 2019).
살롱이 프랑스 문화사와 지성사에서 차지하는 위치와 비중은 단순한 사교장이나 오락장 정도가 아니다. 살롱은 남녀와 신분 간의 벽을 깬 대화와 토론장이었으며 또한 문학공간으로서 문화와 지성의 산실이자 중개소와 같은 역할을 했다. 그리고 살롱의 대부분은 여성들이 개장하고 운영하였으므로 여성들의 사회적 활동영역으로 인식되기도 하며, 살롱의 여주인들은 무료하고 폐쇄된 생활에서 벗어나려고 살롱을 개장했다고 한다. 우리나라에서 살롱은 다방이나 양주집 정도로 간주되거나 옛날 우리나라의 격조 높은 기방이나 사대부의 사랑방으로 여겨진다(Seo, 2003a). 이처럼 살롱의 의미는 대화와 토론을 매개로 한 사교공간이고 사회적 활동영역을 의미한다고 볼 수 있다.
2. 일본에서의 살롱 발생배경
후레아이(ふれあい, 만남) 이키이키(イキイキ, 생생) 살롱은 1994년 11월 일본 사회복지협의회가 주민이 주체가 되어 서로 연결점을 가질 수 있는 장소를 만들자는 대안에서 “후레아이 이키이키 살롱”이라고 이름 지어진 것이 시작이라고 전해지고 있다. 2005년 4월 1일 기준 전국 39,496곳에 설치되었고, 이후 급격히 증가해서 2016년 기준 전국 67,903곳에 살롱이 설치되어 있다(Regional Welfare Department of the National Social Welfare Council, 2016).
살롱은 고령자들의 고독을 예방하기 위해 고령자들을 위한 서비스가 필요하다는 점에서 주로 고령자를 위한 식사회를 하자는 취지로 시작된 곳이 많다. 구에서 고령자의 영양상태에 문제가 생기지 않도록 독거노인들이 외로운 식사를 하지 않게 하기 위해 보조금을 지원하기 시작했고, 이 보조금을 계기로 살롱을 시작한 단체가 많다. 이런 식사회 보조가 제도화된 것은 25년 정도 되었다. 고령자를 위한 살롱은 현재 일본의 전국사회복지협의회가 후레아이 이키이키 살롱이라는 이름하에 활동을 진행하고 있고, 정책적으로도 지원을 받고 있다. 이런 자치구의 살롱 활동은 지역주민의 참관과 협력으로 지역에서 연결점을 재구축하고 서로 돕는 역할을 넓히는 것과 개호보험제도의 개정1)에 따른 개호예방의 거점 장소로써 기대가 높아지고 있다.
3. 일본에서의 살롱의 특징 및 기능
일본 요코스카시 사회복지협의회 자료(2011)를 통해 살롱의 특성을 정리해보면 다음과 같다.
1) 정의
후레아이 이키이키 살롱은 만남(후레아이)·생생(이키이키) 살롱이란 뜻이며, 줄여서 살롱이라고 한다. 후레아이 이키이키 살롱은 참가자가 걸어 다닐 수 있는 범위2)를 활동 거점으로 하고, 그 지역의 주민이 활동 협력자와 참가자(고령자, 장애인, 육아중인 부모, 편부모 가정의 어린이와 부모 등)로 서로 협동하여 기획, 운영하는 곳이다.
2) 대상자
원래 살롱은 노인을 대상으로 시작 발전된 것이지만, 최근에는 엄마와 아이를 대상으로 한 육아 살롱을 비롯해 나이에 관계없이 그 지역의 주민이라면 누구라도 참여 가능한 살롱이나 남성중심의 살롱이 있고, 핵가족화가 진행되면서 서로를 접할 기회가 없는 어린이와 고령자의 세대 간 교류의 장이 되는 살롱 등 다양한 활동 내용이나 운영 형태가 나타나고 있다.
3) 운영 및 지원자
살롱운영의 지원자는 살롱마다 다양하지만, 사회복지 추진위원, 민생위원 아동위원 및 주임 아동위원, 반상회·자치회 임원, 노인회 임원, 자원 봉사자 등이 주요 담당자가 되어 운영하는 형태가 가장 많고, 그 외 참가자 자신이 운영에 하는 살롱도 있다.
4) 개최 장소·빈도
자택에서 부담 없이 걸어 갈 수 있는 것이 살롱의 취지이며, 많은 살롱이 반상회·자치 회관을 거점으로 활동하고 있다. 그 중에는 가정집을 개최장소(회장)로 하고 있는 살롱도 있고, 때로는 회장을 벗어나 지역을 산책하거나 당일 버스 여행을 가는 등 야외 활동을 하기도 한다.
개최 빈도는 많을수록 이상적이지만 무리없이 지속적으로 개최하는 것이 중요하기 때문에, 주 1회부터 월 1회 개최까지 다양하다.
5) 활동 내용
살롱의 활동내용에는 정해진 것은 없고, 살롱의 지원자나 참가자의 흥미나 관심에 맞추어서 자유롭게 프로그램을 짜고 있다. 고령자를 대상으로 한 살롱에는 가벼운 체조, 공작, 게임, 다도나 수다 등을 통해서 즐거운 시간을 보내는 살롱이 많으며, 보건사의 협력을 얻어서 보건관리를 위한 혈압측정이나 건강상담을 실시하고 있는 살롱, 다 같이 요리를 만들거나 배달음식을 시켜서 회식을 하는 살롱도 있다. 또, 육아를 하고 있는 부모를 대상으로 한 살롱 활동으로는 구연 동화, 게임, 엄마끼리의 정보 교환 등, 육아 상담을 실시하고 있는 경우가 많다.
6) 살롱의 특징
살롱의 활동을 특징짓는 요소로서「부담없이」,「무리없이」,「재미있게」,「자유롭게」라는 4개의 요소가 있다. 먼저 가볍게 걸어 갈 수 있는 정도의 가까운 곳에서 개최되는 것. 특히 고령자 살롱의 경우 회장에 가는 것 자체에 부담이 적을 것과, 가고 싶을 때 갈 수 있을 것 등, 한 번만 참여해도 부담 없이 이용할 수 있을 것이 중요하다. 또한 활동 프로그램은 지원자가 일방적으로 참가자를 제공하는 것이 아니라, 참가자와 지원자가 함께 얘기하면서 자기들이 하고 싶은 것, 참가자가 원하는 활동을 자유롭게 즐길 수 있게 하는 것이 중요하다. 또한, 정기적·지속적으로 개최되는 것, 참가 비용이 저렴하고 금전적으로 부담이 가지 않는 것도 중요하다.
7) 살롱의 효과
살롱은 고령자나 육아중인 부모가 가지는 외로움, 고립감의 해소를 주요 목적으로 교류·사교활동을 할 수 있는 장이지만, 이곳 모임을 통해서 참가자끼리 고민이나 곤란한 점 등을 얘기하고, 지역포괄지원센터 등의 관계기관 복지서비스 등의 정보제공이 이루어지며, 전문적인 상담기관과의 연결로 주민이 필요한 복지서비스를 받을 수 있게 하는 역할을 한다.
살롱은 고령자의 두문불출 예방, 개호 예방, 사회 참여도 향상, 육아중인 부모의 휴식, 새로운 육아 동료 만들기 외에도 살롱 간, 혹은 살롱과 복지 관계 기관 등의 연계로 지역의 복지과제를 발견하고 공유하는 계기를 마련하는 점에서도 높은 효과를 보이고 있다.
III. 일본 세타가야구 단독주택지의 살롱 사례
살롱은 제도적 차원에서 제공하는 복지시설과는 차별화되고, 지역사회내에서 소규모이면서 각자 개인의 집에서 걸어 다닐 수 있는 거리에 있는 것이 특징이다. 그래서 단독주택지역에서는 개인 집을 살롱으로 활용한 몇몇 사례가 있다. 일반적으로 가족생활주기상 축소기에 접어든 가구들이 자녀가 출가하거나, 배우자가 사망함으로써 남게 되는 유휴공간을 지자체와 연계하여 지역사회 주민들을 위한 살롱공간으로 사용되고 있는 세타가야구 사례들을 살펴보았다.
먼저 일본 동경지역의 세타가야구는 2017년 당시 인구가 약 90만 명으로 지역공생의 장소만들기 지원 사업을 시행하고 있었으며, 장소의 확보를 위해 빈 집을 확보하거나 개조해서 사용할 경우에는 그 비용을 자치구에서 지원해주었다. 맨션(아파트)을 이용한 곳도 예로 있지만, 단독주택을 이용한 예가 많은 것으로 파악되었다. 개인이 살고 있는 주택의 일부를 살롱으로 제공할 경우 장소에 대한 보조는 거의 없지만 살롱에서의 활동 비용(차, 과자, 만들기 재료, 도구, 이벤트에 필요한 것 등)은 자치구에서 보조하는 것으로 파악되었다.
이 지역에서 제공하고 있는 23사례의 개인 집 활용 살롱을 분석한 결과, 공간의 용도는 육아(3사례), 간호인의 휴식(4사례), 이야기·모임 등 다목적(9사례), 바둑, 마작 공작 등의 취미(2사례), 도서관·갤러리(5사례)로 나타났다. 23사례 모두 주택 소유자가 지자체와 연계하여 공간 일부를 살롱으로 제공하고 그 소유자와 협력자가 운영하는 유형이다. 공통적으로 주택의 거실, 부엌, 화장실을 제공하면서, 개인주택의 특성과 용도별로 제공시설과 활동 내용은 차이가 있는 것으로 나타났다.
1. 육아용도
육아용도의 살롱은 개인소유 주택의 일부(거실, 화장실, 주방, 정원)를 아동을 둔 부모를 위해 활용하고 있는 곳이다<Table 1>. 이용대상은 주로 아동 및 육아중인 부모나 지역사회주민 모두이며, 운영은 주택소유자 또는 협력자, NPO 법인 등이 하고, 주택은 일부만 개조하거나 개조하지 않고 그대로 사용하고 있다.
Table 1.
Salon Cases for Child Parenting
2. 간호인의 휴식용도
간호인 휴식용도 살롱은 개인소유주택의 일부 공간(거실, 식당, 화장실, 정원)을 고령자 간호를 담당하는 사람들이 교류, 간호관련 정보교류나 휴식을 취할 수 있도록 한 곳이다. 주 이용대상은 노인시설 입주자 또는 노인시설에서 활동하는 서포터들, 집에서 간호를 하고 있는 가족이나 종사자들이다. 운영은 주택 소유자와 협력자들이며, 주택개조는 하지 않고 사용하고 있다<Table 2>.
Table 2.
Salon Cases for Caregiver Break
3. 취미활동의 용도
바둑, 마작, 공작 등의 취미 놀이활동 용도로 하는 살롱은 개인 소유주택의 일부(방, 화장실, 거실, 식당)를 활용하여 특히, 고령자 대상의 취미활동을 통한 교류장소로 이용되고 있다. 주 이용대상은 지역주민 모두를 대상으로 하고 있다<Table 3>.
Table 3.
Salon Cases for Hobby Activities
4. 이야기, 모임 등 다목적 용도
이야기, 모임 등 다목적 용도의 살롱은 개인소유주택(점포, 사무소, 다목적실, 화장실, 거실, 부엌, 정원)을 활용하여 지역주민의 다양한 모임과 대화 교류 및 축제, 나눔, 식사 모임 등의 공간으로 사용되고 있다<Table 4>.
Table 4.
Salon cases for Talk Meeting
주요이용대상은 어린이에서 노인들까지 지역주민 모두가 대상이며, 운영은 주택소유자와 협력자 또는 NPO 법인 등이다. 주택을 개조하지 않는 경우도 있고, 거실이나 부엌, 반지하의 차고 등 주택의 일부를 개조하여 사용하는 경우도 있다.
5. 도서관, 갤러리 용도
도서관, 갤러리 용도의 살롱은 주택을 리모델링하거나 그대로 활용하여 지역주민에게 작은도서관, 낭독과 책살롱, 철학카페, 첼로레슨, 워크숍 장소 등의 문화활동공간으로 이용되고 있다<Table 5>.
Table 5.
Salon for Small Library & Gallery
이상의 문헌자료를 분석한 결과 단독주택의 공간별 활용 프로그램을 정리하면 다음의 <Table 6>과 같이, 거실과 화장실은 살롱의 기본공간으로 활용되며, 육아와 이야기모임의 다목적 용도는 부엌공간이 필요하고, 간호인 휴식과 취미 놀이활동은 식당공간이 필요함을 알 수 있다. 그리고 단독주택만이 갖는 정원공간은 육아, 휴식, 다목적 용도에서 활용되고 있음을 알 수 있고, 도서관이나 갤러리로 살롱의 용도인 경우는 주택 전체를 개조하는 방식임을 파악할 수 있다.
Table 6.
Application Program for the space of a Detached House
IV. 일본 동경지역 아파트 단지의 살롱 사례
동경지역에서 노인인구 비율이 40-50%이상 밀집한 자연발생 노인커뮤니티를 형성하고 있는 아파트 단지 중에서 살롱이 설치된 5곳을 현지 방문하였다. 방문 단지는 평균 3,000세대 이상의 대단위 아파트 단지로써, 이 단지들은 교통 및 근린생활시설, 녹지공간 등 생활여건이 우수한 조건을 갖추고 있는 이유로 노인들이 이 단지를 떠나지 않고 계속 거주하였고, 자연스럽게 거주자 다수가 노인이 되어 조사당시 노인비율이 높은 단지였다. 특히,이 단지들에는 노인을 위한 살롱공간과 활동이 활성화되고 있는 것이 특징적으로 나타났다. 조사대상 5개단지의 살롱 5사례는 이야기, 모임, 식사, 정보제공 등의 다목적 용도로 사용되고 있는 것으로 파악되었으며, 주 이용대상자, 운영, 개조여부, 제공시설 및 공간, 활동내용을 중심으로 살롱의 특성을 살펴보면 다음과 같다<Table 7>.
Table 7.
Characteristics of Salon in Field Survey Cases
1. 주 이용대상자
현장조사 대상의 5 사례 살롱은 주 이용자가 노인들로 파악되었으며, 그 중 A사례는 ‘어린이의 집’이라고 간판을 붙여 특히 육아중인 부모와 아이들을 대상으로 하고 있는 것으로 조사되었다. 하지만 A사례는 부모, 아이로 특정짓기 보다 노인 등 단지 주민 모두가 이용하고 있었다. 대부분 소규모 모임 활동을 하며, 하루에 최소 10명에서 최대 40명 정도까지 살롱을 이용하는 것으로 나타났다.
2. 운영 및 지원
단독주택지에서 개인주택의 형태로 제공되는 살롱과는 달리 아파트 단지 내 살롱은 도영, 현영, UR과 같은 아파트 단지 운영체에서 공간을 제공하고, 단지에 거주하고 있는 노인들로 구성된 NPO와 자원봉사자들이 운영을 맡고 있었으며, 자원봉사자들은 소정의 비용(급료)를 제공받는 방식으로 운영되고 있었다. B사례의 살롱에서는 14명의 노인 자원봉사자들이 시간당 200엔씩 받고 활동을 하고 있었고, 하루 이용자는 27~28명으로 단지 외부인도 이용이 가능하였다.
특히, C사례는 2년전 카페나 식당과 같은 지역공생 ‘장소만들기’ 지원 사업 추진 중에 카페레스토랑의 살롱이 만들어져 이곳에서 노인들에게 상담과 복지제도를 알려주고, 노인들 신변에 문제 있을 경우 안심센터나 협의회에 보고하는 역할을 하고 있는 것으로 파악되었다. 그리고 카페레스토랑의 살롱은 장애인이나 고령자 직원을 채용하는 전제로 보조금 지원을 받고 있었으며, 이에 고령자와 장애자 직원이 20명, 일반직원이 10명 고용되었다.
E사례는 자원봉사자 50명이 소속된 NPO 법인에서 운영하고 있으며, 그 중 10명이 운영진을 담당하고 있었다. 이곳은 도쿄도와 타마시에서 실시하는 살롱·커뮤니티카페·지역 간호사업의 정책지원을 통해 최초 3년간 총 1,250만 엔을 지원받은 것으로 파악되었다. 자원봉사자들에게 하루에 1,000엔씩을 지급하며, 운영비로는 카페의 경우 월세 포함 900만 엔 정도 소요되는 것으로 파악되었다.
3. 건물형태 및 공간 개조여부
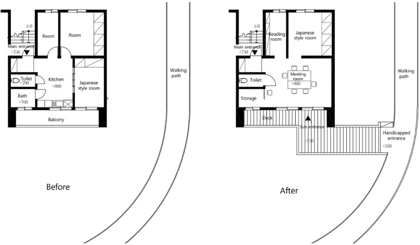
아파트 단지 내 살롱은 다양한 건물형태로 파악되었다. 독립된 건물(사례B)이나 상가건물 1층에 카페 겸 레스토랑(사례C, D, E)형태로 살롱이 제공되는 경우와 단지의 빈집 세대를 개조(A사례)하여 살롱공간으로 이용하는 경우였다. 개조가 이루어진 A사례는 단지의 빈집 세대를 살롱공간으로 만들면서 휠체어가 들어올 수 있게 외부도로와 가까운 베란다 쪽에 데크를 설치하고 진입로를 확보하였다. 이 살롱은 원래 3LDK 형태였지만 침실 1개의 벽을 터서 부엌+거실로 사용하고 있었으며, 침실 2개는 취미실이나 활동실로, 욕실은 다용도실로 사용하고 있었다. 화장실은 출입문을 확장하고 문턱을 제거하여 휠체어 출입이 가능하게 하였다. 이러한 개조 사례는 노인의 신체적 상황에 맞게 지역사회 자원을 살롱으로 제공하고 있음을 보여주는 것이었다<Figure 1>.
4. 제공시설 및 공간특성
살롱 A와 B사례에서는 식사가 제공되지 않고 간단한 차와 다과만 제공하고 있었다. 사례A의 경우 도서열람공간, 취미활동실, 화장실 등의 공간이 제공되고 있었으며, 사례B는 소파, 테이블, 간단한 음료제공부스가 제공되고 있었다. 그 외 C, D, E사례들은 살롱이 커뮤니티 카페 및 식당으로 사용되고 있었다. 특히 D사례가 있는 아파트단지에는 방문한 살롱을 포함하여 커뮤니티 카페용도의 살롱이 8군데 운영되고 있었으며, 이 커뮤니티 카페는 방문한 살롱과 같은 형태이다.
5. 활동내용
살롱의 활동내용으로 A사례 살롱의 경우 소모임, 방과 후 교실, 주민축제개최, 취미활동 등이 이루어지고 있었고, 할머니들이 활동을 통해 제작한 수공예품을 축제 때 판매도 하며, 수익금은 주민들이 함께 사용하는 것으로 파악되었다. B사례의 경우도 식사는 제공하지 않지만, 차를 마시면서 상담과 교류활동이 이루어지고 있었다. 이 B살롱은 노인 거주자들의 요구에 의해 만들어진 것으로서, 노인들을 집밖으로 나오게 유도해서 커뮤니티의 공동체를 지속적으로 유지해 나가도록 자연스럽게 만들어지게 된 것이다. 그 외 C, D, E사례의 살롱들은 커뮤니티 카페와 식당이 갖추어진 유형으로서 식사, 상담, 정보공유 등의 활동이 이루어지고 있었다.

Figure 2.
5 Salon Cases of Apartment Complexes in Tokyodo
Source of the figure of E case: NPO Bokjijung (2013)
특히, D살롱 사례가 있는 단지의 경우, 고령자 7,500명 중 20%가 도움을 받아야하는 노인들이라 고요키키(당신에게 필요한 서비스가 있습니까?) 서비스 정보를 살롱에서 연계해주고 있었다. 이 서비스는 10분에 100엔 비용으로 전구 갈기, 못 박아주기 등 노인이 혼자하기 힘든 일을 대행 해주는 서비스로서 이곳에서 노인들이 생활에 필요한 각종 생활 서비스나 건강서비스에 대한 정보를 제공받거나 지역의료기관에 연결해주는 정보를 제공해 주는 것으로 파악되었다.
E사례의 카페 즉, 살롱이 2003년에 만들어졌고, 하루 평균 30~40명이 이곳을 이용하여, 연간 12,000~15,000명정도의 이용자가 있는 것으로 파악되었다. 특히, 이곳에서는 개호보험으로는 지원되지 않는 식사제공(배달), 유료가사지원팀을 연결해주는 서비스를 실시하고 있었다. 이 단지에는 후쿠시테라는 유료가사지원팀이 고령자의 고립을 막기 위해 만들어졌으며, 살롱을 운영하는 노인들이 도움을 필요로 하는 노인에게 찾아가서 도와주는 유료가사지원팀이다. 후쿠시테는 1시간에 1000엔의 이용 비용을 받으며, 후쿠시테에서는 개호보험에서 지원해주지 않는 서비스를 지원한다. 노인들은 퇴직 후 후쿠시테에서 활동을 함으로써 지역을 위한, 타인을 위한 역할을 할 수 있는 데에서 의미를 찾고 있는 것으로 파악되었다.
이상 아파트 단지의 살롱을 조사한 결과, 단독주택지와 다르게 단지의 상가공간을 노인대상 중심의 살롱으로 활용하고 있었고 1사례만이 빈집의 단위주거를 개조하여 노인 뿐 아니라 어린이와 주민까지 대상으로 한 살롱으로 활용되고 있었다. 살롱공간은 공공에서 제공하고 NPO나 봉사자가 운영하는 시스템이었으며, 단지의 규모가 4,000세대 이상인 경우는 10명 이상의 봉사자나 직원이 상시 배치되었고, 774세대의 소규모 단지는 아파트 단지 노인 2-3명이 자원봉사로 배치 운영되고 있어 단지규모에 따른 운영의 차이가 있었다. 그리고 기본적인 아파트단지의 노인대상 살롱은 독거노인들의 상황을 서로 파악하기 위해 일상적으로 가볍게 들러서 차와 식사, 만남과 정보교류가 기본적인 활동으로 복지관과 같이 정해진 프로그램을 운영하지는 않았고, 봉사자가 일부 노인에게 필요한 프로그램을 연계해 주는 정도의 가벼운 공간이었다. 따라서 그 명칭이 살롱으로 친근하게 접근한 것으로 볼 수 있다.
V. 요약 및 결론
초고령사회 진입을 앞두고 있는 우리나라의 상황을 고려하여 독거노인의 고독사 예방효과가 있고, 노인들의 생활과 가장 밀착된 서비스 연계공간이면서 동시에 사회적 연결공간으로 기능하는 일본의 노인을 위한 살롱에 대하여 단독주택지와 아파트 단지의 소수사례를 중심으로 살펴보았다.
첫째, 살롱은 노인들이 지역사회를 떠나지 않고, 가능한 살던 곳에서 지속적으로 거주할 수 있게 한다는 AIP(Aging in Place)관점에서 최근 노인복지정책의 취지와 부합하며, 노인이 거주하는 집 근처에서 가볍게 들러 소통할 수 있는 사랑방과 같은 곳이었고, 그 명칭은 제도권 프로그램을 주관하는 기관과는 구별되는 곳이었다. 그리고 살롱은 노인을 대상으로 자연스런 만남의 공간에서 발전되었지만, 점차 전체 지역주민의 교류공간으로도 확대 운영되고 있다.
또한 일본에서 노인을 위한 살롱은 사회복지협의회에서 진행하는 후레아이 이키이키 살롱이 대표적이고 전국적으로 지역의 NPO단체가 주축이 되어 운영되고 있으며, 지자체로부터 재정지원을 받고 있는 것으로 파악되었다. 1994년부터 당초 살롱은 노인이 저렴하게 식사를 할 수 있는 장소라는 점과 장애인을 고용하여 장애인이 일을 할 수 있는 장소라는 두 가지 목적을 달성하기 위하여 만들어졌다는 것이 동경지역 자원봉사센터 관계자 면담과정에서 파악되었다. 또한, 살롱은 지역포괄센터에서 개호보험으로는 지원할 수 없는 경증대상자들을 사회복지협의회로 연계해주는 중간적인 역할도 하고 있었다. 특히, 2018년 개호보험법 개정에 따라 일상생활을 할 수 있지만 주변에 도움이 여전히 필요한 경증대상자들에 대한 정부의 지원(개호보험지원)이 줄어들면서, 개호보험에 포함되지 않는 요지원1, 2 대상자들을 지원해서 개호예방이 될 수 있도록 하는 살롱의 역할이 있음도 파악할 수 있었다.
둘째, 일본의 지역사회에서 고령화에 따른 인구감소로 유휴자원의 단독주택이나 아파트단지 공가세대를 개조하여 활용한 살롱은 노인뿐 아니라 지역주민까지 자연스런만남과 교류의 장소로 이용되고 있었다. 주택전체를 개조하여 도서관이나 갤러리, 주민의 사랑방으로 활용되었고, 주택의 일부공간(거실, 식당, 주방, 정원, 화장실, 점포, 다목적실)을 활용하여 육아, 간호인의 휴식, 만남과 교류의 커뮤니케이션, 바둑이나 마작의 취미활동 용도로 사용하고 있었다. 이때 화장실은 기본적으로 필요한 공간이었으며, 정원공간의 활용이 특징적이었고 거실과 식당공간이 주로 활용되었다. 한편 아파트 공가는 1층 세대를 중심으로 노인의 휠체어 사용자 접근이 가능하도록 개조후 활용하였다.
이러한 일본의 단독주택이나 아파트 공가 활용의 살롱은 초고령화를 앞둔 우리나라에 새로운 시사점을 제공한다고 볼 수 있다. 단독주택지역 내에 유휴부지를 확보하기 어려워 노인을 위한 새로운 공간을 조성하지 못하지만, 지역사회를 떠나고 싶지 않은 노인들을 위한 하나의 대안이 될 수 있을 것이다. 이러한 유형의 살롱공간은 지역사회 내에서 거주하는 노인들의 생활과 가장 밀착된 서비스 지원공간이자 사회적 연결공간으로서의 역할을 할 수 있을 것이다. 사용자 조건이나 장소의 위치가 한정되어 있는 기존의 지역사회 시설들과는 달리 각기 원하는 활동이 다른 대상자들이 주거환경권에서 가볍게 이용 가능한 살롱공간은 초고령사회에 노인들의 소통과 정보공유 나아가 주거공간에서 발생하는 일의 예방관리까지를 담당하는 역할을 할 수 있을 것이다. 따라서, 우리나라도 노인들이 밀집한 지역의 경우 지자체, 사회복지협의회, 지역주민 등이 협업하여 공간제공자 발굴, 공간지원, 활동지원을 추진해야 할 것이며, 이러한 새로운 시도를 추진하기 위하여는 단독주택지역에도 관련 전문가인 주거서비스 코디네이터3)를 배치하여 유휴공간을 노인을 위한 교류의 장으로 이끌 수 있도록 하는 것이 필요하다.
셋째, 일본의 노인밀집 아파트 단지의 살롱은 고독사를 예방하기 위하여 노인들의 고립을 방지하고, 가벼운 만남과 소통의 공간으로 자신들의 식사 및 정보연계 요구를 스스로 해결해 나갈 수 있는 기능이 확인되었다. 이에 우리나라도 고령사회를 대비하여 일본의 살롱공간의 역할과 기능에 주목하고, 아파트 단지에서 공간을 어떻게 확보하여 노인들 스스로 이러한 살롱을 만들어 나갈 것인지를 생각할 필요가 있다. 또한 살롱 이용자들은 서비스를 받기보다는 참가하고 기획하는 자발적 봉사자로서의 역할이 강조되어야 할 것이다. 나아가 살롱을 정착시키고 확대하기 위해서는 이를 기획하고 활성화할 수 있는 중간 코디네이터의 역할과 지원체제를 구축하는 것이 필요하다.
최근 우리나라에서도 살롱문화라고 하는 용어가 언론에서 언급되고 있으며, 소규모 모임의 살롱을 형성하는 흐름이 감지되고 있다. 하지만 본 연구는 일본의 노인밀집 아파트 단지에 위치한 살롱 방문에 어려움이 있어 소수 사례의 질적자료를 분석한 결과이므로 일반화의 한계점이 있다. 따라서 일본의 살롱에 대해 보다 심층적인 접근, 또는 동경 이외 지역 살롱을 추가연구함으로써 보다 일반화할 수 있도록 접근하는 것이 필요하다. 나아가 지속적인 연구를 통해 살롱이 독거 노인의 고독사 예방에 직접적으로 긍정적 효과를 이끌었는지에 대한 양적 연구가 계속 되어야 할 것이다. 뿐만 아니라 최근 우리나라에서 소개되고 있는 시니어 살롱문화에 대한 연구를 통해 일본의 살롱과 비교 연구도 필요하다.


























