I. 서 론
1. 연구의 배경 및 목적
2014년 장수명주택 건설 및 인증기준 고시에 따라 1,000세대 이상의 공동주택에는 장수명주택 건설기준을 적용해야 한다. 이는 국내의 공동주택 정책이 양적인 주택공급정책으로부터 양질의 주택 시공 후 유지관리를 통해 환경보호 및 사회적 비용 손실을 최소화하는 방향으로 정책이 전환되었음을 의미한다. 전 세계적인 환경보전의 움직임과 더불어 지속가능한 개발이 중요한 이슈로 등장하고 있는 현 시점에 국내의 건축산업도 친 환경적이고 순환형 부품산업의 개발이 요구되고 있음을 알 수 있다.
장수명주택은 건축물의 물리적수명과 사회적수명이 연장되도록 공동주택의 바닥재, 벽재, 천정재 등의 건축구성품의 부품화를 통해 거주자의 요구변화에 대응할 수 있는 공법이다. 장수명 주택의 리모델링을 위해서는 건축물을 구성하는 자재가 거주자의 주거수요에 대응하여 수리가 가능해야 한다. 현재 장수명 주택은 제도화된 초기단계로 장수명 주택을 구성하는 구성품에 대한 설계기준 및 시공기준이 필요함을 알 수 있다. 기존 장수명 주택의 경우 단품 중심의 연구로 인필 간 연계가 이루어지지 않았으며 종합적인 치수 Rule이 부재하여 인필제품 간 연계가 이루어지지 않아 사업의 활성화가 이루어지기 어려 웠다. 특히 장수명주택 인증제도 고시에 따라 건축물의 물리적 수명을 늘려서 사용할 수 있도록 장수명주택의 인필 연구가 필요하다. 본 연구에서는 장수명주택 보급 및 활성화를 위해 인필 간 연계 시 정합기준 및 계획특성을 고찰하고자 한다.
2. 연구의 범위 및 방법
본 연구는 장수명주택에서 인필에 해당되는 부분을 연구의 범위로 설정하였다. 장수명주택의 리모델링의 효율성을 제고시키고 주택 내 물리적공간의 변화를 통해 거주자의 요구에 대응할 수 있도록 하기위해 장수명주택의 설계 시 인필의 설계기준 및 정합기준을 설정하여 설계 시 반영하였다. 구체적인 연구의 연구방법은 다음과 같다.
첫째, 장수명 주택에 관한 이론적 고찰과 KS에서 정의하고 있는 건축정합기준 및 MC설계관련 문헌조사를 실시하였다.
둘째, 장수명주택 인증기준및 KS에서 정의하고 있는 건축정합기준 분석을 통해 장수명주택에 적용되는 인필의 설계Rule을 수립하였다.
셋째, 도출된 인필의 설계 Rule을 바탕으로 장수명주택 Proto-type설계를 진행하였다. 평면계획에서부터 인필설계를 진행하였으며 설계를 통해 장수명주택 인필시스템의 정합기준 및 계획특성을 검증하였다.
II. 이론적 고찰
1. 장수명주택
장수명 주택은 내구성이 있는 골조부분과 교체와 수선이 가능한 내장부분으로 분리한 주택시스템으로 환경의 보호와 경제적 측면을 고려하여 100년 이상의 사용을 가능하게 하는 공법이다. 주택은 수명의 장단의 차이가 있는 많은 자재나 부품 등으로 구성되어 있으며 부분의 수명저하가 주택 전체의 수명에 영향을 미칠 수 있다. 이와 함께 사회적으로 가족의 성장변화, 기능변화 등을 수용하지 못한다면 주택이 가지는 성능이 저하되기 때문에 장수명 주택이 되기 위해서는 물리적으로 수명이 길어야 하며 사회적 기능적으로 새롭게 요구하는 거주자의 요구를 수용할 수 있는 시스템을 구성해야 한다. 장수명 주택의 인필부분은 가변성을 가진 구성재로 수선 시 변경이 용이해야 하며 다른 부품과 호환이 필요하다.
2. 정합기준
건축물은 단순히 건축물을 구성하는 구성재의 나열이 아니라 건축물을 구성하는 구성재의 조합을 통해 하나의 건축물이 된다. 기존 공동주택의 경우 습식공법의 구조체에 규격화된 건축자재의 조합을 통해 건축물을 시공하였다. 장수명주택은 라멘구조의 구조체에 규격화된 구성재를 통해 시공할 수 있는 공법으로 효과적인 리모델링과 사후관리를 위해 특히 기준면 설정이 중요하다. 정합기준에는 자재의 규격이 되는 구성재 기준면과 설계 및 시공 상에서 공간에 설정되는 조립기준면으로 구분된다. 구성재 기준면은 구성재에 설정되는 기준면으로 구성재의 치수와 위치를 설정하는 기준이 되는 면이다. 조립기준면은 구성재 상호간 구성재가 위치하는 공간에 설정하는 기준면으로 공간에 조립되는 구성재의 위치를 지정하거나 공간에 점유하는 영역을 지정하는 것이다. 장수명주택의 경우 구조체를 장수명으로 사용하되 건축물을 구성하는 인필은 수명주기 및 사용용도에 따라 주기적인 교체가 필요하다. 인필의 교체를 효과적으로 하기 위해서는 부품 상호간 치수정합 확보가 필요하다. 이에 본 연구에서는 한국산업표준에서 제시하는 건축모듈 정합원칙 및 기준 검토를 통해 장수명주택의 인필 설계 시 건축치수 및 기준을 적용하고자 이론적 고찰을 실시하였다. 건축모듈 정합 원칙 및 기준은 건축물 설계와 건축 구성재의 설계·생산 과정에서 합리적인 모듈정합을 위한 원칙 및 기준을 의미한다. 모듈정합의 목적은 구성재뿐만 아니라, 다른 종류의 구성재와 현장조립·시공단계에서 치수적으로 정합할 수 있도록 일정 모듈을 적용하여 건축 분야의 생산성을 높이는데 목적이 있다. 모듈정합을 통해 건축구성재의 치수 종류를 단순화하고 적용성을 제고시킬 수 있으며 교체가 원활하도록 건축 구성재의 재료, 형태 또는 생산방법에 있어 호환성을 확보하여준다.
3. MC설계
인필 제품의 수선 및 교체를 위해서는 장수명 주택의 계획 시 유기적인 연계체계를 구성해야 한다. 건축공간 및 건축자재의 표준화를 위해서는 치수 기준을 수립이 필요하다. MC 설계란 Modular Coordination이란 의미로 건물을 구성하는 건축공간과 건축구성재가 일정한 모듈에 맞게 구성되어 정합되는 것을 의미한다. MC설계는 모듈 정합을 통해 설계 표준화를 행하는 방법으로 조립기준면의 간격을 일정한 모듈로 설계하고 이러한 모듈과 조립 기준면에 의해 구조체와 인필 부품이 놓여지도록 설계하는 것이다. MC설계를 건축에 적용할 경우 건축설계 분야에서는 계획모듈에 맞추어 조립기준면을 설정하고 자재 및 부품생산 분야에서는 설계표준화 기준에서 규정하는 계획 모듈과 조립기준면을 기준으로 공차와 틈을 고려한 구성재를 제작해야 한다. 건축물의 수명을 연장하기 위해서는 신축 및 리모델링 시 표준화되고 규격화된 부품의 개발이 필요하며 이러한 건축구성재를 사용하기 위해서는 신축 당시부터 리모델링을 고려한 설계가 필요하다.
III. 장수명주택 인필시스템의 정합기준 설정
1. 장수명 주택 인필 계획특성
장수명주택 인증기준에 의하면 가변성, 수리용이성 부분이 인필에 직접적인 영향을 주는 계획기준으로 장수명주택의 활성화를 위해서는 인증기준 특성을 반영한 설계가 필요하다. 본 연구에서는 장수명주택 인필계획 시 기준이 되는 가변성과 수리용이성 부분을 검토하였다. 특히 인필설계에 직접적인 영향을 주는 평가항목은 가변성 항목으로 가변성 항목의 평가기준은 설계 시 꼭 반영되야 하는 필수 항목 3종, 선택사항 6종으로 필수 항목과 선택항목의 합으로 등급기준을 선택한다. 장수명 주택 인증기준은 내구성항목과 벽체의 재료 및 배관·기둥의 배치 등을 평가하는 가변성, 그리고 개수·보수 및 점검의 용이성을 평가하는 수리용이성을 평가하여 종합점수를 기준으로 심사한다.
Table 1.
Long lIfe Housing Certification Criteria (Variability Evaluation Standards)
장수명주택의 공간가변을 위해서는 인필이 건식화되고 인필과 인필사이의 시공오차를 부품단위의 조합을 통해 해결해야한다. 장수명 주택에서 인필은 수선주기에 따라 교체를 고려하는 건축구성재로 공간의 가변과 수리 시 용이해야 하기 때문에 서포트와 정합성이 중요하다. 또한 인필과 인필간 접합되기 때문에 건축모듈의 정합원칙 및 기준은 설계 및 생산 시 하나로 통합된 통합모듈과 기준 수립이 선행되어야 한다. 장수명주택의 건축계획 및 자재의 표준화를 위해서는 치수기준 수립이 필요하다. 본 연구에서는 인필의 건식화·부품화, 배관·배선의 이동성 확보를 고려한 장수명주택의 설계기준을 제안하기 위하여 기술표준원에서는 건축 설계 시 적용할 수 있는 건축기준을 근거로 장수명 주택에 적용 가능한 건축 설계기준을 <Table 2>와 같이 분석하였다.
Table 2.
Infill-related Construction Standards
장수명주택의 인필은 자재의 규격이 되는 구성재 기준면과 설계 및 시공 상에서 공간에 설정되는 조립기준면으로 구분된다. 구성재 기준면은 구성재에 설정되는 기준면으로 구성재의 치수와 위치를 설정하는 기준이 되는 면이다. 조립기준면은 구성재 상호간 구성재가 위치하는 공간에 설정하는 기준면으로 공간에 조립되는 구성재의 위치를 지정하거나 공간에 점유하는 영역을 지정하는 것이다. 본 연구에서는 장수명주택의 구조체인 골조면을 기준으로 조립기준면을 설정하였다. 조립기준면은 골조면을 기준으로 시공오차와 마감면을 포함하고 있으며 인필이 적용되는 평면 및 단면 계획 시 조립기준면을 설정한 후 인필부재를 설계하였다. 인필제품의 수선 및 교체를 위해서 장수명 주택의 계획 시 합리적인 정합을 위한 통일된 원칙을 적용하였다.
2. 장수명 주택의 Total Rule
본 연구에서는 장수명주택에 적용되는 인필계획 시 적용되는 설계기준을 수립한 후 설계를 진행하였다. 장수명주택 인필은 리모델링과 재사용을 위해 자재의 건식화 및 표준화된 치수체계를 유지해야한다. 거주자의 요구변화에 대응하여 공간의 레이아웃 및 가변을 위해서 인필은 구조체와 함께 통일된 치수체계를 유지해야한다. 공간의 가변 시 배관·배선의 이동이 자유롭기 위해서 인필은 구조체와 설비, 내장재등과 분리되어 설치되어야한다. 또한 수명이 다한 인필의 교체가 가능하도록 부품간 호환이 중요하며 부품의 교체 시 구성품의 성능이 확보되어야 한다. 이러한 내용을 정리하여 장수명주택의 Total Rule을 다음 <Table 3> 과 같이 정의하였다.
Table 3.
Total Rule of Long Life Housing
IV. 정합기준을 적용한 장수명주택 Infill계획
1. 평면계획
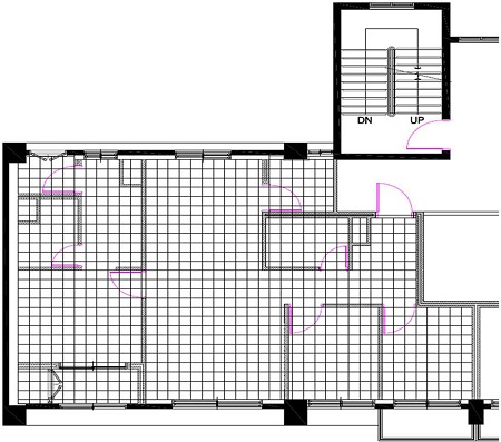
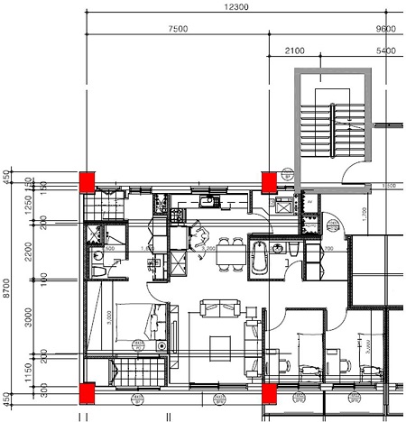
본 연구의 Proto-type은 59 m2의 면적을 갖는 평형을 기본 모델로하며 구조는 기둥식구조로 계획하였다. 장수명주택은 장기적으로 사용할 수 있도록 구조체를 만든 후 거주자의 요구에 따라 공간 및 설비의 교체가 용이해야 하기 때문에 구조체와 인필 구성자재 사이에는 정합기준 및 교체 시 탈부착을 할 수 있는 룰이 있어야 한다. 본 연구에서는 공동주택의 구조를 기존의 벽식공법이 아닌 기둥식구조인 라멘구조를 적용하여 장수명주택을 설계하였으며 공간활용 및 재사용에 초점을 맞추어 평면계획을 실시하였다.
장수명주택의 설계기준을 구조체와 인필제품의 정합을 고려하여 300 mm 증분치수를 기본단위로 기둥의 폭과 평면의 단위치수가 3M단위로 증감이 가능하도록 계획하였다. 본 연구에서는 이중바닥 패널을 300 mm의 기본 그리드에 맞추어 Proto-type 평면을 계획하였으며 그 밖에 부족한 단위는 100×100 mm의 비 규격모듈을 사용하였다. 장수명주택은 거주자의 라이프사이클에 의해 거주인원이 달라질 수 있으므로 거주자의 구성원에 맞추어 공간의 변화가 필요하다. 본 연구에서는 거주자의 시나리오에 대응하는 다양한 평면을 계획을 실시하였다. 기존 벽식아파트 및 장수명주택 사례를 검토한 결과 공간변화에 가장 큰 제한이 되는 요소는 물사용 공간으로 본 연구에서는 물 사용공간의 이동을 고려하여 공용설비 코어를 계획한 후 물사용공간의 이동에 효과적으로 대응할 수 있게 평면을 계획하였다. 본 연구에서는 공간의 가변을 위해 설비코어(급수와 배수를 위한 배관이 집적된 코어)를 세대 사이에 설치하여 설비배관의 이동성을 고려하였다. 기존 공동주택의 경우 계단실과 함께 설비코어를 집중시켜 배치하였으나 본 연구에서는 세대 내 평면의 변화를 위해 설비코어를 계단실과 분리하여 세대 사이에 독립적으로 위치시켰다. 세대 사이에 위치한 설비코어는 전기배선 및 설비배관의 설치가 가능하여 초기에는 거실로 사용하다 세대를 분할 할 경우 설비코어에 배관을 설치하여 물을 사용하는 주방으로 변경하여 사용할 수 있다. <Table 4>는 공간가변을 고려한 평면계획이다.
2. 단면계획
본 연구에서 제안하는 장수명주택은 거주자의 라이프사이클에 맞추어 실내공간의 변화가 가능하도록 하는 것이다. 기존 공동주택의 실내공간은 물을 사용하는 화장실 및 주방의 배관이 슬래브에 매설하는 타입으로 시공 시 한번 설치되면 변경이 어려웠다. 공간의 확장 및 변화를 위해서는 설비시설이 변화가 필수적이며 배관과 같은 설비시설이 구조체와 분리되어야 한다. 본 연구의 프로토타입 도면에서는 이중바닥구조의 단면계획을 통해 물을 사용하는 공간도 실내에서 공간의 이동이 가능하게 계획하여 공간의 가변성을 향상시켰다. 또한 건식바닥시스템을 통해 난방시설을 계획하였으며 건식바닥시스템은 이중바닥구조의 시공 범위 안에 설치 할 수 있도록 계획하였다. 단면계획도 구조체와 인필제품의 정합을 고려하여 300 mm증분치수를 기본단위로 하였으며 100×100 mm의 비 규격모듈을 사용하여 인필 제품의 설치 시 부족한 부분을 보완하였다.
3. 인필계획
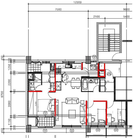
본 연구에서는 세대내 벽체로 사용하는 압출성형 경량콘크리트 패널, ALC패널, Drywall 방식을 검토하였다. 장수명주택의 세대 내 벽체의 경우 거주자의 요구에 의해 공간의 가변이 용이해야한다. 기존 벽식구조의 경우 세대 내 벽체도 바닥슬라브와 상부슬라브 사이에 설치하기 때문에 벽체 수선 시 벽체와 접합하는 바닥면과 천장면도 훼손된다. 본 연구에서는 실내 공간의 가변을 위해 바닥마감면과 이중천장면 사이에 세대 내 벽체를 적용하는 방법을 고려하였으며 마감면에 접하여 설치 및 해체가 용이한 Dry-wall공법을 적용하였다.
장수명주택 인증기준에의하면 기존 내력벽 및 기둥의 비율 검토를 통해 공간의 가변이 가능한지 검토를 하고 있다. 본 연구에서는 이러한 장수명주택의 특성을 고려하여 거주자의 주요구에 대응하는 공간의 가변이 가능하다. KSF1503에서 권장하는 수평계획 모듈은 2,100 mm 이상 3,600 mm 이하에서는 3M의 증분치수, 3,600 mm 초과 9,600 mm 이하에서는 6M의 증분치수, 9600 mm 초과 시에는 12M의 증분치수를 권장하고 있다. 본 연구에서 설계한 기둥간격은 7,500으로 3M의 증분치수를 적용하여 평면을 설계하였다. 인필-벽체재료 및 시공방법 평가에서는 세대 내 벽체 중 건식벽체의 비율 평가 및 가변용이성을 검토히였다. 건식벽체비율을 평가하는 이유는 벽체를 건식화, 경량화 할 경우 거주자의 다양한 요구에 대응할 수 있어 공간의 가변이 용이하기 때문이다. 본 연구에서는 인필-벽체재료 및 시공방법에 KS표준 KS1503을 통해 3M의 기본모듈을 평면에 적용하였으며, 벽체의 기본 모듈을 1M으로 계획하여 3M단위로 구성되는 세대 내 평면치수에 벽체가 정합이 되도록 설계하였다. 세대 내 벽체는 바닥 마감부터 천장의 최종 마감면에 위치하는 것으로 세대 내 벽체의 설치 위치를 설정한 후 건축구성재에 대한 설계를 진행하였다. KSF1505는 건축 구성재의 기본 공차 및 기준으로 본 연구에서는 KSF1505의 건축 구성재 치수 결정순서로 설계한 건식벽체의 치수는 다음과 같다. 인필-벽체 재료 및 시공방법에서 평가하는 가변 용이성 구법은 바닥의 최종마감재 이전 공정을 파괴하지 않는 공법과 벽체의 최종마감재 이전 공정을 파괴하지 않는 공법과 부품화를 평가한다.
본 연구에서는 공간의 가변성을 높이기 위하여 이중바닥과 이중천장 사이에 세대 내 벽체를 설치하는 것을 제안하였다. 이중천장은 벽체와 접합하고 있기 때문에 규격화된 제품의 손상이 없는 높이로 천장달대를 조정하여 조립기준면에 맞춰야한다. KSF1510은 건축 구성재의 모듈 정합을 위한 우선치수를 규정하고 있다. 3M의 증분치수를 세대 내 벽체인 건축구성재 치수에도 적용하여 인필제품의 높이와 폭을 설계하였다. 이중천장은 실내공간의 변화를 위해서는 세대 내 벽체의 이동이 필요하기 때문에 접합부의 처리를 표준 마무리재를 사용하여 천장재와 벽체 마감재인 보드류를 분리시켜야한다.
장수명주택의 공간 가변성을 높이기 위해 본 연구에서는 이중천장을 선시공한 후 세대 내 벽체를 후시공하는 시공방안을 제안한다. 세대 내 이중천장 일괄시공을 통해 기존 실단위 시공보다 공기를 단축을 기대할 수 있다.
이중바닥은 벽체와 접합하기 때문에 벽체와의 정합기준 시 수선주기를 고려해야 한다. 세대 간 벽체의 경우 수선 주기가 장기적이나 세대 내 벽체의 경우 주 요구에 따라 벽체의 이동이 자유롭다. 세대 내 벽체는 이중바닥의 바닥 마감 조립기준면에 맞추어 훼손을 최소화 할 수 있다. 세대 내 벽체의 경우 공간의 가변이 가능한 구성재로 조립기준면을 바닥마감 조립기준면과 천장마감 조립기준면 사이에 2,400 mm의 벽체가 설 수 있도록 공간을 확보하여야하며 접합부위의 훼손방지를 위한 부속자재를 설치해야한다.
세대 간 벽체의 경우 리모델링 시 손상되는 부분을 최소화 하기 위하여 벽체와 접합하는 부위에 인필 구성재와 완충재를 설치가 필요하다. 인필구성재와 완충재의 경우 별도의 소음 및 차음등의 성능과 관계가 있는 구성품으로 인필개발 시 성능기준 및 탈부착을 고려한 형태로 제품개발이 필요하다. 또한 시공방법의 개발도 필요함을 본 연구를 진행하면서 알 수 있었다.
특히 세대간 벽체의 경우 세대 간 소음을 방지하기 위한 벽체의 구성이 필요하며 벽체와 슬라브 사이의 틈을 기밀하게 시공해야한다.
4. 장수명주택의 인필 설계적용 종합평가
장수명 주택에 설치되는 인필은 구조체에 설치 후 리모델링과 재사용을 위해 자재의 건식화 및 표준화된 치수체계를 유지해야 하며 구조체와 설비, 내장재 및 외장재의 교체를 위해 분리가 용이해야 한다. 장수명주택의 인필은 거주자의 요구에 대응할 수 있어야하기 때문에 단순히 건축물을 구성하는 구성재의 나열이 아니라 조합원칙을 가진 인필 구성재의 조합을 통해 하나의 건축물이 되어야 한다. 장수명주택은 라멘구조의 구조체에 규격화된 구성재를 통해 시공할 수 있는 공법으로 효과적인 리모델링과 사후관리를 위해 특히 설계기준의 설정이 중요하다.
본 연구에서는 장수명주택의 가변성 평가항목을 근거로 한국산업표준의 건축기준에 맞게 장수명주택의 Proto-type을 설계하였으며 이를 통해 장수명주택의 설계 시 특성을 검토하였다. 장수명 주택 설계 시에는 자재의 규격이 되는 구성재 기준과 설계 및 시공상 에서 공간에 설정되는 조립기준면을 구분하여 설계를 해야 한다. 구성재 기준은 구성재에 설정되는 기준과 시공 상 틈값을 고려한 공차의 합으로 구성재의 치수와 위치를 설정하는 기준이 되는 면을 의미한다. 인필의 조립기준면은 구성재 상호간 구성재가 위치하는 공간에 설정하는 기준면으로 공간에 조립되는 구성재의 위치를 지정하거나 공간에 점유하는 영역을 지정하는 것이다. 수명이 다한 인필의 교체가 가능하도록 부품 간 호환이 중요하며 부품의 교체 시 구성품의 성능이 확보되어야한다.
Table 5.
Matching Standards for Infill Systems of Long Life Housing
VI. 결 론
장수명주택은 거주자의 라이프사이클에 맞추어 교체 및 수선이 용이하도록 개발한 공동주택이다. 장수명주택 인필 시스템은 거주자의 요구에 의해 이설 및 재설치가 용이해야 하기 때문에 유지보수가 가능해야 한다. 본 연구에서는 장수명 주택의 인필 제품을 대상으로 인필 간 연계를 위한 방안을 모색 하였다.
첫째, 실내공간의 변화 시 재시공이 용이해야 하기 위해서는 리모델링을 고려한 계획기준이 필요하다. 현재 인필제품의 경우 현장설치 후 재사용을 이루어지지 않기 때문에 인필부품의 사이즈가 부재별로 다르다. 재사용을 위해서는 공간의 크기에 대응할 수 있어야하나 현재 사용되는 제품의 경우 제품상호간 호완이 어려움을 알 수 있다.
둘째, 토탈 치수기준 수립을 통해 인필 제품의 교체 시 필요한 영역성과 위계성을 확보할 수 있다. 구조체와 인필 부품의 접합부에 조립기준면을 설정하면 장수명 주택의 리모델링 시 인필제품의 접합면에서 조립기준면을 통하여 MC설계를 유지할 수 있다.
셋째, 인필제품의 재사용을 고려하여 모듈화된 인필 제품의 개발이 필요하다. 현재 한국의 인필제품의 경우 부품화된 이중바닥시스템은 개발되어 있으나 재사용을 위한 제품이 없기 때문에 실내공간의 변경 시 해체 및 재사용의 어려움이 있다.
넷째, 인필제품의 접합부 특성을 고려한 완충부재의 개발이 필요하다. 현재 장수명주택에 적용되는 인필제품의 경우 건식화되고 규격화되어 있어 인필의 교체 시 동일한 인필부품을 사용할 수 있다. 하지만 부재간 접합부에서는 교체 시에 두 가지 부재가 다르기 때문에 시공효율성이 떨어진다. 인필제품간 특성을 고려한 접합부 완충부재가 개발된다면 인필 제품의 정합성을 높일 수 있다.












