I. 서 론
1. 연구의 배경 및 목적
현재 국내의 주택 보급률은 이미 100%를 달성하였으나 공동주택의 경우 거주자의 라이프스타일을 충분히 반영하지 못함에 따라 주거 만족도는 낮은 수준에 머물러 있다. 이러한 문제점이 국내 공동주택의 사회적 요구성능 저하에 따른 조기 재건축과 리모델링으로 이어지면서, 건축물 수명은 약 26.72년으로 선진국의 30%에도 못 미치는 실정이다(Yoon et al., 2010).
한편 장수명주택은 구조적으로 향상된 성능을 바탕으로 다양한 요구를 수용할 수 있는 개념으로서 계획과 시공 분야에서 지속적으로 연구가 진행되어 왔으나 건설시장에서 본격적인 도입이 이루어지고 있지 않은 상황이다. 장수명주택의 확산을 도모하기 위해 정부에서는 2014년 12월 주택법 개정을 통하여 1,000세대 이상의 공동주택을 공급하는 경우 의무적으로 장수명주택 인증을 취득하도록 제도화하였다. 장수명주택 인증제도는 내구성, 가변성, 수리용이성 등 3가지 영역에서 평가항목이 적용되며, 일반(50점), 양호(60점), 우수(80점), 최우수(90점) 4가지 등급으로 판정된다. 그러나 제도 시행 이후 인증을 받은 대부분의 아파트 단지는 일반 등급에 해당하였으며, 등급 상향이나 혁신적 기술 적용의 시도가 이루어지지 않고 있다.
이에 본 연구에서는 공급자 측면에서 장수명주택의 보급에 대해 적극적인 움직임을 유도하기 위한 방안으로 장수명주택의 특징 가운데 사용자들이 가장 차별적 요소로 인식할 수 있는 가변성을 중심으로 거주자 요구를 파악하고자 하였다. 즉, 장수명주택 평면에 적용가능한 여러 가변요소에 대해 사용자들의 선호도를 조사함으로써 장수명주택의 매력도를 높일 수 있는 기초자료를 제공하고, 설계 과정에서 소비자의 주거 만족도와 편의성을 제고할 수 있는 방향을 제시하고자 하였다.
2. 연구의 내용 및 방법
본 연구는 기본적으로 잠재적인 아파트 사용자로서 일반인들의 장수명주택에 대한 인지도와 평면유형에 대한 선호도를 조사하는 것을 내용으로 한다. 또한 장수명주택 인증 분야인 내구성, 가변성, 수리용이성 가운데 가족구성의 변화와 같은 사용자 내부적인 요구, 사회적ㆍ기술적 변화에 따른 추가 요구 등 주택 생애주기 동안의 수요 대응과 가장 밀접한 관련성을 가지는 ‘가변적 계획요소’를 조사대상으로 한정하였다.
조사는 가변성을 갖춘 장수명주택 평면 유형을 설정하여 컴퓨터를 이용한 웹 설문조사(CAWI, Computer Assisted Web Interview)를 시행하고 그 결과를 분석하는 방법으로 진행하였다. 설문은 59 m2(24평형) 이상 주택에 거주하는 30~50대 남녀를 대상으로 지역, 주택 크기 및 유형을 고려한 유의표집단(purposive sampling)을 구성하여 실시하였다.
II. 장수명주택의 특징과 평면유형
1. 장수명주택과 수요 대응 성능
장수명주택은 일반주택에 비하여 물리적인 수명과 기능적인 수명을 높여 사회적인 변화, 기술변화, 세대변화, 가족구성 변화 및 다양성 등에 대응할 수 있도록 계획된 주거를 의미한다. 변화하는 수요에 대응한다는 의미에서 장수명주택의 핵심 성능이라 할 수 있는 가변성은 내부 내력벽 비중을 줄이고, 건식벽체 비중을 높임으로써 벽체의 이동설치와 변형을 용이하도록 하거나, 이중바닥 설치, 욕실, 화장실, 주방 등의 이동가능성을 제공함으로써 가족구성원의 변화에 따라 전용부분에 다양한 대안을 제시하는 것을 포함한다.
장수명주택 인증제도에서 가변성 평가 기준은 <Table 1>과 같이 필수항목과 선택항목으로 구분되며, 필수항목은 내력벽 및 기둥의 길이 비율, 세대내부 총 내부벽량 중 건식 벽체 비율, 가변 용이성 구법의 3가지 항목으로 구성되어 있다. 그리고 선택 항목은 욕실/화장실 배관 당해층 배관, 층고 상승에 따른 가점, 이중바닥, 욕실(화장실) 이동, 부엌(주방) 이동, 외벽벽체의 공업화 제품 및 교체 가능한 공법 등 총 6가지 항목으로 구성되어 있다.
Table 1.
Flexibility Evaluation Criteria
또한, 가변성뿐만 아니라 장수명주택 인증제도 내의 수리용이성 평가영역에서도 사용자의 요구에 따른 평면 변화에 대한 지원가능성을 평가하도록 하고 있다. 즉, 전용 부분을 세대구분 평면으로 분리함으로써 복수의 세대를 구성할 수 있는 개념을 평면 계획시 반영하도록 하고 있으며, 이는 공간계획과 설비계획에 포함된다.
2. 장수명주택의 평면유형
현행 장수명주택 인증제도에서 제시하는 평가항목을 중심으로 사용자 입장에서 기대하는 평면을 유형화할 수 있을 것이다. 거주자의 평면에 대한 요구는 주로 세대 구성의 변화, 세대 내 실의 구성과 배치에 대한 개인적 성향에 따라 변경되는 것으로 설정하고, 여기에 장수명주택에서 제공할 수 있는 계획 변경 요소가 결합되도록 하였다.
평면의 개발에 있어서는 구조방식, 벽체 재료와 시공방법, 노출배관, 건식공법 확대 등 전용부분 내에서 다양한 평면을 가능하도록 하는 기술적 요소가 모두 적용되었다는 가정 하에, 기본적으로 제공되는 평면에 대해 실의 ‘통합’ ‘이동’ ‘분할’의 개념을 반영하도록 한다.
본 연구에서는 최근 한국토지주택공사에서 건설기술연구원 및 SH공사와 같이 공동추진하고 있는 국책과제 연구의 실증단지 건설에 적용하기 위하여 실증단지 모델 59 m2(24평형) 크기를 바탕으로 국책과제 연구단에서 직접 설계한 평면으로 한정한다. 59 m2(24평형)의 크기는 수요도가 높고, 분양주택과 임대주택에 공통 적용이 가능한 평형이라 모델로 설정하여 설계하였다. 공급모델 기본형을 포함하여 가변성을 대비한 통합형, 주방이동형, 세대구분형 세 항목의 시나리오를 설정하였다. 아래 유형의 가족 구성은 시나리오별 평면의 이해를 돕기 위한 것이다.
1) 기본형
기본형은 현재 벽식구조에서 일반적으로 제공되는 유형으로 전면 4-Bay, 후면 2-Bay 평면에서 장년층 부모와 초등학생~대학생 자녀 2인이 거주하는 것으로 설정하였다. <Figure 1>과 같이 안방을 포함한 침실 3개가 전면에 배치되고, 2개의 욕실이 거실과 안방에 설치되도록 하였다.
2) 통합형
통합형 평면은 ‘통합’의 개념을 적용하여 기본형 평면에서 전면에 배치된 거실과 침실 2개 사이의 변화를 통해 가변 용이성을 보여주는 평면이다. 두 침실 사이의 벽을 제거하여 침실의 크기를 확장하거나(침실통합형), 거실과 침실 사이의 벽을 제거하거나 이동하여 거실을 융통성있게 사용할 수 있도록 함으로써(거실확장형) 방과 거실에 가변성을 제공하도록 하였다.
그 중 <Figure 2>에서 도시된 침실통합형에 대한 시나리오는 장년층 부모와 자녀 1인으로 세대 구성이 변화되었을 때, 전면 침실 2개를 통합함으로써 세대 내 전체 침실을 2개로 변경하는 것이다
거실확장형은 침실통합형과 동일하게 장년층 부모와 자녀 1인의 세대 구성에서 <Figure 3>과 같이 거실측 침실 1개를 없애 거실을 확장할 수 있도록 하였다. 방의 개수는 침실 통합형과 변화가 없지만 가변형 벽체를 적용함으로써 거실과 인접한 침실의 크기를 조절할 수 있다.
3) 주방이동형
주방이동형은 ‘이동’의 개념을 적용하여 당해층 배관공법과 이중바닥구조를 바탕으로 물사용공간의 위치를 변경할 수 있도록 구현한 형태이다.
<Figure 4>와 같이 기본형 평면에서 전면 침실과 후면 주방의 위치를 서로 바꿈으로써 부엌(주방)이 일반적인 전면방향인 남향으로 배치될 수 있도록 처리하였다. 이는 넓고 쾌적한 주방을 원하는 최근의 트렌드를 고려한 평면에 해당한다. 주방이동형은 부모와 영유아부터 7세의 유아기 자녀 등 3인으로 구성된 세대를 대상으로 하며, 2개의 침실과 2개의 욕실을 배치하였다.
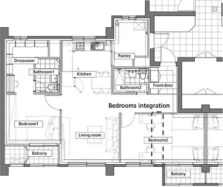
4) 세대구분형
세대구분형은 ‘분할’의 개념을 적용하여 전면의 침실, 현관, 욕실을 별도 공간으로 분리할 수 있는 평면으로 필요 시 일부 공간을 임대할 수 있도록 개발되었다. <Figure 5>와 같이 자녀가 분가한 가구에서 남아있는 노년층 부모와 세입자가 구분된 공간에 거주하는 것으로 하였으며, 출입구를 분리하고 임대되는 공간에 주방, 욕실을 배치하되 SOHO형도 가능하도록 계획되었다.
3. 선행연구 분석
선행연구의 경우 가변 계획 기술 사례를 조사하였다. 이를 평면계획 상에서 구현한 사례, 평면 변화에 대한 사용자의 요구 조사 등 본 연구의 내용과 관련성이 높다고 판단되는 주제로 한정하여 수집하여 분석하였다. 선행연구 사이의 경향을 보면 공동주택의 기본 성능으로서의 가변성은 과거 주택성능등급표시제도 시행과 함께 본격적으로 논의되었으며, 장수명주택 인증제도를 통해 보다 현실적인 측면에서 연구가 진행되었다.
앞서 일본에서 SI주택이 연구되어 왔으나, Kim and Park(2015)의 연구에 따르면 한국 장수명주택은 1,000세대 이상 의무 적용인 반면 일본은 당사자간의 협의에 따라 제도 의무의 차이를 밝혔다. 한국은 공동주택을 대상으로 하여 내구성, 가변성, 수리용이성에 따른 주거동 차원의 협의적 장수명주택이라면, 일본은 공동주택과 단독주택을 대상으로 주거동-지역이라는 광의적인 영역을 대상으로 하고 있다. 또한 한국의 장수명주택은 기준을 등급으로 나누지만 일본은 기준을 일원화한 항목에 차이가 있다.
Lee and Kim(2009)은 거주자의 공간변화 요구에 대응 가능한 아파트를 구축하기 위해 필요한 가변성 성능항목의 특성과 현황을 검토하였다. 나아가 Lee(2011)는 주택성능등급표시제도 하에서 가변성 세부성능 항목의 특성과 개선방안을 인정 결과를 토대로 정리하였다.
장수명주택 인증제도가 시행된 이후에 이루어진 연구에서는 구체적인 평면개발과 사용자 수요를 실질적으로 반영하고자 하는 시도가 이루어졌다. Hwang and Park(2015)은 라이프 사이클을 고려한 장수명주택 평면계획 수립을 위하여 가변계획이 가능한 평면 구성을 제안하였다. 또한 Hwang et al.(2015)는 장수명주택 인증제도 개선방향 설정을 위한 공동주택 수요자 인식도 조사를 설문조사를 통해 개선방향을 설정하였고, Lee and Kang(2015)는 대안 주거 유형 중 하나로 등장한 세대 구분형 아파트의 인식 및 인지도에 관한 선호도를 조사ㆍ분석하였다.
<Table 2>와 같이 선행연구의 내용을 분석한 결과 본 연구는 장수명주택 보급 확산을 위한 최적의 평면 개발을 위한 기초자료이다. 장수명주택에서 제공할 수 있는 특정 평면유형에 대한 사용자의 수요를 직접 파악하여 상호비교함으로써 설계와 공급 측면의 시사점을 제공하였다는 점에서 기존 연구에 대해 차별성을 갖는 것으로 판단되었다.
Table 2.
Previous Research Analysis
| Authors (year) | Contents |
|---|---|
| Lee and Kim (2009) | - Analysis on flexibility items in time-series method using Housing Performance Grading Indication System (HPGIS) |
| - Review about cases of flexible housing | |
| Lee (2011) | - Evaluate the flexibility performance item based on data from HPGIS |
| - Discussion on technical requirement to ensure flexibility in housing | |
| Hwang et al. (2015) | - Survey on consumer's perception Survey for long-life housing |
| - Review the improvement items for Long-Life Housing Certification System | |
| Hwang and Park (2015) | - Suggestion of various long-life housing unit plans |
| - Development of plans considering lifestyle and lifecycle of users | |
| Kim and Park (2015) | - certification system by comparing them between Korea and japan |
| - background, configuration, regulation and system, item and criteria, incentives of long-life housing certification | |
| Lee and Kang (2015) | - Survey results on household divided house |
| - Review on requirement of S/W and H/W aspects |
III. 장수명주택에 대한 수요 조사결과
1. 조사 개요
1) 조사 방법
장수명주택 평면유형에 대한 수요는 59 m2(24평형) 이상 주택에 거주하는 30~50대 남녀를 대상으로 실시한 설문조사를 통해 파악하였다. 설문조사는 컴퓨터를 이용한 웹 조사 방식으로 진행하였다. 우선 조사 참여 의향자를 설문대상자로 지정하여 안내 메일을 발송하고, 응답자가 메일 내에 포함된 링크를 통해 웹사이트를 방문하여 설문에 참여하도록 하였다. 조사는 성별, 나이, 주택의 유형 및 규모, 형태, 가족구성원을 고려한 유의표집단을 구성하여 2015년 11월 18일부터 일주일 동안 이루어졌으며, 유효 표본 1,011부로 설문결과를 분석하였다.
2) 조사 내용
배포된 설문은 응답자 일반현황을 포함하여 총 4개 영역으로 구성되었으며, <Table 3>과 같이 장수명주택에 대한 인지여부와 장수명주택에서 선택 가능한 평면유형으로 정의한 통합형, 주방이동형, 세대구분형 등으로의 변경 수요, 장수명주택 구입 의향을 조사하였다.
Table 3.
Overview of the Survey
3) 응답자 특성
응답자에 대해서는 성별, 연령, 거주 주택의 유형 및 규모, 소유 형태 총 5가지 항목을 파악하여 설문결과를 보다 다양하게 분석하고자 하였다.
<Table 4>에서 보는 바와 같이 연령은 5살을 기준으로 35~39세, 40~44세, 45~49세, 50~54세, 55~59세 5개 구간으로 나누었다. 또한 거주하는 주택 유형은 단독·다세대주택, 아파트, 기타 3개 항목으로 분류하였고, 주택 규모는 59~60, 61~85, 86~100, 101 m2 이상의 4개 항목으로 분류하였다. 주택 소유 형태에 따라 자가, 전세, 월세, 기타 4개 항목으로 분류하였다. 가족구성원은 1~2인, 3인, 4인 이상 3개 항목으로 분류하였다.
Table 4.
Characteristics of Respondents
전체 1,011명의 응답자 중 남자는 564명, 여자는 447명으로 남성 응답자가 11% 정도 많았다. 연령은 35~39세 319명, 40~44세 271명로 45세 미만 응답자가 전체의 60%에 가깝게 차지하였다. 응답자의 75% 정도는 아파트에 거주하고 있었으며, 절반 정도는 현재 59 m2(24평형) 수준에 거주하고 있다. 자가 가구에 거주하는 응답자는 708명으로 전체의 70%에 달하였다. 가구원수가 ‘인’이라는 응답자가 전체 43.6%로 가장 높았다.
2. 장수명주택의 인지도
장수명주택에 대한 이해수준을 파악하기 위해 응답자에게 ‘건설자원의 효율적인 활용과 입주자의 주거만족도 향상을 위해 오래 가고, 쉽게 고쳐 쓸 수 있도록 만든 공동주택’이라는 장수명주택의 기본적인 정의를 알려주고, 장수명주택에 대해 ① 알고 있었다, ② 들어본 적만 있다, ③ 들어본 적 없다 등 3개 선택지를 제시하였다.
그 결과 <Table 5>에서 보는 바와 같이 장수명주택을 ‘① 알고 있었다’는 응답 비율이 전체의 3.5%, ‘② 들어본 적만 있었다’는 16.6%, ‘③ 들어본 적 없다’는 79.9%로 나타나, 장수명주택이라는 용어 또는 그 개념에 대한 일반 국민의 인식은 아직까지 상당히 낮은 수준인 것으로 드러났다.
Table 5.
Awareness about Long-life Housing
응답자별로 볼 때 장수명주택에 대해 ‘① 알고 있었다’를 보유한 응답비율은 남자(4.1%)가 여자(2.7%)보다 다소 많았으며, 거주 주택 규모별로는 61~85 m2(4.4%) 비율을 보이고 있다. ‘② 들어본 적만 있다’를 보유한 응답비율은 여자(17.9%)가 남자(15.6%)보다 다소 많았으며, 연령별 응답으로는 45세 이상인 45~49세, 50~54세, 55~59세가 19%의 비율로 45세 이하보다 인지여부가 높게 나타났다. 거주 주택 규모별로는 61~85 m2(4.4%)로 응답이 많지만 ‘② 들어본 적만 있다’22.2%, ‘③ 들어본 적 없다’ 73.4%의 비율이 월등히 많기 때문에 제도에 대한 지속적인 홍보 전략이 절실한 것으로 판단되었다.
3. 장수명주택 가변 성능에 대한 수요
장수명주택이 제공 가능한 가변 성능에 대한 수요 조사는 장수명주택 기술이 적용된 59 m2(24평형) 단위세대 평면 기본형에 대해 앞에서 설정한 3가지 평면유형으로 변경할 의향이 있는지를 질의함으로써 조사하였다.
1) 통합형(A형)에 대한 수요
“거실 또는 침실 벽이 통합 또는 분리가 가능한” 59 m2(24평형) 아파트에서 기본 평면에 대해 변경할 의향이 있는지 질의하였다. “① 전혀 없다, ② 없다, ③ 있다, ④ 상당히 있다” 등 리커트 4점 척도로 응답한 조사에서 ‘변경할 의향이 있다(③+④)’는 응답 비율은 전체의 78.5%이며, ‘변경할 의향이 없다(①+②)’는 21.5%를 차지하였다.
응답자별로 구분하여 보면 <Table 6>과 같이 통합형(A형)으로 ‘변경할 의향이 있다(③+④)’는 응답 비율은 55~59세에서 84.1%로 높았으며, 거주 주택 규모별로는 101 m2 이상이 85.3%로 주택 규모가 클수록 평면 가변에 대한 관심이 많았다. 거주 주택 유형은 단독·다세대주택이 79.3%로 상대적으로 높은 것을 알 수 있다.
Table 6.
Response Characteristics on Transition to Type-A
2) 주방이동형(B형)에 대한 수요
“주방(식당)을 주로 남측에 위치한 전면으로 이동할 수 있는” 59 m2(24평형) 아파트에서 기본 평면에 대해 변경할 의향이 있는지 질문하였다. 그 결과 ‘변경할 의향이 있다(③+④)’는 긍정적인 응답 비율은 전체의 63.1%로서, ‘변경할 의향이 없다(①+②)’는 부정적인 응답 비율 36.9%에 비해 높았다.
응답자별로 구분하여 보면 <Table 7>과 같이 주방이동형으로 ‘변경할 의향이 있다(③+④)’는 응답 비율은 남자가 65.2% 로 여자 60.4% 보다 높지만 4점 리커트 척도로 환산하면 4점 만점 남자 2.7점 여자 2.6의 값으로 성별에 따른 의향은 비슷한 것을 알 수 있다. 연령별로는 40~44세가 67.2%로 높았으며, 주택 규모별로는 86~100 m2 이상이 66.7%로 많았다. 거주 주택 유형은 아파트 62.6%에 비해 기타(오피스텔 등) 81.8%인 경우 상대적으로 높은 것을 알 수 있다.
Table 7.
Response Characteristics on Transition to Type-B
3) 세대구분형(C형)에 대한 수요
“세대 일부 영역을 임대가능한 공간으로 분리할 수 있는” 59 m2(24평형) 아파트에서 기본 평면에 대해 변경할 의향이 있는지 질문하였다. 그 결과 ‘변경할 의향이 있다(③+④)’는 응답 비율은 전체의 47.0%였고, ‘변경할 의향이 없다(①+②)’는 53.0%를 차지하였다.
응답자별로 구분하여 보면 <Table 8>과 같이 세대구분형(C형)으로 ‘변경할 의향이 있다(③+④)’는 여자가 48.8%로 근소하게 높았으며, 연령별로는 50~59세 61.4%, 거주 주택 유형별로는 단독ㆍ다세대주택에 거주하는 응답자 51.0%로 많았다. 거주 주택은 59~60 m2에서 100 m2 이상까지 규모가 클수록 세대구분형(C형)으로 변경할 의향이 있다는 응답 비율이 높은 경향을 보였다. 또한 가구원수 별로는 1~2인 거주하는 응답자가 51.7%로 다소 높았다.
Table 8.
Response Characteristics on Transition to Type-C
4. 장수명주택 구입 의향
방(거실, 화장실, 주방)의 개수, 크기, 위치를 원하는 대로 변경할 수 있는 아파트를 구입할 의향 가격과 연계하여 질의하였다. 이에 대해 ‘② 기존 아파트 가격과 차이가 없다면 구입하겠다’는 응답이 전체의 68.9%로 가장 많았으며, ‘③ 기존 아파트보다 조금 비싸더라도 구입 하겠다’는 응답이 19.9%로 그 뒤를 이었다. ‘① 의향이 전혀 없다’는 응답자도 9.1%를 차지하였고, ‘⑤ 가격에 상관없이 구입하겠다’는 응답자도 1.3%로 일부 있었다.
‘② 기존 아파트 가격과 차이가 없다면 구입하겠다’는 응답 비율은 여자가 74.5%로 남자의 64.5% 보다 높았으며, 연령별로는 40~44세에서 72.3%, 거주 주택 유형 분류에서는 단독ㆍ다세대주택 71.4%, 거주 주택 규모별로는 59~60 m2가 70.5%를 차지하는 등 작은 규모에서 비교적 높은 수치를 보였다.
아울러 ‘⑤ 가격에 상관없이 구입하겠다’는 응답자의 경우 연령대가 55세 이상에서 5.7%로 나타났고, 주택의 규모가 101 m2 이상인 경우에 상대적으로 높은 비율(3.3%)을 보였다<Table 9>.
Table 9.
Response Characteristics on Purchase Intention
IV. 장수명주택 계획과 공급 방향
3장에서는 장수명주택에 대한 일반인의 인지도와 수요, 요구사항을 가변성능을 중심으로 조사하였다. 본 장에서는 3장의 조사 결과를 종합적으로 재정리하고 향후 장수명주택의 계획과 공급 측면에서의 시사점을 정리하였다.
1. 평면유형별 수요 조사결과 종합
유형별 변경 수요는 거실 또는 침실 벽의 통합ㆍ분리가 가능한 유형(A형), 주방을 전면(남측)으로 이동할 수 있는 유형(B형), 주택의 일부를 분리하여 처리(임대)할 수 있는 유형(C형) 순으로 변경 의사가 높은 것으로 나타났다.
<Table 10>과 같이 거실 또는 침실 벽이 통합 또는 분리가 가능한 집에서 ‘변경할 의향이 있다(③+④)’의 응답 비율은 전체의 78.5%로서, 4점 만점에 평균 2.9점으로 나타났다. 주방을 남측으로 이동할 수 있는 집에서 ‘변경할 의향이 있다(③+④)’의 비율은 63.1%, 평균 2.7점이었고, 주택의 일부를 임대할 수 있는 집에서 ‘변경할 의향이 있다(③+④)’의 비율은 47.0%, 평균 2.4점으로 나타났다.
2. 목표 집단 중심의 수요 분석
장수명주택에서 제안하는 가변 성능에 따른 변동은 소유자의 요구사항과 결정을 통해 이루어진다는 점에서, 전체 응답자 가운데 아파트 소유자(총 557명)를 별도의 집단으로 분리하여 수요를 파악하였다. 그 결과, 장수명주택에 대한 인지도의 경우 전체 평균과 큰 차이가 없었으나, 소유자의 연령대가 높을수록 단순 인식 이상의 비율이 높아지는 경향을 보였다. 또한 3개 평면 유형으로의 변환에 있어서도 다른 집단에 대해 유의한 차이는 없이 연령대에 따라 수요가 다소 상승하였다. 다만, 세대분리를 통한 부분임대 가능성을 제안한 C형에 대한 수요를 보면, <Table 11>과 에서와 같이 연령대별로 큰 폭의 차이를 보였다.
Table 11.
Demand for Type-C (Target Group)
| Age | Cases | Choice | Cases | Demand Ratio |
|---|---|---|---|---|
| 35-39 | 169 | ①+② | 112 | 66.3% |
| ③+④ | 57 | 33.7% | ||
| 40-44 | 147 | ①+② | 74 | 50.3% |
| ③+④ | 73 | 49.7% | ||
| 45-49 | 117 | ①+② | 62 | 53.0% |
| ③+④ | 55 | 47.0% | ||
| 50-54 | 75 | ①+② | 40 | 53.3% |
| ③+④ | 35 | 46.7% | ||
| 55-59 | 49 | ①+② | 19 | 38.8% |
| ③+④ | 30 | 61.2% |
연령이 낮은 아파트 소유 응답자는 세대구분형에 대해 전체 평균보다 긍정적인 비율이 작았으나, 55세 이상 연령대로 가면 상반되는 결과를 보였다. 이는 가구원수와 세대구성의 변화에 따른 수요가 반영된 것으로 판단된다.
3. 장수명주택 구입 매력도 분석
구매의향을 가격과 연계하여 살펴본 것은 일반 아파트에 비해 상대적으로 공사비가 높은 것으로 알려진 장수명주택이 성능 측면의 부가적인 장점을 통해 다소 비싼 가격을 어느 정도 상쇄함으로써 소비자를 움직일 수 있는지를 확인하는 것이다. 가격과 관계없이 부정적(9.1%) 또는 긍정적(2.1%) 의사를 가진 응답자 외에, 동일한 가격 또는 큰 차이가 없는 경우 구매의사가 있다는 응답이 90% 가깝다(88.8%)는 것은 최소한의 가격경쟁력을 확보하는 전략과 기술력을 확보하는 것이 필수적임을 보여주는 것이다.
또한 지금까지 장수명주택과 같은 유형의 아파트가 공급된 사례가 많지 않았고, 조리공간을 이동한다거나 추가 세대 입주를 위해 전용부분을 완전히 별도 공간으로 분리하는 변경이 다소 생소한 개념임에도 어느 정도의 수요를 확인할 수 있었음을 고려할 때, 향후 인지도 상승과 보급 확산에 따라 시장에서 추가적인 가치를 인정받고 상대적으로 높은 가격에 거래될 수 있는 여지도 있을 것으로 판단된다.
V. 결 론
본 연구는 장수명주택 실증단지 적용을 위한 일반인의 인식도를 확인하고, 선호도를 통해 수요를 파악하는 것을 목표로 하였다. 이를 위해 장수명주택에 대한 인지도, 가변 성능을 기반으로 하는 평면 변경에 대한 수요, 구입의향 등을 조사하였다. 또한 연령, 거주지 규모와 유형 등을 분석에 반영함으로써 장수명주택 활성화를 위한 기초자료로 제시하고자 하였다. 주요 결과는 다음과 같이 정리할 수 있다.
첫째, 장수명주택의 인지도 부분에서는 ‘들어본 적이 없다’가 79.9%로 나타나 2014년 법 제정 이후 1년이 지난 시점에서도 여전히 수요자들의 인식과 관심은 많이 부족한 것으로 나타났다.
둘째, 기존 아파트 평면에 대해 가변적 계획요소를 포함하는 3개의 평면 유형을 제시하여 변경 의사를 확인하였다. 그 결과 평균 62.8% 정도의 수요에 긍정적인 구입의향을 확인하였다. 평면유형별 변경 의사는 통합형 78.5%, 주방이동형 63.1%, 세대구분형 47.0% 순으로 나타났다. 실증단지 적용을 위하여 59 m2(24평형)의 공간의 한정적인 평면에서 전면에 위치한 거실과 침실 또는 침실사이의 통합이라는 비교적 간편한 구조 변경에 긍정적인 의견을 보였다. 세대 분리를 통한 임대에 대해서는 공간 부족으로 전체 공간을 사용하는 이유로 수요가 상대적으로 적었다. 다만 현재 아파트에 거주중인 높은 연령대의 응답자 중에는 세대 별도 분리와 임대에 대한 비교적 높은 변경 의사를 가진 경우가 많았다. 변경 이유는 임대 수익을 위한 이유가 제일 61.8%로 제일 높았고, 식구가 적거나, 주택 내 독립적인 공간이 필요한 이유가 있다.
셋째, 장수명주택 구입 의향으로 ‘기존 아파트 가격과 차이가 없다면 구입 하겠다’는 응답 비율이 전체의 68.9%로 가장 높았다. 구입의향에 있어서는 동거 가구원 수가 적을수록 기존 아파트 가격과 차이가 없다면 구입하겠다는 응답 비율이 높은 경향을 보였다. 가격에 따라 구매의사결정이 유동적인 응답 비율(88.8%)이 상당히 높아, 비용절감에 대한 전략과 가변성, 수요대응성 등 장수명주택의 장점에 대한 지속적 홍보가 병행되어야 할 것으로 판단된다.
본 연구에서는 장수명주택의 가변 성능에 대한 사용자의 수요를 파악함에 있어, 59 m2(24평형)의 한정적 규모로 가변 유형의 다양성에 있어 한계가 있다. 향후에는 거주자의 다양한 라이프사이클을 세분화하고, 그에 따른 라이프스타일의 변화와 장수명주택에 대한 수요를 연계할 수 있는 심층적인 연구가 필요하다.







