I. 서 론
1. 연구의 배경 및 목적
2. 연구의 방법 및 절차
3. 선행연구 고찰
II. 런던 스퀘어, 6구역 모폴로지의 비교
1. 런던 스퀘어의 주요 특성
2. 런던 스퀘어 사례 선정
3. 런던 스퀘어 모폴로지 분석
4. 양재2동 6구역 모폴로지 분석
5. 비교 분석 및 소결
III. 개방형 블록 집합주택 적용
1. 개방형 블록 집합주택 적용
2. 주거 내부 공간
IV. 개방형 블록 집합주택 안의 타당성 검토
1. 비교를 위한 아파트 단지 안
2. 6구역, 개방형 블록 안, 아파트 단지 안의 비교
V. 결 론
1. 결론
2. 적용 가능성을 위한 조건 및 후속 연구의 필요성
I. 서 론
1. 연구의 배경 및 목적
비좁은 골목 내 차량과 보행자의 혼재, 건물 사이사이 비좁은 틈, 녹지의 부재는 열악한 택지개발지구 주거환경의 현실이다. 도심 저층 주거지 환경 개선에 아파트 단지 외에 뚜렷한 대안이 없는 것도 현실이다. 아파트 단지 주차장의 지하화로 단지 내에 녹지의 정원과 다양한 시설이 제공되었는데, 이는 열악한 도심과는 비교할 수 없는 환경의 차이를 드러낸다. 하지만, 최근 단지 내 놀이터를 이용한 인근 아이들의 사용권에 대한 사건은 단지 내 시설이 아파트 거주민들에게만 국한됨을 인지시키는 계기가 되었다.1) 이러한 관점에서 본다면, 아파트 단지의 경계는 민간과 공공, 소유의 정도에 따른 차별의 경계2)가 아닌지 의문을 갖게 된다. 아파트 단지가 늘어감에 따라 그만큼 도시 내에 공공영역은 축소됨을 의미한다.3) 아파트 단지의 대안으로 은평 뉴타운과 의정부 녹양에 블록형 집합주택의 사례가 있다. 블록형 집합주택은 도시 블록에 주거동이 가로 면을 따라 배치되는 집합주택의 유형으로, 내부의 위요된 중정을 중심으로 공동체 형성에 유리하다(Ha & Lim, 2008). 블록과 가로체계가 직조하듯 엮어져 아파트 단지와 같은 경계 나눔의 폐해를 줄여준다. 이러한 장점에도 불구하고, 주거의 향, 블록 내 중정의 폐쇄성, 소음 등의 문제로 임대아파트에 주로 적용되는 한계를 갖고 있다. 17세기에 조성되기 시작한 런던 스퀘어는 블록형 집합주택의 선례로 볼 수 있는데, 독특한 개방형 블록 공간구조를 갖추고 있다. 중정은 독립된 블록에 형성되어 공공의 보행자에게 개방되고 녹지의 혜택을 제공한다. 이러한 특성으로 런던 스퀘어를 ‘개방형 블록 집합주택’으로 구분하였다. 런던 스퀘어는 300년이 넘는 시간 동안 도시의 급격한 변화를 거치면서 중정의 소유권, 공공성, 접근성, 환경, 녹지 경관 등 첨예한 문제들을 둘러싼 시민운동과 제도적 변화를 경험해왔다. 그 결과 오늘날까지 양질의 주거환경을 제공하며 도시의 공공과 사적 소유의 조화로운 균형을 유지하고 있다. 본 연구는 런던 스퀘어의 개방형 블록 모폴로지를 분석하고 이를 국내 도심의 저층 주거지에 적용하여 개방형 블록 집합주택의 새로운 가능성을 모색하고자 한다.
2. 연구의 방법 및 절차
도시 모폴로지(morphology)4)는 도시의 형, 공간, 구조, 순환체계의 논리이자 시간의 축에 따른 도시의 변화를 연구하는 학문을 의미한다. 역사적으로 도시를 분석하는 도구로 활용되었으며, 이를 기반으로 도시의 비전과 전략을 수립하는 기준이 되기도 한다.5) 런던 스퀘어 모폴로지는 뉴욕, 보스턴, 파리, 뮌헨, 더블린, 에딘버러 등 미국과 유럽의 다양한 도시에 적용되었다. 도지(figure-ground)로 알려진, 놀리(Nolli)의 로마지도가 주요 사례로, 공공공간과 사적 소유의 채워진 형의 관계를 분석하는 데 유용하다.6) 모폴로지는 도시의 형과 공간의 관계 논리이자, 도시설계의 구체적인 전략으로 요약된다.
연구의 전개는 다음 세 가지 틀로 구성된다. 첫째, 개방형 블록 집합주택 적용을 위한 런던 스퀘어 사례의 모폴로지를 분석하고, 이를 국내 적용 대상지인 양재2동 6구역과 비교하여 모폴로지의 차이점을 파악하였다. 둘째, 런던 스퀘어의 모폴로지를 6구역의 조건을 고려하여 적용하고, 셋째, 6구역의 현황, 개방형 블록 집합주택 적용 안, 아파트 단지 안을 블록, 가로체계, 공공/민간, 녹지, 경관, 주거 내/외부 환경의 측면에서 비교하여 장단점을 분석하였다.
3. 선행연구 고찰
Won and Kim(2000)은 블록과 도시, 건축의 관계성에 기반하여 블록의 유형을 분류하였다. 분류 체계에 의하면, 런던 스퀘어는 개방형, 내부 순환형, 복수형에 해당하는 특징을 갖고 있다. Kim(2004)은 모폴로지와 건축설계의 연관성을 고찰하며 모폴로지를 도시 현상과 건축의 새로운 가능성을 연결하는 보편적 해결책을 탐구하는 방법이라 하였다. Ha and Lim(2008)은 블록형 집합주택인 의정부 녹양지구, 은평 뉴타운 거주자를 대상으로 주거성능 평가를 하여 전반적으로 높은 거주자 만족도를 확인하였다. 공공 가로체계와 블록을 갖는 은평 뉴타운의 경우 거주민들이 도시 환경을 높게 평가하였다. Yoo(2010)는 소블록 단위의 집합주거를 계획 및 제도적 측면에서 종합적으로 제시하였다. 환경에 영향을 미치는 주동 유형 및 모폴로지적 제안은 주변과의 조화에 의의가 있었다. 다만 블록의 규모가 작을 경우 중정의 협소한 위요감을 고려할 방안이 필요할 것으로 보인다. Jun(2011)은 단독주택지에서 블록 단위의 저층 고밀형 집합주택을 제안하였다. 필지 간 맞벽 배치를 통해 공간 효율성을 높였으며, 공공성을 지닌 중정형 오픈스페이스의 가능성을 제시하였다. Lawrence(1993)는 스퀘어 형태의 주거 정원의 변화와 그 의미를 문화지리학적 관점에서 분석하였으며, 스퀘어 모폴로지가 역사 및 배경이 다른 도시들; 뉴욕, 보스턴, 파리, 뮌헨, 더블린, 에딘버러에 적용된 사례를 언급하였다. Kim(2023)은 런던 스퀘어의 민간 소유 중정이 공원으로 변모되는 원인을 도시 건축적 변화의 관점에서 분석하였다.
II. 런던 스퀘어, 6구역 모폴로지의 비교
1. 런던 스퀘어의 주요 특성
런던 스퀘어는 테라스하우스7)로 불리는 도시형 주거로 개발8)되었다. 근대 이후 스퀘어 중정의 녹지를 지키려는 시민들의 요구로 스퀘어 보호법9)이 제정되었으며(Sakai, 2011), 이를 통해 스퀘어는 소멸의 위기를 극복하고 오늘날까지 유지될 수 있었다. 다음은 런던 스퀘어의 주요 특성이다.
1) 개방형 블록(Open-Block Type)
중정은 ‘블록 내의 중정’이 아닌 독립된 블록에 위치한다. 중정을 감싼 공공 가로의 켜로 인해 외부로 개방되어 차량, 보행자가 자유롭게 드나들 수 있다. 중정은 시각적, 물리적 개방성을 지니며 거주민에게는 정원을 제공하면서도 공공의 보행자에게는 녹지의 경관을 제공한다. 개방형 블록은 보는 관점에 따라, 블록이 격자 가로로 인해 개방되는 구조로도, 혹은 복수 블록 유형으로도 볼 수 있는데, 이는 스퀘어가 원래 공공 가로의 일부라는 관점10)을 뒷받침한다. 스퀘어 생성 초기에는 가로도 사적 소유였지만, 점차 공공의 소유가 되었다. <Table 1>은 가로의 공공화 과정을 보여준다. 가로를 누가 사용하고 누가 혜택을 보는지, 누가 관리를 하고 누가 소유를 할 것인지의 문제로 도시의 공공 개입의 필요성이 대두된 사례로 볼 수 있다. 사례를 통해 관리, 소유권, 제도가 연동됨을 알 수 있다.
Table 1.
Key Regulations Influencing the Ownership and Management of London’s Road Network
<Figure 1>은 a) 아파트 단지, b) 일반 블록, c) 개방형 블록의 비교 다이어그램이다. 바르셀로나 에이샴플지역과 유사한 b)의 중정은 외부에서 인식되지 않으며 거주민만을 위한 사적 공간이다. a)아파트 단지의 녹지는 개방된 듯 보이지만 거주민 전용 공간이다. c)런던 스퀘어는 중정이 공공에 개방되어 있다. 이러한 개방적 특성은 스퀘어 보호법의 제정으로 이어졌으며, 민간 소유의 정원을 공공의 소유로 공원화11)시키는 놀라운 결과를 이끌기도 하였다.
2) 도시와 통합(Integration with the Urban Fabric)
<Figure 2> 위성 뷰는 다양한 유형의 중정이 독립된 블록으로 존재함을 보여준다. 스퀘어의 주거동, 중정, 가로체계는 주변과 하나의 패턴으로 자연스럽게 통합됨을 보여준다.
3) 중정을 향한 정면성(Frontality towards a Garden)
주거의 정면성은 공간의 성격 규정에 중요한 요소이다. 정면 쪽이 공간의 위계가 높으며 내/외부에서 바라보는/보이는 경관이 중요하다. 입면에도 그 위계가 반영되어 있다.
<Figure 3>의 b)는 주거의 정면이 바깥쪽 가로를 향한 반면 c)런던 스퀘어 사례12)의 정면은 내부 중정을 향하고 있다. 스퀘어 중정은 전체의 중심이 된다. 중정 내 기념비적 조각상을 중심으로 대칭의 어휘를 갖는 사례13)가 있을 정도로, 중정의 위계는 높다. 정면성을 도와주는 또 하나는 뮤(Mew)라 불리는 후면 가로로 물건의 하역, 마구간, 하인의 거주 용도로 사용되었으며, 현재까지도 일부 백오브하우스(BOH)의 기능을 한다. 뮤로 인해 정면은 혼잡함에서 벗어나 상위 위계를 갖게 된다. 반면 a)은평 뉴타운의 주거는 남향을 향하고 있다. 도시의 질서, 경관보다 향을 중시하는 주거 문화에 기인한다. 이러한 배치는 중정 유형에 약점을 가질 수밖에 없다. 일렬로 배치된 판상형 주동들의 사이 공간이 중정으로 인식되기 힘든 이유와 같다. 마주보는 배치는 ‘중심 공간’을, 한 방향 배치는 ‘사이 공간’을 만든다. 조경 또한 정면성에 부합되어야 하는데, 스퀘어 중정 조경이 영국 풍경(landscape) 개념의 축약이라면, 은평 뉴타운의 중정은 하역과 분리수거 등 기능이 혼합되어 어수선한 느낌을 준다. 개방형 블록의 개방성, 공공성, 주변 도시와의 연결과 통합, 중정의 공간적 위계에 따른 주거의 정면 배치, 풍경을 고려한 조경은 런던 스퀘어의 특성으로 요약될 수 있다.
2. 런던 스퀘어 사례 선정
현재 런던에는 약 578개의 스퀘어가 남아 있다.14) 다양한 유형으로 진화하였는데, 직사각형 유형은 긴 면을 활용하여 중정을 면하는 다수의 주거를 수용할 수 있는 장점이 있다. 긴 방향이 남북축일 경우 주거는 동/서향을 바라보게 되어 양호한 빛 환경을 갖게 되는 데, 이는 향을 중요시하는 우리나라 상황에 적합하다. 19세기 초에 조성된 몬타구 스퀘어(Montagu Square)와 브라이언스턴 스퀘어(Bryanston Square)는 런던 중심부 메릴본 지역에 위치하며 좋은 주거환경을 유지하고 있다. 두 개의 중정은 약 1:4 비율의 세장비를 가진 직사각형 유형으로 긴 방향이 남북축을 따르며, 블록을 사이에 두고 두 중정이 인접 배치된 사례이기도 하다. 남북축의 직사각형 유형, 인접 배치를 통한 패턴화 가능성, 주거환경 지속가능성은 개방형 블록 집합주택의 적용에 유리하여 사례로 선정하였다.
3. 런던 스퀘어 모폴로지 분석
<Table 2>는 몬타구 스퀘어와 브라이언스턴 스퀘어의 모폴로지를 분석한 결과다. 도지지도, 중정의 독립형 블록, 가로체계, 가로 단면(W/H), 가로의 구성, 중정의 좌/우면을 따라 배열된 주거동 배치를 보여준다.
1) 도시
∙ 중정의 독립된 블록; 주변 가로체계로 연결된 개방형 블록
∙ 주변 도시 조직과 통합된 패턴
∙ 테라스하우스의 일관된 도시 경관
2) 가로체계
∙ 1H에 가까운 가로 비례
∙ 가로의 보차 분리, 가로수 식재(후면 가로 제외)
∙ BOH 기능의 후면 가로
3) 중정
∙ 중정의 2~3H의 개방된 위요감(양측 가로 포함)
∙ 중정을 향한 주거의 정면성
∙ 울창한 녹지경관, 빛, 자연 환기, 소음저감
∙ 중정 내 녹지 및 놀이터, 체육시설 등 거주민 공유시설
4) 주거 내부 환경
∙ 동/서향의 정면/후면의 양호한 빛 환경
∙ 2~3 H 중정을 정면으로 바라보는 녹지 경관
∙ 수목15)으로 인한 사적 생활 보호, 맞통풍 환기
모폴로지의 분석을 통해 스퀘어 중정이 개방성과 위요감, 공공의 접근성과 사적 생활 보호라는 상반되는 특성이 적절한 균형을 이룸을 확인할 수 있었다. 수도원 중정이 폐쇄적 공동체를 위한 사적 공간이며, 로마의 광장이 완전히 개방된 공간의 특성을 갖는다면, 런던 스퀘어는 중간적 특성을 지닌다.
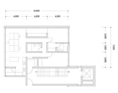
4. 양재2동 6구역 모폴로지 분석
런던 스퀘어 모폴로지의 국내 적용을 위한 대상지는 서울시 서초구 양재2동 6구역(양재2동 280번지 일대, 이하 6구역)이다. 토지구획정리사업으로 조성된 6구역은 노후화로 인해 재개발 필요성이 대두되었으며, 이에 따라 주민조합이 결성되어 모아타운16) 사업을 추진하고 있다. 이러한 배경은 아파트 재개발의 대안으로 새로운 모폴로지의 실험에 적합하였으며, 부지의 형태, 경사, 그리고 스퀘어 사례와 유사한 규모도 선정의 배경이 되었다. 다음과 같이 요약된다.
∙ 열악한 주거환경의 저층 주거 밀집 지역
∙ 주민조합이 결성되어 아파트 재개발 추진 지역
∙ 적용에 적합한 형상, 크기와 평지 조건 (6구역 335 m × 300 m, 런던 스퀘어 320 m × 250 m)
∙ 공원이 중심에 위치하여 런던 스퀘어와 유사
<Table 3>의 6구역 모폴로지 분석 내용은 다음과 같다.
1) 도시
6구역이 수퍼블록이라면 그 내부는 필지와 가로의 조합으로 볼 수 있다. 작은 필지 내의 건물들은 각기 다른 조건에 따라 형성되었으며, 건물 매스, 입면, 용도, 주차 방식이 혼재되어 있다. 좁은 틈이 건물과 건물 사이에 존재한다.
2) 가로체계
동산로19길을 제외한 모든 가로는 보차 분리가 부재하며 0.5~0.9 H로 답답하게 느껴진다. 차량으로 인해 보행자의 안전이 위협받는 상황이다. 가로의 질서와 위계가 빈약하다.
3) 공원
6구역 중심에 작은 공원이 있지만 녹지 비율 1%로 매우 열악한 환경이다. 가로수 또한 동산로19길을 제외하고 부재하다. <Figure 4>을 보면 구역들 중심에 공원이 있지만 접근성이 좋지 않으며, 저층 주거의 경관에 영향을 주지 못한다.
4) 주거환경
전반적으로 좁은 가로 폭과 작은 필지들, 녹지의 부재는 외부뿐 아니라 주거 내부의 환경에 좋지 않은 영향을 주고 있다.
5. 비교 분석 및 소결
<Table 4>는 런던 스퀘어와 6구역의 모폴로지를 비교한 내용이다. 블록 대비 필지의 차이를 볼 수 있다. 주거환경의 큰 차이에도 불구하고 공공의 비율이 6구역 31%, 런던 스퀘어 39%로 크게 차이가 나지 않음은 흥미로운 부분이다. 용적률 또한 6구역이 153.72%, 런던 스퀘어가 172.45%로 유사하였다. 다만 녹지의 비율은 1%와 15%의 큰 차이를 보였다. 세대수는 런던 스퀘어의 주거가 다양하게 분할되어 비교가 어려웠다. 종합해보면 6구역의 열악한 환경은 건물의 노후화가 아닌 도시 모폴로지 - 블록, 필지, 가로체계, W/H, 보차분리, 녹지 - 에 기인함을 확인할 수 있었다.
III. 개방형 블록 집합주택 적용
1. 개방형 블록 집합주택 적용
1) 도시 : 세 개의 중정 배치(<Table 6>의 a), b))
남북방향의 긴 축을 가진 세 개의 중정을 배치하여 동/서향의 정면/후면을 갖는 세대 수를 최대화하였다. 녹지 비율은 기존의 1%에서 14%로 증가되었다.
2) 가로체계 및 개방형 블록
가로체계는 세 개의 중정을 둘러싸는 순환 동선으로 조직되었다. 모든 가로에 보차 분리, 가로수 식재로 보행자 중심의 환경을 만들었다. 주거의 전, 후면이 가로에 접하여 별도의 하역 및 소방도로17)가 필요하지 않다.
3) 세 개의 중정(공원)
중정은 거주민과 공공의 이용이 가능하도록 하였다. 마감을 최소화하고 잔디와 3~4층 높이의 수목을 계획하여 중정 내의 사적 생활 보호, 소음저감 역할을 하도록 하였다. 산책로, 놀이터, 소규모 체육시설 등 공유시설로 활용될 수 있다.
4) 포디엄과 고층의 조합(<Table 6> c))
세 개의 중정에 면한 8층의 주거동은 2.2H의 개방된 위요감을 갖는다. 사업성에 대응하기 위해18) 저층 주거동의 일부를 고층(15층)화하였다. 포디엄 역할의 저층 주거동 위에 고층 주거동을 엇갈리게 배치하여 보행자에게 저층의 위요감을 주며, 주거 내 빛 환경 영향을 저감 할 수 있도록 하였다.
5) 주거 환경
주거동은 복도형을 지양한 코어형으로 사적 생활을 보호하였으며, 정면/후면 진입이 가능하도록 하였다. 이사, 택배, 분리수거 등 BOH 기능을 후면 가로에 할당하여 정면의 위계와 경관을 저해하지 않도록 하였다. 일부 1층 주거(1층: 주거 30%, 공유시설 70%) 전면에는 수목을 식재하여 보행자로부터의 시선이 차단되도록 하였다.
6) 거주민 공유시설(<Table 5>의 f), g))
주거동 저층에 다양한 공유시설19)을 배치하였다. 중정형 배치는 중정을 단위로 한 공동체 형성에 유리하다. 거주민 공동체 프로그램 - 도서실, 모임방, 체육시설, 어린이집, 경로당 등 - 이 운영20)될 수 있도록 하였다.
7) 근린생활시설, 임대주택(<Table 6>의 c))
근린생활시설과 소규모 임대주택은 6구역 경계면에, 카페 등 공유시설은 도시의 가로를 따라 배치하여 일반과 임대 주택, 공공이 적절한 균형을 이루도록 의도하였다. 중정 내에도 카페 등 일부 근린생활시설을 배치하였다.
8) 공유 지하주차장
지하주차장은 중정21)과 6구역 전체를 활용, 거주민과 공공이 공유할 수 있도록 하였다. 주차장은 지하 1층 약 2,800대22)규모로 법적 주차 대수(1,834대)를 만족한다.
Table 2.
London Square Examples (Bryanstone Sq., Montagu Sq.) Analysis.
Table 3.
District 6, Yangjae2-dong Analysisl
Table 4.
Comparative Analysis between London Square Examples (Bryanstone Sq., Montagu Sq.) and District 6, Yangjae2-dong
Table 5.
2+2 Bay Plan & Diagram, Community Space
2. 주거 내부 공간
1) 주거 내부 공간의 전제
도시 모폴로지는 그 보편성으로 인해 다른 배경과 역사를 가진 도시들에 적용이 가능하였다. 그러나 주거 내부 공간은 지역 특성, 주거 문화 등 복합적 요인을 고려할 필요가 있다.
2) 주거 내부 공간
(1) 2+2베이 공간구조
주거 내부 공간은, 런던 테라스하우스를 참조로, 동/서향의 정면/후면을 향한 2+2베이 구조를 갖도록 하였다. <Table 5>의 a), b), c), e)는 2+2베이 전용 공간, 다이어그램, 도시와의 관계를 보여준다. 중정을 향한 정면에 주요 생활 공간인 L+DK와 후면에 두 개의 침실을 두었다. 동/서향 2+2베이는 오전, 오후에 거실과 침실이 양호한 일사량을 받으며, 전면/후면의 온도 차이로 인해 자연환기에 유리하다. 1층 주거의 경우 사적 생활 보호를 위한 차폐조경을 계획하였다.
(2) 도시 vs 남향
주거 내부 공간은 향과 도시의 질서(가로체계, 블록, 중정)의 균형을 전제로 조성되었다. 국내 아파트의 4베이 표준평면 (<Table 5> d))과 비교된다. 4베이는 최상의 빛 환경을 갖지만, 블록과 가로체계의 유형에는 적용에 한계를 갖는다.
IV. 개방형 블록 집합주택 안의 타당성 검토
1. 비교를 위한 아파트 단지 안
6구역 현황과 개방형 블록 집합주택과의 비교를 위해 아파트 단지 안을 가정하였다. 아파트 주동은 4세대 조합, 4베이 59 m2형23)을 적용하였다. 서울시 조례 기준 용적률 200%, 층수 15~29층, 1,500세대, 연면적 195,425 m2이다.
2. 6구역, 개방형 블록 안, 아파트 단지 안의 비교
<Table 7>의 a), b), c)는 세 개의 안을 비교한 내용이다.
1) 도시
도지지도 비교는 필지 조직인 기존 현황, 중정을 중심으로 배치된 개방형 블록 안, 하나의 부지에 주거동이 배치된 아파트 단지 안의 확연한 차이를 보여준다. 공공의 비율은 기존 31%, 개방형 블록 안 75%, 아파트 단지 안 7%를 보여준다. 개방형 블록 안의 경우 중정으로 인해 공공의 비중이 높은 것을 알 수 있다. 기존 현황과 개방형 블록 안이 모폴로지의 성능 차이라면, 아파트 단지 안은 공공의 부재로 볼 수 있다. 개방형 블록 안은 중정을 중심으로 주거동이 배치되고, 순환형 공공 가로체계가 골목길을 대체함으로 주거환경을 향상시켰다.
2) 녹지
녹지 비율은 기존 1%, 개방형 블록 안 14%, 아파트 단지 안 40%로 단지 안이 높은 비율이었지만, 공공의 접근이 제한되는 문제가 있었다. 녹지 경관을 향유할 수 있는 8층24)이하 저층 세대의 비율은 개방형 블록 안이 1,368세대(85%)로 아파트 단지 안의 608세대(41%)보다 높았다. 정원의 이용에도 아파트 단지의 경우 고층의 시선으로 이용에 한계25)를 가졌다.
Table 6.
Open-Block Type Proposal: Morphology, Master Plan and Views
Table 7.
Comparative Analysis: Existing, Open Block Type Proposal and Apartment Complex
3) 건폐율, 용적률, 세대수, 사업성
전체 부지 면적을 기준으로 한 건폐율(BCR)은 36.96%, 31.97%, 11.02%로 나타났다.
블록과 가로체계를 따른 저층 배치는 보행자에게 위요감과 접근성을 제공하는 반면, 아파트 단지는 고층으로 인해 부지 활용에 높은 효율성을 보였다. 서울시 조례 용적률 200%를 기준으로 개방형 블록 안과 아파트 단지안 모두 20%의 밀도가 증가 되었다. 용적률 인센티브를 가정한다면 두 가지 안 모두 경제성26)이 있을 것으로 예측된다. 개방형 블록 안은 세 개의 중정(공원), 가로체계, 도시 인프라, 주차장 일부를 공공 투자에 할당함으로 사업비를 절감할 수 있을 것으로 기대된다. 관리비 또한 공공과 분담할 수 있을 것이다. 세대수는 기존 1,218세대에서 개방형 블록 안 1,608세대, 아파트 단지 안 1,500세대(전용면적 59m²)로 각각 132%, 123% 증가하였다. 기존 주거의 평균 전용면적은 약 44m²로, 소형 임대주거가 주를 이룬다. 개방형 블록안은 29m² 규모의 소형 임대주거 609세대(39%)와 59m² 일반 주거 999세대(61%)를 배치하여 적절한 균형을 유지하였다. 또한 8층 이하 저층 비율을 비교하면 개방형 블록 안은 1,368세대(85%), 아파트 단지 안은 608세대(41%)로, 개방형 블록 안이 도시, 녹지경관, 보행, 주거 환경, 사업성 측면에서도 경쟁력이 있음을 확인할 수 있다.
4) 주거 내부 환경의 적절한 균형
개방형 블록 안과 아파트 단지 안은 기존의 열악한 주거 내부 환경을 크게 개선하였다. 모든 생활공간이 전면을 향하는 아파트 단지 안의 4베이 구조는 향을 중시하는 주거 문화를 고려할 때 최상의 빛 환경으로 평가된다. 그러나 가족 개념의 변화와 낮 시간의 활동이 대부분 외부에서 이루어지는 생활 패턴을 감안할 때, 거실과 세 개의 방 모든 베이를 남향으로 배치하는 것이 적절한지에 대한 의문이 제기된다. 한정된 자원을 공유하는 도시에서 공공과 민간의 조화가 필수임을 전제할 때, 최종 목표는 주거 환경과 도시 질서의 적절한 균형일 것이다. 아파트 단지 내 사적 영역의 지나친 고품질은 이웃 권익의 희생을 전제로만 가능하기 때문이다.
5) 거주민 공유시설, 근린생활시설
개방형 블록 안의 공유시설은 아파트 단지 안 대비 세 배 이상의 규모를 계획하였으며, 가로체계를 따라 저층에 배치하여 활용도를 높이고, 중정을 중심으로 공동체 단위를 형성하도록 하였다.
V. 결 론
1. 결론
본 연구는 택지개발지구의 열악한 주거환경을 개선하기 위해 아파트 단지의 대안으로서 개방형 블록 집합주택의 적용 가능성을 검토하였다.
런던 스퀘어의 개방형 블록 구조는 중정을 독립된 블록에 배치함으로써 중정을 가로체계와 유기적으로 연결시킨다. 또한 중정에 공공의 접근을 유도하여 도시와 통합되는 특성을 갖고 있다. 런던의 몬타구 스퀘어와 브라이언스턴 스퀘어 사례를 서울 양재2동 6구역과 비교하여, 주거환경을 결정짓는 도시 모폴로지 - 필지/블록, 가로체계, 공공/민간, 녹지 - 의 차이를 분석하였다. 6구역과 런던 스퀘어 사례의 공공과 민간 영역의 비율 차이는 8%에 불과하여 환경의 차이는 모폴로지의 질적 문제에 기인함을 확인하였다. 분석을 기반으로 6구역에 개방형 블록 안을 적용하였으며, 아파트 단지 안과 비교하여 적용 타당성을 검토하였다.
개방형 블록 안은 기존의 좁은 가로와 필지들을 독립된 블록의 중정과 순환형 가로체계로 재구성하여 주거환경을 크게 개선하였다. 반면 아파트 단지 안은 부지 전체를 사유화하여 공공 영역이 사라지는 결과를 만들었다. 아파트 단지 안의 녹지 비율은 40%로 높았지만, 공공 접근이 제한되고 고층의 시선으로 인해 정원의 사용이 제한적이었다. 반면, 개방형 블록 안은 14%의 녹지 비율을 확보하면서도 경관을 누릴 수 있는 저층 세대 비율이 높았다. 건폐율, 용적률, 세대수의 측면에서 개방형 블록 안은 아파트 단지 안과 비교해 경쟁력 있는 수치를 보이며, 공공의 개입과 투자를 유도하여 사업비와 관리비 절감이 예상되었다. 또한, 개방형 블록 안은 소형 임대주택(39%)과 일반 주택(61%) 간의 균형을 맞추었으며, 저층의 포디엄 매스는 보행자 환경과 도시경관에서 장점이 있었다. 주거 내부 환경 측면에서 개방형 블록 안의 2+2 베이는 충분한 일조량과 맞통풍을 활용한 자연 환기를 예상할 수 있었다. 아파트 단지 안의 4 베이는 남향을 중시하는 주거 문화에서 선호되지만, 최근 가족 구성의 변화와 낮 시간의 외부 활동을 감안할 때, 4개의 생활 공간이 남향을 향하는 구조가 자칫 과도한 품질이 될 수 있음을 질문하게 되었다. 또한 개방형 블록 안은 중정을 중심으로 공유시설을 배치하여 주거 공동체의 유대감을 강화하는 조건을 만들었다.
결론적으로, 개방형 블록 안은 도시의 공공성과 질서를 유지하면서 기존 현황 대비 녹지, 경관, 저층의 주거유형 측면에서향상된 주거환경을 제공하였다. 아파트 단지 안은 고품질의 주거 내부 환경과 녹지에도 불구하고 공공의 소멸로 인한 도시의 질서, 가로체계, 단지 경계 밖 이웃과 단절의 위험이 있었다.
6구역은 1980년대 택지개발지구로 조성되었다. 만약 50년 된 도시가 노후화로 재개발되어야 한다면, 300년을 넘긴 런던의 스퀘어는 오래전에 사라졌어야 할 것이다. 런던 스퀘어의 지속가능한 주거환경은 그 모폴로지가 여전히 유효함을 증명한다. 또한, 뉴욕, 보스턴, 파리, 뮌헨, 더블린, 에딘버러에서 유사한 런던 스퀘어 적용 사례를 찾아볼 수 있는데, 이는 스퀘어 모폴로지가 특정 지역에 국한된 개념이 아니라 보편적인 도시 주거 해법을 제공했기 때문이다. 이러한 사례들은 6구역에 런던 스퀘어의 개방형 블록 안의 적용 가능성을 높인다.
2. 적용 가능성을 위한 조건 및 후속 연구의 필요성
1) 관련 제도 및 주민참여 과정
서울시의 모아타운은 ‘소규모주택정비 관리지역’ 지정을 통해, 저층 주거지 개선에 있어 가로 중심의 디자인, 공공 주차장, 공원, 등 지역 단위의 정비기반시설 및 공동이용시설을 포함한 개선을 목표로 한다(Seoul Metropolitan Government, 2025). 모아타운의 취지는 아파트 단지보다 오히려 블록형 집합주택 모폴로지에 가까움을 알 수 있다. 이의 실현 가능성을 높이려면, 마스터플랜이 포함되어야 한다. 건폐율, 용적율 등 숫자와 가이드라인 예시 차원이 아닌, 블록과 가로체계의 모폴로지를 가진 3차원 건물 매스가 구체적으로 계획되어야 한다. 사례로 독일의 B-Plan, 런던의 AAP(Area Action Plan)제도가 있는데, 런던 에일스베리(Aylesbury Area) AAP27) 사례의 경우에도 마스터플랜을 제시하고 있다. 제도의 마스터플랜은 후에 설계단계에서 몇 번의 재조정을 거치며 인허가를 받게 된다. 또 하나의 중요한 점은 합의 과정에 있다. 에일스베리 AAP 마스터플랜은 5년 동안 지역주민과 공공의 의견 수렴을 위해 공청회, 세미나, 전시회 등 총 6단계에 걸친 사회적 합의의 결과였다. AAP의 주체는 발주처(지자체)뿐 아니라 주민들과 공공의 합의체가 된다(Kim, 2022. 4.) 제도와 마스터플랜 조성, 주민 의견 수렴 등 합의 과정에 대한 후속 연구가 필요하다.
2) 거주자 조사
예비 거주자는 개방형 블록의 가치를 인지하기 어려우므로 알림과 교육이 필요하고, 실현된 후에는 거주자 만족도 평가가 필요할 것이다. 2+2 베이 공간 경험, 중정 활용, 공동체 운영, 공유시설, 근린생활시설 등 다양한 정보 분석이 요구된다.
3) 일조량, 자연환기 등 환경 시뮬레이션
남향 선호는 오랜 주거 경험의 결과로 만들어진 주거 문화에 기반하여 쉽게 변하지 않는다.
한편 건축 외피 성능의 향상과 가족 개념, 생활 패턴 변화, 도시와 이웃을 생각하는 성숙한 도시문화의 요구에 따라 주거 문화의 변화가 필요한 시점이라 생각된다. 개방형 블록 안의 동/서향 2+2베이 공간의 일조 및 환기 성능을 정량화하고, 기존 주거 형태와 비교한 시뮬레이션 분석은 예비 거주자의 선택과 사업의 실현에 도움을 줄 것으로 기대된다.
4) 공공의 투자 및 사업성 검토
Park(2013)은 아파트 단지 개발이 공원 녹지와 편의시설을 개인이 사적으로 구매하는 것과 같다고 한다. 반면, 개방형 블록 안의 중정과 가로체계는 공공의 영역임으로 사업비 및 관리 비용 또한 공공 투자의 몫이 된다, 6구역의 전면 재개발을 가정할 때, 동일한 밀도에서 공공 투자 지원이 이루어진다면 개방형 블록 안이 경제성에서 유리할 것이다. 사업의 주체는 민간이 아닌, 민간과 공공의 합의체가 될 것이다. 한국의 GDP 수준에 걸맞은 공공 투자가 필요하다. 후속 연구를 통해 사업성과 공공의 균형을 모색할 필요가 있다.







































































