I. 서 론
인구의 고령화는 세계적으로 시급한 관심사가 되고 있으며, 한국의 경우 노인인구가 2015년 기준 전체인구의 13.2%를 차지하여 고령사회1)에 임박했으며, 2026년에는 20%를 넘는 초고령사회로 진입할 것으로 예상되고 있다(Statistics Korea, 2016). 이처럼 세계적으로 전례 없는 초고속 고령화 현상이 한국에서 일어나고 있음에도 노인부양, 의료, 복지 등의 문제를 신속하게 대응하지 못함으로써 개인적·사회적 우려가 높아지고 있는 실정이다.
증가하는 고령인구와 함께 대두되는 중요한 문제의 하나는 노년기의 삶을 어디에서 보낼 것인지의 거주 문제에 관한 것이다(Cho, 2013). 선진국에서는 오래도록 고령화에 대응하기 위하여 노인을 대상으로 한 계획주거(Planned Housing)2)를 발전시켜왔다. 그러나 노인들만 모여 사는 계획주거는 예산상의 한계와 궁극적으로는 노인들의 삶의 질에 부정적 영향을 미치게 되었다. 근래에는 이러한 선행경험을 바탕으로 거주하고 있는 환경에서 지속적인 생활을 하는 Aging In Place3)모델로 전환되고 있다. 이러한 전환은 고령화에 대비한 주거의 개발공급에 대해서는 지극히 초보적인 단계에 있어, 미래방향을 찾아야하는 한국의 발전을 위해 상당히 함축적인 의미를 지니고 있다.
한국의 노인가구형태는 자녀와 함께 살던 이전과는 달리, 노년기의 1인가구와 부부가구가 증가하고 있으며(Bae, 2000), 연령이 높고, 소득수준이 낮은 1인 가구들의 고립이나 건강문제에 대응하는 다양한 사회적 지원 방안이 요구되고 있다(Oh, 2017). 그러나 이들을 위한 새로운 주택유형을 공급하고 지원하는 노하우는 부족한 실정이다(Economist, 2017). 또한 주택유형도 극히 한정되어 있어 다양한 주택유형 개발의 필요성이 요구된다. 그 동안 한국의 주택은 아파트 위주의 공급이 주를 이룸에 따라, 익명성(Choi & Chae, 2007)을 강조하는 형태로 발전되어 왔다. 이는 공동체를 지향하는 성향이 낮을 수 있음을 의미하며, 나아가 복지사각지대에 놓일 가능성이 크다는 것을 보여준다.
앞으로 다가올 초고령사회에 대응하기 위해서는 기존의 노인주택 유형에 제한되지 않고, 새로운 노인주택유형을 개발하고 발전시키기 위한 논의가 보다 활발히 이루어져야 할 시점에 있다. 현재 우리가 알고 있는 주택유형은 주택의 속성을 추출하여 분류한 결과이다. 그러나 한 주택에 내재된 속성들은 기준이 되는 특성에 따라 다양하게 분류가 될 수 있으며, 속성들의 구성이 바뀌게 되면 새로운 분류체계가 생성되고 진화, 발전해나간다. 따라서 고령화에 대응하는 주택사례가 시행착오를 겪으며 발전과 함께 지속가능하게 생존하고 있다면, 이러한 주택의 속성을 분석하는 것은 새로운 주택유형의 정체성을 밝히고 미래를 위한 주택유형개발과 계획에 도움이 된다.
일본은 세계에서 가장 먼저 인구고령화(Population Aging)로 위기를 맞았다. 이에 따라 1990년대 이후 본격적으로 노인 복지시설의 확보를 위한 노력을 하였으며, 그것에 일환으로 개호 및 의료 서비스가 가능한 맞춤형 고령자주택이 등장하였다. 이러한 측면에서 일본이 대처해온 선행경험들은 고령화현상을 극복하기 위해 어떻게 주거를 대비해야 하는가에 대한 통찰력을 제공할 수 있고, 미래방향설정에 시사하는 바가 적지 않다. 즉, 일본의 선행경험을 노인주택 유형의 변화발전 성과로 간주하여, 일본의 개호보험이 시작된 이후 설립하여 현재까지 잘 지속되고 있는 주택의 사례들을 면밀히 분석할 필요가 있다.
이러한 맥락에서 본 연구의 목적은 공동체지향 주택사례인 보찌보찌나가야(ぼちぼち長屋)4)가 지닌 고유한 특성을 밝히고자 하는 것이다. 이때의 고유성이란 최근까지 오랜 기간 발전되어온 노인주택 유형의 관점에서 대상주택이 지닌 차별화된 특성이다. 본 연구 사례인 보찌보찌나가야에 내재되어 있는 특성을 추출·분석하여 노인주택 유형의 관점에서 해석함으로써 미래 노인주택 발전 방향을 제시해보고자 하였다.
본 연구의 가정은 현재까지 지속되어온 노인주택은 우연이 아니라 해당 주택을 지속되게 하는 어떠한 속성을 지니고 있다는 것이다. 이에 따라 본 연구의 의의는 어떠한 속성이 이를 지속 가능하게 만들었는가를 밝힘으로써 그 속성으로 인하여 주택유형의 분류가 달라지고 있다는 것을 실증하는 사례로서 가치가 있을 것이다. 또한 한국이 앞으로 주택 개발에서 중시해야 하는 지혜를 얻을 수 있을 것이라 기대해본다.
II. 이론적 배경
1. 범주화 이론과 노인주택 유형
노인주택을 비롯한 하나의 대상 또는 정보를 대할 때, 우리는 일정한 기준에 의해 분류, 저장하여 이를 기억하고 이해한다. 이때 정보와 경험을 단순한 분류가 아닌 어떤 속성을 기준으로 구분하는 것은 범주이고, 이러한 조치는 범주화이다(Estes, 1994). 범주화는 우리가 과거의 경험을 현재의 사건들에 접목시킬 수 있게 하고, 지각할 수 없는 속성에 대해서도 판단할 수 있게 하는 기능이 있다(Shin, 2000). 범주가 분류된 사례의 본보기들의 집합이라면, 개념은 그 본보기들을 규정하는 규칙·정의·속성 등에 관한 심적표상(Mental representation)이다(Shin, 2000). 범주가 어떤 속성에 의해 분류된 사례를 강조하는 용어라면, 개념은 그 속성 자체를 강조하는 용어이다. 따라서 개념과 범주는 동일한 대상에 대해서 상호교환적인 의미로 사용되는데, 사례의 입장에서 보면 범주이고, 속성의 입장에서 보면 개념이 된다(Jo, 2003). 사람들은 수많은 개념을 기준으로 새로운 대상을 분류하고, 그 대상에 대한 추론을 만든다(Stenberg, 1994, as cited in Kim et al., 1997). 이러한 범주화이론을 바탕으로 노인주택 유형의 분류를 이해하면, 유형의 정의를 통해 범주화하거나, 원형과의 속성 공유 관점에서 기존 대표주택과 유사성으로 구분할 수 있다. 그러나 새로운 노인주택 개발에 있어 기존의 정의와 원형에 머물러 접근하는 것에는 한계가 있을 수 있다. 미래 노인주택 모색에 있어, 지금까지 법규나 학문적으로 구축된 주택 유형의 범주에 머무르는 것이 아니라 개념의 융합을 통해 새롭게 변화하고 진화될 수 있는 유형을 발전시킬 시점에 있다.
2. 주택유형
본 연구는 유형학적 관점에서 논문을 조명하기 위한 것으로 노인이 거주할 수 있는 환경인 일반주택과 계획주택의 두 부분으로 구별하여 고찰하였다. 노인주택의 유형은 국내외의 유형을 언급하되 본 연구가 일본의 사례를 분석하는 것이므로, 일본 고령자주택의 현황과 진화를 포함하고자 하였다. 노인계획주거의 경우 다양한 수준의 서비스를 제공하는 노인주택들로 분화·발전해왔음을 보여 주고자 하였고, 이 과정에서 서비스제공시설이 개인의 상황에 융통성 있게 대응하며 분화해 왔음을 살펴보고자 하였다.
1) 일반 주택의 유형분류
일본의 주택은 건축기준법, 통계적 분류 체계로 구분될 수 있다. 1950년에 제정된 건축기준법5) 분류체계는 건축기준법의 용도분류를 기본으로 하여 건축물의 기능에 의한 분류를 강조하고 주거전용과 겸용주택으로 구분하고 있다. 이를 정리하면 <Table 1>6)과 같다.
Table 1.
Classification of Japanese Housing
| Building standards law | Use of housing | Exclusive residential | |
|---|---|---|---|
| Combination housing | |||
| Statistical classification | Total number of dwelling and households | ||
| Private households by type of residence | |||
| Congregated type | Detached house | ||
| Multiple dwelling house7) | Apartment | ||
| Nagaya | |||
| Other | |||
| Building structure | |||
| Tenure of dwelling | Private households | ||
| Owned houses | |||
| Rented house by Prefecture and municipal corporation | |||
| Rented house by urban renaissance | |||
| Agency and housing corporations | |||
| Rented house by private company | |||
| Issued houses | |||
| Rented rooms | |||
통계적 분류체계는 1948년부터 5년마다 실시하는 총무성통계국의 ‘주택토지통계조사’를 토대로, 분석 목적에 따라 주택을 종별과 형식으로 분류하고 있다. 물리적인 주택유형은 단독주택과 집합주택으로 구분하고, 후자를 다시 아파트와 나가야로 구분하고 있다. 나가야(長屋)는 아파트와 달리 소규모공동체 주택을 지칭한다. 우리나라의 주택은 학문적, 법률적 분류 체계로 구분될 수 있고, 세부기준에 따라 다양하게 범주화된다. 이를 정리하면 <Table 2>와 같다.
Table 2.
Classification of Korean Housing
2) 노인주택의 유형분류
노인주택은 노화에서 오는 기능쇠퇴 현상으로 인하여 이를 지원하기 위해 일반주택과는 다르게 발전되어 왔다. 노인주택이 앞서 발달한 선진국에서는 분류기준을 정하고 범주화하여 노인주택유형들을 이해하려한 시도들을 볼 수 있다. 노인주택의 유형을 분류하거나 소개하는 국내외 선행문헌을 소개하여 그 다양성을 들여다보면 <Table 3>과 같다. Green(1975)은 노인의 자립정도와 노인에게 제공되는 서비스에 따라 4개의 단계로 노인주택을 구분하였으며, Blank(1988)는 일반주택에서 커뮤니티 기반 주택의 노인촌 에 이르는 3가지 유형으로 노인주택을 파악하고, 일반주택에 노인이 거주하는 경우와 노인을 위해 계획된 노인계획주택으로 크게 구분하였다.
Table 3.
Elderly Housing Classification and Its Criteria
| Researcher | year | Category |
|---|---|---|
| Green | 1975 | · Type1 Independent elderly housing · Type2 Independent elderly/family · Type3 Dependent elderly housing · Type4 Independent and Dependent housing |
| Blank | 1988 | · General house (A single family house, Third generation home, Next-Doors Type house) · General Apartment (Senior retirement apartment) · Retirement community (A single family house or Apartment) |
| Lee, Y. S. Oh, C. O. | 1993 | · Unplanned housing (General house) · Half planned housing (Accessory housing8) · Planned housing (Senior Housing, Nursing Homes) |
| Lee, Y. S. | 1998 | · Congregate Housing · Sheltered Housing · Nursing Homes |
| Housing Bureau, MLIT. Japan | 2010 | · Low income-need support (Silver Housing) · Middle income-need support (Home-based service for rental housing for Elderly) · Hight income-need support(Fee-based homes for the elderly) · Low income-need care (Long-Term Care Insurance in three facilities, Group homes) · Middle income-need care (Long-Term Care Insurance in three facilities) · Hight income-need care (Fee-based homes for the elderly) · Residential Care Facilities for the Elderly (Longterm care welfare facilities for the elderly) · House for the Elderly (Home-based service for Elderly house, Silver Housing) |
국내에서는 선행연구를 바탕으로 Lee et al.(2007)가 다양한 노인주택의 유형들을 간단한 분류체계로 정리를 시도한 바 있다. 즉, 노인주택을 계획정도와 집합정도를 기준으로 주거유형을 이해할 수 있는 새로운 분류체계를 <Table 4>과 같이 제안하였다.
Table 4.
Lee’s Classification of Elderly Housing
이 분류에 따르면, 집합정도에 따라 단독주택, 공유주택, 집합주택으로 구분되고, 단독주택은 신체적 건강상의 자립을 의미하는 것이 아닌 단독형 건물에 노인이 독립적으로 사는 주거유형을 의미한다. 공유주택은 소규모의 공동사용주택으로 다가구·다세대 주택의 형태를 포함하며, 집합주택은 단위주거들이 모여 집합적인 개념이 강하게 나타나는 주택유형이다. 또한 계획정도에 따르면, 불특정 다수를 대상으로 설계되었지만 노인이 거주하고 있는 비계획주거와 노인을 위해 특별히 설계된 계획주거로 구분하였다(Lee et al., 2007).
일본 MLIT(2010)에서는 노인주택을 이용자의 소득과 자립 정도에 따라 주거유형을 분류하였는데, 이것은 주거공급의 주요 기준을 주택의 물리적 특성이 아닌 거주자의 상황으로 설정한 것이라고 할 수 있다. 한편, 최근 캐나다의 공공기관에서 정리한 분류체계를 노인주택의 발전방향의 특성이 보이도록 추가하여 종합 소개하면 <Figure 1>과 같다. 이는 주택과 시설을 구분하는 수평축과 주거와 케어서비스를 구분한 수직축을 중심으로 정리한 것으로서, 주택과 시설의 중간에 있는 여러 지원형 주택들이 시설로부터 분화 · 발전해 온 것임을 보여준다(Alberta Health Services, 2014).
이러한 국내외 문헌을 바탕으로 종합하면, 노인주택은 노인의 자립 정도와 소득 등 개인적 상황과 노인거주자를 대상으로 계획되었는지의 주택 계획적 측면, 단독에서 공유에 이르는 거주자의 집합정도, 그리고 제공되는 서비스 등의 기준으로 유형화되고 있다.
3) 일본 고령자주택의 현황과 진화
일본의 경우 노인이 거주하고 있는 환경은 시설과 주택으로 나누어져 있다. 이들 고령자주택은 앞서 제시한 노인을 특별히 배려한 계획주거를 의미한다. 그러나 실제 많은 노인들은 이러한 계획주거가 아닌 다양한 주택유형에서 살아가고 있으며, 계획주택만을 살펴보면 <Table 5>과 같다.
Table 5.
Facility & Home-based Service for the Elderly
Source. Sato (2014)
고령자시설과 고령자주택은 노인복지법에서 규정하는 특별요양노인홈, 유료노인홈 외에, 개호보험법이 규정하는 개호노인보건시설 등의「고령자의 거주 안정 확보에 관한 법률」에 규정된 서비스고령자주택이 있으며, 이들을 소득과 개호필요 여부에 따라 정리한 표를 소개하면 <Figure 2>와 같다.
고령자시설과 고령자주택의 입소 및 입주에 있어서 개호노인복지시설, 개호노인홈 및 인지증고령자그룹홈의 경우 지자체가 필요에 따라 입소조치를 정하여 시설에 입소를 위탁하도록 하고 있다. 이 경우를 제외하면 입소자가 직접 신청하여 시설과 계약한다. 개호보험법이 규정하는 개호보험10)은 복지시설, 보건시설, 의료시설로 구성된다.
일본의 고령자주택의 경우 일반적인 고령자시설과는 달리 노멀라이제이션11)의 개념으로 특별히 노인주택으로 계획되지는 않았으나, 향후 고령자의 노화를 고려하여 계획되어지는 주택을 의미한다. 이러한 주택형식을 가진 서비스고령자주택12)은 일반주택으로 현재 살고 있는 주택에서 서비스와 케어를 받고자 하는 고령자의 요구가 높아짐에 따라 반영된 것이다. 또한 자택에서 사업자를 통해 필요한 개호서비스를 선택적으로 계약할 수 있으며 입주조건은 60세 이상의 노인 및「고령자 주거법」에 적용되는 노인이다.
일본의 개호시설유형 기준은 기본적으로 사회취약계층인 무주택 노인의 개호서비스의 필요 상태와 소득수준에 따라 체계화되어 왔다. 그러나 사회복지법을 기본으로 하여 지방단체가 운영하는 특별요양노인홈의 경우, 저렴한 비용과 까다롭지 않은 입소조건으로 입소희망 비율이 높았으나 2015년 4월 이후 자립생활이 어려운 치매, 정신장애자의 입소조건이 엄격히 규정됨에 따라 입소를 희망하는 수가 급격히 감소하였다(Mainichi digital newspaper, 2017). 한편 민간 운영의 개호보험이 포함된 유료노인홈의 경우, 시설설비는 양호하나 비용이 높은 경우13)가 빈번하다. 이러한 상황은 고령화문제로 인한 극심한 문제에 처해있는 일본의 경우에도 노인이 선택할 수 있는 다양한 노인주택 공급이 어려운 현실에 처해있다고 볼 수 있다.
3. 노인주택 유형에 관한 선행연구
노인 환경에 관한 연구는 1970년대 후반에 시작되었으며, 1990년대에 이르러 에이징 인 플레이스(aging in place) 개념이 국내에 알려지면서 노인을 위한 일반 주거 유형에 관한 연구들이 진행되었다(Lee et al., 2007). 이후 노인주택 유형에 관한 연구는 노년기에 선호되는 주택유형이나 선호유형에 영향을 주는 요인들을 주로 다루어왔다. 노인을 위한 주거유형을 다룬 연구로, Lee(1991)는 지역사회 통합형의 재가복지 모형인 3대가 함께 동거하는 주택유형을 개발하고, 이를 한국의 미래주거모델로 제시한 바 있다. 또한, Jin and Lee(1995)의 연구에서는 노년 가구가 가장 선호하는 주택유형이 5층 이하의 저층 아파트와 단독주택으로 나타나기도 하였다. 2000년 이후 노인전용 주거시설에 대한 연구들이 나타났는데, Kwon(2005)은 노후의 주거 대안으로 실버타운(silver town)에 대한 높은 선호도를 확인하였으며, 이러한 유형은 일상생활의 자립이 가능한 주거와 함께 취미, 운동, 문화 서비스 등이 지원되는 시설이라 할 수 있다. Ji and Lim(2009)의 연구에서는 고령자가 선호하는 실버타운의 속성으로 도시근교의 공동주택유형, 그리고 임대유형이 도출되었다.
한편, 노년기 주택유형 선택에 영향을 주는 요인에 대하여, Choi and Chae(2007)은 집의 소유형태, 소득, 그리고 자녀와 동거여부 요인이 영향을 준다고 하였다. Kang(2012)은 실버타운의 선호에 영향을 미치는 특성으로 주택의 입지성, 경제성, 안정성을 도출하고, 여기에 서비스 측면을 추가하여 의료서비스가 영향을 미친다고 하였으며, Ko and Choi(2014)의 연구에서도 노년가구의 주거에서 의료시설로의 접근성이 더욱 중요해질 것으로 예상되었다. 세대나 지역에 따라 노인이 구분되어 연구되기도 하였는데, Youn and Lee(2013)는 베이비붐 세대를 대상으로 노후 상황에 따라 선호하는 주거유형이 다양하게 나타난다는 결과를 얻었으며, Lee and Lee(2015)의 연구에서는 농촌과 도시노인에 따라 선호하는 주택구성요소와 서비스가 다르게 나타났다. 그러나 노인주택 유형에 관한 대부분의 선행 연구들은 국내에 이미 존재해있는 노인주택 유형을 바탕으로 하고 있으며, 노후에 필요한 서비스는 주로 시설에 한정되어 연구되고 있어 일반주택과의 연계는 부족한 실정이다.
III. 연구방법
1. 연구대상
본 연구의 대상은 일본 아이치현 나고야의 교외지역에 호도호도요코츠라는 마을안에 위치한 다세대공동주택인 보찌보찌나가야(ぼちぼち長屋)이다<Figure 3>.
호도호도요코쵸라고 불리는 마을의 단지내에는 주민들의 지역교류공간인 데이서비스센터14) 건축물도 함께 포함되어 있다. 이 호도호도요코쵸의 운영은 크게 두 종류로 나뉜다. 하나는 다세대주택, 커뮤니티센터운영주체인 자츠보쿠하야시 모노가타리(雜木林土勿語)법인, 다른 하나는 헬퍼스테이션지원센터와 데이서비스를 운영하고 있는 사회복지법인인 아이치타이요우노모리(愛知たいようの杜)법인이다. 즉, 물리적인 주택을 운영관리하고 있는 측과 서비스를 운영하고 있는 두 주체가 동반 관계로 이 마을을 운영하고 있다. 토지소유자가 주택을 개발하고, 주택의 관리는 NPO법인, 서비스는 사회복지법인과 각각 계약하여 소유자는 양측으로부터 토지와 건물 사용에 대한 임대료를 받는다. 그리고 주택과 커뮤니티 센터를 운영 관리하는 법인은 보찌보찌나가야의 거주자와 계약하여 임대료를 받는다. 그러므로 이런 주택을 관리 운영하는 법인과 케어서비스를 관리 운영하는 법인 간의 동반 관계가 아주 중요하다고 보인다. 본 대상은 다행히도 두 주체가 제공하는 역할은 다르나 동일한 법인에서 파견되어 운영되고 있어 조직간 동반 관계가 잘 운영되고 있는 경우이다.
이 보찌보찌나가야를 보다 구체적으로 정리하면 다음 <Table 6>과 같다. 총 건축면적 346.5 m2의 17개의 실과 1개의 독채로 되어 있다. 2003년에 운영을 시작하여 2017년 4월 현재 약 15년을 100%의 거주자 입주율을 지키며 지속적으로 운영해오고 있다.
Table 6.
Administrative Summary of Bochibochi-Nagaya
Source. Reconstructed by Meno (2007)
오늘날 사회적 고립으로 소외감을 느끼고 사람들 간의 교류가 차단되는 노인들이 증가하고 있다. 이러한 사회적 문제 속에서 보찌보찌나가야가 가지는 의미가 크다. 보찌보찌나가야는 다세대커뮤니티가 이루어지고, ‘육아지원과 고령자지원이 양립된 노인의 인간성 회복의 실현’(NHK, 2005; TV-Asahi, 2013; Silver Industry News Co.,Ltd., 2015)과 ‘세대를 넘어선 지역교류’로 조명을 받고 있다(The Nikkei, 2015).
2. 연구방법
본 연구는 질적 사례연구에 속한다. 즉, 특정한 사례를 대상으로 이들의 특성을 질적으로 분석하는 연구이다. 접근하는 방법에 있어서는 현지방문 조사연구라고 할 수 있다. 연구대상인 보찌보찌나가야 주택사례의 특성을 파악하기 위하여 관찰방법과 반구조적 질문지를 동반한 면담 연구 방법을 실행하였으며, 본 사례에 대하여 공개가 되어있는 각종 문헌조사 방법도 병행 사용하였다. 현장조사에 앞서 3개월 동안 선행연구와 자료조사를 실시하였고, 대상지 방문과 관련하여 매니저와 사전계획이 이루어졌다. 현장관찰은 연구진의 직접적인 관찰기록과 녹음기, 카메라 등으로 기록하고, 모든 면담내용은 녹취를 하였으며, 면담은 연구원 4인이 보찌보찌나가야에서 일을 하고 있는 매니저와 인터뷰를 진행하였다. 현장 방문조사는 2016년 12월 12일에 하였으며, 면담과 물리적인 주거환경을 관찰하고 기록하는데 각각 2시간의 시간을 할애하여 총 4시간을 현장에서 자료를 수집하는데 소요되었다. 문헌정보는 보찌보찌나가야에서 제공받은 자료와 홈페이지, 인터넷기사, 전문서적, 보고서 등을 활용하여 분석하였다. 자료의 분석은 현장의 기록 사건들과 면담내용, 녹음파일을 문서화하고 객관적 취득 자료를 정리한 후, 연구자 4인의 이해에 차이가 있거나 보충설명이 필요한 경우 부가적 정보를 탐색하여 보완하고 재소통 후「동의」, 「확인」에 기반을 두어 재정리되었다. 이러한 정리와 해석을 위해 총 6개월이 소요되었다. 한편, 본 연구방법은 거주후 평가 중에서도 노인주택으로 계획된 현장에 거주자가 사용하고 있는 현장을 대상으로 하는 Walk Through Evaluation에 속할 수 있다. 즉, 거주자들이 살고 있는 현장을 방문하여 관찰하고 이해를 도모하는 면담을 통하여 환경에 대한 분석과 해석을 하였다. 연구의 결과는 주택의 물리적 환경인 하드웨어, 주거서비스 차원에서의 컨텐츠웨어, 그리고 휴먼웨어는 평가적 관점이 아니라 거주자의 구성학적 관점으로 분석되었다.
IV. 보찌보찌나가야 사례분석 결과
1. 보찌보찌나가야 물리적 환경 계획특성
보찌보찌나가야의 용어를 살펴보면, 보찌보찌(ぼちぼち)는 ‘느긋하게’ 또는 ‘천천히’, 나가야(長屋)는 일반적으로 변두리의 좁은 골목에 지어진 복수의 주호가 수평방향으로 연결된 목조주택으로 일본의 전통적인 도시주거에서 흔히 볼 수 있는 주택을 의미하는데 이 둘이 혼합되어 만들어진 명칭이다. 즉, 친밀하고 자연스러운 배치를 중시하고 있다. 이 주택은 이층 구조로 되어있으며 이를 실제의 외관 전경으로 제시하면 <Figure 4>과 같다. Mass Housing이 압도적으로 발달한 한국과는 달리 일본의 경우 2층의 단독주택이 보편적이며 색채는 진한 갈색 계열이 주를 이룬다.
1) 평면특성
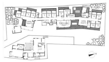
아래 평면도<Figure 5>의 주택 1층은 세 개의 클러스터로 구성되어 있으며 여성독거노인용 방 13개15)와 공동시설인 부엌과 부엌 및 식당, 거실 2개, 공용화장실 3개, 공용욕실 1개로 구성되어있다.
주택 2층<Figure 6>은 독신직장여성을 위한 4개의 실과 육아가구를 위한 독채로 구성되어 있다.
독신직장여성을 위한 각 실에는 미니부엌, 간이욕실, 화장실이 있어 독립적인 생활을 할 수 있게 배려되었다. 각 실의 출입문 앞으로 길게 복도가 형성되어 있는데 이곳에서 아래층의 공동공간이 직접적으로 내려다보이도록 보이드(Void) 형식으로 처리되어있다. 이렇게 구성된 이유는 노인들의 상황을 일상적으로 지켜 볼 수 있어 긴급 상황에 쉽게 대처할 수 있게 하기 위함이다.
또한, 이러한 구조는 1층의 노인거주자 입장에서 열린 구조를 통해 2층의 일반가구들과 함께 살고 있다는 동거 의식을 느끼게 해주며 심리적으로 안심과 생기를 도모한다는 차원에서 바람직하다고 할 수 있다. 한편, 일정한 간격이 떨어져서 오른쪽에 위치한 육아가족을 위한 공간은 본채건물과 연결은 되어있으나 외부에서 별도로 출입할 수 있는 개별 출입구가 있다. 일반적인 주택에서 가질 수 있는 공간구성요소를 모두 갖춤으로써 가족의 사생활이 잘 지켜질 수 있는 설계로 되어있다. 이는 연령별 혼합 구성을 할 때 단점으로 문제가 될 수 있는 사생활문제를 해결하는 한편 자연스러운 상호작용을 도모하기 위해 배려된 특성이라는 것을 아울러 볼 수 있다.
2) 공간별 특성
(1) 출입구
출입구는 무장애(Barrier Free)로 휠체어를 사용하는 거주자도 접근이 가능하지만 시설분위기가 나지 않게 하기 위하여 일반주택과 같은 휴먼스케일로 구성되었다.
출입문에는 특별한 장치를 설치하여 치매 증세가 있는 노인들이 사용하기에는 어려우나 일반 사람들에게는 쉬운 위치와 방법을 사용하고 있어 통제받는 느낌이 들지 않게 하였다. 모든 개인실은 복도를 따라 위치해 있으며 문이 복도로 면해 있어 출입 시 수월하게 접근할 수 있는 접근성을 지니고 있다. 또한 육아가구를 위해 별도로 설치된 출입구 외에는 하나의 출입구뿐이어서 노인세대와 일반 세대들 간의 사회적 교류를 자연스럽게 도모하고 있다.
(2) 공동공간
개인실 외에 공동으로 사용하는 공간으로, 공간은 크게 두 가지 유형으로 나뉠 수 있다. 소규모로 거주자들이 만날 수 있는 거실과, 다른 하나는 다양한 행사들을 수용할 수 있고 부엌에 인접해 있는 다목적 중형 거실 및 부엌이다. 부엌은 일반주택에서의 부엌처럼 개방되어있어 전면에 서비스 직원과 노인 거주자들이 상시 참여할 수 있는 형태로 되어있다. 또한 화재로부터 노인들의 안전을 위하여 스프링클러가 근접하게 설치되어 있다. 2층으로 가는 계단은 노출되어 있어 2층에 사는 거주자들과 자연스럽게 교류할 수 있게 되어있다. 공동욕실은 무장애 공간으로 하되 일본의 전통적인 욕실 구성의 방법인 세면대와 변기가 별도로 분리되어 있다. 또한 몸을 담그는 전통적인 목욕 문화를 수용하기 위하여 편백나무를 목재로 사용하였으며, 고령자가 목욕서비스를 수월하게 받을 수 있도록 서비스 제공자의 출입을 위하여 외부 문이 정원 쪽으로 설치되어있다.
(3) 외부정원
외부정원은 모든 독거노인의 개인실에서 보이도록 주택을 따라 넓게 조성되어있다. 이는 거주자의 입장에서 정원의 계절별 변화하는 과일나무와 식물을 쉽게 접할 수 있는 기회를 제공하였다. 또한 일상적인 빨래를 널 수 있도록 정원에 인접하여 데크도 조성하였다. 이러한 자연조경과 계절을 알 수 있는 기회를 제공한 것과 빨래로 일상적인 생활상을 드러낸 것은 노인들에게 익숙한 생활 전경을 통해 정서에 도움이 될 뿐 아니라 치유 요소로서 역할을 하도록 배려가 되게 한 것이라 여겨진다.
2. 서비스제공 및 운영 특성
보찌보찌나가야의 서비스 종류는 크게 주택에 관련된 서비스, 청소 및 식사를 돕는 가사서비스, 개호서비스의 세 가지로 나눌 수 있다.
주택서비스는 주택을 임대하여 입주할 고령자의 경우 주택 계약 시 보증금 15만5천엔과 월세 6만5천엔을 지불하며, 독신 여성과 육아가구의 경우는 월세가 6만엔16)이며, 매월 3만엔이 반환됨으로써 임대료는 50%가 절감되고 있다. 이 반환금은 입주 노인들에게 활력을 줄 수 있도록 하는 인사하기, 가끔 식사하기 등의 간단한 요청을 받아들이는 조건으로 입주를 했기 때문에 지급되고 있다. 현재 서비스를 받고 있는 노인들은 초기에 입주를 할 당시에는 건강하고 서비스가 필요가 없었지만 15년이 지나감에 따라 대부분의 거주자가 서비스를 필요로 하는 실정이다. 노인들은 식사 제공에 대한 선택을 할 수 있으며, 개인실, 화장실, 욕실에는 위급호출기가 설치되어 있다. 또한 간호가 필요한 상태가 되었을 때 인접해있는 데이서비스센터에 가거나 방문간호서비스를 받을 수 있다. 개호서비스를 받는 경우에는 개호보험과 연결하여 각 고령자의 간병 수요 정도에 따라 보험을 통한 서비스가 이루어질 수 있도록 유연하게 연결하여 주고 있다. 이들 노인들 이 지역사회 내 서비스를 활용하고 싶을 때는 거주자가 사용하는 서비스나 편의서비스를 그대로 존중하여 활용할 수 있도록 케어전문가가 케어서비스코디네이터 역할을 하도록 되어있다. 종합하자면 주택임대와 관련된 주택의 유지관리 서비스 비용은 고정적으로 누구나 다 혜택을 받는 서비스이고, 식사서비스와 개호서비스는 개인의 의지와 개인의 상황에 따라 선택할 수 있도록 되어있다. 나아가 지역사회의 편의서비스와 개호보험서비스 등이 필요할 경우 케어전문가와 노인, 노인의 보호자와 함께 상의하여 각 고령자 개인의 요구에 따라 일주일 또는 월별 맞춤형 스케줄이 제공된다.
3. 휴먼웨어
이 주택에 거주하는 거주자의 구성적인 관점에서 조명해보고자 한다. 우선 첫째, 보찌보찌나가야가 규정한 세 가지 요건17)에 따라 입주한 고령자들로서 대부분이 입주 후 퇴소를 하지 않았다는 점을 고려해 본다면 현재 70세 후반부터 100세의 노인들이다18). 이런 고령자 인구들이 밀집해 있을 경우 생기를 잃을 뿐 아니라 위험에 노출될 위험성이 크다. 이에 따라 연령을 혼합하는 주택 계획과 지역사회 계획이 필요한 집단이다. 둘째, 2층에 살고 있는 여성 독신가구를 들 수 있다. 이 독신여성가구들의 경우 출퇴근을 하는 직장인들이다. 일본의 경우, 혼자 사는 독신가구가 늘어남에 따라 독신 여성들의 안정과 주거안정화에 대한 문제가 사회적 문제로 증가 되고 있다. 이들 독신가구가 보찌보찌나가야에 자발적으로 들어옴으로써 독신으로 사는 것보다 안심감을 추구하며 자신의 집처럼 출퇴근을 하며 살고 있는 집단이다. 셋째, 육아가구의 구성이다. 이들은 육아를 하는 가족구성 계층으로 독신가구보다 생활공간의 규모를 더 필요로 하나 저출산·저성장 시대의 새로운 취약계층으로 주거안정화 문제에 취약할 수 밖에 없다. 이로 인해 안심하고 장기적으로 자녀를 기르며 살 수 있는 주택을 필요로 하는 집단이다.
노인 전용주택에서 가장 문제가 되어왔던 부분은 활력을 잃어버린다는 것과 사회적 고립이 된다고 하는 것이다. 이러한 두 문제를 적극적으로 풀기 위하여 보찌보찌나가야라는 상생모델이 창조되었다. 즉, 이 주택에서는 전격적으로 독신여성·육아가구의 사회적 문제, 안전 문제, 경제적 문제를 해결하기 위하여 이들을 임대가구로 받아들였다. 안전 문제는 같은 조직에서 살게 하여 소속과 보호 의식을 줄 수 있으며 경제적 관점에서는 이들이 거주하게 되었을 때 임대료의 50%를 환원해 줌으로써 인근의 임대료보다 저렴한 비용으로 임대를 할 수 있게 해주었다. 이러한 매력 요인을 강화하기 위하여 특정한 서비스를 요청하는 것보다는 마주치면 인사하기, 비상사태에 서비스 요원을 도와 대처하는데 협력 해주기, 가끔 식사 함께하기 등의 비교적 간단한 요청이었다. 이러한 것은 일상적인 근린환경권에서 자연스럽게 할 수 있는 것으로 큰 부담을 느끼지 않는 조건이라는 것이다. 육아가구의 경우는 가족의 사생활을 보호해주기 위하여 독채를 제공하였고 임대료의 경우 방의 크기가 큼에도 불구하고 동일 금액으로 함으로써 상대적으로 바깥에서 큰집을 구할 때보다 특혜를 크게 하였다. 규모의 기준에서 주택의 임대료를 정하는 방식이 아니라 이 같은 구성원의 특성을 감안하여 임대료를 저렴하게 해주었다는 것은 상당한 의미를 지닌다. 결국은 인간의 가치에 관한 것으로서 활기가 필요한 노화된 노인에게 일상적인 가족을 영입함으로써 익숙해왔던 생활을 느끼며, 그 속에서 다양한 삶이 존속되게 하고 있다는 점이다. 또 하나의 특성은 육아가구의 남편과 독거노인부부의 남편을 제외하고는 여성들로 구성이 되어있다는 점이다. 일반적으로 여성들의 수명이 긴 일본의 경우 혼자 살 경우에 더욱 취약한 상황에 놓이게 되므로 모여 살며 취약성을 서로 만회 상생시켜주는 성격이 있다고 보인다. 이러한 휴먼웨어의 구성은 개별로 두었을 때 취약할 수밖에 없는 대상들로서, 이들을 서로 호혜관계에 있도록 하여 함께 거주하게 한 것은 모일 때의 안전성과 보호 성능이 더 커질 수 있도록 하였다고 볼 수 있다.
한편 시간이 경과함에 따라 젊은 인구의 감소와 노인인구의 증가로 인하여 본 사례 또한 수많은 노인촌에서 겪었던 요양시설화 되어간다는 한계에 부딪히게 될 것이다. 이를 해결하는 방법으로 노인들이 남에게 의존하는 시기를 늦출 수 있도록 물리적인 여건조성을 가능하게하고, 소규모 커뮤니티를 도모하여 복지사각지대에 들어가는 시기를 늦출 수 있도록 첨단 기술을 통해 다양한 방법의 사회적 교류를 도모하는 것 등을 들 수 있을 것이다. 고령화와 더불어 미래 인력이 부족한 상황에서 건강 및 고독에 관한 문제를 해결하는 복합적인 방안들의 절충이 필요하다.
V. 종합논의
본 연구의 대상인 보찌보찌나가야 사례는 하드웨어로서의 공간 계획 특성과 컨텐츠웨어의 서비스와 프로그램 특성 그리고 휴먼웨어로서의 거주자 구성적인 특성으로 분석되었으며, 그 결과 기존의 노인주택 유형분류의 틀을 벗어나는 고유성이 드러났다. 이러한 세 가지 측면에서 나타나는 고유한 특성은 아첼리의 연속성(Atchley, 1989) 이론과 AIP (Aging In Place)모델, Person-Centered Care, 범주화 이론 관점에서 종합적으로 해석할 수 있다.
먼저, 보찌보찌나가야 사례의 하드웨어인 공간계획 특성에서 기존 주택유형과 시설주거로 구분되기 어려운 연속성의 특성이 분석되었다. 노인환경에서 중요한 개념으로 연속성을 제시한 Atchley(1989)는 연속성을 개인이 일생 동안 외적인 구조와 내적인 구조를 유지하고자 하는 욕구로 설명하였다. 이 이론에 따르면, 노인은 젊은 사람들과 달리 새로운 곳으로 이동하는 것보다 지속적으로 사는 것을 중요하게 여긴다. 왜냐하면 기존의 거주환경은 하나의 확대된 자아(Extended self)의 개념으로 모든 경험과 기억이 함께 녹아, 본인의 확대된 일부분으로 남아있기 때문이다. 이때의 지속이란 지속 가능한 사람관계, 지속 가능한 주변 환경, 지속 가능한 생활양식의 모든 것을 포함하는 것이다. 보찌보찌나가야 사례는 일반적인 집과 같은 환경, 살아왔던 골목길의 느낌, 이층 주택의 인간적인 친밀성, 목재 재료, 일본적인 작은 스케일, 일본 전통이 느껴지는 창과 문 디자인, 편백나무가 사용된 목욕실, 그리고 어디서든지 바라볼 수 있는 자연 정원 등이 노인거주자에게 연속성을 준다.
이러한 연속성은 휴먼웨어 관점에서도 나타났는데, 보찌보찌나가야 사례는 노인 거주자를 대상으로 한 계획주택과 비계획주택의 유형으로 구분되지 않는 고유한 특성이 나타났다. 본 사례는 노인 거주자를 대상으로 하나, 거주자의 다양한 구성으로 소셜믹스(Social Mix)를 도모하여 노인만 살게 되는 환경을 피하였고, 사회적 상호작용을 최대한 지속 가능하게 유지시켜 주도록 하였다. 사회적 관계의 연속성은 노인에게 생산적이고 독립적이며, 성취감을 주는 삶을 준다고 나타났다(Cannuscio, Block, & Kawachi, 2003).
그리고, 서비스와 프로그램 관점에서도, 일반주택과 시설로 구분되는 노인주택 유형들과는 달리, 삶에 대한 의사결정을 스스로 하며 독립적으로 살 때와 크게 다르지 않도록, 약간의 지원을 통하여 스스로 강요되지 않고 결정할 수 있게 해주었다는 점에서 연속성의 특성을 보였다. 이와 같은 선택의 자유와 자기결정은 Clark(1988)의 장기 보호 센터의 노인을 대상으로 한 연구에서도 삶의 질을 결정하는 중요요인이라고 나타난 바 있다.
다음으로, 보찌보찌나가야 사례의 고유한 특성은 AIP 모델의 관점에서 논의될 수 있다. 선진국의 수 십 년간 노인주택에 대한 선행 경험을 바탕으로 바람직하게 대두되고 있는 AIP 모델은 문화를 막론하고 노인들의 선호 방향이기도 하다. AIP는 시설에 가지 않고 기존의 지역사회, 기존의 내가 살던 집에서 지속적으로 거주하게 하는 개념으로, 본 사례는 AIP 모델을 실현시키는 방안을 보여주고 있다. 보찌보찌나가야는 노인 거주자가 노화에 따라 다른 지역의 노인전용 시설로 이사하지 않고, 임대하여 지역사회에서 살게 하는 모델이다. 이러한 특성은 기존의 AIP 모델이 일반 커뮤니티 내 개인주택 유형에 중점을 두고 있는 관점과 비교해, 지역사회 내에 또 다른 자연스러운 커뮤니티를 만들고 존재한다는 특성에서 고유성을 가진다.
또한, 보찌보찌나가야 사례는 서비스의 제공 측면에서 기존의 노인주택 유형이 노인의 자립 또는 의존 정도에 따라 서비스제공이 일괄적으로 제공되는 것과는 다르게 Person-Centered Care의 개념을 보여준다. Rogers(1980)에 의해 제안된 Person-Centered Care 개념은 개인이 정의한 복지와 삶의 질을 강조하고 있다. 이제까지의 노인주택은 시설과 서비스를 제공하는 공급자 입장에서 노인을 대해 왔으며, 시설에서 제공하는 서비스는 규율과 운영원칙에 따라 노인들에게 주어졌다. 그러나 인권이 중시되고 삶의 질과 삶을 스스로 통제하고자 하는 요구가 높아지는 현대사회로 발전해오면서, 노인 거주자를 중심으로 필요한 여러 여건을 맞춤형으로 제공하는 것이 가장 중요한 삶의 가치를 지니는 것으로 부각되고 있다. 본 연구의 사례는 시설에서 일방적인 서비스를 제공하기보다는 노인이 추구하는 주택과 같은 익숙한 환경을 제공해주고, 필요한 서비스를 고객의 요구에 맞추어 선택하게 하고, 미래의 변화에 대해서도 노인의 요구를 유연하게 맞출 수 있게 되어있다. 본 사례에서 노인거주자는 시설에 들어가는 것이 아닌 내 집을 계약을 해서 임대하는 거주인으로서, 삶을 살아가는 주체적인 입장에서 필요한 지원을 받으면서 권리를 행사할 수 있다. 보찌보찌나가야는 노인간호주택(Nursing home), 양로기관(Assisted Living) 등의 시설 혹은 서비스주택으로부터 분화된 것이 아니라 노인이 거주할 수 있는 기존주택으로 서비스가 들어옴으로서 새로운 형태의 노인주택을 만들어낸 사례이다.
노인주택 유형은 그동안 집과 시설, 노인전용과 일반, 계획과 비계획으로 구분하고, 노인주택의 유형에 따라 서비스의 제공 유무와 강도가 결정되어 범주화되었다. 그러나 범주화 이론의 관점에서 본다면, 본 연구의 대상인 보찌보찌나가야 사례는 기존 범주에 대한 정의로 구분될 수 없는 고유성을 가지고 있으며, 대표적 주택 유형의 원형들이 가지는 속성들이 융합된 특성들을 보이고 있다. 본 연구의 사례는 현재까지의 노인주택 유형들의 특성들과 달리 생태적으로 지속되기 위한 다양한 방법들이 융합되고 있으며 이는 상호 공생하되, 공생을 유지하기 위해 억지로 접근하지 않고 자연스럽고 유연한 방안을 취하고 있다는 점에서 새로운 유형으로서의 고유성을 지닌다. 이러한 특성은 개인주택 유형에 중점을 두고 있는 관점과 비교해, 지역사회 내에 또 다른 자연스러운 커뮤니티를 만들고 존재한다는 특성에서 고유성을 가진다. 이러한 특성은 앞으로의 노인주택이 시설로부터 파생되는 것이 아닌 주택으로부터 파생되어 다양한 서비스 주택으로 발전될 수 있음을 보여주고 있다. 이를 앞서 문헌고찰에서 제시했던 <Figure 1>과 비교 관점에서 제시하면, 노인주택 유형의 미래 방향은 <Figure 11>에서와 같이 기존의 주택 환경을 바탕으로 다양한 서비스가 결합되어 발전되는 방향이라고 할 수 있다.
VI. 결론 및 제언
일본의 보찌보찌나가야 사례를 살펴본 결과, 기존의 노인주택 유형에서 차별화되는 특성들이 내재되어 있는 것으로 나타났다. 본 사례는 일반주택으로부터 진화되었으며, 기존의 노인을 위한 계획주거에 속하지 않는 특성을 지니고 있다. 그 특성을 종합하면 다음과 같다.
본 연구의 사례는 기존주택의 형상을 띄면서 지역사회에 위치해 있어 물리적으로 사회통합적인 성격을 지니고 있다. 노인이 고립되어 있는 것이 아니라 육아가구 및 독신여성이 함께 거주하고 있다는 점은 사회적 소셜믹스를 도모하고 있는 특성으로도 볼 수 있다. 이러한 연령별 혼합 구성은 새로운 공동체라는 울타리 안에서 사회적 약자들이 함께 상생할 수 있는 방법을 보여주었다. 또한, 노인계획주거나 노인시설에 거주할 경우, 하나의 조직이 운영함으로 통제를 받을 수밖에 없다. 그러나 본 사례는 시설과 다른 일반형 주택으로, 임대자로서 거주하는 거주자의 입장에서 서비스에 대한 주체성을 가질 수 있다는 특성을 보여주었다. 보찌보찌나가야는 친밀한 소규모 단위의 골목길 환경으로 조성되어 있으며, 단독적으로 분산되어 노인이 고립될 수 있는 우려에서 벗어나 사회적 건강을 도모할 수 있는 공동체 주택을 지향하고 있다. 또한, 획일적인 계획보다는 자연스럽고 친숙한 단지형태로 구성되어 있으며, 실질적인 서비스 수요자인 노인을 중심으로 전환하고 있는 특성을 보여주고 있다.
본 사례는 일본이 고령화에 대응해 오면서 어떠한 장점들을 취하기 위하여 개발해 왔던 것이 결국 많은 단점을 초래해온 것의 반성과 함께 장단점을 융합시키며 새롭게 태어난 해결 대안이라 할 수 있다. 무엇보다 초고령사회를 겪으면서 여러 어려운 상황을 해결해오면서 그 속에서 바람직한 모형을 찾고자 적응해온 생존 모델이기도 하다. 빠른 고령화로 인해 초고령사회를 바라보고 있는 한국의 입장에서, 이러한 선진복지국가의 경험에서 배울 수 있는 지혜들을 토대로 활용하여 미래 고령화 위기에 대처할 수 있는 주택유형들이 개발되어야 할 것이다. 즉, 노인주거를 과거의 노인전용주택이나 노인촌 등의 계획주거유형이 아닌 지역커뮤니티 내에서의 일반주택유형에서 거주할 수 있도록 방안을 모색하는 것이 중요하다.
현재 한국의 주택유형에는 아파트와 주택의 이분법적 분류가 존재하기 때문에 이러한 새로운 주거대안들이 제안될 필요가 있다. 이미 노인전용으로 개발된 주택단지인 실버타운들은 많은 시행착오를 경험해왔다. 이에 따라 한국의 노인주택 개발은 기존 유형에서 벗어난 대안의 대책이 시급하다. 이러한 차원에서 본 연구는 노인주택의 범주유형을 다시 고려하게 되는 통찰력을 줄 수 있다.
지금까지의 노인주택의 유형 분류는 서비스의 강도에 따라 유료노인주택이나 무료노인시설 등의 경비의 정도에 따라 분류하는 것에서부터 양로기관(Assisted Living)처럼 서비스가 얼마만큼 유연하게 전달될 수 있는지에 따라 분류되어 범주화 되어왔다. 그러나 작금의 시대에 기존의 분류와 경계를 깨도록 강요받고 있는 만큼, 인권의 존엄과 자유 등을 지향하는 열망에 따라 서비스전달이 주택 제공과 분리되어 유연하게 제공되는 것이 중요하다. 즉, 일본의 보찌보찌나가야 사례는 노인주택 유형의 틀을 깨는 실증사례이며, 주택과 서비스를 분리시킴으로써 고령자가 주체의식을 가질 수 있도록 도모하는 방안이며 동시에 소셜믹스를 도모하는 사례이다. 또한, 본 사례는 AIP를 나타내는 중요한 모델로서 새로운 소규모 공동체 지향형 주택이다.
보찌보찌나가야 쉐어하우스의 주택유형학적 특성을 분석한 본 연구의 결과는 앞으로의 노인주택 개발 방향이 AIP를 위한 플렉시케어 방향이 되어야 함을 보여준다. 또한 미래주택의 방향을 선도하는 모델의 특성을 가지며, 복지비용 부담을 다양한 이해관계자의 네트워크를 통하여 분산시킴으로서 고령사회 문제를 유연하게 대처하고 있는 모델로서 이전의 노인주택과는 차별화되는 선도적인 위치에 있다고 여겨진다.













