I. 서 론
1. 연구의 배경 및 목적
전통주택은 사랑채, 안채, 행랑채, 사당 등이 모여 하나의 전체를 형성한다. 이 때문에 종래의 주택에 관한 연구에서는 단위 혹은 집합된 건축에 대해서 연구를 진행해 왔으며 특히, 한국전쟁이후인 1970년대부터 본격적으로 행해졌다. 이들 연구는 주로 사대부의 주택을 중심으로 이루어졌으며, 연구의 대상이 되는 시기는 주로 16~18세기에 집중하였다. 연구의 내용은 주택의 공간적 특징과 의장 및 양식적 특성을 해명하는 것으로부터 시작하여, 점차 개별주거로의 관심, 주거건축의 배경사상, 변천과정, 규모, 설비 등을 다각적으로 분석하여 해석하는 연구로 진화하였다.
하지만 주택은 물체로서 구성된 건물이지만, 인간이 거주하는 곳이며 거주자의 의식과 생활이 선행되는 곳이다. 그렇기 때문에 물적으로 구성된 건물뿐 아니라, 그 속에서 살아왔던 거주자의 생활도 함께 논해야 한다. 이러한 점으로부터 본 연구는 현재 운조루1)의 거주자를 중심으로 주거의 생활행태를 추적해 보고자 한다.
주거 안에서의 인간의 생활은 시대적 흐름에 따라 삶의 방식이 변화해 가며, 그 변화에 따라 주택을 이용하는 방식도 달라져 간다. 즉, 시간의 변화에 따른 거주자의 생활양상과 주택의 이용방법을 고찰하여 조선후기에서부터 전해져 오는 전통생활의 방식이 오늘날에는 어떻게 변화해 왔고, 그 변화에 따른 장소적 의미와 생활의 행태가 과거와 어떻게 달라져 왔는지 밝히는 것을 목적으로 하고 있다.
2. 선행연구
운조루에 관한 종합적 조사는 1987년 『국립민속박물관』2)과 2007년『문화재청』3)에 의해서 보고되고 있다. 이들 보고서는 운조루의 문화유산을 체계적으로 분류하고 있어, 운조루를 연구하기 위한 기초자료로서 폭넓게 활용되고 있다. 한편, 1968년 이미 김정기와 장주근은 건축학적 입장으로부터 운조루의 건축적 의미와 성격에 대해서 『구례운조루』4)라는 제목으로 정리하였다.
운조루의 건축조영에 관한 연구는 『구례 운조루의 영조에 관한 사료적 고찰』5)과『구례 운조루의 주택사 연구』6)그리고,『구례 운조루의 창건과 변천에 관한 연구』7)가 있다. 위의 연구는 일기와 건축도의 기록 자료를 바탕으로 분석한 것으로 운조루의 창건배경과 현재에 이르기까지의 규모의 변천, 공간이용의 변화과정을 정리하고 있다.
운조루의 건축공간에 관한 연구는 『전라구례오미동가도를 통해 본 운조루의 공간구성에 관한 연구』8)가 있다. 이 논문은 운조루에 관한 서화류에 근거하여 그림 표현에 있어서 시점의 문제로부터 거기에서 주거의 공간구성을 해석하고 있다.
운조루의 건축설계에 관한 연구는 『구례 운조루의 건축적 특성』9)이 있다. 이 논문은 운조루의 배치, 평면 및 구조방식 등을 기본으로 한 설계적 측면에서 접근하여 운조루의 건축적 특성을 파악하고 있다.
운조루의 장소적 의미를 밝힌 연구는『조선의 주택 「운조루」에 있어서 현판·가계계승·제사로부터 본 거주의 장소의 규명-「거주」의 장소론적 연구(PART 1)』10), 『조선의 주택「운조루」에 있어서 은거로부터 본 거주의 장소의 규명-「거주」의 장소론적 연구PART 2)』11), 『조선의 주택「운조루」에 있어서 상례로부터 본 거주의 장소의 규명-「거주」의 장소론적 연구PART 3)』12), 『생활일기를 통한「거주」의 장소론적 연구-조선의 주택「운조루」를 중심으로』13)가 있다. 이들 연구는 운조루에 소장된 문헌기록 중의 하나인『운조루의 생활일기』14)를 중심으로 조선후기의 일상생활에 따른 인간과 주거의 관계 안에서 거주의 장소의 의미를 밝히고 있다. 이외에도, 사회생활사 연구로는『한말-일제시기「생활일기」를 통해 본 촌락사회상』15), 조경사 연구로는『구례 운조루 정원에 관한 연구』16),『구례 운조루의 조영사상에 관한 연구』17), 그리고 지리학 연구로는『일기를 통해서 본 한말-일본통치기시대 양반 소지주의 활동 공간』18)이 있다.
이상을 개관한 운조루에 관한 기존연구는 건물의 규모 변화나 조영과정 및 계획 혹은 중국의 주자가례에 기인한 주택의 공간구성원리만을 논하고 있다는 것을 알 수 있다. 특히, 장소적 의미를 밝힌 연구는 본 연구와 깊은 관계가 있는 반면, 운조루의 생활일기가 기록된 범위 내에서 논하고 있다. 이것에 대해 본 연구는 현재 거주하고 있는 거주자의 관점에서 그들의 주생활을 중심으로, 생활상에 나타난 생활공간의 의미를 밝히는 것을 지향하고 있으며, 이 점에서 기존연구와는 다른 시점을 제공한다.
3. 연구방법과 내용
전통주택에서 과거의 주거생활을 복원하기 위해서는 역사의 기록이 유용하지만, 기록물이 기록된 이후의 주택에서의 생활을 밝히기 위해서는 현재 거주하고 있는 거주자의 증언이 기록물을 대처할 수 있다. 무엇보다도 본 연구의 목적과 깊은 관련이 있다는 점에서 운조루의 생활일기가 마지막으로 기록된 1936년 이후의 주거 생활모습을 밝히기 위해서도 중요하다. 그러나 1936년대와 가장 가까운 현 거주자는 운조루 9대 종부인 이길순 할머니가 가장 연장자이며, 현재 81세(1935년)로 19살이 되던 해(1954년)에 처음 운조루에 들어와 현재에 이른다. 그렇기 때문에 1936년 이후의 가장 빠른 생활을 복원하기 위해서는 이길순 할머니의 증언이 생존자 중에서는 가장 신뢰할 수 있다. 따라서 본 연구는 1954년부터 현재에 이르기까지 거주자의 생활상을 밝히기 위한 방법으로 현거주자를 대상으로 행하는 면담방식19)을 채택하여 연구를 진행하고자 한다. 또한 1954년 이전 생활과의 비교를 위해 『운조루의 생활일기』도 함께 검토한다.
면담방법은 거주자의 생활에 대한 전반적인 스토리를 바탕으로 진행되며, 이 과정에서 연구자는 식사, 기거장소, 농사, 민간신앙 등과 같은 일상생활과 제례나 상례와 같은 비일상 생활을 구분지어 당시 거주자의 행태와 의식을 파악한다. 거주자에 의해서 추출된 주생활의 내용은 조선시대 후기의 생활과의 비교를 통해 그들의 생활이 어떻게 변화하였고, 또 주택의 이용방법이 어떻게 변천되어 왔는가를 결론에서 정리하고자 한다.
II. 운조루
1. 입지특성
운조루의 입지는 풍수 지리적 배경을 가져20) 명당의 형세를 유지하고 있다고 전해진다. 마을 뒤로는 지리산 노고단이 남측 능선을 이루고 있으며, 마을 전방에는 이들 사이에 흐르는 계천에 의해서 형성된 넓은 충적평야가 펼쳐져 있다. 또, 섬진강이 서에서 동으로 흐르고 있어, 배산임수의 전형적인 입지환경을 갖추고 있다. 그리고 마을의 전방인 섬진강의 맞은편에는 안산의 역할을 하는 오봉산이 있으며, 더욱 먼 곳에 계족산이 있어, 주작의 역할을 이루고 있다. 마지막으로 동측에는 왕시루봉이, 서측에는 천왕봉이 있어, 이들 산의 좌우를 청룡과 백호라 하고 있다21).
운조루는 예부터 풍수 지리적 명당이라 하여 세간의 귀목을 모아왔다. 이중환의『택리지』22)에서는 조선에서 가장 살기 좋은 곳 중 하나로서 전남구례의 구만23)을 들고 있다. 한편, 1931년에 조선총독부가 간행한『조선의 풍수』24)에서도 찾아볼 수 가 있다. 또한, 류씨가의 문서인 『운조루의 생활일기』에는 운조루의 명당에 흥미를 가진 자의 방문이나 주변 사람들의 전출입에 관한 기록이 곳곳에 남아 있어 그 기록 역시 같은 맥락으로 파악할 수 있다.
2. 건축과정
운조루의 건축배경은 창건주 류이주(1726-1797)의 경력을 통해서 확인할 수 있다.『조선왕조실록』에 의하면 그는 17살에 한양으로 상경해 28세 무렵(1753년 영조29년)무과에 합격해 많은 무관직을 역임하였다25). 그리고 류이주의 행적을 기록한『삼수행장실록』26)에 의하면, 1774년에 삼수유배로부터 돌아와 운조루를 세웠다(1776년)고 전해지고 있다.
이러한 까닭으로 류이주는 무관직에 의한 축성공사의 경험을 통해서 건축 조영능력이 있었으며, 부지로서 전라남도 구례를 선택한 이유도 이중환의 『택리지』에서 전하고 있듯이 수리의 조건이 가장 좋았었다는 점, 그리고 1771년에 류이주가 군수로 역임한 낙안이 구례와 인접한 지역이라는 점에서 운조루의 조영배경이 짐작된다.

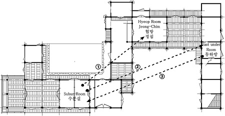
Figure 2.
Floor plan of UNJORU
Note. This plan was made based on a site investigation (2010-2015) and the report (Gurye-Unjoru, Important Folklore Material No. 8 (2007), Korean traditional houses) issued at Korean Cultural Heritage Administration.
운조루는 큰사랑채를 중심으로 3개의 채, 24칸의 동서 행랑, 그리고 1 정사당으로 구성되었다. 특히, 사랑채는 가장의 거처장소인 외사<수분실(隨分室), 운조루(雲鳥樓), 족한정(足閒亭), 이긍재(二肯齋)>와 장자의 거처장소인 중외사 <담락와(湛樂窩), 귀래정(歸來亭)>그리고, 노년기를 보내기 위한 하외사인 농월루(弄月樓)로 구성되어 사랑의 기능이 세분화 되어 있는 것이 특징이다.
창건초기부터 현재까지를 보면, 규모에 있어서 큰 변화27)가 있었다는 것을 알 수 있다. 우선, 1804년 전후 무렵 동서랑과 루를 철거하여 1차 축소되며, 1860년대에 동서 행랑과 동족점실 등이 부분 철거되어 2차 축소된다. 그리고 1900년대 초두와 1910년대 중반에는 농월루와 중외사 및 각종 협문이 철거되고 3차 축소되어 현재에 이르고 있다. 따라서 초기 品자형28)의 공간배치에 대해서는 정확하게 알 수 없다. 이러한 내용을 정리하여 현재의 운조루의 실측평면29)과『오미동와가구시전도』30)를 중첩시켜 각 실의 위치와 규모, 명칭을 평면도로 작성하였다.
III. 거주자 생활내용
1. 1954년 이후의 거주 변화
1954년 이후의 생활을 복원하기 위해서는 먼저 당시 운조루의 거주자의 공간사용 변천과정을 살펴봐야한다. 거주자 현황은 면담을 통해 확인 할 수 있었다.
“내가 시집올 당시에 할머니 계시고, 시아버지(8대 류증교 1906-1971), 시어머니 계시고, 시아제가 세분 있고, 시누이가 두 분 있고, 그리고 남편(9대 류종숙 1930-1991)이 살고 있었다.”
류종숙의 아버지인 류증교는 슬하에 다섯 아들을 두었지만, 그 중 장남이 여순반란사건(1948년 10월 19일) 때 경찰에 의해 사망하여 차남인 류종숙이 장남의 역할로 대를 잇게 된다. 그러므로 위의 면담 내용으로 미루어보아 당시 운조루에는 면담자를 포함한 총 9명이 기거했다는 것을 알 수 있다. 또한 운조루에는 직계 가족 이외에 하인도 함께 거주하였다. 하지만 시대의 변화에 따라 그들을 내보내게 되며, 직계 가족들만 기거하는 주거공간이 형성된다.
“하인들은 시대가 변해서 떠났다. 우리 할머니가 노잣돈을 주어 다 내 보냈다. 이제 니들도 양반 노릇하면서 살라고 말씀하셨다. 운조루에 남아있는 종문서도 불태워 버렸다. 그거 보면, 나중에 문제 있을 거 같아서….”
사회의 변화는 과거 사유재산의 일부로 여겨왔던 하인들에게 영향을 미치게 되며, 더욱이 그들의 안위를 염려하여 노비문서를 불태워 없애는 등 한국전쟁이 휴전에 들어간 이 시기에 사회적, 생활적 측면에서 크고 작은 변화가 이루어졌다는 것을 짐작할 수 있다.
2. 거주자의 점유 공간
1954년 당시 운조루에 기거했던 거주자들은 각각 어떤 공간에서 생활하였으며, 점유하였는지도 확인할 수 있었다. 계속해서 아래의 이야기를 들어보자.
“나는 안채 작은방에서 살았다. 밑에 방에서는 불을 땠는데, 따뜻하기 때문에 할머니가 계시고, 나는 그 윗방에서 지냈다. 시어머니는 큰방(안채)에서 지냈다. 주인양반은 책뱅이라고 그곳에 계셨고, 사랑방(수분실)은 시아버지가 계셨다. 시아제들도 사랑에 살았다.”
먼저, 당시 운조루의 연장자인 시할머니 즉, 류증교의 어머니는 안채의 동 하방이 기거 장소가 된다. 시아버지인 류증교는 큰사랑채의 수분실(사랑방)을 점유하며, 면담내용에서 주인양반과 책뱅이는 각각 류종숙(남편)과 이긍재를 가리키고 있다. 또한, 시아제는 류종숙의 형제들을 의미하며 그들은 사랑채에서 기거하였음을 진술하고 있다. 하지만, “시집오고 나중에 시아제들도 결혼하여 분가하였다”고 면담자는 전하고 있다. 한편, 종가집의 며느리이자 주인공의 시어머니는 안채의 정침에서 기거하였으며, 이길순 할머니는 동 상방에서 기거하였음을 알 수 있다.
이상으로 1954년 당시 운조루의 거주변화를 살펴본 결과 이 시기를 기점으로 사회적 변화와 함께 운조루에서도 그 변화에 대응해 갔다. 한편, 기거방식에 있어서는 『운조루의 생활일기』(1851-1936)에서 보여 지는 조선후기 거주자의 공간점유와 유사한 면을 보이고 있어, 이 시기에도 큰 변화가 이루어지지 않았음을 시사해 준다. 이러한 점을 염두에 두고 좀 더 구체적으로 생활유형으로부터 거주의 장소적 의미와 생활행태를 살펴보도록 하자.
IV. 생활유형별 거주 패턴
1. 식사공간
주거생활 중에 가장 큰 비중을 차지하는 것은 취침과 더불어 식생활31)이라 할 수 있다. 지금까지 조선시대의 식생활 문화는 상하, 남녀구분이라는 이분법적 원리를 기본 바탕으로 이해해 왔다32). 다만, 현대에 이르러 주거가 변화하면서 가족이 함께 모여 식사하는 양식으로 바뀌었다33). 먼저 운조루의 과거 주인인 류제양(1846~1922)과 류형업(1886~1944)의 시대에는 식사공간을 어떻게 이용하였는지 아래의 일기 내용에서 확인 해 보자.
○ 류형업『紀語』6권, 1904년(甲辰) 11월15일
종조모 생신일이라 집안 모든 친척들이 모여 함께 식사를 하였다34).
○ 류형업『紀語』9권, 1907년(丁未) 5월4일
내 생일이다. 모여서 식사를 같이 했다35).
○ 류형업『紀語』9권, 1907년(丁未) 10월29일
아들 증교의 첫돌이다. 집안 식구들이 모여 식사를 같이 하였으며, 조부님께서는 시를 지으셨다36).
○ 류형업『紀語』11권, 1909년(己酉) 4월27일
조부님 생신일이다. 아침에 집안의 여러 사람들과 함께 식사를 하였고, 인근 마을의 노소사람들을 초청했다37).
○ 류형업『紀語』21권, 1919년(己未) 12월8일
조모님의 회갑이다. 아침에 친척들이 모두 모여 내실에서 밥을 먹었다38).
○ 류형업『紀語』22권, 1920년(庚申) 12월8일
조모의 생신일이다. 집안에 불화한 일이 있어 자손들이 함께 모여 즐겁게 식사를 할 수 없으니 어찌 현명한 자손들이라고 말할 수 있겠는가39).
○류형업『紀語』34권, 1932년(壬申) 5월4일
내 생일날이어서 모두 모여 식사했다40).
위의 내용에서도 알 수 있듯이 식사에 대한 대부분의 기록은 생일이나 회갑, 돌과 같은 특정 시기에만 기록되어 있다는 점과 “가족이 함께 모인다.”는 점을 강조하고 있다. 특히 류형업의 1920년도 기록에서는 조모의 생신일임에도 불구하고 가정의 불화로 가족이 함께 모여 식사할 수 없음을 안타까워하는 심정에서도 포착 되듯이, 특정 시기를 제외한 평소의 식사공간은 소규모 혹은 단위 공간에서 행해졌을 것이라 짐작된다. 그렇다면, 1954년 이후에는 운조루의 식사공간이 어떻게 변화되어 왔으며, 식사공간을 어떻게 구분 짓는 지 이길순 할머니의 증언을 들어보자.
“식사할 때는 시아버님이 큰방(안채의 정침)으로 오셨다. 상을 어떻게 놓느냐 하면은 시아버지랑 할머니는 겸상을 해 드리고, 나머지 식구들은 다른 한상에서 같이 먹었다. 그래갔고 나중에는 할머니가 온기가 부쳐서 할머니 방으로 진짓상을 내드렸다. 그때도 시아버지와 할머니는 같이 겸상을 드셨다. 시아버지가 할머니를 따라 옮겨 가신 거다. 큰방에서는 시어머니와 시아제들이 드셨다.”
혹시, 당시 운조루의 연장자인 할머니께서 집안의 권력을 가지고 있었는가 하는 추가 질문에 “권력은 시아버지가 가지고 있었다.”는 답변으로, 여기에서 주목해야 할 부분은 당시 가장인 시아버지가 시할머니의 식사자리에 따라 이동하는 것에 있다. 즉, 안채의 큰방인 정침에서 동하방으로 식사자리가 옮겨졌다는 것이다. 더욱이 시할머니가 돌아가신 이후, 시아버지는 자신의 거처인 수분실(사랑방)에서 식사를 한다.
“근데, 시할머니가 돌아가시자 시아버지는 큰방으로 안 오시고, 사랑에서 드셨다. 또 일꾼상도 놓았다. 전에는 안방에서 먹지 못하고, 사랑 밖에서 먹었다. 나중에는 큰방에서 한데 먹었는데, 상은 따로 차렸다.”
성별에 관계없이 집안의 어른을 중심으로 형성되는 가족의 식사모습이 그려진다. 특히, 운조루의 어른이자 연장자인 시할머니와 시아버지는 모자관계로 겸상이 이루어지는데, 이는 장남과의 관계를 의미하는 것이라 하겠다. 다시 말하면, 운조루를 이끌어 가는 가장과 그를 낳은 어머니로서의 위치가 수직구조의 혈연체계인 가부장제의 속성을 보여주는 것이며, 양자 간의 행동을 통해 모자관계의 확립을 다지는 의식적 측면으로 볼 수 있다. 즉, 운조루는 가부장적 체제하의 남존여비 및 상하 위계질서에 의하면서 연장자에 대한 중심성을 지니기 위해 시아버지는 시할머니를 따라 식사공간이 이동하게 된 것이며, 시할머니가 돌아가시자 운조루의 연장자가 된 시아버지는 자기 자신에게 그 중심을 두게 된 것이라 할 수 있다. 따라서 류씨가의 식사공간은 시대변화에 따른 편의성보다는 연장자 중심의 유교원리를 따랐음을 간접적으로 보여준다.
2. 취침장소
취침장소는 기거장소와 직결되어 있으며, 생활유형을 파악하는데 있어서도 중요한 위치를 점하고 있다. 류씨가의 기거장소는 전장의「2. 거주자의 점유공간」에서도 서술하였듯이 각각 기거해야 할 장소에서 생활하고 있었다. 하지만, 1948년 여순반란사건으로 류증교(시아버지)는 장남을 잃은 아픔에 류종숙(남편)의 기거 장소를 사랑채가 아닌, 안채로 명하게 된다.
“옛날에 여자하고 자면 남자 몸이 약해진다고 하여, 꼭 사랑에서 잤다. 한 달에 두 번씩만 허락하였다. 이제는 남편하고 한방에서 잤다. 왜냐 하면은 주인양반 성님이 있었는데, 사건(여순반란사건)에 죽었다. 그 사건이 있는 이후로 우리 아버지께서 (자식이)일찍 죽은 것이 한이 돼 주인 양반(남편)을 안에서 자게 내버려뒀다.”
이길순 할머니의 증언 내용으로 보아 당시에도 남녀 기거장소에 대한 유교의식은 자리 잡고 있었다. 하지만, 여순반란사건을 계기로 이념보다 실리를 추구하게 된 것으로 생각된다. 다시 말해서, 사랑채는 사회와 연결되는 곳을 의미하며, 그곳에서의 기거는 사회적 참여를 뜻하는 것으로 해석된다. 그렇기 때문에 시아버지는 아들(류종숙)의 안위를 걱정하여 기거장소를 안채로 명하게 된 것이라 할 수 있다. 혹시 시아버지가 돌아가신 후, 남편분이 다시 사랑에서 기거하지 않으셨나? 라는 추가 질문에 “그렇지 않았다. 그대로 사랑은 비워두고, 안채 큰방에서 나랑 지내다 돌아가셨다.”라는 답변으로 보아 시대변화에 따른 사랑채가 갖는 기능은 퇴색해 가지만, 사회적 관계를 갖는다는 사랑채의 의미는 지속되었다고 할 수 있다.
3. 의례장소
조선시대 의례에 있어서 제사와 상례는 매우 중요하게 여겨져 왔으며, 그 실행 장소에 있어서도 엄격하게 규정해 왔다41). 대체적으로 제사는 대청에서 행해지며, 대청이 없는 민가에서는 안방에서 대신하였다. 상례장소 역시 마루로 구성된 대청 혹은 안방에서 행하는 것이 일반적이다. 하지만,『운조루 생활일기』에 기록된 제사와 상례는 일반적인 규범과는 다른 장소와 행태로 행해졌다42). 즉, 제사는 집의 중심을 정침에 두고 그 의미를 사랑방(수분실)에 부여하여 사랑방이 제사를 행해야 할 중심장소로 하고 있다. 한편, 상례는 가족의 신분질서에 따라 위계에 어울리는 각각의 공간에서 행해진다. 이처럼 일반적 규범과는 다른 의례공간의 이용방법이 면담자의 시대에는 어떻게 변화해 왔는지 살펴보자.
“제사는 큰방에서 안모시고, 사당에서 위폐를 가져와 병풍치고 대청에서 모셨다. 방에서 지내지 않은 것은 애들이 대소변을 거기에서 하니까 깨끗하지 않다고 생각해서였다. 하지만, 내가 어느 위치에 왔을 때, 다 돌아가시고 나 혼자 남았을 때, 제사를 다시 방에서 지냈다. 한 달에 두세 번 제사가 있으니까 힘들더라. 그래서 세상 따라 살자라고 한 거다.”
면담자가 연장자가 되기 이전까지는 유교원리의 전통을 이어 왔지만, 그 이후부터는 간소화되어 그 명맥만 유지되어 있다는 것을 알 수 있다. 특히, 제사 장소가 대청에서 안방으로 이동되었다는 점에 주목하고 싶다. 위의 증언대로라면, 대청에서 제사가 행해졌던 시기의 권력자는 남성이었다는 점이며, 안방에서 행해졌던 시기의 권력자는 여성이었다는 사실이 된다. 이를 해석하면, 남성입장에서는 유교적 원리를 고수 한 것이며, 여성입장에서는 유교적 원리보다 생활의 편의를 우선시 했다는 것이라 할 수 있다. 더욱이, 류제양과 류형업의 시기에 중요하게 생각해 왔던 정침의 중심성이 세대가 이어질수록 대청으로 바뀌게 되며, 결국 중심이라는 상징성은 생활의 편의라는 의미로 변해간 것이다. 한편, 죽음을 맞이하는 절차, 즉 상례장소에 있어서는 안방이 상징적 공간이 된다. 계속해서 이길순 할머니의 이야기를 들어보자.
가족의 신분질서와 공간의 위계에 따라 각기 다른 장소에서 행해졌던 과거(류제양과 류형업의 시대) 류씨가의 상례 규범이 한 장소인 안방(정침)에서 행해진다는 점이 특징이다. 또한 “죽으면 다 큰방으로 가는 거다.”라는 내용으로 부터도 가족질서에 대한 인식이 신분위계가 아님을 추측할 수 있는 중요한 증언이 된다.
4. 민간신앙
전통사회에서 집은 물체의 의미를 넘어, 생명체로서 인식하고 있었다. 류씨가에서도 예외는 아니었다. 삼라만상에 생명을 불어넣고 그것을 관장하는 신의 허락아래 살아갔다. 조왕( 王)신께 축문을 올려 고사를 지내며 가족의 안녕을 기원하는 민간신앙은 유교 사회 속에서도 이미 깊이 뿌리 내리고 있었다는 사실을 알 수 있다. 류형업의『紀語』에서 이를 확인할 수 있다.
○류형업『紀語』12권, 1910년(庚戌) 1월13일
축문(祝文)을 지어 밤에 조왕제를 지냈다. 그 축문은 다음과 같다. “유세차(維歲次) 경술(庚戌) 정월(正月) 병오(丙午) 13日 무오(戊午) 집주(家主)인 참봉(參奉) 모(某)는 감히 조왕 대성신(大聖神)님께 고하나이다. 새로 정월을 맞이하여 이에 복길(卜吉) 일에 여러 음식을 이미 정갈하게 준비하고 목욕재계하여 이같이 잘 차려놓고 우리 집이 편안하기를 정성을 다해 머리를 조아려 공손히 절을 올리고 돌아보니 염숙함에 지신(地神)이 삼가도 두려워하니 오셔서 흠향하소서.”43)
대부분의 민간신앙은 집안의 안녕과 평화를 기원하는 것이었으며, 위의 류형업의 기록에서도 같은 맥락을 보이고 있다. 한편, 면담자는 조왕f22제에 대해 좀 더 구체적으로 다음과 같이 설명하고 있다.
“집에 조왕제를 지낼 때는 채소반찬을 하고 밥을 지어서 뒤안(뒤아지 돌: 뒤안의 넓적한 돌), 장꼬방(장독대), 대문간, 곳간(광)에 음식을 잘 차려놓고 절을 하고 소원을 빌었다. 시할머니, 시어머니는 고사를 꼭 챙기셨다. 먹고살기 위해 한 것인데, 나는 하다가 말았다.”
말씀하신 고사 이외에 다른 고사는 없었냐는 추가 질문에 “다른 건 하지 않았다.”는 말로 운조루에서는 조왕제가 유일한 민간신앙으로 보여 진다. 조왕은 본질적으로 화신(火神)이다. 조왕신은 화신이라는 성격상 부엌의 존재가 되고, 그렇기 때문에 부녀자들의 전유물처럼 되어버린 것 중 하나이다44). 조왕제는 각 지방별로 특색이 있지만, 자녀의 공을 빈다는 점과 부엌이 중심장소가 된다는 공통점을 갖는다45).
한편, 류씨가에서는 조왕제를 지내는 장소가 뒤안, 장독대, 대문간, 곳간으로 이들 각각의 장소의 의미를 유추해 보면 뒤안은 음식을 장만하는 곳, 장독대와 곳간은 식량을 보관하는 곳, 대문간은 식량이 들어오는 곳으로 주로 실생활에 관련된 장소를 고사영역으로 하고 있다는 점에 특징을 갖는다. 더욱이 “먹고살기 위한 것”이라는 증언에서도 그 특징을 뒷받침해 준다. 집안과 자녀의 안녕에 대한 이념을 넘어 조왕제는 실용적인 면으로 활용되고 있다고 해석할 수 있다. 즉, 조왕에 대한 신앙심의(信仰心意)나 신체(神體)의 형태, 조왕의 본질이 점차 현실적으로 반영되어 왔음을 보여준다.
5. 가계계승
주택에서의 생활방식은 시대상황에 따라 함께 변화해가는 것이 어쩌면 당연하다고 볼 수 있다. 대가족을 거느리며 230년의 역사를 간직해 온 운조루도 예외는 아니었다. 현재 이곳에는 면담자인 이길순 할머니와 그의 장남만이 집을 지키며 대를 이어가고 있다. 특히, 면담자는 앞에서도 밝히고 있듯이 시대 흐름에 따른 생활의 방식이 변화해 가는 것에 순응하였지만, 운조루의 대를 잇는 것에 대해서는 다음과 같이 말하고 있다.
“나는 3남 2녀를 두었다. 딸들은 모두 남편 따라 출가외인이고, 큰 아들은 여기서 같이 살고, 둘째와 막내는 우리집 인근에 살고 있다. (집이 넓은데 차남과 삼남이 이곳에 들어와 살 생각은 하고 있지 않은가 라는 질문에) 이제는 그런 생각을 하면 안되지, 밖에서 꾸준히 살아 나가야지. (큰 아드님께서 몸이 좋지 않은 걸로 알고 있는데 그럼 나중에 누가 관리하는가 라는 추가 질문에) 그렇다. 우리 큰 아들이 몸이 안 좋아 관리하기 힘들다. 하지만 큰손자(큰 아들의 장남)가 할 거 같다. 큰아들 큰손자가 이곳을 지키고 다른 놈들은 내 보내고….”
유교의식에 따른 전통주거에서 가계계승은 가장은 사랑채의 사랑방을 점하고, 대를 이을 장자는 사랑방의 하위 공간에서 기거하는 것이 원칙이었다46)<Figure 4>. 그러나 위의 증언에서도 포착되듯이 사회 변화에 따른 유교의식은 명맥만 유지된 채 형태만 남겨지고 방식에 있어서는 독자적으로 형성되어갔다. 즉 류제양과 류형업의 시대와 같은 순차적인 장소의 점유로 인한 가계의 승계가 아닌, 시대상황에 따라 나름의 방식대로 운조루를 유지해온 것으로 보여 진다. 더욱이 전장의「2. 취침장소」에서도 말하고 있듯이 시아버지(류증교)가 돌아가시고, 가계계승의 상속자인 남편(류종숙)은 사랑채에 기거를 하지 않은 채, 운조루의 가계를 경영하였다는 점에서도 같은 맥락으로 이해할 수 있다.
V. 결 론
본 연구는 운조루의 가내문서인 『운조루의 생활일기』가 쓰여진 이후의 생활을 거주자 측면에서 전통생활의 방식이 오늘날 어떻게 변화해 왔으며, 그 변화에 따른 장소적 의미와 생활의 행태가 어떻게 달라져 왔는지를 현재 운조루의 9대 종부인 이길순 할머니와의 면담을 통해 밝힐 수 있었다. 전통주택에서의 생활은 유교와 성리학을 기반으로 한 장유유서, 가부장제, 부부유별 등에 의해서 가내질서가 형성되고 이용되어 왔다. 하지만, 사회변화에 따라 삶의 방식이 달라지고, 거주의 방식도 변해간다. 본 연구는 이러한 사실을 운조루의 구체적인 생활의 장으로 부터 확인하려고 한 것이다. 즉, 규범과 이념이 아닌, 운조루에 거주하는 실제 인간의 생활의 모습으로부터 거주의 당면을 밝힌 결과 아래의 <Table 1>과 같은 생활유형별 특징을 읽어낼 수 있었다.
Table 1.
List of Variables
먼저, 류씨가의 식사공간은 연장자 중심의 유교원리를 따랐다. 취침장소에 있어서는 이념보다 실리를 추구하게 되며, 그 대상이 사랑채가 되었다. 특히, 사랑채는 사회와 연결되는 장소였으며, 그곳에서의 기거는 사회적 참여를 의미하였다. 의례장소에 있어서 운조루는 유교적 원리보다 생활의 편의를 우선시 하였다. 제사의 중심공간이 정침에서 대청으로 바뀌게 되며, 결국 중심이라는 상징성은 생활의 편의라는 의미로 변해갔다. 민간신앙에 있어서는 주로 조왕신을 섬겼으며, 실생활에 관련된 장소를 고사영역으로 하여 이를 종교적 의미가 아닌, 실용적으로 해석하였다. 마지막으로, 시대변화에 따른 생활의 방식의 변화에 순응하면서도 가계계승에 있어서는 전통을 고수하였다. 그러나 형식에 있어서는 유교의 명맥만 유지한 채 형태만 남겨지고 방식은 독자적으로 변해갔다.
본 연구를 수행함에 있어, 면담 대상자가 여성이라는 점에서 주로 여성의 입장만을 다루고 있다는 것에 연구의 한계를 갖는다는 점을 명기해 두고 싶다. 그럼에도 불구하고, 이길순 할머니를 면담 대상자로 선정한 이유는 류제양과 류형업의 시대 이후의 가장 빠른 연장자라는 점과 근현대의 시대를 살았던 인물로 당시 운조루의 생활을 복원하는데 신뢰할 수 있기 때문이다.







