I. 서 론
1. 연구의 배경 및 목적
세계 각국에서 아동친화적인 도시공간의 조성과 함께 아동의 놀 권리 회복에 대한 논의가 활발히 이루어지고 있는 가운데 국내 정책에서도 이는 주요한 현안이 되고 있다. 특히 도시건축 분야에서 아동의 놀 권리는 놀이공간의 권리로 해석될 수 있는데 아동은 근린을 돌아다니며 다양한 공간(가로, 녹지, 공원)을 안전하고 자유롭게 즐길 수 있는 권리가 있다(Shackell et al., 2008)는 것을 의미한다. 따라서 아동친화적인 공간을 조성하기 위해서는 단편적인 공간에 대한 접근을 넘어 그 권리에 대한 이해를 기반으로 근린주거지 전반을 아동의 놀이공간 대상으로 접근하는 시도가 필요하다.
근린주거지에서의 아동의 놀이를 주제로 한 선행연구들은 근린주거지의 외부공간이 가지는 가치에 대해 의미 있는 연구결과를 도출하여 왔다. 이 중 Min(1996), Kim, Woo, and Ha(2006), Kim and Cho(2015), Park and Lee(2016), Park. H, Park. J., and Park. S.(2016) 등의 연구는 일반적인 놀이터에 한정하지 않고 근린주거지 외부공간 전반을 아동의 놀이공간으로 인식하고 접근하였다는 점에서 의미가 있으며, 아동친화적인 근린주거지를 이해하는데 중요한 단서들을 준다. 하지만 아직까지 대부분의 연구는 아동행태조사에 의존하기 때문에 조사의 물리적 범위가 단일 대상지에 한정되어 있고, 또 조사대상지 대부분이 아파트 단지와 같은 계획된 고층 주거지거나 혹은 북촌과 같은 특수한 주거 유형에 국한되어 있어, 보다 보편적인 계획방향을 도출하기 위해서는 조사대상지로서 근린주거지의 유형을 보다 세분화하거나 구체화할 필요가 있다.
또 최근의 연구결과를 보면 서울시의 주거지의 아동 놀이환경 현황 및 놀이환경에 대한 주민 만족도가 지역과 주택유형에 따라 다른 것을 알 수 있는데(Eun and Lee.. 2019; Park et al, 2019) 이러한 상황은 아동의 놀이를 지원하는 근린주거지의 물리적 환경이 다르며 상황과 개선 방안도 다를 수 있음을 의미한다. 서로 다른 근린주거지의 놀이환경 실태를 진단하고 이를 토대로 개선방안을 논의하는 것은 지역사회에 형평성 있는 놀이환경을 제공하여 아동의 놀 권리를 보장한다는 측면에서 의미가 있다.
따라서 본 연구는 주거지유형이 상이한 4개 근린주거지의 놀이환경을 진단함으로써 아동의 놀 권리 보장을 위한 물리적 기반으로서 지역밀착형 놀이환경 개선방안을 도출하는 것을 목적하며, 궁극적으로 아동의 바깥놀이 활성화를 촉진할 수 있는 근린주거지 조성계획의 시사점을 제시하는데 의미를 갖는다.
2. 연구의 내용 및 방법
본 연구의 주요 내용은 다음과 같다. 2장에서는 선행연구에서 밝혀진 아동 놀이와 근린주거지 외부공간의 역할 및 아동 놀이를 지원하는 근린주거지 외부공간의 현황과 특성을 고찰하고, 이를 토대로 본 연구를 위한 근린의 놀이환경 및 놀이공간의 범위를 도출한다. 3장에서는 주거지 특성이 다른 4개 근린주거지의 선정과정 및 조사 내용을 서술한다. 4장에서는 GIS, 온라인 지도, 현장조사를 통해 조사한 조사대상지의 놀이환경 현황을 분석하고, 그 내용을 토대로 아동 놀이 활성화를 위한 놀이환경 개선 방안을 도출한다. 5장에서는 본 연구의 시사점 및 한계를 제시한다.
II. 이론적 고찰
1. 아동 놀이와 근린주거지 외부공간의 역할
아동복지법에서는 UN아동권리협약의 기준에 따라 아동을 만18세 미만으로 규정하는데, 만18세 미만의 아동 중에서도 만6-12세의 학령기 아동은 주로 보행으로 이동이 가능한 근린의 범위에서 많은 시간을 보낸다. 이들은 근린 내 공간을 주요 활동 장소로 이용하는데 활동의 대부분은 놀이의 형태를 띤다. 따라서 근린의 외부공간은 아동 중에서도 학령기의 초등학생 아동이 많은 시간을 보내며 놀이를 하는 중요한 공간이라고 할 수 있다(Park & Lee, 2016).
초등학생 아동이 근린에서 보내는 일상의 중심에는 학교라는 공간이 존재한다. 초등학교를 중심으로 형성되는 일정 범위의 근린은 아동이 매일 경험하고 놀이를 하는 기본적 단위로(Park & Lee, 2016; Kim & Cho, 2015), 학교를 중심으로 아동이 걸어서 이동할 수 있는 공간적 범위에 존재하는 모든 외부공간은 아동이 선택을 해서 놀이공간으로 이용할 수 있는 가능성을 가지고 있다(Shackell et al., 2008; Handy, Cao and Mokhtarian, 2008; Anthamatten, Wee and Korris, 2013). 놀이가 가지는 예측불가능성, 무목적성, 자유로움을 고려한다면 근린의 외부공간에서 일어나는 아동의 활동 대부분은 놀이라고 말할 수 있다. 즉, 친구와 이야기를 하며 걷기, 자전거를 타기, 그냥 돌아다니는 행위 등조차 아동에게는 단순한 이동이 아닌 놀이가 될 수 있다. 이러한 측면에서 아동의 활발히 놀이를 지원하기 위해서는 아동이 동네 어디든 자유롭게 돌아다니면서 스스로 하고 싶은 놀이와 내용을 선택할 수 있어야 하며, 따라서 아동 놀이에 친화적인 근린환경을 조성하기 위해서는 놀이환경 조성의 범위를 학교를 중심으로한 근린주거지 외부공간 전반으로 확대할 필요가 있다.
2. 아동 놀이를 지원하는 근린주거지 외부공간과 특성
근린 주거지 내 아동의 외부활동 및 바깥놀이 장소와 이용행태를 연구한 선행연구에서 밝혀진 아동 놀이를 지원하는 근린주거지 외부공간의 현황과 특성은 다음과 같다<Table 1>.
Table 1.
Analysis of Previous Research: Outdoor Playspace
| Reference no. | Site | Type of residential neighborhood | Range and characteristic of play space | |||
|---|---|---|---|---|---|---|
| Neighborhood outdoor Space | Play space around school | Route to school | Linkage between play spaces | |||
| 2 | Hwagok | Low-rise housings | -Neighborhood park, children park, outdoor space of public facility, parking-lot | -Proximity to school | -Adjacent open space | |
| 5 | Inheon | Low-rise housings+apartments | -Park, playground, children park | -Linkage between complexes -Linkage between apartment complex and public space | ||
| Yangjae | Low-rise housings | -Neighborhood park, playground | -Proximity to school | |||
| 11 | Bukchon | Historic preservation | -Neighborhood park, outdoor space of public facility, alleyway | -Proximity to school | -Alleyway safe for vehicles | |
| 14 | Eunpyung | New-town | -Neighborhood park, playground, schoolyard, rest area | -Car-free pedestrian lane | -Linkage between play spaces in complexes -Linkage between complexes | |
| 15 | Jamsil | Large scale apartment complex | -Playground, exercise space, pedestrian lane, landscape space | -Proximity to school | -Car-free pedestrian lane | |
첫째, 근린의 외부공간의 확보는 아동의 놀이성 증진에 주요한 사안이다. 또한, 지정놀이공간 뿐 아니라 다양한 크기의 외부공간이 놀이공간으로 이용될 수 있다. 선행연구의 놀이공간이용실태 조사 결과를 보면 특히 근린공원의 경우 아동 전용의 놀이장소는 아니지만, 근린주거지 내 주요한 외부공간으로 아동 놀이장소로 이용될 가능성이 높다. 위치적으로 봤을 때 학교에서 가깝고 접근이 용이한 공원이 근린 안에 있다면, 놀이장소로 이용될 가능성이 높다(Reference No. 2, 5, 11, 14).
둘째, 많은 연구들이 아동의 놀이장소로서 학교 주변 놀이공간의 역할을 강조하였다. 선행연구에서는 대상지의 주거유형에 상관없이 하굣길에 대부분의 놀이가 발생을 하며 또, 놀이터와 같은 지정된 장소 뿐 아니라 비지정 장소인 골목길, 인접 공원 등 학교와 가까운 다양한 장소에서 놀이가 발생할 가능성이 있음을 언급하였다. 이는 학교 주변은 아동이 경험하는 가장 기본적인 보행공간이자 놀이공간으로 집에서 가까운 외부공간 보다는 친구와 접촉할 기회가 많은 학교 주변 외부공간을 아이들이 더 선호하는 것에 기인한다고 할 수 있다(Reference No. 2, 5, 11, 15).
셋째, 아동이 학교를 오가며 이용하는 길은 놀이장소의 접근성 기능 뿐 아니라 가로가 형성하는 공간 자체가 비지정 놀이공간의 역할을 한다. 또 가로에서 만나게 되는 건축물 외부공간, 쉼터도 놀이공간이 될 수 있다. 아동이 통학 시 이용하는 보행전용로, 넓은 폭의 보도 혹은 넓은 공간과 인접한 보도는 사회적 활동으로 이어질 수 있는 머무름이 발생하거나 소극적인 놀이 활동이 발생할 가능성이 높으므로 이러한 가로공간이 근린이나 학교 주변에 충분히 존재하고, 안전하고 활동에 편안한 공간이라면 아동의 놀이를 활성화할 가능성이 높다(Reference No. 2, 11, 14, 15).
넷째, 놀이공간의 연계성이 좋다면, 아동들은 놀이공간을 경유하며 놀이를 하는 것으로 나타나는데 대규모 아파트 단지의 경우 단지 내 놀이터를 연계하며 놀이하기가 용이하고, 소규모 아파트가 밀집된 경우에도 아파트와 아파트 사이가 연결되어 있을 경우 서로 다른 단지를 경유하며 놀이를 하는 것으로 나타났다. 즉, 아동의 놀이장소로 역할 할 수 있는 다양한 성격의 외부공간이 이동하기 좋은 가로, 놀기 좋은 가로로 연결이 된다면 아동의 놀이성은 극대화 된다고 할 수 있다(Reference No. 5, 14).
III. 조사 및 분석의 방법
1. 조사대상 및 방법
조사대상지를 선정하는데 있어서 권역생활권을 서남권1)으로 제한하였다. 본 연구는 아동 놀이환경에 있어 주거지유형 간의 차이에 주목하기 위해 하나의 권역을 선정함으로써 지역 간 차이를 한정하였다. 서울시 생활권역별 아동 놀이환경 만족도를 조사한 선행연구 결과에 의하면 서남권의 근린주거지의 놀이환경에 대한 만족도는 전체 평균 이하로, 타 생활권에 비해서도 낮게 나타났다(Park et al., 2019).2) 이에 본 연구는 주거지가 제공하는 아동 놀이환경의 지역 간 형평성 강화 측면에서 상대적으로 만족도가 낮은 서남권 지역을 대상으로 하고, 권역 내에서 서로 다른 주거지유형을 선정하여 근린주거지의 놀이환경 실태를 주거지유형별로 진단하고 개선방안을 제시하고자 한다.
조사대상지의 선정 기준은 다음과 같다. 첫째, 행정동3)을 중심으로 초등학생 인구수 및 전체인구수 대비 초등학생 인구수 비율을 근거로 행정동을 선정하였다. 서남권 행정동별 초등학생 인구수를 추출한 후 초등학생 비율이 전체 인구 대비 5% 이상이며, 인구수가 2,000명 이상인 행정동을 선택하였다.4) 둘째, 행정동별로 아파트 비율을 검토하였다. 주거지유형을 분류하는데 있어서 도시조직을 기반하여 조성된 저층주거(단독, 다가구, 다세대, 연립주택과 같은 5층 이하의 주거)와 아파트 비율이 결정적인 요인이 될 것이라 판단하였다. 행정동별로 아파트 비율은 차이가 있는데, 이를 수치화화여 차이가 있는 행정동을 선택하였으며, 특정 자치구에 집중되지 않도록 하였다. 셋째, 조사의 범위를 근린주거지로 한정하기 위해 행정동 내에서 하나의 통학구역을 선택하였다. 통상적으로 근린환경 분석의 범위는 기준시설로부터 반경 500 m 내이지만, 초등학생 아동의 활동을 분석하기에는 통학구역이 더 적합하다고 판단하여 본 연구에서는 앞서 추출한 행정동에서 초등학교 1개소를 선정한 후 학교를 중심으로 한 통학구역8)을 검토하였다. 행정동 내에 있는 3~4개의 통학구역을 검토하여 아파트 단지 면적 비율로 비교를 하며 대상주거지를 선정하였다.
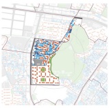
이와 같은 기준으로 선정된 주거지 4개 유형은 1)저층밀집지, 2) 주거혼합지, 3) 아파트단지밀집지, 4) 대규모아파트단지로 구분된다. ‘저층밀집지’는 대상지 면적 중 18%가 아파트 단지로 아파트단지에 비해 저층주거가 많은 주거지를 의미한다. ‘주거혼합지’는 31%가 아파트 단지로 기타 영역에는 저층주거와 독립형아파트가 혼재되어 있다. ‘아파트단지밀집지’는 최소169세대부터 최고 1,095세대까지 다양한 규모의 아파트단지가 밀집된 지역이다. ‘대규모아파트단지’는 도시계획으로 조성된 단지 군을 말한다. 이러한 4개 주거지는 서로 다른 차이를 갖고 있어 본 연구가 주거지 유형별 놀이환경의 개선점을 제시하는데 적합한 사례라고 할 수 있다. 4개 대상지의 개요는 <Table 2>와 같다. 조사는 GIS 분석, 온라인 지도 조사 및 현장 조사를 통해 이루어졌고, 조사시기는 2017년 9-10월, 2019년 3-6월이다.
Table 2.
Overview of sites
| School no. | 1. K-Primary School | 2. N-Primary School | 3. S-Primary School | 4. W-Primary School | |
|---|---|---|---|---|---|
![]() | ![]() | ![]() | ![]() | ![]() | |
![]() | ![]() | ![]() | ![]() | ![]() | |
| Location | Sangdo1-dong, Dongjak-gu | Naebalsan-dong, Gangseo-gu | Sindorim-dong, Guro-gu | Mok5-dong, Yangcheon-gu | |
| School | Year of completion | 1945 | 1983 | 1982 | 1985 |
| Number of children | 887 | 1,587 | 1,262 | 1,192 | |
| Children/Total population5) | 2,187/5% | 3,222/7% | 2,372/6% | 3,954/9% | |
| Apartment/Total housingChildren/Total population6) | 64% | 73% | 95% | 100% | |
| Ratio of apartment complex7) | 18% | 31% | 50% | 81% | |
| Type of residential neighborhood | Low-rise residential dense area | Residential mixed area | Apartment complex dense area | Large scale apartment complex | |
2. 조사내용
선행연구 고찰을 통해 도출된 아동 놀이를 지원하는 근린공간의 범위인 근린 외부공간, 학교주변 놀이공간, 통학로로 진단의 범위를 설정하였으며, 현황 조사를 위한 항목은 <Table 3>과 같다.
Table 3.
Contents of investigation
2장에서 언급한 행태조사 기반의 연구 및 학교 중심의 근린환경 진단도구를 개발한 Kim and Cho (2015)의 연구, 놀이환경 평가항목을 도출한 Park. S., Kim, and Park. J. (2016)의 연구를 토대로 조사항목을 도출하였으며, GIS, 지도분석 및 현장조사를 통해 진단이 가능한 항목으로 추출하였다.
IV. 조사 및 분석결과
1. 대상지별 놀이환경의 현황과 실태
대상지별 놀이환경 현황 조사결과는 다음과 같다<Table 4, 5>.
Table 4.
Conditions of Neighborhoods-1
Table 5.
Conditions of Neighborhoods-2
1) 대상지1: 저층밀집지
대상지1은 근린 내 저층주거지의 비율이 가장 높은 지역이다. 외부공간의 분포를 보면 놀이공간이 일부 영역에만 편중되어 있다. 근린 내 아파트가 위치하는 구역에 단지 내 놀이터가 위치하고 있지만, 많은 면적을 차지하는 저층주거지 영역으로는 놀이공간이 매우 적기 때문에 전체적으로 아동전용놀이공간의 수는 적다고 판단된다. 근린공원 이용가능성을 보면 통학구역과 인접하여 규모가 큰 공원이 위치하고 있다는 점에서 활용가능성이 있다.
학교주변 놀이공간을 보면 가장 가까운 놀이공간은 도보로 60 m 거리에 위치하며 학교 정문에서는 접근하기 좋은 위치라는 점에서 긍정적이지만, 보차분리가 되지 않은 길이라 편의성 및 안정성이 좋지 않다.
통학로는 저층주거지와 근린생활시설에 면하고 있다. 대부분 보차분리가 잘 되어 있지 않으며, 일부 구간은 색으로만 구분이 되어 있다. 학교와 인접한 가로의 경우도 크게 다르지 않아, 보도가 매우 좁거나 경사지인 관계로 옹벽처리가 되어 있다.
2) 대상지2: 주거혼합지
대상지2는 학교를 중심으로 저층주거지와 아파트단지로 나누어진다. 외부공간의 양은 적지 않지만 분포를 보면 학교 남쪽 단지 내에는 놀이터뿐 아니라 공공공원이 중앙부에 위치하고 있어 놀이의 자원이 풍부하나 북쪽 저층주거지 영역에는 전무하다. 근린공원이 통학구역과 인접하여 위치하고 있어서 활용이 가능하다.
학교주변 놀이공간을 보면 학교와 가장 가까운 놀이공간은 단지 내 놀이터들로 아파트 출입구와 인접하여 하굣길과 연계하여 이용하기 좋은 위치이지만, 담장으로 인해 우회해서 접근해야 한다.
학교 통학로는 저층주거지, 근린생활시설에 면해있으며, 아파트 담장을 따라 조성되어 있다. 기본적으로 보도의 폭이 2 m 이하로 좁고, 일부 보차분리가 되어 있지 않은 길이 있다. 학교와 인접한 가로는 학교의 담장, 아파트 담장, 옹벽에 면해 있고, 정문과 후문에는 여유공간은 없다.
3) 대상지3: 아파트단지밀집지
대상지3은 대상지 내 다양한 규모의 아파트 단지가 밀집되어 있다. 학교의 서쪽은 비주거지이고, 동쪽으로 소규모 아파트 단지들이 집중적으로 위치하고 있다. 아파트 단지 내 놀이공간이 많은 관계로 4개 대상지 중 놀이공간의 개수가 가장 많다.
학교주변 놀이공간을 보면 학교 주변으로 아파트 단지 놀이터들이 가까이 위치하고 있으며 개소도 6개로 4개 대상지 중 가장 많다. 담장 사이 작은 문을 이용하면 거리가 그리 멀지는 않으나, 주출입구까지는 아파트 담장을 따라 조성된 좁은 보도를 따라 접근을 하게 되어있고 우회하는 거리가 있어 접근이 용이하지는 않다.
통학로의 경우 대부분의 아동은 단지 내 길, 단지 사이길로 통학을 하게 된다. 학교 담장과 아파트 담장에 면하고 있고, 보차분리는 되어 있으나, 보도폭은 2 m 이하로 좁다는 점이 가장 문제라고 판단된다.
2. 대상지별 놀이환경 개선방안과 전략
실태조사를 토대로 대상지별 개선방안을 제시하고 개선방안을 종합하여 주거지유형에 적합한 주요 전략을 제안한다<Table 6>.
Table 6.
Synthesis of Conditions and Improvements
1) 대상지1: 저층밀집지
① 개선방안
놀이공간이 부족한 저층주거지 밀집지인 대상지1의 경우 놀이공간의 확보가 가장 우선시되는 지역이다. 놀이공간을 확보하기 위해 유휴공간을 찾아 개발하는 사업이 진행되는 것이 가장 이상적이다. 하지만 자연발생적 주거지 구조에서 유휴공간의 확보가 쉽지 않은 상황에서 놀이가 가능한 외부공간을 찾는다면 도시계획시설을 활용하여 놀이공간을 확보하는 방안이 효과적이라 판단한다.9) 이 중학교와 공원을 아동의 바깥놀이와 연계하여 개선하는 방안이 중점적으로 논의될 필요가 있다. 학교는 아동 활동의 중심지로 근린 내에서 가지는 의미가 크다. 학교 운동장은 대부분 평일 낮에 이용되는 공간이지만, 더 많은 시간대에 다양한 용도로 활용될 수 있는 잠재력을 가지고 있는 공간이다(Krishnamurthy, 2019). 놀이공간이 부족하고 구조적으로 확보가 어려운 저층주거지 밀집지에서 학교의 공간이 주중 뿐 아니라 주말에도 이용될 수 있는 다목적 공간이 되고 외부공간이 놀이장소로 이용이 된다면 활용도가 높을 것이다. 또한 대상지1의 경우 학교와 인접하여 큰 공원이 위치하고 있다. 규모가 큰 근린공원의 경우 초입부분에 아동 놀이공간을 조성하여 연계성을 높일 것을 제안한다.
학교주변 놀이공간을 보면, 학교에서 60 m 거리에 놀이공간이 위치하고 있고 정문에서 접근하기 좋은 위치이다. 하지만, 매우 가까이 위치함에도 불구하고 접근로는 보차분리도 안 되어 있으며 시인성도 매우 낮아 위험하다. 어린이공원 조성 시 접근로는 놀이공간과 통합적으로 개선되어 이용률을 높일 필요가 있다.
통학로는 저층주거지와 근린생활시설에 면하고 있는데 보차분리가 제대로 되어 있지 않고, 보행로가 있다 해도 그 폭이 매우 좁고 여유공간이 부족하다. 저층주거지 밀집지의 가로환경정비는 아동친화적인 근린환경 조성에 있어서도 매우 중요한 문제이다. 특히 학교 주변의 통학로는 학교 담장 및 옹벽구간으로 인해 통학로를 더욱 좁고 위험하게 인지하게 한다. 학교 주변의 통학로 문제를 해결하기 위해서는 학교 경계부의 개선을 통해 경계의 영역이 공공공간으로 작동하는 방안이 필요하다.
② 전략: 학교공간 활용 거점공간 조성 및 연계
저층주거지가 밀집하고 놀이공간이 양적으로 부족하며 안전한 통학로 구축의 어려움이 많은 대상지1의 경우 학교공간의 활용을 적극적으로 검토할 필요가 있다. 놀이공간을 분산시키기보다 학교 외부공간-학교 경계-가로-인근 어린이공원을 통합 개선하여 거점공간을 조성하는 것이 가장 효과적일 것이라 판단한다.
2) 대상지2: 주거혼합지
① 개선방안
학교를 중심으로 저층주거지와 아파트가 양분된 대상지2의 경우 놀이공간이 아파트와 같은 일부 지역에 편중되어 있고, 공공공원마저도 아파트단지의 중심부에 위치한다. 따라서 저층주거지 영역의 놀이공간이 부족한 것이 문제점으로 나타난다. 대상지1에서도 언급하였듯이 저층 주거지의 놀이공간 부족 문제 해결방안과 마찬가지로 학교를 중심으로 한 놀이공간의 조성과 인접한 큰 공원을 놀이공간으로 활용하는 방안이 주요하다고 판단되며, 인근 아파트 놀이공간을 아동들이 편하게 이용할 수 있도록 개방하는 방법도 고려할 수 있다.
학교와 인접한 놀이공간은 아파트 단지 내에 위치한 놀이공간으로 직선적 거리로는 가깝지만 실제 접근을 하기 위해서는 담장을 돌아 우회해야 한다. 아파트는 사유화된 장소라는 인식이 강해 접근이 쉽지 않은데 접근경로 자체도 우회해야 하기 때문에 놀이공간의 접근성이 더욱 떨어진다고 할 수 있다.
이러한 아파트 단지의 경계부 문제는 통학로의 좁은 보행로와도 직결된다. 아파트 단지의 담장과 면한 길은 보행로가 확보되어 있지 않으며 횡단보도를 건너야 진입할 수 있다. 학교와 인접한 아파트 단지의 외부공간과 경계를 아동의 진입이 용이한 열린 공간으로 조성하는 것은 아동의 놀이환경 접근에 있어 중요한 문제이며 따라서 학교와 인접한 아파트는 공공에서 적극적으로 관여하여 놀이환경 조성차원에서 공공공간을 관리할 필요가 있다.
② 전략: 학교공간 활용 및 학교경계와 아파트 경계 통합개선
대상지2의 경우는 저층주거지의 놀이공간 부족을 해결하기 위해, 학교공간을 활용하며, 학교와 인접한 아파트 단지 외부공간과의 연계를 통해 놀이성을 높인다. 학교 외부공간-학교 경계-아파트 경계-아파트 진입구 놀이공간을 통합하는 놀이전략을 구축한다.
3) 대상지3: 아파트단지밀집지
① 개선방안
아파트 단지들이 모여 있는 대상지3의 경우 단지 내 놀이공간이 많은 관계로 4개 대상지 중 놀이공간의 개수가 가장 많다. 아파트 단지의 경우 법적으로 정해진 기준에 적합하도록 놀이터를 조성해야하기 때문에 아파트 단지가 모인 지역에서의 놀이공간이 충분하다는 것은 예측이 가능한 지점이다. 하지만 아파트 단지 밀집지에서도 학교주변 놀이공간으로의 접근 시 편의성 문제는 존재한다. 학교와 가장 가까운 놀이공간을 가기 위해 크게 우회하지는 않으나 좁은 보행로를 따라 다녀야 한다.
통학로 역시 보도 폭이 상당히 좁은데, 이는 단지의 경계부에 위치하는 보행로의 폭이 대부분 좁기 때문이다. 단지의 경계부가 아동이 이용하기에 용이한 폭을 확보하기 위해서는 단지 경계 영역이 공공공간으로 전환되어 아동에게 열린공간으로 조성되어야 한다.
② 전략: 아파트 간 경계 개선을 통한 놀이길 네트워크 구축
소규모 아파트 단지가 밀집되어 있는 대상지4의 경우는 경계의 문제를 해결하여 놀이길을 조성할 수 있는 가능성이 많은 주거지이다. 아파트 내 놀이자원이 많고, 가로에 인접하고 있지만 경계의 문제로 실제적인 접근은 이루어지 않으며 보도의 폭이 좁은 경우가 많다. 학교를 시작으로, 학교경계-아파트경계-아파트 진입부 놀이공간이 통합적으로 개선된다면 안전하고 유용한 놀이길이 조성될 수 있다.
4) 대상지4: 대규모아파트단지
① 개선방안
대상지4는 4개 대상지 중 문제점이 가장 적은 지역이다. 대규모 개발로 조성된 아파트 단지를 포함하고 있는 근린주거지로 단지 내에 아파트와 근린공원이 고루 분포되어 있다.
학교와 가장 가까운 놀이터는 단지 내 보행전용로와 바로 인접하고 있으며, 단지 내 주동 사이에 보행전용로가 있어 전반적인 통학로의 상황이 좋다. 다만 학교와 보행전용로, 놀이공간이 매우 인접함에도 우회하는 동선이며, 일부 횡단보도를 건너서 통학을 해야 하는 구역이 포함된다.
② 전략: 보행전용로 놀이길 네트워크 구축
대상지4는 단지를 가로지르며 학교와 인접한 보행전용로라는 좋은 놀이자원을 내포하고 있다. 학교에서의 접근성 개선과 보행전용로의 활용으로도 큰 효과를 볼 수 있을 것이라 판단한다. 보행전용로와 인접놀이공간을 중점적으로 개선하여 아동친화적인 가로를 조성한다면 아동놀이 지원성이 높아질 수 있다.
V. 결 론
본 연구의 목적은 서울시 근린주거지의 아동 놀이환경 현황을 분석하여 근린주거지 유형별로 아동 놀이를 활성화할 수 있는 개선방안과 시사점을 제안하는 것이다. 놀이환경의 균형적 개선을 목적으로 놀이환경 만족도가 낮은 서남권 내에서 주거지유형이 다른 4개 대상지를 선정하여 조사하였고, 분석 결과로 개선방안 항목 도출 및 대상지별 전략을 구축하였다. 결과적으로 주거지유형별로 문제점과 개선방안에 차이가 나타난다. 연구결과를 정리하면 다음과 같다.
첫째, 저층밀집지는 놀이공간이 절대적으로 부족하며 가로환경 역시 열악하다. 놀이공간이 부족한 근린주거지의 문제를 해결하기 위해 근린공원 및 학교를 적극적으로 활용하며 통학로의 문제를 해결하기 위해 학교의 경계부를 공공공간으로 조성할 필요가 있다. 특히, 학교는 근린주거지의 핵심공간이자 아동의 사회적 네트워크의 중심으로 놀이와 밀접한 관계를 가질 수 있다는 점에서 우선적인 개선을 제안한다.
둘째, 주거혼합지는 놀이공간이 아파트단지에 집중되어 있어 편중된 성향이 심하다. 아파트단지를 제외한 주택유형에서 거주하는 아동들이 놀이를 하기 위해서는 저층밀집지와 마찬가지로 학교를 중심으로 한 놀이공간 조성이 필요하다. 또한, 학교와 가까이 위치하는 아파트의 외부공간들과 학교를 통합적으로 개선하여 사유화된 공간이 아닌 공공의 공간으로 아동이 친구들과 쉽게 접근을 하여 함께 놀이를 할 수 있도록 개선할 것을 제안한다.
셋째, 아파트단지 밀집지는 단지 내 놀이공간은 충분하나, 놀이공간 간의 연계성이 떨어지고 놀이발생 확률이 높은 학교 주변의 가로환경이 좋지 않다. 전반적으로 아파트단지간 경계를 허물어나가면서 외부공간을 연계하는 방안이 필요하다. 학교와 아파트, 아파트와 아파트 경계부가 개선되면서 외부공간의 접근성이 좋아지고 통학로의 환경이 좋아질 것이라 판단한다.
넷째, 도시설계개념을 기반으로 조성된 대규모아파트단지는 놀이환경으로 좋은 물리적 인프라를 가지고 있다. 문제점의 해결보다는 놀이자원의 활용가능성이라는 점에 초점을 맞춘 전략이 필요하다. 보행전용로를 활용한 길놀이공간이 조성된다면 아동의 놀이성이 증진될 것이라 판단한다.
본 연구가 제시하는 시사점은 다음과 같다. 첫째, 아동의 놀이공간 조성을 위한 근린의 공간활용 전략은 주거지유형에 따라 다르게 적용되어야 한다. 같은 권역생활권 내에서도 주거지유형은 차이가 있으며, 각 유형이 내포하고 있는 문제점과 이에 대응하는 개선방안도 다를 수밖에 없다. 그러므로 공공의 놀이공간 개선전략은 단순히 놀이공간만을 대상으로 할 것이 아니라 주거지 차원에서 접근할 필요가 있다. 둘째, 학교 경계의 완화에 의한 보도폭 확보와 이를 통한 놀이공간 확충에 주목해야 한다. 대부분의 대상지에서 좁은 보도의 문제가 나타났고 특히, 학교경계부의 보도가 심각한 문제를 안고 있었다. 또한, 놀이공간이 부족한 저층주거지에서 학교 경계의 완화에 의한 외부공간의 확보는 놀이공간의 확충과 놀이효과의 극대화라는 차원에서 의미가 크다. 셋째, 소규모 아파트 단지 경계에 대한 공공의 개입이 필요하다. 특히 학교와 인접하여 아파트 정비사업이 추진되는 경우는 우선적으로 고려될 필요가 있다. 아파트단지와 면하는 길은 그 자체로 아동의 사회적 활동이 발생하는 공간이 될 수 있고, 놀이터로 접근하는 길이 될 수도 있다. 따라서 단기적으로는 단지의 경계를 허물어 놀이터로의 접근을 용이하게 할 수 있고, 장기적으로 학교 인근 주거지의 소규모 재개발 시, 인센티브제도를 통해 경계공간을 공공의 보도로 확보하고 놀이터를 개방하는 안을 재고할 수 있다. 넷째, 근린주거지 어디나 아동이 쉽게 접근하고, 놀이를 할 수 있는 환경을 조성하기 위해서는 다양한 주체간의 협업이 중요하다. 학교공간의 활용, 아파트 경계와 공공공간의 연계와 같은 개선방안들은 공공의 개입, 혹은 공공주체간의 협업을 통해서 해결될 수 있는 방안들이다. 놀이공간의 권리를 회복한다는 것은 궁극적으로 단순히 물리적인 놀이터의 이용을 늘린다는 것이 아니라 근린주거지 전반의 놀이성을 높인다는 관점을 공유하고 다양한 제도적인 방안들이 상호 간에 소통되고 논의될 필요가 있다.
본 연구는 선행연구들이 치중하였던 단일한 대상지가 아닌 일정 권역을 구성하고 있는 주거지유형을 구분하고 각각의 유형별 4개 대상지를 연구함으로써 아동 놀이활성화를 위한 근린주거지의 개선방안이 보다 보편적인 해결책으로 작동할 수 있는 방안을 모색하였다는 점에서 의의를 가진다. 하지만 연구자가 여러 대상지를 진단하는 과정에서 조사 방법의 한계로 인해 분석의 항목이 몇 개의 항목으로 한정되고 정성적 분석에 초점을 맞추었다는 점에서 한계를 가진다. 추후 후속연구를 통해 보다 근린의 범위에서 다양한 지표로 진단을 하고 논의를 전개시킴으로써 서울시 근린주거지가 아동친화적 환경으로 조성될 수 있는 구체적인 방안을 심도 있게 모색해보고자 한다.


































