I. 서 론
1. 연구의 배경 및 목적
주택의 장수명화를 위해서는 내구성을 바탕으로 가변성과 수리용이성을 갖추어야 한다. 내구성은 안전하며 성능이 장기간 유지되는 구조체의 재료적인 성질을 말하며, 구조체가 갖추어야 할 성능이다. 가변성은 생활의 다양성과 더불어 시간이 흐름에 따라 변화하는 세대구성원과 라이프 스타일 및 라이프사이클을 수용할 수 있는 성능이다. 노후화되는 주택구성 부품들의 유지관리를 쉽게 할 수 있도록 하는 것은 수리용이성이다. 이 3가지가 장수명주택의 성능을 결정하는 핵심적인 요소이다. 그러나 국내 공동주택의 현실은 기존의 일반적인 계획과 설계방법을 그대로 답습하고 있어, 장수명화를 위한 방안의 적용은 미흡하여 조기 노후화로 자원낭비를 초래하고 있다. 이러한 상황에서 정부에서는 2014년 12월 25일부터 장수명주택 인증제도를 도입하여 주택의 장수명 유도를 위한 정책을 시행하고 있으나 현재까지도 그 상황은 크게 변화하고 있지 않은 실정이다. 1,000세대 이상의 공동주택 단지는 의무적으로 장수명 주택의 일반등급을 취득하도록 하고 양호등급은 건축 비용을 절감하기 위한 연구 수행을 통한 해결방안 모색, 우수등급과 최우수 등급에 대해서는 인센티브를 통한 유도를 도모하고 있다. 그러나 2016년 12월까지 사업승인을 받은 272개 단지의 평균 인증점수는 50.5로 일반등급의 하한선인 50점을 겨우 넘는 점수에 그치고 있으며, 가변성 측면에서도 71.3%가 구조방식, 내장벽체 재료와 시공 방법 등의 최소기준만을 적용하는 4등급인 것으로 나타났다. 가변성의 주요한 요소기술의 하나인 층상배관 시스템을 적용한 사례는 없는 것으로 나타났다.
장수명 주택을 위한 세대내부의 가변성의 구현으로 물을 사용하지 않는 실(거실, 방 등)의 가변에 대해서는 국내에서 일부 실현되고 있으나, 물 사용공간의 가변은 전혀 고려되지 않고 있다. 물 사용공간은 공법·기술적인 문제로 가변이 거의 불가능했지만, 새로운 공법의 적용을 통해 가변 가능한 다양한 공간 구성은 가능해진다.
이와 더불어 최근 사회문제로 대두되고 있는 층간의 문제인 화장실의 소음과 냄새 확산의 저감을 위해서 정부에서는 급수·배수용 배관에 기준을 강화하고 배기통의 실내 냄새 역류를 방지할 수 있도록 하는 구조로 의무화하고 있다.
이러한 문제를 해결할 수 있는 대안이 화장실의 층상배관 시스템이다. 층상배관시스템을 기반으로 한 화장실의 가변성 기술이 확립되면 공간구성이 원활해진다.
이러한 배경에서 본 연구는 화장실의 당해층 배관 시스템에 대한 국내의 기술을 분석하고 국내실정에서 화장실의 가변용이성을 검토함으로써 장수명 공동주택의 계획을 위한 기초자료로 제공하는 것을 목적으로 한다.
2. 연구의 내용 및 방법
연구의 범위는 장수명 공동주택을 위한 화장실의 가변성에 대한 방향을 기술하고, 국내 실정에 맞는 화장실의 가변을 위해 필요한 조건을 검토하고 방향을 제시하는 것으로 한정한다. 전 층 2중바닥시스템을 적용하면 화장실 배치의 자유도와 함께 가변용이성은 획기적으로 향상될 수 있으나, 층고 증가로 인하여 경제성이 급격하게 감소하여 적용 현실성이 떨어지는 것으로 판단하여 본 연구에서는 제외하였다.
이러한 전제에서 세부연구내용은 다음과 같다. 첫째, 국내의 층상배관 방식의 화장실을 중심으로 변화와 기술을 분석한다. 둘째, 기존 층상배관 화장실 시스템의 가변측면의 개선방안을 제시한다. 셋째, 장수명 주택 실증평면사례를 대상으로 화장실의 가변 용이성에 대하여 검토하고, 계획방향을 제안한다.
연구방법은 문헌조사와 층상배관업체의 방문을 통한 심층인터뷰와 기술조사를 실시하며, 기술조사결과를 종합적으로 분석정리하고, 평면도를 통하여 가변용이성을 검토하고자 한다.
기술 사례조사 부분에서는 층상배관에 대한 연구개발을 수행하고 그 결과를 현장 적용하여 실용화한 업체로 한정하여 3곳을 선정하여 2016년 6~9월 차례로 방문하여 실시한다.
II. 장수명 주택의 가변성
1. 장수명 주택과 가변성
주택법 제2조 23호에서는 “장수명 주택이란 구조적으로 오랫동안 유지·관리될 수 있는 내구성을 갖추고, 입주자의 필요에 따라 내부 구조를 쉽게 변경할 수 있는 가변성과 수리 용이성 등이 우수한 주택을 말한다”로 정의하고 있다. 장수명 주택 구성의 주요 핵심성능요소를 내구성, 가변성, 수리용이성(유지관리용이성)으로 보고 있으며, 가변성은 내부 구조를 쉽게 변경할 수 있는 장수명 주택 핵심성능의 하나가 되고 있다.
주택법 38조(장수명 주택의 건설기준 및 인증제도 등)에 근거를 둔 국토교통부 고시 제 2016-822호 ‘장수명 주택 건설·인증기준’ 제2조 3호에서 “가변성이란 건축물의 구조적인 안정성을 유지하는 범위 내에서 사회적인 변화, 기술변화, 세대변화, 가족구성변화 및 다양성을 수용할 수 있는 공간 성능을 말하며, 서포트의 구조방식과 층고, 내장벽체의 재료와 설치구법, 부엌과 욕실·화장실 배관 구법과 이동, 2중바닥, 외벽 등에 대한 공간 활용성이 높은 성능을 말한다’로 정의하고 있다.
또한, 동 고시 별표1 ‘장수명 주택 인증기준’에서 가변성을 평가하는 기준에서 평가항목은 서포트는 구조방식과 층고를, 인필은 벽체재료, 가변용이성 구법, 욕실/화장실의 당해층(층상) 배관, 건식2중바닥, 욕실/화장실 이동, 부엌 이동, 외벽벽체의 공업화 제품 및 교체 가능한 공법을 규정하고 있다. 서포트의 구조방식, 인필의 벽체재료 및 시공방법(세대내부 중 내부벽량 건식벽체 비율, 가변용이성 구법) 세 가지 항목은 필수 항목이다. 이 가운데서 화장실/욕실과 관련된 항목은 가변성의 필수 항목은 아니나, 공법의 발전과 기술개발 등으로 가변성을 고려할 수 있는 새로운 중요한 요소로 위치하고 있다.
우리나라에서 일반적으로 공급되고 있는 가변형 주택은 장수명 주택에서 가변성 개념만 일부 적용한 하위개념이다. 가변형 주택에서는 물을 사용하지 않는 방과 거실, 방과 부엌, 작은 방들 사이의 칸막이벽체의 설치와 제거를 분양 시에 선택하도록 하고 있는 정도에 그치고 있다. 즉, 물을 사용하지 않은 공간(dry zone)의 일부 선택에 한정되어 있으며, 물을 사용하는 공간(wet zone)의 가변은 없다.
2. 화장실 시스템과 공간의 가변성
화장실은 공동주택에서 물 사용에 따른 방수와 배수구배 확보, 각종 위생도기와 수납공간, 슬래브와의 관계, 급수 및 오·배수 배관과 환기설비, 전기설비 등의 건축과 각종설비의 가장 많은 공종이 집합된 기능공간이며, 이를 지원하는 공용수직설비수납공간(Pipe Shaft; 이하 PS)과 연계되어 있기 때문에 위치이동이나 다양한 공간 구성 등의 가변이 쉽지 않다.
더욱이 우리나라 공동주택에서는 층하배관방식의 일반화에 따른 설계관행, 공법과 기술 등의 한계로 주택내 공간의 가변성을 고려하지 않은 고정공간으로 생각되어 왔다. 즉, 국내 공동주택 화장실은 위층 세대의 화장실 오·배수 배관이 아래층 세대 화장실의 천장 속에 배치되어 있는 층하배관시스템이 일반화되어 있기 때문에 동일한 크기와 동일한 위치에 동일한 형태로 고정된 공간으로 존재할 수밖에 없었다. 이러한 점 때문에 층하배관시스템은 근본적으로 가변성을 기대할 수 없다.
또한 가변과는 별도로 층하배관 시스템의 화장실은 자기세대의 생활과 무관한 오·배수 소음 문제, 고장 시 누수에 의한 피해와 유지관리의 번거로움 등으로 많은 민원의 대상이 되고 있다.
이에 대한 제도적인 대안이 소음과 냄새방지를 위한 기준이며, 기술적인 대안으로 개발된 것이 층상배관시스템이다.
이러한 점을 감안하면 화장실의 가변조건의 첫 번째가 층상배관 시스템의 적용이다.
일반적인 층상배관 시스템은 소음을 저감 하고, 유지관리가 당해세대에서 가능해졌으나, 배관 공간 및 배수구배 확보를 위해 슬래브다운(slab down)해야 하거나 슬래브 상부의 일부를 삭감하기 때문에 위치이동, 형태 변경은 세대 내 방이나 거실, 부엌 등 일반 공간과 바닥 슬래브의 조건이 다르기 때문에 많은 공사와 공정을 수반해야할 뿐만 아니라 이동자체가 거의 불가능하다. 즉, 화장실에서 물을 사용하는 설비와 공법으로 인해 다른 실들과 다른 단면을 가지게 되어 가변이나 리모델링 시 공간의 재구성을 위한 화장실 위치의 변경이 어려운 단점을 가지고 있다. 입주 후 가변의 용이성을 고려하면 wet zone과 dry zone은 동일한 슬래브 조건을 가지는 것이 두 번째 조건이다.
또한 배관의 연결과 관련하여 PS와 인접성이 중요한 요소가 된다. 공용배관에서 분기되는 전용 수평 오·배수 배관의 구배(1/50~1/100)를 확보하기 위해서 필수적이다. 이외의 나머지는 일반적인 화장실과 동일한 조건으로 해결가능하다.
이러한 세 가지 필수조건 위에서 화장실 가변성의 방향은 위치, 형태, 크기의 변화에 대응하는 것이다.
3. 화장실 오·배수시스템의 발전
국내의 화장실은 미국, 유럽, 일본 등과 같은 건식공법 중심이 아닌 습식공법을 기본으로 하고 있다. 공동주택의 화장실은 변기의 오·배수방식과 관련한 설비 배관의 층하배관 방식의 사용 일반화, 바닥 배수를 기본으로 하는 바닥 배수구(Floor drain) 및 바닥 타일 마감에 따른 실내화 사용, 바닥 물청소에 따른 물 넘침을 방지하기 위한 문턱 설치와 방수처리 및 실내와 화장실 바닥 단차 유지, 안여닫이문이 일반적인 구성이다. 더구나 변기, 세면기, 욕조 혹은 사워실의 순서로 위생도기가 설치되어 있고 화장실과 욕실을 겸용하는 원룸 오픈형이다. 전용면적 59 m2 이상은 화장실이 2개 이상인 것이 일반적이다.
우리나라 화장실의 오·배수 시스템은 크게 3가지로 나눌 수 있다. 오·배수배관과 바닥 슬래브의 위치관계를 기준으로 오·배수배관이 슬래브 하부에 위치하는 층하배관방식과 슬래브 상부에 위치하는 층상배관방식으로 구분하며, 변기 오수배관과 세면기 배수배관이 벽부분에서 배수되는 방식인 벽배관방식으로 구분한다.
일반적인 층하배관방식이 가장 오래된 방식이며, 층하배관방식의 소음 전달의 문제점을 해결하기 위한 개선방식으로 층상바닥배관 방식이 도입되었으며, 이에 대한 대안방식으로 층상벽배관방식이 개발되어 적용하고 있다.
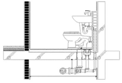
1) 기존 시스템-층하배관 방식
층하배관방식은 <Figure 1>에서 보는 바와 같이 각각의 위생도기와 연결된 오수 및 배수배관이 바닥 슬래브를 뚫고 아래층 천장에서 수평방향으로 배관이 설치되어 공용수직배관과 연결되어 있다. 오·배수배관의 재질은 PVC가 대부분으로 위층에서 배수 시 발생하는 소음은 모두 아래층 세대에 전달되어 소음피해를 주게 된다. 또한 배관의 유지보수를 위해서는 아래층 세대의 화장실 천장 속에서 이루어져야 하므로, 아래층의 사생활을 침해하게 되며, 신속한 대응이 어려울 수 있으며 이에 따른 세대 간 갈등의 원인으로도 작용하고 있다. 이처럼 층하배관 방식은 많은 문제점을 가지고 있었지만 별다른 개선의 노력 없이 국내 공동주택의 화장실 시스템으로 자리 잡아왔다. 화장실 소음 관련 민원의 증가로 국토교통부에서는 ‘주택건설기준 등에 관한 규정’을 개정하여 2017년 1월 10일 층하배관방식은 소음을 줄일 수 있도록 ‘저소음배관’을 사용하도록 했다.
오·배수 배관방식은 화장실 층간소음 발생의 원인을 제공하여 아랫집 거주자의 권리를 침해할 뿐만 아니라 쉽게 수리하거나 교체하기 어려운 단점을 가지고 있기 때문에 소음 저감과 수리용이성을 위하여 층상배관의 방식으로 기술 개발 전환의 계기가 되었다.
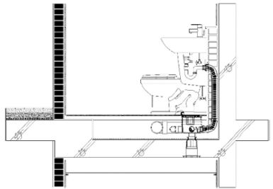
2) 층상배관 방식-바닥배관방식
층하배관방식의 설비소음 전달과 유지관리 문제점을 개선하기 위하여 개발된 것이 층상배관 시스템이다. 층상배관 설비 시스템의 초기 모델은 슬래브 아래쪽(아래층 화장실)에 위치하던 오·배수배관을 슬래브 위쪽(위층 화장실)에 설치할 수 있도록 화장실 부분의 슬래브를 다운하는 방식이다. 슬래브 바로 위에 오·배수배관을 설치한 후 변기를 설치하고, 세면기의 배수배관과 욕조나 샤워실의 바닥배수, 화장실 전체의 바닥배수를 바닥위에서 배관으로 처리한다. 최근에는 슬래브 다운을 하지 않지만 슬래브 상부를 삭감하는 층상배관 방식, 욕조나 바닥 Floor drain을 통합하여 배수하는 배수방식, 세면기의 2중배수방식도 개발되어 있다.
층상배관의 가장 큰 특징이자 장점은 배수소음의 저감(5dB정도 저감)이 가능하다는 점이다. 층하배관을 위한 바닥 슬래브의 천공이 없으므로 아래층으로 누수방지와 세대 간 슬래브의 완벽한 구획으로 화재 시 발생할 수 있는 방재효과에 대해서도 상대적으로 유리하다. 또한 천장반자마감 높이가 높아지므로 욕실의 쾌적한 공간 확보가 가능하다. 이러한 장점에도 불구하고 슬래브다운 방식은 대부분 습식중심으로 시공이 어려우며, 슬래브 상부를 삭감하는 시공과 일부 매설하는 배수배관은 유지관리가 쉽지 않으며, Floor drain의 배수구배 확보가 쉽지 않다는 한계점도 동시에 가지고 있다.
3) 층상배관-벽배관 방식
층상배관이지만 오수배관과 세면기 배수배관을 설비용 벽부분에 설치하는 배관시스템이다. 욕조와 샤워실, 바닥배수관은 방통을 설치하지 않는 설비벽 속에 배치한다. 이때 변기는 벽 부착형으로 오수배관은 양변기 뒤 설비벽을 통하여 공용수직배관(PS) 공간으로 연결된다. 층상벽배관 방식 역시 층하배관과 층상배관의 바닥배관의 문제점을 해결할 수 있는 대안이며, 슬래브 상부에 설비배관의 설치를 줄일 수 있어 일반 층상배관방식에 비하여 유리하다. 슬래브 다운은 적용하지 않지만 슬래브 상부를 일부 삭감하여 바닥의 물 넘침을 방지하기 위한 시공은 다른 방식과 동일하게 적용하고 있다.
층상 벽배관 방식은 층간소음 저감 효과, 당해층 유지보수 용이, 화장실 천장고 상승으로 개방감 확대 등의 장점을 가진다. 특히 슬래브 상부에 설비매설 없는 시공 방법은 유지관리가 용이하다. 많은 장점에도 불구하고 설비벽의 두께가 일반적인 설비매설을 위한 블록벽 보다 10 cm 정도 두껍기 때문에 화장실 면적이 줄어들어 보일 수 있다는 점이다.
III. 당해층 배관 시스템의 기술 분석
본 연구에서는 바닥 슬래브가 다른 공간과 동일한 조건을 가지는 층상배관방식을 대상으로 하여 가변용이성을 모색하기 위하여 심층 조사 분석을 실시하였다. 층상배관 화장실은 가변 용이성을 가져올 뿐 아니라, 소음과 유지관리 측면에서 기존의 층하배관방식에 비하여 진일보한 방식이다. 층상배관 기술 개발을 진행하고 있는 대표 업체 3곳은 C사, S사, W사 이다. C사의 층상이중배관시스템과 일체형 층상이중 바닥, S사의 층상벽배관시스템(On slab plumbing system), W사의 층상배관+벽배관 가능한 변기시스템 관련기술을 사례조사 하였다. Mock-up을 통한 기술 실현 가능성 및 세부 기술 개요에 대한 자료를 수집하였다. 구체적인 기술의 내용에 대해서는 심층 인터뷰를 실시하여 장단점 및 문제점을 조사하였다.
1. 층상이중배관 시스템과 일체형 층상이중 바닥
첫 번째로 소음, 악취, 시공성, 유지관리성을 고려한 층상이중배관 시스템을 제안한 C업체를 방문하였다. C업체는 주택성능등급 표시제도에 따른 주택 성능향상의 대응 방안으로 2,000년대 후반부터 소음환경개선, 수리용이성 개선에 초점을 맞추어 층상배관기술을 개발하였다. 오수배관을 제외한 배수배관(이중)을 슬래브 위쪽(세대 내부)으로 설치할 수 있도록 슬래브를 일부 다운하여 설계하는 방식이다. 변기 시스템을 제외한 층상이중배수배관 시스템은 화장실 배수소음을 완전히 해결하고, 배관누수의 차단, 당해층 보수 가능, 봉수량 증가, 악취차단, 천장마감 높이 증가, 화재 시 유독가스 유입차단 등의 장점을 가지고 있다.
층상이중배관 시스템과 일체형 층상이중바닥 시스템 기술(DUBS)을 정리하면 <Table 1>과 같다. 층상배관을 위한 배관시스템, FD (Floor Drain) 봉수개발, 이중배관, 배관사이즈 조정, 욕실 무 단차 앞 트렌치 등의 기술이 개발되었으며, 방수함, 바닥블록 등은 건식 화장실 시스템을 구성한다. 최근 장수명 주택의 필요성과 시공성 및 경제성 확보를 위한 non-slab down 방식으로의 개선을 위한 기술 실용화를 진행 중이다. 건식2중바닥의 실용화가 가능하면 화장실 가변을 위하여 가능성이 높아질 수 있다.
Table 1.
Element Technology for the On Slab Dual Drainage System
2. 층상배관-벽배관(On slab plumbing system)
S사의 시스템은 장수명 주택의 관점에서 내구성, 가변성, 수리용이성을 고려하여 개발된 층상벽배관 시스템을 개발하여 시공하는 방식이다. 화장실 오수관과 세면기를 비롯한 욕조, 샤워실, 바닥 배수관을 모두 설비벽(설비배관을 설치하는 벽체로 속칭 젠다이, 블록선반) 내부에 수납하여 위치하도록 하고 설비벽 속 슬래브 위에서 노출배관으로 공용수직배관에 연결하는 벽면배관 방식이다. On Slab Plumbing System (OSP)으로 이름붙인 이 방식은 벽걸이형 양변기와 바닥배수 트랩이 핵심 요소기술로 층상벽배관방식을 가능하게 한다. 설계 적용 시에 검토사항으로 PS의 위치가 양변기 후면 또는 좌·우측에 위치해야 한다는 점과 설비벽(블록선반)을 위한 지지 Frame과 설비벽의 폭이 일반 설비매설 벽보다 10 cm 정도 더 넓어 화장실 설치를 위해서는 이를 감안해야 한다는 점이 있다. 층상 벽배관 역시 배수소음을 30dB 이하로 저감할 수 있다는 장점을 가지고 있고, 오배수관을 벽부분에서 매설 없이 시공하기 때문에 수리용이성이 더욱 커진다. 특히 설비벽의 도기 부착부분에 판재를 사용하여 건식화하면 오·배수배관을 쉽게 유지 관리할 수 있다.
또한 슬래브 다운과 무관한 시공으로 슬래브 시공의 용이성이 다른 시스템 보다 유리하며, 따라서 위치설정의 자유도와 화장실 위치변경의 가변성능의 확보에 상대적으로 유리하다. 전체적으로는 장수명 관점에서 구조체와 화장실의 분리 시공이 가장 뛰어난 방식으로 볼 수 있다.
최근 국내 건설업체의 대규모 단지에 다수 적용되었으며, 국가 R&D 실증단지에도 채택하였고, 설비벽체의 건식화 시스템을 도입하기로 하여 적용 확대를 가속화 하고 있다.
층상벽배관 구현을 위한 기술은 <Table 2>다. 층상벽배관시스템과, 물사용 절감을 고려한 벽걸이형 양변기, 악취 제거에 용이한 Wall trap, 유지관리가 쉬운 설비벽(블록선반) 등의 기술을 확보하고 있다.
Table 2.
Element Technology for the On Slab Drainage system(wall)
3. 층상배관 양변기(바닥배관 및 벽배관 모두 가능)
W사의 시스템은 욕실 도기 및 기타 설비 부품 위주의 개발을 통해 C사와 S사의 층상배관 두 가지 방식 모두에 적용 가능한 설계시스템이다. W사에서는 층상배관 시스템을 위한 양변기, Floor Drain, 배수트랩, 배관 등의 요소기술이 개발되어 있다. 양변기의 경우 층상배관의 두 가지 형태(층상배관, 벽배관) 모두에서 사용할 수 있는 형태로 개발 되었으며, 시공 및 변경이 용이하다.
W사는 초절수형 층상배관 양변기를 개발하여, 배수성능 및 소음저감 성능을 확보하는 기술을 개발하였다. 시공 및 수리 용이성을 위해 비파괴 편심플랜지, 일체형 I트랩, FD 등의 부속품을 개발하여 층상배관 시스템의 완성도를 높여 주고 있다. <Table 3>은 W사 개발 초절수형 층상배관 양변기와 층상배관 시스템 구현을 위한 요소기술을 보여준다.
Table 3.
Element Technology for the On Slab Drainage System
4. 국내 화장실 시스템의 기술 분석 결과
국내의 개발기술 사례분석 결과 층상배관 구현을 위한 특정 시스템 개발이 진행되었고, 층상바닥배관 기술과 층상 벽배관 기술로 나누어진다. 그리고 이 두 가지 시스템에 대하여 모두 적용 가능한 양변기 개발을 통해 층상배관 시스템의 일반화 가능성을 확보할 수 있음을 알 수 있다.
또한 C사의 DUBS(Double up bath system) 이중바닥 일체형 시스템으로 화장실 시스템 유닛 개발의 가능성을 보여주고 있으며, 이는 가변성 확대에 크게 기여할 것으로 예상된다.
건축적 측면에서 보았을 때 층상배관 방식이 슬래브 위의 바닥배수배관방식과 벽배관방식이 서로 다르지만 slab down 방식에서 non slab down 방식으로 기술 개발을 진행하고 있으며, 최근 S사에서는 슬래브 상부를 삭감하지 않은 형태로 개선 기술의 가능성을 검토하고 있다. 단차의 유무(barrier free관점)는 거주자의 요구에 따라 모두 가능한 형태로 설계할 수 있다.
설비배관 부분에서 슬래브위에서 공간 확보를 위해 층상 바닥배관 시스템에서 오수배관의 지름이 75 mm로 기존 100 mm보다 작고 효율적인 배관경을 개발 및 적용하였다. 벽배관 시스템에서는 배관경의 높이에 따른 문제가 없었으므로 기존 배관을 그대로 사용하고 있으나 이 시스템 역시 오수배관의 지름 변경은 문제가 되지 않은 상황이다. Floor Drain trap의 봉수는 악취를 줄일 수 있는 형태로 개발이 진행되었고, 각각의 시스템에 맞는 고유한 trap으로 개발하여 사용하고 있으나, 봉수가 파괴되지 않고 충분한 봉수깊이를 유지할 수 있는 시공을 용이하게 할 수 있는가가 중요하다.
시공성과 경제성 또한 중요하게 다루어져야 할 부분이다. 초기 층상배관 기술은 비용이 많이 든다는 이유로 적용이 거의 되지 않았다. 개발 기술의 공동주택 시장 적용을 위해서는 기존 층하배관 기술보다 시공성 및 경제성이 향상될 필요성이 있다. 업체에서 제시한 비용을 검토해 보면 기존 층하배관(182,337원/m2)보다 상승하는 것을 알 수 있다. 또한 층상바닥배관보다 층상벽배관의 경우에 비용이 상대적으로 조금 높게 검토되었음을 알 수 있다. 시공성 측면은 층상배관의 기술에 따라 slab down을 하지 않고 slab 삭감도 없는 시스템이 가장 유리할 것으로 판단된다.
거주환경 부분에서는 모두 배수소음 테스트를 통해 그 성능에 대한 인증을 확보하였다. C사의 층상이중배관시스템, S사의 층상벽배관시스템, W사의 층상배관·벽배관 설계제안 모두 층간소음은 확실히 해결할 수 있는 기술이다. 그러나 욕실 내 환기 성능을 고려한 부분은 Floor Drain 봉수를 통한 악취 제거 외에는 연구 개발이 미흡하다.
유지관리 부분에서는 수리용이성과 가변성을 비교하였다. 수리용이성 측면에서 층상 이중배관(바닥)과 층상 벽배관 방식은 차이가 있다. 오배수관의 매설이 없는 층상벽배관 방식이 수리용이성 측면에서 더 효율적일 것으로 판단된다. 초절수형 양변기의 경우 두 방식을 모두 적용할 수 있으나 변기 자체의 기술에 중점을 두어 화장실 전체 시스템의 구축은 완벽하지 않다. 그러나 층상이중배관 시스템의 배관 방식은 배관의 교체를 거주자 개인이 직접 할 수 있을 만큼의 수리용이성을 가진다. 가변부분 역시 오배수관의 매립이 없는 층상 벽배관 방식이 가장 용이할 것으로 분석되고, 슬래브다운이나 삭감이 없어야 주택 내에서 좀 더 확장된 범위의 가변이 가능할 것이다.
세 업체의 당해층 배관 시스템과 요소 기술의 분석 결과 두 가지의 층상배관 방식이 공통적으로 사회적 요구에 발맞추어 거주자의 만족도를 높이는 방향으로 기술 개발 진행되고 있음을 알 수 있다. 크게 당해층 슬래브 위에 배수배관이 설치되는 방식과 벽면에 배수배관이 설치되는 두 가지 방식으로 나뉘며, 서로 다른 방식이라 해도 소음 기준에 맞게 배수소음을 저감 하고, 슬래브 다운이 없는 방향으로 시공성을 향상하며, 비용을 저감하고자 하는 궁극적 목표를 가진다. <Table 4>는 설계/시공성 및 경제성/거주 환경/유지관리 측면에서 층상배관 개발 기술별 특성을 정리한 것이다.
Table 4.
Comparison and Analysis of the On Slab Drainage System Development Technologies in Korea
IV. 층상배관 시스템의 개선과 화장실 공간 가변성
1. 층상배관 시스템의 개선
기존 층하배관 방식은 층하배관으로 위치나 형태를 이동하는 가변방식은 채택하기 어렵다. 또한 층상배관방식이라고 하더라도 슬래브다운 형태를 취하는 것이나 슬래브 상부 삭감을 하는 방식은 다른 실들과 다른 단면구조를 가지기 때문에 세대 내의 다른 공간으로 화장실공간을 옮긴다면 그 부분은 슬래브 삭감을 해야 하며, 기존 화장실이 위치하던 부분은 보수해야 한다. 이러한 점은 세대별 화장실 구성의 다양성 및 위치이동과 관련한 공간의 재구성을 위한 가변은 거의 불가능하다.
현재 기술 개발이 진행 중인 층상배관 화장실 시스템은 슬래브 다운을 하지 않는 방향으로 개발되고 있으나, 모든 시스템이 슬래브 상부면을 삭감하는 방식을 취하고 있는 한계를 가지고 있다. 여기서 한 단계 나아간 것이 슬래브 상부 삭감 없는 시스템이다. 슬래브 다운이나 삭감방식에서 시공 상의 어려움과 비용문제, 공간 활용의 용이함 등을 고려하여 다른 실과 동일한 슬래브(슬래브 다운이나 삭감이 없는)를 가지며, 20 mm 이내의 문틀을 갖는 시스템으로 본 연구자들이 연구개발을 진행하고 있어 이 방식을 전제로 한다.
가변성의 요소인 층상배관(배관이 슬래브 위에 위치)과 슬래브 다운이나 삭감이 되지 않은 상황(다른 실과의 동일한 층고 확보되지 않은 상황)을 고려하면 3시스템 모두 가능성을 가지고 있으나 현 시점에서는 현실성을 감안하면 바닥의 Floor Drain의 봉수유지가 가장 핵심이 된다. 가장 영향이 적은 시스템이 벽배관방식이다. 벽배관방식이 바닥과 관련성이 제일 적으므로 가장 유리한 것으로 판단된다. 즉, 층상벽배관시스템은 모든 배관이 블록벽 속에 위치하며, Floor drain이 블록벽에 붙어 있어 바닥부분에 미치는 손상이나 영향이 제일 적다. 층상바닥시스템은 화장실오수배관, 세면기 배수관, 샤워실 또는 욕조배구관이 바닥 경량콘크리트 속에 매설되어 있기 때문에 상대적인 손상부분과 이동 시공에 대한 영향이 크기 때문이다.
이러한 관점에서 층상 벽배관 시스템의 non-slab down 방식에서 slab 상부를 삭감하지 않는 형태로 화장실 시스템을 구축하면 공간 이동이 가능해질 수 있다. 여기에 블록벽의 마감을 건식화하면 한층 유리해진다.
또한 II장에서 기술한 요소 가운데 하나인 PS와의 인접성을 고려하고, 중력배수만으로 한정하면 화장실의 PS공간의 주변으로 화장실을 이동하는 것이 가능해진다. 다른 실과 동일한 단면구조를 가지게 되므로 화장실 시스템을 다른 공간으로 옮기더라도 필요한 층고 및 배수시스템을 설치할 공간을 확보할 수 있다. 그러나 화장실 배수구배를 위한 기울기를 확보하기 위해서는 PS로부터의 거리가 제한되기 때문에 평면의 가변은 한정적일 수밖에 없다.
이러한 관점에서 가변 용이한 층상배관 화장실 시스템에서 필요한 구조적 요건을 두 가지로 정리할 수 있다. 첫째, 화장실 오·배수 시스템을 수용할 수 있는 2중바닥의 높이와 층고를 확보하는 것이다. 여기서 거실과 방부분에 2중바닥을 도입한다면 공간재구성과 이동의 자유도는 급격하게 높아진다. 이 경우는 층고 증가가 필수적으로 전제되어야하고, 기존의 층하배관시스템으로도 가능하므로 현실성 측면에서 제외한다. 둘째, 화장실 배수를 위한 배수 구배 및 배수시스템의 공간 확보이다. 아래의 단면도에서 화장실의 가변 용이성을 확인할 수 있다. 배수구배는 1/50~1/100을 유지한다. 이것에서 화장실의 대략적인 크기가 결정된다. <Figure 4>는 층상배관 화장실 시스템의 가변을 위한 구조적 필요 요건을 도식화 한 그림이다.
2. 화장실 가변용이성을 고려한 설계안
II장에서 기술한 층상배관, 바닥 슬래브의 단차가 없으며 상부도 삭감하지 않는 방식과 20 mm 정도의 문틀로 구성된 시스템, PS의 인접성과 배수구배의 확보를 기반으로 하여 다소 제한적이나 화장실의 가변성에 대하여 제안한다.
세 가지 조건을 만족하는 범위에서 설계한 화장실은 다음과 같은 단면 조건을 가지도록 설계해야 한다<Figure 5>.
본 연구에서는 장수명 주택 설계모델(국가 R&D “비용절감형 장수명 주택 보급모델 개발 및 실증단지 구축” 과제 연구 결과)의 평면을 사례로 층상벽배관 시스템(non slab 삭감)을 적용한 경우에 화장실 가변 용이성을 검토해 보면 다음과 같다. 사례로 제시한 공동주택 평면은 전용면적 59 m2 기형 설계 평면도 중의 하나이며, PS가 2곳에 위치하기 때문에, 화장실 가변이 용이한 2가지 범위를 도식화하였다. 초기 설계(평면)에서는 화장실 겸 욕실의 위치 변경이 불가능 했으나, 본 연구에서 제안하는 non slab 삭감 시스템을 적용하면 PS 위치에 따라 좌측, 우측, 배면, 입면에 화장실을 이동하여 설계가 가능한 것으로 검토되었다. 두 개의 화장실을 각각 a와 b로 구분하고, 단순 이동, 회전 이동을 검토하였다. 공용 PS와 예비 PS를 추가로 설치한 경우에 대해서도 각각 가변 용이한 범위를 도식화 해 볼 수 있겠지만 본 연구에서는 기존 화장실을 위해 배치된 PS만을 활용하여, PS 중력에 의한 배수구배가 가능한 범위는 1/100으로 설정하여 PS로부터 2 m 이내에 계획하였다. 욕실의 형태나 크기 변형에 따라 다양한 가변의 범위를 가질 수 있으나, 본 연구에서는 기존 화장실의 형태를 그대로 사용하고 이동 및 회전을 하여 가변 하는 시나리오를 제안하였다. 이때 가변이 용이한 경우를 도식화 한 것이 <Figure 6>이다.
총 가변 가능한 범위를 면적으로 나타내면 약 30.04 m2이므로, 한정적이지만 가변 용이성이 큼을 시사한다<Figure 7>.
만약 예비 PS를 배치하면 그 가변 용이성은 훨씬 커지게 될 것이며, PS위치를 어디에 설정하는 가에 따라 다양한 가능성이 생긴다. 아울러 화장실의 가변과 더불어 방과 거실 등의 위치변경도 연동하면 다양한 공간 재구성이 가능해지며, 새로운 공간구성 창출도 가능해진다.
V. 결 론
화장실의 가변성은 지금까지 설계관점, 기술과 공법의 한계로 실현되기 어려웠다. 아울러 화장실의 가변은 주택 내에서 설계기술과 구조기술, 설비기술이 복합된 가장 어려운 기술이며, 설계상으로도 가장 어려운 기법이다.
그러나 화장실의 위치이동은 공간변화에 많은 영향과 더불어 다양한 공간을 제공하는데 있어서 중요한 역할을 한다. 이것이 다른 물 사용공간의 하나인 부엌과 연동된다면 훨씬 큰 효과를 가질 수 있다.
이러한 배경에서 화장실의 가변용이성을 검토한 결과는 다음과 같다.
첫째, 화장실의 가변성을 위해서는 기본적으로 층상배관시스템, 바닥슬래브의 다운이나 상부 삭감이 없는 형태, PS 인접성과 중력배수구배의 조건 등이 현재의 층고를 유지하는 범위 내에서 중요한 요소가 될 수 있다.
둘째, 층상배관시스템의 개발과 적용의 현실성을 위하여 3개 업체를 조사 분석한 결과 현재의 연구개발성과는 모두 적용 가능하지만, 바닥 슬래브의 영향이 가장 적은 벽배관방식이 유효한 것으로 판단하였다.
셋째, 사례평면으로 개발된 장수명 실증단지 적용평면을 대상으로 가변성 조건을 기반으로 하여 가변용이성을 검토한 결과, 평면은 다양한 가변형을 가질 수 있었다.
향후 공동주택 평면의 자유로운 가변을 고려한다면, 궁극적으로 화장실 시스템은 건식 시스템화 되어야 할 것이며, 가변형 평면 타입을 개발하여 PS의 위치를 미리 확보해 두는 것도 좋은 방법일 것이다. 그러나 층상 배관방식에서 적절한 배수구배를 확보하지 않으면 배관 막힘, 악취 등의 역효과가 생길 수 있다. 한 가지 문제 해결을 위하여 기본적 생활에 불편함을 겪는 일이 생겨서는 안 될 것이다. 더 자유로운 가변을 위해서는 층상배관방식에 건식화와 유닛화 시스템으로 개발하는 것도 좋은 방법이 될 수 있을 것이다. 중력구배 이외의 다른 배수 시스템을 개발 및 활용한다면, 쉽게 문제를 해결할 수도 있다. 화장실 시스템의 단순 기술 개발뿐만 아니라 주택 내에서 다양한 공간 재구성을 고려한 설계 기술이 개발된다면 더욱 효과적일 것이다.
본 연구에서는 현재의 개발된 화장실 시스템 기술만을 활용한 가운데 가변용이성을 검토했기 때문에 가변이 제한적이라는 한계점을 가지지만, 물사용 공간의 가변이 어려운 현 시점에서 한 단계 발전의 가능성을 열어주는 데에 큰 의의를 가진다. 후속 연구에서는 다양한 배수시스템 검토 및 적용으로 화장실 필요성능 및 가변성능을 더욱 확장할 수 있는 설계 방안을 모색할 계획이다.





























