I. 서 론
II. 기존 이론 고찰
1. 보전 및 활용의 개념
2. 도지사 및 특별/광역 시장 관사의 특징
III. 전국의 리노베이션을 통한 관사의 활용 현황 분석
1. 전국 관사의 공공시설화 현황 분석
IV. 리노베이션 유형에 따른 대상 관사 분석
1. 분석방법
2. A 유형
3. B 유형
4. C 유형
5. D 유형
6. 소결
IV. 결 론
I. 서 론
2000년 초반부터 도지사 및 시장, 군수 관사에 대한 관치주의의 유물이라는 여론과 함께 관사가 시민들의 공공시설로 바뀌기 시작했는데 2010년 행정안전부가 관사를 원칙적으로 폐지 권고를 내리게 되면서 현재 45개의 관사가 공공시설이 되었다. 이에 도지사, 특별/광역 시장, 군수들이 떠나면서 유휴공간이 된 관사를 어떻게 활용할지에 대해 여러 지역에서 연구가 진행되었다. Yang(2006)은 경상남도지사 관사의 재활용에 대해 오피니언 조사를 실시하였고 연구로 나와 있지는 않지만 전라북도도 관사 활용에 대한 도민들의 의견 조사를 진행했으며 제주도도 ‘공관활용 조성계획’1)을 통해 관사 재활용을 진행하였다. 대부분의 관사들은 리노베이션을 통해 공공시설이 되었는데 관사가 가지는 역사성을 보전하면서 활용한다는 의도는 좋았으나 이 과정에서 문화재적 가치가 있는 건물이 훼손되어 근대문화재 등록이 보류되는 경우가 발생하기도 했다.2) 이는 관사의 보전 및 활용을 위한 리노베이션에 대해 세밀한 지침 부족으로 일어난 결과라 볼 수 있다. 근대건축물 보전 및 활용에 대한 연구는 지속적으로 나오고 있는데 Park(2003)과 Jang(2006)의 연구는 근대건축물의 보존 및 활용 방안을 분석하였지만 주로 대지 및 건축물 규모에서 분석하였으며 내부 공간까지 보지 못했다는 한계점이 있었다. 이는 리노베이션을 주로 하는 관사에는 적합하지 않은 활용 방법으로 이보다 공간 내부 변경 지침에 대한 연구가 필요하다. 본 연구에서는 공공시설이 된 관사를 분석하여 유형과 방법을 분석하고 이를 바탕으로 앞으로 리노베이션을 통해 공공시설이 될 관사의 보전과 활용을 위한 가이드라인을 제시하고자 한다.
리노베이션을 거쳐 공공시설이 된 관사에 대한 정보를 문헌 수집을 통해 우선 분석한 후 활용 유형별로 나눈다. 분석하여 나온 활용 유형에 대상 관사를 적용하여 공간의 전, 후를 비교하면서 각 활용 유형에 대한 보전 방법을 분석한다. 여기서 활용 유형별 분석 대상은 전국의 리노베이션으로 공공시설이 된 도지사 및 시장, 군수 관사로 하며 분석하여 나온 활용 유형에 적용하여 연구할 대상 관사는 그중에서 공간의 전, 후 자료가 남아 있는 도지사 및 특별/광역 시장 관사로 하고자 한다.
II. 기존 이론 고찰
1. 보전 및 활용의 개념
1) 보전의 개념
보전(Conservation)은 내, 외부 형태뿐만 아니라 거기에 포함된 내용을 안전하게 살핀다는 의미를 갖기 때문에 보존(Preservation)보다 상위 개념으로 파악할 수 있다.3)Choi (2000)는 보전이라는 것을 보존의 의미를 넘어 오히려 개발과 보존을 동일한 단계에서 포함시키는 복합적인 개념으로서 적극적이고 창조적인 보존행위를 의미하는 용어로 정의하였다. 이러한 개념을 바탕으로 보면 관사를 보전한다는 것은 물리적 형태뿐 아니라 관사에서 일어났던 일련의 사건들이나 생활상을 보존하는 것도 포함한다고 볼 수 있다. 이러한 보전을 위해서는 관사의 물리적 형태를 보존하는 것이 우선적으로 중요한데 이는 공간을 이루는 요소들이 방문객으로 하여금 형태에 대한 이해와 함께 무형의 보존 요소인 생활상이나 그곳에서 일어난 역사적 사건들을 이해하는 데 도움을 주기 때문이다. 물리적 요소들이 리노베이션을 통해 없어진다면 아무리 관사에 대한 내용을 전시하고 있더라도 집적적인 경험 기회의 부족으로 건물의 역사성에 대한 이해도가 떨어지게 된다. 그러므로 관사를 보전하는 리노베이션 계획을 세울 때 물리적 형태 보존을 우선시하는 것이 제일 좋으나 활용 목적에 따른 공간 부족이나 현행법에 따른 공간 조성 한계 등으로 활용을 하면서 건물 그대로 보전을 하는 것은 신중한 계획을 필요로 한다.
2) 활용의 개념
활용의 개념에 대해 Park(2004)은 시대가 변화함에 따라 생성되는 생활상의 요구를, 물리적 개체인 건축물에 받아들이기 위한 현상 변경이나 개선, 개조, 전용(adaptive reuse)과 같은 활동을 통해서 지속적으로 수용하려는 것으로 설명할 수 있다고 언급한다. Ryu(2014)는 활용에 대해 특별한 행위를 하지 않아도 문화재를 보유하고 있다는 자체 심리적 만족부터 관람, 답사, 참여, 체험, 생활환경, 경제적 효과, 유대 강화 등에 이르기까지 그 영역과 효과, 목적, 방법 등이 매우 다양하므로 이 모든 것을 포함하는 것이라고 언급한다. 이는 문화재에 대한 활용을 이야기 한 것이긴 하지만 관사가 국가 또는 지방자치단체 규모에서 가지고 있는 역사성을 생각해 보면 관사에도 충분히 적용될 수 있는 활용 개념이다. 종합해 보면 활용은 다양한 쓰임을 위해 건축물을 갖가지 방법으로 변화시키는 것이라 볼 수 있는데 관사에서 활용은 새로운 목적을 충족시키면서 관사의 체험까지 포함할 수 있어야 한다.
2. 도지사 및 특별/광역 시장 관사의 특징
관사는 정부에서 제공하는 집4)으로 공무를 위한 저택인 공관의 개념도 포함하나 행정안전부의 ‘지방자치단체 공유재산 운영기준’5)에서 이러한 건축물을 관사로 명칭하고 있어 본 연구에서도 관사라 언급한다. 2.2장에서는 본 연구의 대상 관사인 도지사 및 특별/광역 시장 관사의 건축적 특징과 공간적 특징을 분석하도록 한다.
전국의 도지사 및 특별/광역 시장 관사는 1920년대부터 1980년대 건축물로 이루어져 있는데 일제 강점기에 준공된 관사의 경우 한국의 행정체계가 일제의 것을 그대로 답습하였고6) 일제 시기 한국인 도지사였던 자들이 해방 이후 지도자층이 되면서 관사 또한 그대로 내려와7) 사용되었다. 1960~70년대 관사의 경우 개량된 전통건축양식과 일본 건축양식이 혼합되거나8) 이 당시 즐겨 사용되던 모더니즘 양식9)을 띠고 있다. 1980년대 준공된 관사는 평상시 도지사 관사로 쓰이다 대통령의 지방 순방 시 숙소로 사용되던 지방 청와대의 역할을 하였으며 이 당시 활발하게 활동하던 건축가들이 설계하기도 하여 김수근이나 김중업 같은 특정 건축가들의 건축기법이 남아있다. 내부 공간의 경우, 관사는 공관의 개념도 포함하기 때문에 공무를 위해 방문하는 내, 외빈을 맞이하는 공적 공간, 도지사 및 특별/광역 시장과 가족들이 생활하는 사적 공간으로 구성된다. 두 공간을 나누는 방법은 시대마다 다르지만 공통적으로 공적 공간은 공적 공간끼리, 사적 공간은 사적 공간끼리 배치하고 두 개의 계단을 둬 사용자들 간 동선이 겹치지 않도록 하였다. 일제강점기 관사의 경우 공적 공간은 양식으로 사적 공간은 일식으로 하는 일양 절충식을 보이는 것이 특징이다. 하지만 이후의 관사는 관 주도로 준공이 된 것이 아니어서 통일된 내부 양식은 없다.각 시대에 지어진 관사는 고위층을 위한 것으로 해당 시대에 유행했던 건축기법이나 양식을 담고 있다는 점에서 보존할 만한 가치가 있다. 관사를 목적에 맞게 활용할 때 이러한 건축 양식을 해치는 것은 삼가야 할 것이며 기존에 나눠진 동선과 구역을 무너뜨리지 않는 선에서 공간의 확장 및 축소를 하는 것이 우선되어야 할 것이다.
III. 전국의 리노베이션을 통한 관사의 활용 현황 분석
1. 전국 관사의 공공시설화 현황 분석
관사 폐지는 민선 2기(1998~2002)부터 공약으로 나오던 것이었지만10) 본격적으로 여론에서 권위주의의 산물이라는 이유로 폐지를 주장하기 시작한 것은 민선 3기(2002~2006)부터이다. 이때 후보자들이 공약으로 관사 폐지를 많이 내세웠으며 그 결과 2000년대에 지방자치단체에서 25개 관사가 공공시설이 되었다. 이후 행정안전부(2010)에서 시, 군, 구에서 운영 중인 관사를 원칙적 폐지 권고를 하였고 이러한 권고와 시대적 흐름과 함께 이후 20개의 관사가 더 폐지되어 현재까지 45개 관사가 공공시설이 되었으며 아직 활용 방안을 찾지 못해 빈 관사로 둔 경우와 철거하고 신축한 경우까지 합하면 더 많은 관사가 폐지된 것을 알 수 있다. 현재 공개된 관사의 목록은 <Table 2>와 같다. 관사 정보는 문헌 수집 및 기사를 통해 진행하였으며 관사 폐지가 정해진 시점의 정보가 부족해 개관 일을 기준으로 정리하였다. 각 관사의 리노베이션 유형은 <Table 1>을 기준으로 분류하였다.
Table 1.
Renovation Type11)
<Table 2>의 Supporting Center는 특정 주민들을 위한 건물이라 완전한 공공시설이라고 보기 어려워 리노베이션 타입 분석에는 포함하지 않았다. 프로그램 연관성 항목의 경우 관사의 면적을 가장 많이 차지하는 프로그램을 기준으로 분류하였다. Renovation 유형 항목은 전체 공간 중에서 변화 면적을 기준으로 분류하되 보존된 공간이 남아있다면 C로, 보존된 공간이 없다면 D로 분류하였다.
Table 2.
The List of All Opened Official Residences
| Open year | Built Year | Province | Area (sqm) | Previous Program | Current Program | Renovation Type |
| 1984 | 1926 |
Previous Gyeongsangnam-do (Temporary Blue House) | 452/2621 | Museum | A-1 | |
| 1996 | 1980 | Ulsan Metropolitan City | 259/1696 | Kindergarten | Demolition | - |
| 2000 | 1979 | Anseong | Supporting Center | |||
| 2000 | 1990 | Anyang | 339/2221 | Cultural Institution/Library | D-2 | |
| 2001 | 1966 | Incheon Metropolitan City | 368.46/2274.3 | Historical Archive Center | Cultural Institution/Community Space | B-2 |
| 2002 | Hongseong | 209/730 | Kindergarten | |||
| 2002 | Yeongi | 214/1147 | Supporting Center->Kindergarten | Supporting Center | ||
| 2002 | 1964 | Geochang | 159/556 | Supporting Center | Supporting Center | |
| 2003 | Daejeon Metropolitan City | 387/3902 | Kindergarten | |||
| 2003 | Pyeongtaek | 181/938.8 | Cultural Institution | B-2 | ||
| 2003 | Gwacheon | Cultural Institution | B-2 | |||
| 2004 | 1990 | Uiseong | 273/1276 | Supporting Center | ||
| 2006 | 1990 | Yeongwol | 158.6/1289 | Supporting Center | ||
| 2006 | 1980 | Jeongseon | 155/892.5 | Cultural Institution | Supporting Center | |
| 2006 | 1981 | Jeollanam-do | 1180/12892.5 | Museum | D-2 | |
| 2006 | 1984 | Cheongsong | 109/1170 | Supporting Center | ||
| 2007 | 1988 | Seosan | 153 | Supporting Center | ||
| 2007 | Geumsan | 261/1033 | Supporting Center | Demolition | ||
| 2007 | Jinan | Cultural Institution | D-2 | |||
| 2007 | 1993 | Bonghwa | Supporting Center | |||
| 2007 | Boryeong | 350/703 | Kindergarten | |||
| 2008 | 1981 | Ansan | 396/3998.7 | Cultural Institution | B-2 | |
| 2008 | 1984 | Changnyeong | 152/799 | Cultural Institution | ||
| 2009 | 1984 | Gyeongsangnam-do | 664/8558 | Museum | A-1 | |
| 2010 | 2000 | Imsil | 160/1069 | Supporting Center | Demolition | - |
| Recommended to abolish Official Residences by Central Government | ||||||
| 2011 | Cheongyang | 168/1397 | Supporting Center | |||
| 2012 | 1980 | Jeollabuk-do | 684/6525 | Museum/Cultural Institution | D-2 | |
| 2014 | 1941 | Seoul | 517/1628 | Museum/Cafe | C-2 | |
| 2014 | Boseong | 175/1031 | Guest House | Museum | B-2 | |
| 2014 | 1940 | Ulleung | 152/910 | Museum | B-2 | |
| 2015 | 1985 | Hongcheon | 171/690 | Supporting Center | ||
| 2016 | 1971 | Gyeonggi-do | 357/6502 | Guest House | Returned to Governor | - |
| 2017 | 1914~8 | Goesan | 172/830 | Cultural Institution | A-2 | |
| 2017 | Muju | Supporting Center | ||||
| 2017 | 1984 | Jeju-do | 1315/12264 | Library/Museum | B-2 | |
| 2018 | 1977 | Cheongju | 142/2452 | Supporting Center | ||
| 2018 | 2006 | Gangjin | -/1000 | Supporting Center | ||
| 2019 | 1935 | Chungcheongnam-do (old) | 1451/6000 | Museum | B-1 | |
| 2019 | 2013 | Chungcheongnam-do (new) | 230/1500 | Supporting Center | ||
| 2019 | 1939 | Chungcheongbuk-do (old) | 341/ | Museum/Library | C-2 | |
| 2019 | 1971 | Chungcheongbuk-do (new) | 548/9543 | Museum | D-2 | |
| 2019 | Damyang | Cultural Institution | C-2 | |||
| 2020 | Sejong(Jochiwon) | 107 | Museum | D-2 | ||
| 2020 | Buan | Museum | D-2 | |||
| 2023 | 1988 | Uljin | 134/949 | Supporting Center | ||
Supporting Center를 제외한 전국의 공공시설이 된 관사 분석 결과 관사는 A-1, A-2, B-1, B-2, C-2, D-2의 유형으로 리노베이션 된 것을 확인할 수 있었으며 Park(2004)의 ‘근대건축물의 활용 사례’ 표를 바탕으로 관사의 특성에 맞게 수정하여 <Table 3>과 같은 결과를 얻을 수 있었다.
커뮤니티 시설의 경우 보존부터 개조까지 모든 리노베이션 방법을 선택하여 관사를 사용하고 있었으며 문화 시설에서 박물관은 관사 관련한 내용을 주제로 하면서 전체 보존을 하거나 부분 개조를 하여 사용하고 있음을 확인하였다. 문화 시설에서 전시장과 교육 시설의 도서관은 관사와 관련 없는 프로그램을 운영하고 있으며 전체를 보존하여 쓰는 경우 없이 대부분 개조를 주로 하여 사용하는 것을 확인할 수 있었다.
IV. 리노베이션 유형에 따른 대상 관사 분석
1. 분석방법
IV 장에서는 리노베이션 전, 후 다이어그램이 있으면서 공공시설이 된 관사를 리노베이션 유형으로 나누어 분석하고자 한다. 분석은 문헌 수집과 현장 답사를 통해 진행하였다.
2. A 유형
1) 옛 경상남도: 임시수도기념관(A-1, Museum)
현재 관사의 역사를 소개하는 박물관으로 쓰이고 있다. 다이어그램 상 다다미방 1에 욕실과 전실이 생긴 것, 보일러실이 생긴 것은 이승만 대통령이 이곳에 살 때 추가된 것이며 차노마와 다다미방이 통합된 것 또한 이때 행해진 것으로12) 리노베이션을 통해 변화된 공간 목록에 포함하지 않았다.
차노마 2와 다다미방 6을 통합하여 전시실 12로 만들었으며 이것이 전체적인 평면에 영향을 주지 않는 걸로 확인된다<Table 4>. 이 외의 변화는 없이 유지 및 보수를 하여 전시실로 사용한 것을 확인할 수 있었다. 외부와 내부 마감재 모두 유지, 보수를 통해 보전되고 있는 것을 확인할 수 있었다<Figure 1, 2>.
Table 4.
Previous Gyeongsangnam-do Official Residence
Source. Busan (2001). Temporary Blue House_Report of Measurement and Repair.
2) 경상남도(A-1, Museum)
부분적으로 개방되어 시민들에게 관사에 대한 역사와 경상남도에 대한 역사를 소개하는 전시장으로 쓰이고 있으며 나머지 공간은 공무를 위한 내, 외빈에게는 게스트 하우스로 사용되고 있으므로 여기서는 전시장 부분만 분석하고자 한다.
Table 5.
Gyeongsangnam-do Official Residence
Source. The Presidential Archives(1985), The Status of Mayors’ and local Governors’Official Residences
기존의 평면에서 화장실이 된 곳의 문 위치만 바뀌었을 뿐 그 외 평면의 변화는 없이 사용되고 있었다. 전시장으로 바뀌면서 전시실 2개를 가장 넓은 곳에 배치하고 전시장에 필요 없는 부엌, 욕실, 가사도우미실, 비서실은 사무실, 화장실, 통제실로 바꿔 사용하였다<Table 5>. 외부와 내부 마감재 모두 공간을 유지, 보수를 통해 보전되고 있음을 확인할 수 있었다<Figure 3, 4>.
3. B 유형
1) 충청남도(B-1, Museum)
현재 주변의 다른 관사들과 함께 관사에 대한 역사를 소개하는 박물관으로 쓰이고 있다.
Table 6.
Chungcheongnam-do Official Residence(old)
Source. The Presidential Archives(1985), The Status of Mayors’ and local Governors’Official Residences
침실 안에 있는 화장실을 철거하여 전시실 3으로 만든 것을 제외하고는 평면상의 변화는 없었다. 대부분의 기존 공간을 유지 및 보수를 통해 전시실로 만들었으며 기존에 있던 화장실을 지금도 화장실로 쓰고 있음을 확인하였다. 공간 기능상의 변화가 크게 있던 곳은 하인방 1, 2로, 공간이 넓은 하인방 1은 사무실로 쓰고 하인방 2는 방문객들의 체험을 위한 공간으로 쓰고 있었다<Table 6>. 외부는 구조와 마감재가 원형보전이 되었으며 내부도 구조와 마감재 대부분 원형보전이 된 상태다. 사진에는 없지만 사무실과 체험실의 경우 다른 마감재를 사용하여 다른 전시실과 조금 동떨어진 느낌을 가진다<Figure 5, 6>.
2) 인천광역시(B-2, Cultural Institution)
시민들을 위한 커뮤니티 공간 운영 및 인천 역사에 대한 전시를 하고 있다.
Table 7.
Incheon Metropolitan City Official Residence
대부분 원형을 유지하고 있지만 전시실로 쓰기 위해 가사도우미실을 주방 1과 합쳤고 욕실과 화장실 2를 합쳐 커뮤니티 공간 7을 조성, 방 1의 한 벽면을 철거, 복도 중간에 있는 벽들을 철거했다는 점에서 평면상 변화가 있었다. 또한, 연회실에 있던 문과 복도에 있는 문들, 방 1에 있던 문을 떼어내 관람객의 동선에 방해가 가지 않도록 하였다. 대부분의 공간을 커뮤니티 공간과 전시실로 만들었으며 비서실은 안내 데스크로 바꿔 사용하였고 기존의 화장실 1은 그대로 화장실로 사용하였다. 앞의 관사들에 비해 평면상 바뀐 부분은 많지만 공간의 흐름과 그 생활상을 유추하기에 문제가 되지 않는 것으로 확인된다<Table 7>. 외부는 유지 및 보수를 통해 구조와 마감재가 전부 보존된 것으로 확인된다. 내부는 전체적으로 구조와 마감재가 유지 및 보수되어 있으나 부분적으로 시트지를 붙여 인천 역사와 역사적 인물에 대한 전시를 하여 관사가 전체적으로 가지고 있던 느낌을 다 파악하기 어려웠으며 새로 조성된 공간은 이전과 다른 구조와 마감재를 사용하였지만 그 주변의 공간에 쓰인 마감재와 비슷한 것을 써서 주변과 동떨어지지 않게 하였다<Figure 7, 8>.
3) 제주도(B-2, Library)
현재 어린이 도서관으로 쓰이고 있으며 부분적으로 지방 청와대였던 시절의 모습을 보존하여 전시하고 있다.
Table 8.
Jeju-do Official Residence
Source. the Presidential Archives(1985), The Status of Mayors’ and local Governors’Official Residences
부족한 공간은 2-3개의 공간을 합쳐 하나로 썼지만 전체적으로 이전의 평면을 유지하고 있어 공간의 흐름과 생활상을 유추하기에 어려움이 없는 편이다. 화장실 1, 2는 그대로 화장실로 쓰고 있으며 화장실 3은 옆의 방 1을 같이 이용하여 화장실 3, 4로 이용하고 있다<Table 8>. 외부는 구조와 마감재가 유지 및 보수를 통해 전부 보존되어 있는 것을 확인하였다. 내부는 지방 청와대 시절을 보존한 전시실과 비교하였을 때 사무실과, 2와 프로그램실을 제외하고 대부분 이전에 쓰던 양식 그대로 사용하되 바닥 마감재를 바꾸거나 휠체어 리프트를 설치하는 식의 변경이 있음을 확인할 수 있었다<Figure 9, 10>.
4. C 유형
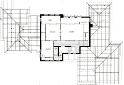
1) 서울특별시(C-2, Museum)
현재 한양도성의 역사와 관사 및 시장에 대해 전시하고 있다.
Table 9.
Seoul Official Residence
서울특별시장 관사는 외부 변화를 가지는데 입구에 있던 방풍실을 철거하였고 가족 거실에 있는 벽을 부분 철거하여 관사 건물 밑에 깔려있던 한양도성의 부분을 드러내 전시하였다. 내부로는 평면상 기존의 큰 틀을 알 수 없을 정도로 변화되었으며 다른 곳과 달리 기존에 있던 보조 계단을 없애고 리프트를 설치한 것을 확인할 수 있다. 일제 강점기 때 관사의 모습을 복원한 공간은 있지만 규모가 작아 개별의 전시실로 보인다. 기존 공간 2-3개를 철거하여 한 공간으로 만들어 기존의 공간적 특성을 유추하기 어려워졌고 아예 새로운 공간으로 인식이 되는 것을 확인할 수 있다<Table 9>. 외부의 구조는 변했으나 마감재는 기존의 것과 비슷한 것을 이용했음을 확인할 수 있었다. 내부의 경우 일제 강점기 때 쓰였던 마감재로 복원한 공간은 있으나 해방 이후 관사 시절 쓰였던 마감재는 찾아볼 수 없었다<Figure 11, 12>.
5. D 유형
1) 전라남도(D-2, Art Museum)
현재 미술관으로 사용되고 있으며 지방 청와대나 관사였던 역사는 전혀 언급하지 않고 있다.
공간 변화는 <Table 10>과 같다. 전시장으로 쓰기에 공간이 작은방들은 2-3개의 방을 합쳐서 사용하였으며 상대적으로 공간이 제일 큰 연회실은 그 공간을 조금 줄여 화장실과 엘리베이터를 설치하였다. 원래 화장실 1, 2가 있던 곳은 지금도 화장실로 쓰고 있으며 미술관에 필요 없는 부엌과 식당은 문을 막아 방문객이 출입할 수 없게 하여 미술품 창고로 사용하고 있다. 평면상 큰 틀이 남아있기는 하지만 작은방들을 너무 많이 없애 원래의 공간 흐름을 찾거나 생활상을 유추하는 것은 쉽지 않다. 외관에서 변화는 정문을 제외한 뒷문은 모두 막아놓은 상태며 창문의 다른 종류로 바뀌면서 입면에 변화가 생겼다. 내부의 경우 로비에 있는 석재는 그대로 뒀지만 각 방에 있는 마감재는 전부 바뀌어 관사였다는 흔적을 찾기 어렵다<Figure 13, 14>.
Table 10.
Jeollanam-do Official Residence
Source. the Presidential Archives (1985), The Status of Mayors’ and local Governors’Official Residences
2) 전라북도(D-2, Museum)
현재 전시장과 세미나 공간으로 쓰이고 있으며 관사나 지방 청와대였던 시절에 대해서는 전시하지 않고 있다.
Table 11.
Jeollabuk-do Official Residence
Source. The Presidential Archives (1985), The Status of Mayors’ and local Governors’Official Residences
전체적으로 새로운 공간을 만들다 보니 기존에 있던 평면상의 큰 틀이 잘 보이지 않는 편에 속해 기존 공간 흐름이나 생활상을 유추하기 어렵다. 다른 전시장과 달리 기존의 출입구 두 개를 남겨 하나는 전시장 방문객을 위하고 나머지 하나는 세미나 공간 이용객을 위한 의도가 보인다. 공간 배치도 건물의 꺾인 부분을 기점으로 전시장과 세미나 공간으로 나뉘어 있는 것을 확인할 수 있다<Table 11>. 외부의 변화는 2개의 출입구를 제외한 뒷문을 모두 막은 상태며 전시장 조성을 위해 창문을 시트지로 막은 것 외에는 구조나 마감재상 유지 및 보수를 해온 것으로 확인된다. 내부는 이전 현장 사진이 없어서 정확한 비교는 어렵지만 구조가 전부 바뀌면서 마감재도 전부 바뀐 것으로 추측된다<Figure 15, 16>.
6. 소결
4장에서는 리노베이션을 통해 공공시설이 된 도지사 및 특별/광역 시장 관사 분석을 통해 세밀한 분석을 하였다. 활용 목적에 따라 요구하는 공간이 달랐고 그에 따른 리노베이션 방법도 달라 관사의 공간을 이용하는 곳도 있었지만 원래 가지고 있던 특징이 없어지기도 하였다. 분석을 통해 관사의 기존 공간적 특성을 해지치 않으면서 활용하는 방법은 주된 공적/사적 공간을 방문객을 위한 공간으로 쓰고 직원들의 공간은 서비스 공간13)을 쓰는 것으로 크게 정리할 수 있었는데 세밀한 사항은 아래와 같이 목록으로 만들 수 있었다<Table 12>.
Table 12.
List of Renovation Methods for Each Space
안내 데스크는 주 출입구와 가까운 홀에 배치하며 만든다. 만약, 홀에 충분한 공간이 없다면 그 주변에 있는 서비스 공간을 이용하여 만드는 것이 좋다.
주 공간(전시실 등)은 건물에서 넓은 연회실이나 응접실을 이용하는 것이 제일 좋다. 만약, 공간의 규모가 전시를 하기 여의치 않다면 그 주변의 방과 합쳐 쓰는 것도 차선책이나 이 경우 벽체를 전부 허물지 말고 틀이나 벽체의 부분을 남겨 방문객으로 하여금 기존 공간 특징에 대한 유추를 할 수 있게 만드는 것이 좋다. 그러나 방에 딸린 화장실을 철거해 한 공간으로 쓸 때는 벽체를 남기지 않아도 공간의 큰 틀을 해치지 않기 때문에 전부 철거하여도 괜찮다. 또한, 새로운 공간을 만드는 과정에서 마감재를 이전의 것과 연관성이 없는 것을 사용하는 것은 기존 공간의 특성 요소를 없애는 것이므로 전체적으로 똑같은 마감재를 사용하지 않더라도 몰딩이나 벽체 장식같이 기존의 것을 부분적으로라도 남겨 사용하는 것이 좋다. 벽체를 세워서 기존 공간을 나눠 사용하는 것은 평면의 흐름을 바꾸기 때문에 피하는 것이 좋다.
사무실이나 회의실은 서비스 공간을 이용하는 것이 좋다. 두 개의 방을 하나의 사무실로 쓰게 된다면 전체 공간과 동떨어지지 않게 같은 마감재를 쓰는 것이 좋다.
화장실은 원래 있던 화장실을 쓰는 게 가장 좋으나 여건이 마땅치 않으면 외부 건물을 화장실로 변경하거나 서비스 공간을 이용하는 것도 차선책이 될 수 있다.
엘리베이터는 설치 시, 위층과 아래층 공간을 모두 확보해야 하기 때문에 보조 계단을 철거하고 그곳에 설치하는 것이 제일 좋다.
창고는 물품을 옮기는 직원들을 위한 공간이기 때문에 기존의 서비스 공간을 이용하는 것이 좋다.
IV. 결 론
여론으로 인해 전국적으로 관사가 공공시설이 되었던 것이 행정안전부의 권고로 이러한 흐름을 확고히 만들었다. 관사의 대부분은 리노베이션을 통해 공공시설이 되었는데 이에 대한 지침 부족으로 건축적 가치가 있는 관사가 리노베이션을 통해 그 가치가 훼손되는 경우도 발생하였다. 이러한 이유로 관사의 공공시설화 리노베이션에 대한 지침을 제공하고자 전국의 관사의 공공시설화 현황을 분석한 후 리노베이션 전, 후 자료가 남아있는 도지사 및 특별/광역 시장 관사를 문헌 수집과 현장 답사를 통해 세밀한 분석을 하였다. 전국의 공공시설이 된 관사는 모든 주민들을 위한 공공시설 또는 특정 주민들을 위한 지원시설로 나누어졌으며 모든 주민들을 위한 공공시설은 커뮤니티 시설, 문화 시설, 교육 시설로 나눌 수 있었다. 활용 목적에 따라 포함하는 리노베이션 유형도 달랐으며 필요로 하는 내부 시설로 달랐다. 그러나 관사의 공간적 특징을 보존하면서 활용하기 위해서 공적/사적 공간은 시민들이 쓰는 공간으로, 서비스 공간은 직원들의 공간으로 사용하는 것이 공간 특성을 크게 해치지 않고 또한, 관사였을 당시 내, 외빈의 동선을 현재의 방문객 동선도 비슷하게 만들어 방문객으로 하여금 공간에 대한 이해를 높일 수 있다는 공통점이 있었다.
이러한 사례 분석에도 불구하고 본 연구에서 다뤘던 대상 건물이 차관급 이상 공무원의 관사라는 점에서 한계가 있다. 다른 시장이나 군수 관사의 경우 일반 주택 규모의 크기가 대부분인데 규모가 다른 경우 본 연구에서 제안하는 지침이 맞지 않을 수도 있어 이런 소규모 건물들에 대한 후속 연구가 필요하다. 하지만 문헌 수집, 현장 답사를 통해 관사 공공시설화에 대한 세밀한 분석을 함으로써 후속 연구를 위한 기초적 발판을 마련했다는 점에서 의의가 있다.












































